Mulettos Lüftungsmontage
|
|
||
|
Der CombiTurm Im Forum gibt es nur wenige Bilder zur Installation des CombiTurms. Das System ist clever konstruiert und relativ einfach zu montieren. Am meisten Arbeit macht tatsächlich das Betonieren des Sockels. Bei uns steht der Turm direkt neben der Hauswand – der Weg zum Lüftungsgerät ist also kurz. Als der Bagger die letzten Erdarbeiten ausführte, habe ich mir hier schon ein Loch graben lassen. Das erste Fundament habe ich mit Schalungssteinen erstellt, den oberen Teil klassisch geschalt. Für die Optik kamen noch Dreiecksleisten dazu. Beim nächsten Mal würde ich damit jedoch warten und erst die komplette Inneninstallation fertigstellen. Bei mir war außen bereits alles angeschlossen, bevor ich innen das Lüftungsgerät an der Ab-/Zuluft angebunden habe. Das ist der aktuelle Stand. Inbetriebnahme und Montage der Ventile/Gitter steht noch aus. |
||
|
||
|
Entwässerungsmuffe an der Fortluft innen wurde eh nicht vergessen? Super Ausführung und Dokumentation! 👏👍 |
||
|
||
|
Warum eigentlich die beiden Flexrohre? |
||
|
|
||
|
||
|
Nein nicht vergessen. Sieht man nur auf den Bildern nicht. Besseres Beweisfoto habe ich gerade nicht 😉 ![]() |
||
|
||
|
Das sind Schalldämpfer für die Abluft. |
||
|
||
|
Vom Einbau der Gitter habe ich keine Fotos gemacht. Das ist zu einfach. Reinstecken, fertig. Da aber trotz Hausbau der Spieltrieb vorhanden ist, tritt an: Profigerät Testo 417 – Leihgerät von meinem Installateur. ![]() Vs. China-Anemometer HoldPeak HP-866B mit 3D-Druck Trichtern von Thingiverse. ![]() Das Einmessen habe ich mir für diese Woche eingeplant. Ich bin gespannt, wie sich das Chinateil schlägt. |
||
|
||
|
In welchen Fällen braucht man diese Muffe? Nur beim Kombiturm oder auch bei Direktleitung durch die Wand? Danke, lg |
||
|
||
|
nur bei Ableitung von Regenwasser oder Kondensat. Bei Ansaugung über Fassade mit geeigneten Gittern, die Regen nicht ansaugen und kondensationsfreier Leitungsführung der Fortluft braucht man diese nicht. |
||
|
||
|
Danke für die Antwort! 👍 |
||
|
||
|
Hier noch die Messwerte. Bei kleinen Volumenströmen ist das China-Messgerät echt schlecht. Vom Handling hat es aber genauso gut funktionert wie das Testo. ![]() |
||
|
||
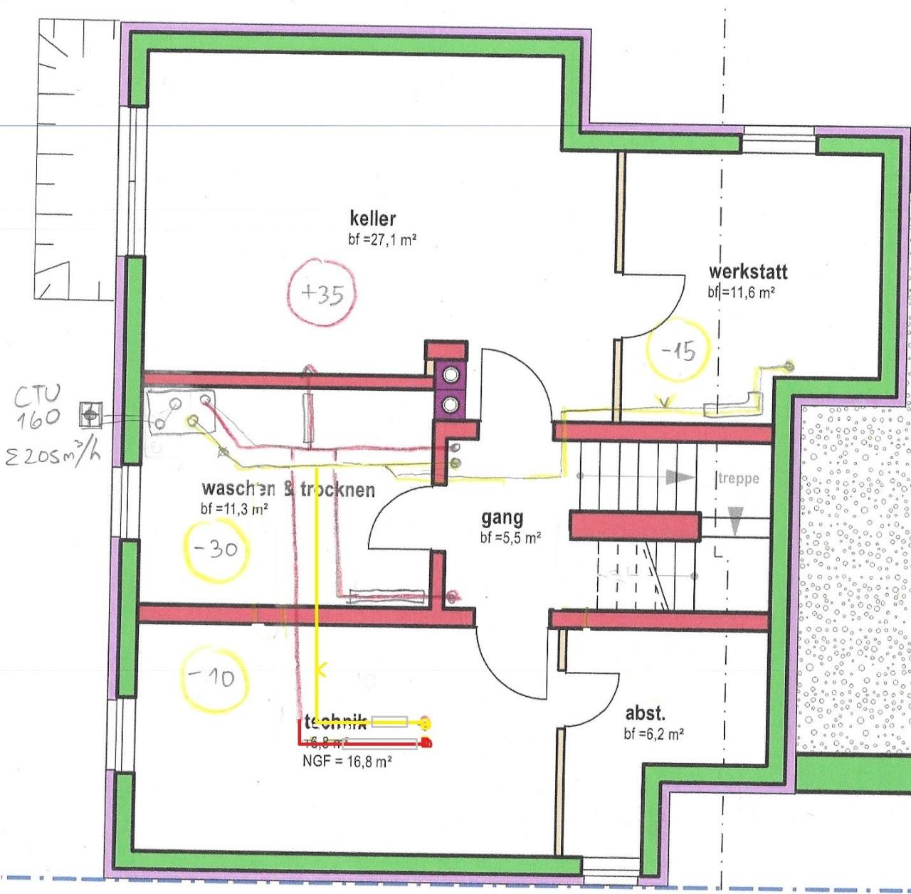
![]() An den Wänden zu messen war kein Problem. Für die freihängenden Auslässe passt der Trichter nicht. Daher hab ich hier einfach eine Schablone aus Karton gebaut. ![]() Und zum Einregulieren der Auslässe wird einfach ein "Schaumstoffteil" eingelegt . Manchmal auch 2 hintereinander. Und manchmal etwas gekippt. So dass eben der gewünschte Volumenstrom rauskommt. ![]() ![]() |
Beitrag schreiben / Werbung ausblenden?
Einloggen
Kostenlos registrieren [Mehr Infos]

















































