Sole oder Luft EWT für KWL?
|
|
||
|
Es gibt im Forum schon einige Threads zu dem Thema. Wo soll ich anfangen? In Kurzform: Sole-EWT für Lüftung: der Nutzen ist zu gering für die Kosten, Entfeuchtung sehr gering, Kühlung vernachlässigbar Sole-EWT größer ausgelegt für Kühlung: Entfeuchtung zu gering, da Soletemp zu hoch, Kühlung besser mit RGK RGK [Ringgrabenkollektor] (das ist im Prinzip ein großflächiger Sole-EWT) in Verbindung mit Wärmepumpe für den Winterbetrieb, Entfeuchtung funktioniert mit KWL KWL [Kontrollierte Wohnraumlüftung] und Entfeuchtungsmodul in der Zuluft Luft-EWT: hygienisch kritisch, baulich nicht ganz so einfach, Reinigung aufwändig, Nutzen fraglich (ich habe schon mindestens 20 Luft EWT mit Kamera inspiziert und würde sie deshalb nicht empfehlen) Bevor wir jetzt weiter auf das Haustechnikkonzept eingehen, müssten wir mehr über das Haus, Grundstück und energetische Zielwerte wissen. |
||
|
||
|
Wenn Du noch in der Planung bist, drüber nachdenken ob es nicht besser eine Maico oder Zehnder werden soll, diese Geräte haben hier einen besseren Ruf. Lies Dich hier bitte zu verschiedenen KWL KWL [Kontrollierte Wohnraumlüftung] Themen übers Wochenende ein, da werden sicher einige Menge Fragen bei Dir aufkommen. Viel Erfolg |
||
|
||
|
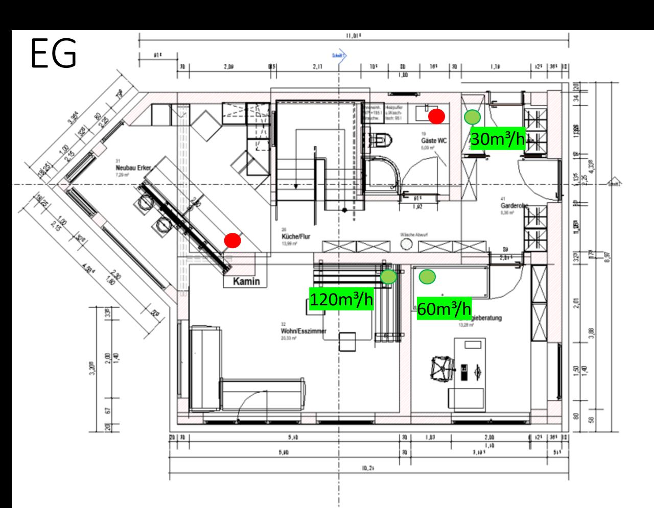
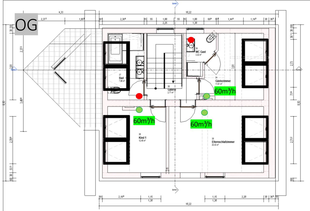
Hallo zusammen Das Haus ist im Bestand ein 70er-Jahre-Haus aus grauem Ziegel. Ziel ist es, 50 kWh/m² zu erreichen. Dazu geplant: – dreifach verglaste Fenster– 18-cm-Mineralwolle-WDVS – später: Aufsparrendämmung mit Holzwolle – als Lärmschutz: zur Straße eine senkrecht aufgeständerte PV-Anlage (90°), 15 kWp kWp [kWpeak, Spitzenleistung] + 21 kWh Speicher Heizen/Kühlen: – Niedertemperatur-Fußbodenheizung (FBH) in allen Räumen– Luft-Wasser-Wärmepumpe mit 200-l-Frischwasserspeicher und 100-l-Heizpuffer – passive Wärmegewinne durch große Süd-/West-Fenster, automatisierte Verschattung (KNX) – KWL mit Wärmerückgewinnung Grundstück: – 1.200 m², Südhang– Boden: lehmige Endmoräne Hier der Grundriss mit Ablufträumen (rot) und Zulufträumen (grün). Die Positionierung ist aktuell so gewählt, dass die Leitungsführung möglichst einfach und kurz ist. ![]() ![]() ![]() Zur Auslegung der KWL KWL [Kontrollierte Wohnraumlüftung]: Da die Landstraße nur 4 m vor dem Haus verläuft, sollen die Fenster geschlossen bleiben. Ich hätte an 40–60 m³/h für Kinder-/Schlaf-/Arbeitszimmer, 90–120 m³/h für das Wohnzimmer und 15–30 m³/h für den Eingangsbereich gedacht. Damit kämen wir auf die 325er oder 400er von Wolf. Was meint ihr? Zu viel für ein EFH? Zum Wärmetauscher: Da wir ohnehin den Bagger für die Perimeterdämmung und die Drainage der Hangdruckquelle brauchen, ist ein Sole-Erdwärmetauscher (RGK oder Erdkorb im Bereich der Quelle) doch ein No-Brainer, oder? Einen Luft-EWT schlage ich mir zähneknirschend aus dem Kopf – Hygiene ist leider ein Totschlagargument. |
||
|
|
||
|
||
|
Wenn du schon aufgräbst und dermaßen viel Wasser hast, wäre eine Erdwärmepumpe mit RGK RGK [Ringgrabenkollektor] aber sowas von aufgelegt. Unnötig, kannst du bei FBH FBH [Fußbodenheizung] streichen. Kommt drauf an, wie groß die Familie ist. Wir kommen zu viert auf maximal 180m³/h. Mehr wird nur bei Großbesuch aufgedreht. Schau dir mal auf komfortlueftung.at die Dimensionierungshilfe an, die hat mir sehr geholfen. Schau dir die Kosten an und den Nutzen und entscheide dann. Mit der KWL KWL [Kontrollierte Wohnraumlüftung] kühlen ist bei mittelmäßigem Energiestandard eher unrealistisch. Luft vorheizen gegen Frost am WT geht elektrisch so viel einfacher (billiger), dass sich allein schon das Wasserregister niemals auszahlt, von dem Verrohrungsaufwand und der Pumpe ganz zu schweigen. Wenn du allerdings für die Heizung (und Kühlung) doch noch auf Erdwärme umschwenkst, ist der Zusatzaufwand geringer und es kann sinnvoll sein. |
||
|
||
|
Bin nicht sicher, was Leitwolf da genau meint. Wir haben ein ~10m langes 200er Rohr in der Baugrube mitverlegt, und das reicht, um im Sommer die Hitzespitzen und im Winter die Kältespitzen zu glätten (hatte noch nie Minusgrade im KWL KWL [Kontrollierte Wohnraumlüftung]-Gerät und auch kein Vorheizregister installiert). Die Luftqualität ist nach über 5 Jahren auch nicht schlechter geworden. Der Temperatur-Effekt vom EWT ist natürlich auch vom Luftdurchsatz abhängig. Da ich mit Elektroklappen die Verteilung steuere, brauchen wir z.B. in der Nacht auch nicht mehr als 100 m³/h bei 4-Personenbelegung... |
||
|
||
|
Der Erd- bzw. Solewärmetauscher ist bei einem modernen KWL KWL [Kontrollierte Wohnraumlüftung] Gerät rausgeschmissenes Geld. Mein Pichler LG350 mit Enthalpiewärmetauscher heizt erst ab einer Außenlufttemperatur (im Gerät) von -6°C zu, was in etwa -9°C Außenluft im Ansaugbereich entspricht. Unter -9°C habe ich vielleicht 3 Tage im Jahr. Wenn wir jetzt als Beispiel -14°C für 72 Stunden mit einer Luftwechselrate von 200m³/h annehmen, dann ergibt das einen Energieverbrauch von 72 x (-9 - -14) x 200 x 0,34 Wh = 24480 Wh bzw 25 kWh fürs Jahr bzw. 10 Euro/a. Da bringt es mehr den Stromverbrauch durch eine bessere Verrohrung oder größere Filter gering zu halten. 10 Watt mehr fürs Lüftungsgerät sind in etwa 88 kWh/a im Jahr. Nachfolgend ein paar Messwerte meinerseits bzgl des Heitzregisters. https://www.energiesparhaus.at/forum-erfahrungsaustausch-pichlerluft-kompaktlueftungsgeraete-lg-350-lg-450/75919_1#787761 Und wenn man einen EWT verbaut, so müsste eigentlich ein Bypass verbaut werden um im Sommer gegebenfalls auf direkte Ansaugung umzuschalten. Ansonsten kann die nächtliche kühle trockene Kaltluft zum Enfeuchten nicht verwendet werden
|
||
|
||
|
Das verstehe ich nicht. Die absolute Feuchte der Ansaugluft ändert sich ja nicht durch einen Luft-EWT wie ich ihn habe. Wichtig ist meiner Meinung nach nur der Bypass im Gerät. Auch die Kosten sehe ich neutral, da ich weder einen Enthalpietauscher noch ein Heizregister benötige. |
||
|
||
|
mit EWT war Enthalpie-WT gemeint. der hält die Trockene Luft sonst in der Sommernacht auch draußen. Wer solche Phasen zum Entfeuchten nutzen will, muss quasi mit offenem Bypass fahren. (meine Meinung kennt ihr ja eh dazu... das ist auch nur die halbe Miete. Richtig Entfeuchten klappt nur "aktiv") Kosten-Vergleich wäre interessant. Aber Enthalpie bringt viel mehr als nur besseren Frostschutz, also diese Mehrkosten sind anders zu bewerten. Somit bleiben fair gesehen nur Heizregister vs. Erd-WT übrig. Wobei viele Geräte den el. Heizer ohnehin verbaut haben, und es dann eh kein Einsparpotential gibt, den wegzulassen. |
Beitrag schreiben / Werbung ausblenden?
Einloggen
Kostenlos registrieren [Mehr Infos]



