Heizungstausch STMK nähe Graz
|
|
||
|
Kannst du noch etwas zu deinem bestehendem Heizsystem schreiben, welche Systemtemperaturen sind möglich im Winter. Da du Heizkörper und FBH FBH [Fußbodenheizung] mit Holz beheizt , noch dazu ohne Puffer müssen die Kreise mit Mischer ausgestattet sein. Der Verbrauch mit den Raummetern Weich- oder Hartholz |
||
|
||
|
Hallo Akani Korrekt, es gibt einen Mischer, der den Kreis mit der Fußbodenheizung mit 25-40° Vorlauftemperatur versorgt (Theoretisch auch mehr möglich, aber nicht sinnvoll). Die Heizkörper werden mit 25°-65° angefahren, beim Einheizen geringer, dann mit zunehmender Dauer steigend. System als "Dauerbrenner" schwierig zu regeln, auch in Kombination mit dem Kachelofen. Vorgehensweise Heizen im Winter: Am Nachmittag wird der Kachelofen eingeheizt, in der Früh die Zentralheizung. An kalten Tagen mit wenig Sonne wird die Zentralheizung auf kleiner Flamme länger betrieben. Genaue Aufzeichnungen zum Verbrauch gibt es leider nur aus der letzten Heizsaison, wo wir den Öltank leergefahren sind. Für die Jahre davor ist es eine grobe Abschätzung von mir, meiin Schwiegervater ist leider verstorben. Ich weiß, dass die Heizwerte der 25-28RM Holz gemischt (Annahme 50/50) nicht zum Verbrauch ÖL+Holz passen. Gruß Christian |
||
|
||
|
Wenn´s Richtung WP WP [Wärmepumpe] geht und Hochtemperatur-Systeme eingebunden werden sollen, dann am besten mit dem Entlademischer: https://www.energiesparhaus.at/forum-entlademischer-welche-wp-kann-es-eigene-umsetzung/75916 |
||
|
|
||
|
||
So kannst dir das auf die Raummeter umrechnen. Die Verluste gerade ohne Puffer werden schon gege 30% gehen 25 RM x 1800 Kwh im Mittel x 0,7= 31600KWH /2000 Vollaststunden braucht euer Haus rund 15,8Kw Heizleistung. Ist schon ne Hausnummer. Sind den irgendwelche Sanierungsmaßnahmen angedacht um um die Heizleistung runter zu bekommen? Systemtemperaturen auch für Heizkörper hören sich halbwegs vernünftig an. Diese schwanken natürlich weil die VL VL [Vorlauf] Temperatur nicht konstant gehalten werden kann. Ich würde Behaupten dass eine WP WP [Wärmepumpe] möglich ist, wirtschaftlich ist halt die Frage. Welche Quelle würde dir Vorschweben? Erde oder Luft? |
||
|
||
|
Vielen Dank für die bisherigen Rückmeldungen. Die Verluste aus Direktbefeuerung Holz hab ich mit 20% abgeschätzt und die Differenz mit unterschiedlichen Jahrestemperaturen erklärt. So macht es aber mehr Sinn. 1300 l Öl+11-12 Rm Holz 34700kWh/jahr ca 3000kWh (gefühlt mehr Hartholzanteil) 25RM Holz gem 45000kWh/jahr => x0,7 = 31500kWh/a Wie gesagt, leider keine genauen Aufzeichnungen, evtl auch ein paar l mehr Öl, hab die Füllstände grob gemessen. Aktuell sind keine Dämmmassnahmen geplant, da die Fassade und das Dach in Ordnung sind Im Keller könnten einige Deckenuntersichten gedämmt werden (Lagerkeller, Raum Öltank, ggfs. Heizraum), Evtl im Spitzboden die Dämmung nach oben ergänzt werden). Diese Flächen haben aber einen geringen Anteil an der Oberfläche. Als Quelle würde mir ein Ringgrabenkollektor vorschweben, Fläche (Acker) ist aureichend vorhanden. Boden ist sandig ab ca 1,5m schluffig/tonig. PV aktuell nicht vorhanden, ist aber auch angedacht. Die Anlage dann auf einem Nebengebäude (Werkstatt). Ich weiß die Kombination großes Haus, Dämmstandard für das Baujahr vernünfigt aber im heutigen Maßstab zu gering, zusammen mit den Heizgewohnheiten ist suboptimal. Gruß Christian |
||
|
||
|
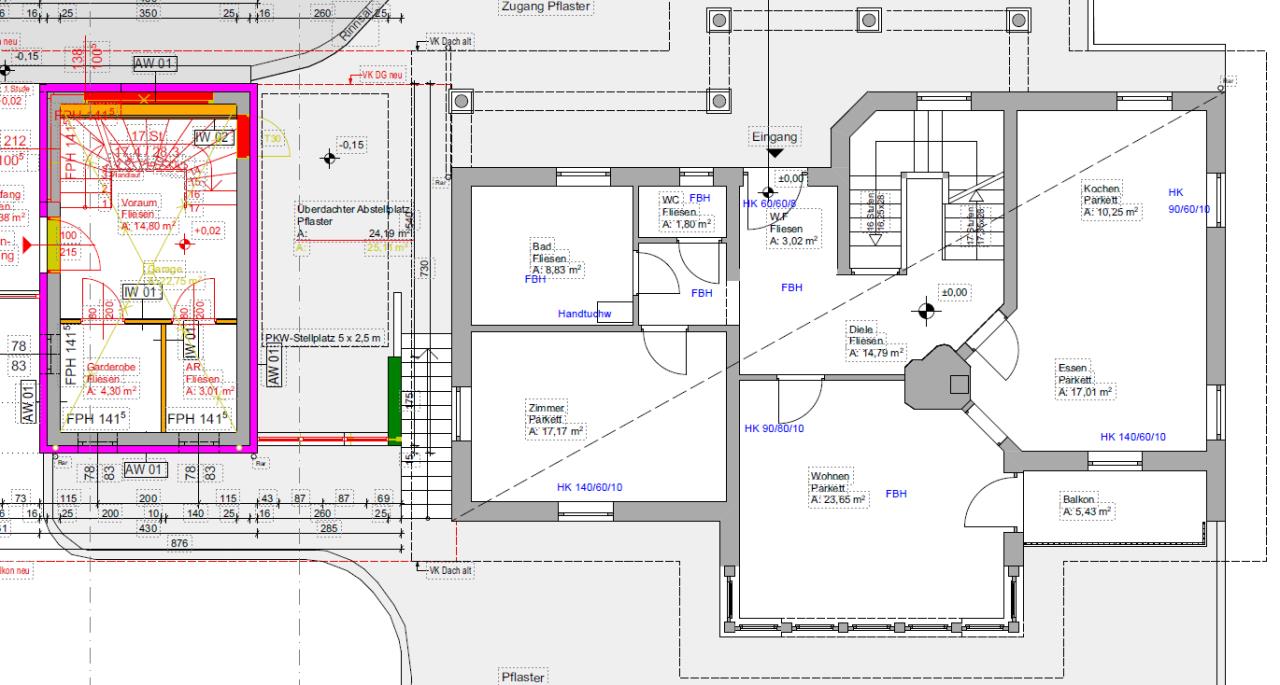
Machbar ist das schon, Arne Komposch wäre da für Planung sicher wünschenswert, der hat bereits einen alten Bauernhof mit Heizkörpern umgesetzt. Bei dir wäre das eine ähnliche Situation. Mit ner 16er Maschine sollte das schon zu bewerkstelligen sein. Hast du evtl Pläne Skizzen wie das aussieht mit FBH FBH [Fußbodenheizung] und Heizkörperverteilung |
||
|
||
|
So, hat etwas gedauert. EG (ich hoffe die Auflösung passt. ![]() OG ![]() |
||
|
||
|
Nur mal so am Rande. Suche dir wirklich einen guten Energieberater. Denn ich bin der Meinung dass deine Hausverbräuche gerade bei Holzfeuerung ohne Pufferspeicher erhöhten Materialverbrauch beim Holz mit sich zieht. Das im Beitrag oben angenommene ist nur geschätzt. Ich denke nicht dass euer Haus so viel Energie braucht. Bei WP WP [Wärmepumpe] mit Erdwärme würde ich mir nur Schätzen trauen das ganze mit einer 12er Maschine und etwas überdimensionierter Quelle zu machen. Bei Pellet sehe ich das ähnlich, aber keine Kombination mit Scheitholz mehr. Wen dann das gemachte Holz weiter verkaufen und den eigenen Brennstoff davon kaufen. Alles andere wäre ein kostentreiber. Aber wie gesagt, lass das Haus ordentlich von einem Energieberater berechnen, dann kannst du auch diesen als Werkzeug für eventuelle Schwachstellen herbei ziehen. So teuer ist das bicht |
||
|
||
|
Hallo Chris80, hier gibt es dazu Erfahrungen und Preise: Heizungstausch STMK nähe Graz |
||
|
||
|
Das ist auch meine laienhafte Einschätzung, der alte Holzkessel ohne Puffer ist sehr ineffizient. Falls wer Empfehlungen für einen Energieberater im Raum Graz hat, bitte ich um Vorschläge. Eine erste mündliche Kostenschätzung von einem HB habe ich schon. Pelletsanlage (Kessel Hargassner, Puffer, Material, Umbau, Demontage inkl. Öltank, Montage, Schrägboden, Zufuhr, Einbindung bestehende Solarthermie) ca 26.000 -27.000€ Kombikessel (Holz+Stückgut) ca. 34.500 € - 36.000 € Für den Unterschied kann ich schon 5 Jahre Heizen (9000/300 = 30 to bei 6to/Jahr), ohne Berücksichtigung Holzverkauf und geringeren Kosten für den Kaminkehrer. Ein wenig Holz wird auch in Zukunft im Kachelofen verheizt werden. Gibt es Empfehlungen für Kessel, bzw. Dinge auf die zu achten ist (Flammrichtung, Material, Technik, Software, Elektrofilter, etc ....) Ich hab mir mal die Produkte bei Hargassner, Eta und Fröling angeschaut. KWB und Ökofen gibt es auch noch. Weitere Frage: Puffer für Heizung, seperater Speicher für Warmwasser oder Hygienespeicher bzw. Kombispeicher, dazu habe ich im Forum nicht viel gefunden. Frischwassermodul klingt nett, ist aber ein E-Boiler. Ich habe auch einen Termin mit einem Heizungsbauer (Empfehlung aus dem Forum, vielen Dank dafür), der auf Erdwärme (RGK) spezialisiert ist vereinbart. Bin mal gespannt und werde dann berichten. |
||
|
||
|
Bei Holz, Pellet und Hackkwssel bin ich Fan von ETA, keine Probleme super Regelung. Anlage passend Dimensionierung, Puffer dazu, fertig. Keine Kombipuffer, Heizung und Warmwasser immer trennen. Friwa nur bei hohen Warmwasserbedarf um Hygiene durch hohe WW WW [Warmwasser]-Speicherung zu vermeiden, evtl auch auf °dH im Trinkwasser berücksichtigen WP allerdings direktanschluss, kein Heizungspuffer. Und schmeiß den E- Boiler gleich mit raus, Dr paßt nicht zur WP WP [Wärmepumpe] und Strom direkt verbrauchen macht wenig sinn |
||
|
||
|
E-Boiler haben wir nicht, habe nur festgestellt, dass Frischwassermodul bedeutet, das elektrisch geheizt wird. Wasser ist recht kalkhaltig, die °dH müsste ich raussuchen. Frage zu Puffergröße: Kesselleistung (20kW) x 50 bis 100 l -> Puffergröße von 1000 - 2000l. Was ist hier sinnvoll. Bitte auch um Empfehlung für Puffer. |
||
|
||
|
Bei Pellet sind es 30-40ltr pro kw. Bei Holz devinitiv 100ltr pro Kw. Nein E Boiler hat nix mit Frischwasserladestation an einem Heizungspuffer zu tun. Puffer bei Holzfeuerung immer die vom Kesselhersteller nehmen. Nicht die runden Tonnen mit 4 Anschlüssen |
||
|
||
|
So, ein kurzes Update: Ein Angebot für RGK RGK [Ringgrabenkollektor]+WP angekündigt, nach vor Ort Termin sollte die Ausführbarkeit gegeben sein, Wärmepumpe 12 max 13kW Leistung. Ob ein Tausch der Heizkörper notwendig ist, soll im Zuge des ersten Winters (hoff wir haben mal wieder einen richtigen Winter) raumweise entschieden werden (klingt für mich einleuchtend) Ich bin auf die Größenordnung gespannt. |
||
|
||
|
Das Angebot liegt nun vor Quelle: 800m Rohr 32mm EWP: Altherma 3 GEO Heizen und Kühlen 10kW (180l Speicher integriert) Bestehende Solarthermie wird in das System integriert. Die Meinungen zur EWP im Forum habe ich mir schon durchgelesen, sind durchwachsen. Was gibt es hier für Alternative Empfehlungen? Wie sind eure Erfahrungen zum Kühlen im Sommer wenn keine BKA BKA [Betonkernaktivierung] vorhanden ist. Danke für euren Input |
||
|
||
|
Hoffentlich nicht in einem Kreis? Besser für den Pumpenverbrauch wäre weniger Länge und dafür mehr Durchmesser. 2x300m DA40 zum Beispiel. Ich habe mich für die entschieden, weil sie im Gegensatz zu den Spitzenreitern (Stiebel) aktiv kühlen kann. Tendenziell keine so gute Idee, meine ich. Damit machst du die Hydraulik deutlich aufwändiger. Wie bekommst du die Wärme aus der Solarthermie in die WP WP [Wärmepumpe] fürs Warmwasser? |
||
|
||
|
Bei meinen Schwiegereltern haben wir den Boiler der Solaranlage einfach an den Kaltwasser Zulauf der Daikin angeschlossen. Je nach Volumen sollte man dann aber auch einen entsprechenden WW WW [Warmwasser] Verbrauch haben. |
||
|
||
|
Wird das im Sommer nicht viel zu heiß? Und Heizung hängt auch einfach im Rücklauf der WP WP [Wärmepumpe]? |
||
|
||
|
Ja das stimmt, daher ein Thermostatmischer dazwischen um so die Temperatur zu begrenzen. Meinst den zusätzlichen Holzvergaser? Ja quasi als Entlademsicher umgesetzt. Sobald der Holzofen aber eingeheizt wird schalten wir die Daikin über einen UVR Regler ab. |
||
|
||
|
Nein, ich mein Solarthermie. Oder ist die nur fürs WW WW [Warmwasser]? |
||
|
||
|
Nur für WW WW [Warmwasser], wäre im Winter für die Heizung eh zu wenig. |
||
|
||
|
Soweit ich es verstanden habe 2 Kreise a 400m DN32. Die Anbindeleitung Haus zu Soleverteiler sind ca 35m. Das sind Leitungen DN40. @christoph1703 : gibt es schon Erfahrungen, oder wartest du auf die Umsetzung? Solarthermie soll für Warmwasser weiterhin genutzt werden, das genaue Hydraulikschema werde ich hinterfragen. Im Sommer kommt das Warmwasser vorwiegend von der Solarthermie, und die EWP soll ja etwas kühlen. |
Beitrag schreiben / Werbung ausblenden?
Einloggen
Kostenlos registrieren [Mehr Infos]



