Warmwasserplanung. Wie und wo warmes Wasser erzeugen?
|
|
||
|
Falsch. Denn es macht absolut Sinn, den Warmwasserspeicher in die Nähe der Verbraucher zu rücken anstatt zur WP WP [Wärmepumpe]. Am Besten wäre der Speicher im Bad aufgehoben, damit dort dessen Abwärme zusätzlich zur Raumerwärmung beiträgt. 😉 |
||
|
||
|
Und Lüftung mit Flexrohr?! Hast du da eine Auslegung dazu? Gerade dieses Verteilsystem solltest du überdenken. Mit dem Speicher Aufstellort und wie WW WW [Warmwasser] sonst solltest alle Pläne, also EG und OG mit rein stellen. Heizungsflächenauslegung am besten nach flow30 |
||
|
||
|
Danke, das wollte ich auch anmerken, hab's aber vergessen. Aber anscheinend hast du das eh schon in anderen Threads abgehandelt. Ich kann als Warnung nur nochmal auf diesen Post verweisen: https://www.energiesparhaus.at/forum-lueftungsanlagenplanung-neubau/83301_1#888723 P.S. nur so aus Interesse, weil ich bei dir Tiefenbohrung gelesen habe: RGK nicht möglich? (Wobei die TB natürlich mehr Reserven für die KWL KWL [Kontrollierte Wohnraumlüftung] hat...) |
||
|
|
||
|
||
|
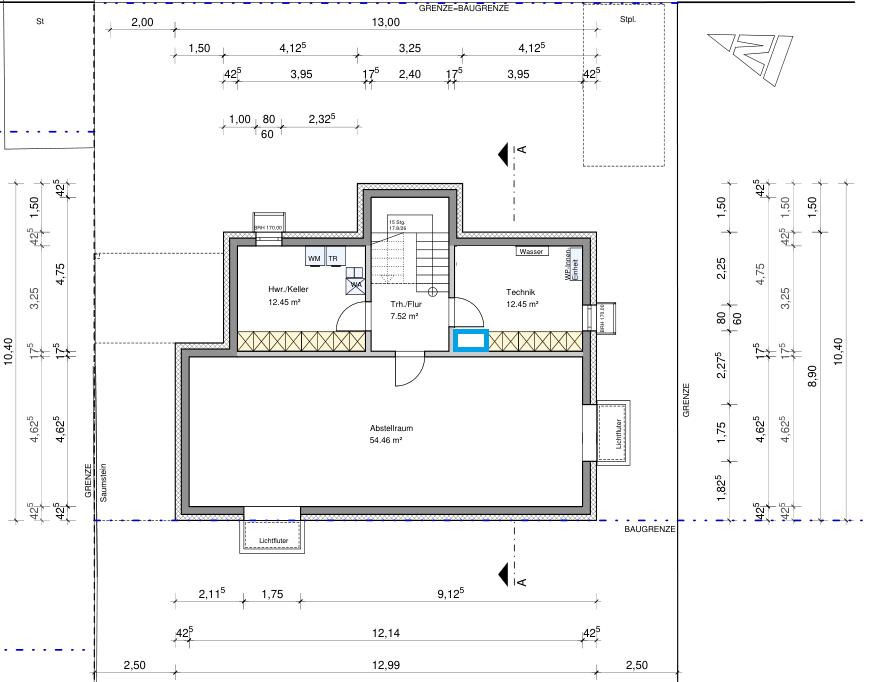
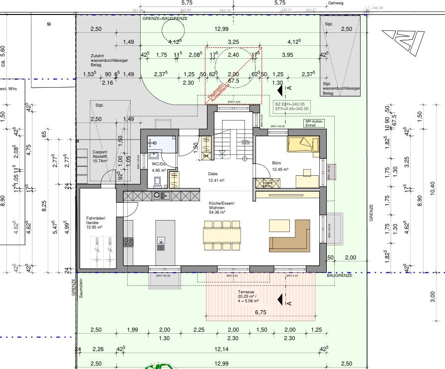
Aber wie kommt dann das warme Wasser dort hin? Und Speicher im Bad hört sich sinnvoll an, glaube aber nicht dass ich das bei meiner Frau durchbekomme. Ja, Anfrage bei Leitwolf läuft auch, die Jungs scheinen nur viel zu tun zu haben, deswegen plane ich bis jetzt mit dem vorhandenen. Nein, der Garten ist zu klein, planlinks bin ich schon an der Nachbarsgrenze und planrechts ist nur 2,5m Abstand zur Grenze :( Das Grundstück ist 29x18m: |
||
|
||
|
Über zwei gedämmte Rohre (VL und RL RL [Rücklauf]). Wenn die WP WP [Wärmepumpe] WW bereitet, dann ist es ja prinzipiell egal, ob der WW WW [Warmwasser] Vorlauf von der WP WP [Wärmepumpe] zum WW WW [Warmwasser] Speicher 1m oder 15m lang ist. Die geringen Wärmeverluste des Rohres (welche ja streng genommen im Winter keine Verluste sind) sind vernachlässigbar. Aber es ist NICHT egal, ob du beim WW WW [Warmwasser] Beziehen 1m oder 15m Rohrleitungslänge vom WW WW [Warmwasser]-Speicher hast, denn diese Zeit wartest du jedesmal, wenn das WW WW [Warmwasser] im Rohr wieder abgekühlt ist. Deswegen macht es absolut Sinn, den WW WW [Warmwasser]-Speicher laut deinen Plänen zumindest im planlinken Teil des Kellers zu platzieren, da die Küche und Bäder darüber sind. Wie gesagt, noch besser wäre im Bad, falls möglich. |
||
|
||
|
Im Keller HWR und Technik tauschen. Dann steht der Speicher zentral unter den Bädern. Leitwolf is top, ja die brauchen momentan etwas Zeit, arbeiten aber auf Hochtouren |
||
|
||
|
Das hört sich doch machbar an. Wäre es da dann nicht noch sinnvoller, die ganze Heizungs-Wärmepumpe inkl. Speicher auf die planlinke Seite zu bringen und die Soleleitung gedämmt rüber nach rechts zur KWL KWL [Kontrollierte Wohnraumlüftung] zu führen? |
||
|
||
|
Die KWL KWL [Kontrollierte Wohnraumlüftung] nach links wäre eigentlich noch sinnvoller, wenn ich mir den Grundriss so anschaue. Und Leitwolf hin oder her, mit so dünnen Schläuchen wirst du wahrscheinlich nicht glücklich. Man kann eine Lüftung auch selber planen, wenn sich sonst keiner findet. Jedenfalls aber auf ausreichende Rohrdurchmesser achten, damit die KWL KWL [Kontrollierte Wohnraumlüftung] nicht wie ein Staubsauger klingt 😉 |
||
|
||
|
Stimmt, meine Zentralstaubsaugerrohre haben 50mm Durchmesser. Könnte ich schon fast als KWL KWL [Kontrollierte Wohnraumlüftung] hernehmen. 🤣 Da kann man auch hören, wie das klingt, wenn etwas mehr Durchsatz ist... 😶 |
||
|
||
|
Ich habe sie ja ausgelegt, liegen überall bei der Zuluft 2 Schläuche pro Ventil, ich bin bei keinem Schlauch über 1,4m/s bzw. 15qm/h. Entsprechend sind das 14 Zuluft und 11 Abluft Schläuche. Damit kann sogar etwas Umluftbetrieb für Entfeuchtung gefahren werden. Nach links in den Keller passt das leider nicht, da dort einfach kein Platz für die Rohre ist. Auch ist dort Frischluft und Fortluft schwierig. KWL muss rechts, egal welches System. |
||
|
||
|
Wir haben das bei uns - zum Glück - noch so gemacht, dass der Speicher zentral und nicht neben der WP WP [Wärmepumpe] steht, um die Leitungswege vom WW WW [Warmwasser] zu verkürzen. Im Keller hatten wir dafür leider zu wenig Bodenaufbau geamcht, deshalb laufen diese gedämmten WW WW [Warmwasser] Leitungen jetzt an der Decke, kein Problem außer ev. ein optisches, ist aber in Lagerräume im Keller also auch weider relativ egal. Wenn du das im Boden machen möchtest, auch im Keller genug Bodenaufbau einplanen. |
||
|
||
|
Ich kenne ja eure Pläne nicht, aber das Stiegenauge schreit förmlich nach einem Technikschacht 🙂 Und da wären die Sammelleitungen auch gleich an der richtigen Stelle. m³/h meinst du vermutlich. Hast du dann in den Schlafräumen jeweils zwei Ventile, also vier Schläuche? Für ein Schlafzimmer wären 30m³/h deutlich zu wenig. |
||
|
||
|
Wegen der Dämmung sind dort 20cm geplant. Ich denke da wird sich ein Plätzchen finden. Du bist also auch dafür nur den Speicher dort hinzuplanen, und nicht die ganze Heizung/Wärmepumpe und nur die Soleleitung nach rechts zu legen? |
||
|
||
|
Ok, ganz wilde Idee: Momentan sind zwei Solebohrungen geplant, wobei durch die zweite Bohrung erhebliche Mehrkosten entstehen (Sammelschacht, Umstellen, längere Leitungen, wir reden hier bestimmt von über 5000€). Es kann möglich sein, dass wenn man Glück hat, dass man eine tiefere Bohrung durchführen kann. Jetzt zur wilden Idee: Es ist sehr gut möglich, dass die Solebohrung für die Heizung ausreicht, aber nicht tief genug ist um gleichzeitig noch Warmwasser heizen zu können. Nun ist mein Garten vielleicht zu klein für einen RGK RGK [Ringgrabenkollektor] für die Heizung, aber für Warmwasser sollte er bestimmt taugen. Macht es Sinn hier nur einmal Bohren zu lassen so tief es geht, und wenn es nicht tief genug ist für das Warmwasser eine eigene RGK RGK [Ringgrabenkollektor]-Soleleitung zu legen? Dann wäre auch die Sole immer an den passenden Orten und muss nicht quer durch den Keller geführt werden. |
||
|
||
|
Und fürs WW WW [Warmwasser] dann eine zweite WP WP [Wärmepumpe] reinstellen? Hybridquellen aus TB und RGK RGK [Ringgrabenkollektor] sind hier schon vereinzelt vorgestellt worden, das kann durchaus eine gute Lösung sein. |
||
|
||
|
Also dass die TB für die Heizung ausreichend ist, für WW WW [Warmwasser] aber nicht, halte ich für ein Märchen. Keine Ahnung welches System du verwendest, aber üblicherweise heizt die WP WP [Wärmepumpe] oder bereitet WW WW [Warmwasser] (über ein 3 Wege Ventil). Diese 2h Nicht-Heizen merkt dein Haus bei den Unmengen an Beton (Estrich) nicht. (BTW: BKA auch gesetzt?) Aber: Es ist viel sinnvoller, eine sehr tiefe Bohrung als zwei nicht so tiefe zu haben, da erst in den tieferen Schichten die Leistung der Bohrung so richtig zur Geltung kommt. Nichtsdestotrotz macht es natürlich immer Sinn, sofern man das möchte und die Möglichkeit dazu hat, eine Hybridquelle zu verbauen. Das heißt: Zuerst in den Garten mit dem RGK RGK [Ringgrabenkollektor], und dann in die Tiefe. Hat den Vorteil, dass entweder die TB kleiner ausfallen kann (Geld!) oder auch dass man mehr Leistung aus der Sole rausholen kann. Hier gibt es ein Referenzbeispiel, wie sowas aussehen kann: https://www.energiesparhaus.at/forum-tb-oder-rgk-wieso-nicht-beides-doku-ueber-lewurms-erdquelle/72579 So eine Hybridquelle vereint das Beste aus zwei Welten: Im Winter wärmen die oberflächennahen Erdschichten die TB vor, während im Sommer umgekehrt die Vorkühlung für die TB stattfindet. Und das alles ohne unnötigen Verteilerschacht. Wenn du damit zumindest die zweite Bohrung verhindern kannst, dann kann man sich da schon was sparen. |
||
|
||
|
Ja, das stimmt auch wieder. Nun, es gibt eben offizielle Richtwerte für den Energieentzug beim Boden, und die unterscheiden sich je nachdem, ob die Quelle wegen Warmwasser dauerhaft belastet wird oder eben Zeit zur Regeneration hat. Wobei ich sagen muss, auch hier habe ich wieder die Spezialität, dass ich wegen Wasserschutzgebiet ausschließlich reines Wasser (also ohne Frostschutzmittel) benutzen darf. Kann sein, dass hier der RGK RGK [Ringgrabenkollektor] doch gegen Ende Winter zu kalt ist und das Wasser gefriert. Edit: wobei die Entzugsleistung ja sowieso gedrosselt ist und das Wasser nicht unter 3°C aus der Wärmepumpe zurückläuft. Und kälter sollte der RGK RGK [Ringgrabenkollektor] ja auch im Winter nicht sein. |
Beitrag schreiben oder Werbung ausblenden?
Einloggen
Kostenlos registrieren [Mehr Infos]




