Kachelofen - wohin damit? - Seite 2
|
|
||
|
Bei mir ist es so, der Ofensetzer ist vor allen anderen im Haus, und mauert von der Bodenplatte weg. 3 Sichtfenster sind zwar schön, aber dann geht Speicherkapazität massiv verloren.
Falls Ihr euch dafür entscheidet, vergesst in eurer Kalkulation nicht das Putztürl, und den Platz wo der Rauchfangkehrer reinigt. Bei mir muss er jetzt aufs Dach, alleine die Sturzabsicherungen, Auftritte etc... sind ein Aufpreis von 1.800, welche nicht kalkuliert waren..... Holzlager in der Nähe der Feuerstelle sieht zwar nett aus. Aber bedenkt, Holz splittert man wird dort immer Staub und Schmutz haben. Also ich stell mir lieber einen Korb mit 6-10 Scheit Holz hin. Pos. 2 wäre auch meine Wahl, allerdings würde ich die Wand links davon wegmachen, damit er mir etwas ins Büro strahlt. Und diesen somit auch weiter nach links schieben ähnlich wie michiaustirol jedoch auf die andere Seite, in Kaminabzug würde ich so wie du gezeichnet hast positionieren. Den Rest der Mauer würde ich mit Ytong bis zur Decke fertig mauern. |
||
|
||
|
Auch ich habe das so geplant. Auch mit der Heizung hast du einen guten Punkt angesprochen. Hier wird die Erfahrung dann zeigen, wie man die VL VL [Vorlauf] einstellt um es eventuell absichtlich im UG Kühler zu haben z.B 21° Raumtemperatur Rest mache ich mit Ofen oder ob man einen gesunden Mittelweg sucht. Die richtige Einstellung der FBH FBH [Fußbodenheizung] und WP WP [Wärmepumpe] damit zu finden ist sicher dadurch nicht einfacher geworden. |
||
|
||
|
vorsicht, wenn du den kamin nach aussen stellst - den musst auch dämmen, mit xps ist da aber nichts. hatten wir auch geplant, gab aber viele offene fragen und der rauchfangkehrer war gar nicht begeistert. |
||
|
||
|
Wollte zuerst auch unbedingt einen schönen gesetzten Ofen jedoch:
- Bodenaufbau muss berücksichtigt werden - Wieviel Platz bin ich bereit herzugeben und wie passt er zum Grundriss des Hauses - wie fügt sich der Ofen ins gesamte Heizkonzept? (siehe mein 1. Beitrag) - Kaminofen stellt man auf den fertigen Fussboden (Glasplatte) - als Kaminofen bezeichne ich z.B sowas auch: http://www.camina.de/s19-kamin-anlage.html Viele stellen sich darunter einfach noch immer nur die Schwedenöfen ausm Baumarkt vor. Da gibt es schon nette Dinger die Speichersteine beinhalten. ;) - Falls man Probleme mit dem Heizeinsatz hat oder keinen Gefallen am gesamten Ofen mehr, ist dieser leicht zu tauschen. Oder eine Neupositionierung an einer anderen Außenwand leicht zu bewerkstelligen. - selbst als Bausatz würde ich mich nicht da raun trauen. Beim Kaminofen kann man bis auf die Abnahme alles selbst machen - Kosten. Hatte Angebote zwischen 8 und 36k. Mit dem Ersparnis gingen sich so einige andere nette Sachen aus da mann ja als normalo ein begrenztes Budget zu verfügung hat. Natürlich ist ein gesetzter Ofen einfach schöner und wirklich Teil des Hauses aber oben erwähnte Punkte nicht vernachlässigbar. |
||
|
||
|
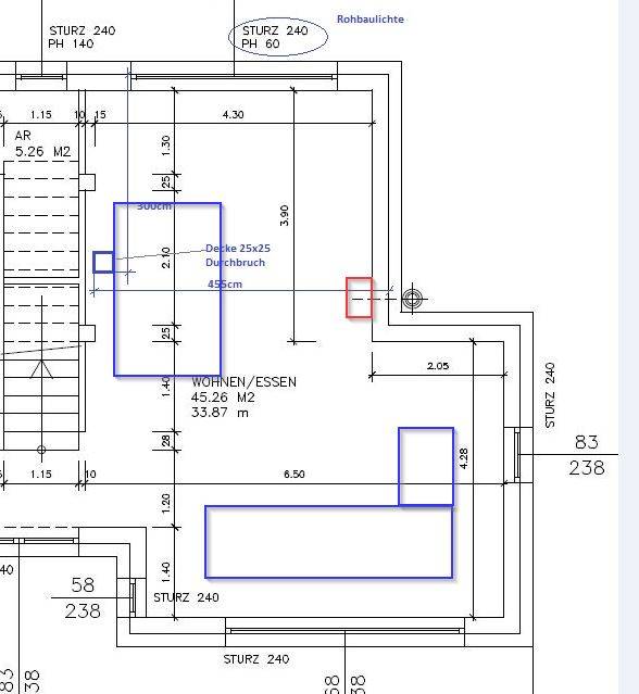
Apropo Zigi, unser Grundriss im EG ist sehr ähnlich.
Rot der Ofen. Blau Esstisch und Couch. Leider der Ofen noch nicht fertig da ich noch am Basteln bin und Hilfe bräuchte (siehe: http://www.energiesparhaus.at/forum/37816 ) Wie schon mal gepostet ist ein Teil vom Ofen zu erkennen.(unverkleidet) :) |
||
|
||
|
Hi...
Danke für eure Beiträge. Als Heizung ist mal Fussbodenheizung geplant (wahrscheinlich mit Gas, weil bereits direkt bis in jetzige Haus verlegt, dh. kein Mehraufwand von Leitungen graben etc). Dazu eine KWL KWL [Kontrollierte Wohnraumlüftung] mit Wärmepumpe und WW WW [Warmwasser]-Boiler - Viessmann VP18 compact mit Kühlfunktion). Der Ofen soll eigentlich optisch was hermachen und klarerweise auch als Zusatzheizung - Frau mags gerne warm - dienen. Danke für den link... hab da eh was gefunden was optisch ganz ansprechend wäre. Für Pos. 1 http://www.camina.de/s13-kamin-anlage.html für Pos. 2 http://www.camina.de/s10-kamin-anlage.html LG Zigi |
||
|
||
|
wir haben einen ähnlichen plan und genau an der stelle 1) auch einen kaminofen geplant. mir gefällt diese variante sehr gut und laut unserem ofenbauer auch keine problem oder sonstige einschränkungen. |
||
|
||
|
Hier nun im "Endstadion". Auch woanders schon geposted. Aus Platzgründen und da ein normaler Kaminofen einfach in unser Heizkonzept passte, ist es dieses minimalistische Teil geworden.
Natürlich alles reine Geschmacks- und Bedarfssache. |
||
|
||
fesch. an ordentlichen Fernseher solltest dir jetzt noch zulegen, Minimum 60" |
||
|
||
|
Der Aurea hat echt schon paar Jahre aufn Buckel und is echt "klein". Dafür schönes Ambilight und weiss.
Aaaaber nach langem hin und her mit Frauli nun der Sony X9000B im Anflug aber 55" reichen. |
||
|
||
hehe, is ja doch ein männerding, ne ordentliche flimmerkiste (atma ausgenommen, nicht dass sie wieder ein Anfall von Legasthenie überkommt )
aber glaub mir, 60" würd ich bereits heute nach 3m seit kauf mindestens nehmen, heute vermutlich bereits 65". der nächste wird sicher 70" oder größer
hab ja auch den sony, echt der hammer, kein vergleich zu den samsungs. da hatte bluewhite mit seiner fast missionarisch anmutender Argumentation absolut recht |
Dieser Thread wurde geschlossen, es sind keine weiteren Antworten möglich.Nächstes Thema: Zwischenwände: Ziegel vs Ytong
