Auslegung FBH (Sole-WP, keine Einzelraumregelung, keine BKA)
|
|
||
|
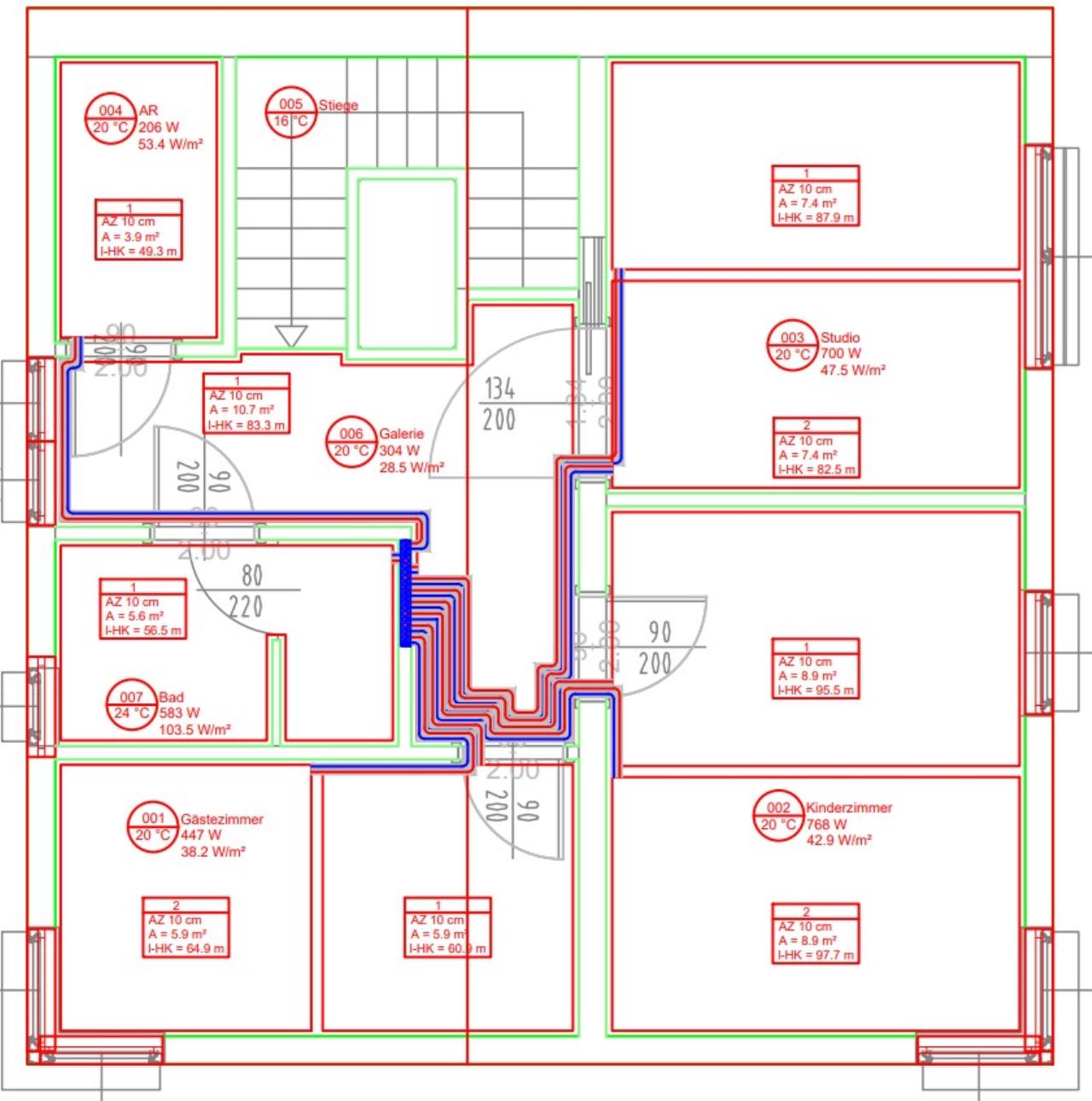
diese industrieauslegung zeigt sehr gut warum sich die branche da ins eck manövriert hat und modulation bei ihr noch nicht angekommen ist. sie ist direkt für die rundablage, höflich formuliert... so repariert man bereits verlegte problemhydrauliken. das ist bei dir ja noch nicht passiert? da kann man das noch viel viel besser lösen: der falsche ansatz dieser auslegung ist der fixe verlegeabstand von 10cm. der zwingt dich zu unterschiedlichen kreislängen je raum. dabei ist es für den monteur völlig egal ob er 7-8-10-12,5-15 cm abstand verlegt. er braucht nur den werkplan dazu. flow30 dreht den spieß genau um. hier wird die kreislänge vorgegeben - nur dadurch bringst du wasser bei unterschiedlichen volumenströmen/lastgängen dazu alle kreise gleichmäßig zu durchströmen - und der verlegeabstand ist hochvariabel und das ergebnis, nicht die vorgabe. diese auslegung hier bricht auch technische regeln, ein volumenstrom von 0,2 l/min ist totgedrosselt und macht den kreis zum schlammfang der irgendwann zuwächst. das klingt euphemistisch. an den flowmetern kannst du nur drosseln, also die besseren kreise schlechter machen. einen einzelnen kannst du dort nicht 'hinaufregeln'. das geht wiederum nur indem du heizkurve/volumenstrom gesamthaft anhebst und ALLE anderen kreise drosselst. funktioniert genauso schlecht wie es klingt. die software der rohrlieferanten läßt leider keinen besseren ansatz zu. nachdem wir versucht haben bei den herstellern anzusetzen, dort aber nur leere kilometer gedreht haben haben wir begonnen die auslegung von grund auf neu zu entwicklen. das ergebnis ist daß bei flow30 👉 der hydraulische abgleich bereits seitens der planung erledigt wird. man muß vor ort nichts mehr einregeln 👉 der hydraulische abgleich über das ganze leistungsspektrum einer modulierenden wärmepumpe funktioniert 👉 durch raumweise simulation als ausgangsberechnung kein kindrzimmer oder bad als kältester raum übrig bleibt. schlechte bzw knapp versorgte räume werden konsequent weggeplant bis sie in balance mit den restlichen räumen sind...
|
||
|
||
|
Danke. Die FBH FBH [Fußbodenheizung] wird erst in 4-6 Wochen verlegt. Wer kann eine Flow30 Auslegung berechnen? Die Umsetzung sollte dann der ausführende Installateur ja schaffen. |
||
|
||
|
meine kollegInnen im wp-plus netzwerk machen das, office@wpplus.at typisch gibt es 3 varianten wie flächenheizungen verlegt werden, 👉 rohrhersteller liefert auslegung mit materialpaket (in 9 von 10 fällen kapitale böcke) 👉 installateur entwirft selber (1 raum = 1 kreis, ab 15m2 mehrere kreise) 👉 monteur geht mit 100m auf der spindel durchs haus bis jeweils das rohr aus ist und sucht den weg zurück zum verteiler wir versuchen die Herren-der-Ringe installateure zum thema zu schulen, 2 oder 3 planen sehr gut selber, für den rest machen wir im backoffice die werkplanung. die umsetzung ist dann für installateure standard und einfach, es gibt raumschnitte (bemaßte teilflächen) und den jeweils individuellen verlegeabstand je fläche. bei kaskadierungen ist die reihenfolge zu beachten. das wars... |
||
|
|
Beitrag schreiben / Werbung ausblenden?
Einloggen
Kostenlos registrieren [Mehr Infos]




