Grundriß
|
|
||
|
|
||
|
||
|
interessantauf Anhieb:
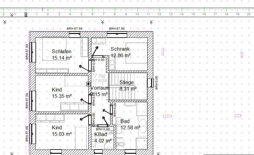
# Links unten ist Süden - also linken Teil vom EG mal aus Prinzip spiegeln, damit der Wohnbereich in den Südwesten wandert. # Ofen im Esszimmer - nicht im WoZi? Wenns denn gefällt... (überdenke auch die Größen - Kü + EZ 27 m2 - WoZi 20m2?) # VR 12 m2 kommt mir echt groß vor - bei anderer Aufteilung bleibt Platz für eine Garderobe. # Technikraum und WC umdrehen, und die Reservedusche mit WC kombinieren - muß man aber mögen. Im OG: # Kinderbad ist mMn entbehrlich - dafür das eigentliche Bad größer oder das WC vom Bad entkoppeln. # Generell wurde auf die Statik noch keine Rücksicht genommen? Spannweiten >6m werden spannend zu überwinden... # Stimmen die Fensterflächen (mind. 10% der Grundfläche des belichteten Raumes) schon? Kommt mir wenig vor... OG gefällt mir mit der KiZi / SZ-Lösung. Alle beinahe quadratisch, KiZi´s annähernd gleich groß - gibts keine Streitereien wegen dem "schönen großen" Zimmer! Viel Erfolg Bautech |
||
|
||
Gefällt mir gut, - vor allem die Treppe
Spass beiseite: ich denke, ihr habt alle Räume untergebracht, die ihr braucht. Und nicht auf die schlechteste Art. Walmdach haben wir auch, kann ich auch empfehlen (wegen der Raumhöhe). Im Vorraum scheint mir wenig Stauraum zu sein. Wo ist eigentlich der Stiegenaufgang? Zwischen Wohnen und Küche würde ich persönlich keine Wand wollen, ist aber Geschmackssache. Welche Bauweise ist geplant? Ich frage mich nämlich, ob sich das statisch ausgeht (wo ist der tragende Teil im Erdgeschoss?). |
||
|
|
||
|
||
|
ihr habt einen ähnlichen grundriss wie wir, nur ohne erker.
hier unser grundriss. http://www.energiesparhaus.at/forum/25053 was mir bei euch fehlt, ist die gaderobe. es gibt quasi keine platz dafür. wohnzimmer so abgetrennt würde ich auch nicht haben wollen, ist aber geschmacksache. 12m² schrankraum? respekt, dafür im ganzen haus keinen lagerraum oder habt ihr einen keller? wo verstaut ihr das ganze zeugs? die küche ist zwar groß, aber ist sie groß genug für vorräte? es gibt keine speis. wo trennt ihr den müll? kinder bad? wenn du gerne putzt wieso nicht, ich finde es überflüssig vorallem weil das hauptbadezimmer eh eine schöne größe hat und das auch reicht zu 4. alles im allen weiß ich nicht ob es von außen nicht eher wie eine schachtel wirkt. ist aber auch wieder geschmackssache. |
||
|
||
|
hi
was mir so auf die schnelle auffällt: ihr müsst unten immer durch den schmutz-bereich der schuhe, wenn ihr aufs klo müsst - umdrehen, wurde eh schon angesprochen. Der vorraum ist sehr groß, würd ich entweder abteilen und einen windfang machen, damit ihr nicht immer nach draussen heizt, wenn die haustüre aufgeht. im eg fehlt mir der stauraum, auch die küche find ich jetzt nicht soooo groß. das im og mit den beiden bädern und wc wurde auch schon gesagt. in summe fehlt aber auch im og im falle eines 3. kindes der platz für staubsauger und bügeltisch. |
||
|
||
|
Hanglage mit 1,6m auf 10m? - Wie realisiert ihr die Fundamentierung bei diesen Höhenunterschied ohne Keller? Bei einer Hausbreite von 12m sind das 1,92m. Ein Kellergeschoß solltest du bei dieser Hanglage in Bertracht ziehen, da ein Teil der Kosten im Fundament ohnedies aufläuft. |
||
|
||
|
absolut gelungenwürde auch wc so lassen, max. die dusche integrieren und max. die treppe schön als garderobe nutzen. küchenfenbster im spritzbereich, relativ viel fensterfläche in küche raubt halt stauraum, trennwand ez-wz ist geschmcksache, raumteiler mit säule und unterzug wäre alternative, weil man eh immer durch ez ins wz muss. ob fixwand im büro, ist ebenfalls geschmacksache.
kinderbad würde ich lassen, 2 fenster im sz bei wetterseite fraglich, würde kz-tür in einer höhe mit treppe machen - hilft beim rauftragen. og-kiniestock ok? keller wäre zu überlegen, ansonsten halt wurfsteinmauer oder so, um wasser großräumig ab- und umzuleiten... |
||
|
||
|
creator - Kniestock sollte es keinen geben bei einem Walmdach. |
||
|
||
|
Vielen Dank für die Bemerkungen
Bautech - spiegeln will ich nicht, unten ist die Straße und WZ für uns eher privat und Fernsehzimmer - Fenster sind noch nicht fix - Eingangsseitig sollen unter die Podesttreppe Schränke für Schuhe usw. - Statik lt. Planer ok (mit Unterzügen), geplant ist massiv mit 50er Ziegel Andelal - Zw. Wohnen und Küche wollen wir schon eine Wand, voraussichtlich durch Schiebetür verbunden Humi - Garderobe für Gäste soll im Vorraum sein, unter der Treppe Platz für Schuhe usw., Garderobe für die Familie soll teilweise im Technik/HW Raum sein (vor allem Wintersachen) - Der Schrankraum ist quasi „großer Abstellraum“ für alles was so anfällt, unten gibt’s dann ein „Stiegenkammerl“ und große Sachen werden im bestehenden alten Wirtschaftsgebäude untergebracht - Kinderbad ist eben noch nicht fix. Wir haben 2 kleine Mädchen… - Von außen solls absichtlich recht schlicht sein, ev. durch eine Terrassenüberdachung mit Walmdach aufgelockert. Atma - Klo neben küche hatte ich zuerst so, aber dann wird der Technikraum zu klein - Sollten wir ein 3. Kind haben, wird es insgesamt etwas eng, das stimmt Hanglage: mir wurde vom Planer versichert, dass das kein Problem ist. Wir graben einiges ab und schütten es vor dem Haus an. Platz ist jede Menge vorhanden (Bauernhof) |
||
|
||
|
ups...erwischt, überlesen. hat mit "keinen keller.." angefangen... |
||
|
||
|
@lea - hab auch geflissentlich überlesen, dass kein Keller kommt - dann bleibt die Stiegenunterseite als Stauraum. Ist nicht zu veil, aber ein Anfang |
||
|
||
|
Das getrennte Wohnzimmer finde ich sehr gut, vielleicht lässt sich noch irgendwie eine Türe in der Gangecke einbauen, sodaß man vom Gang aus ins WZ kann(irgenwie schräg zwischen Kamin und Bürotüre???).
mfg Sektionschef |
||
|
||
|
Fenster im OG - Ich würde die Süd-Fenster der Kinderzimmer und das Schlafzimmers bodenhoch anlegen, da du davor ohnehin keine Kästen unterbringen kannst. Dafür erhältst du mehr Licht und ein angenehmeres Raumgefühl.
Außerdem würde ich die Toilette im EG mit einer Dusche ausstatten und damit gleich ein 'Kinderbad' schaffen. Das zweite Bad im OG zur Toilette umfunktionieren und das eigentliche Bad vergrößern. Die Wand zwischen Wohnraum und Küche ist Geschmackssache...mir würde ein Raumtrenner besser gefallen. Dieser wäre im Nachhinein entfernbar...falls nötig |
||
|
||
|
gefällt mir auch sehr gut - event. im OG: das Eck im Vorhaus zum Schrankraum, da würd ich das Eck weglassen und gleich die Tür in den SR machen
Trennung EZ/WZ mit Schiebetür find ich auch super, da hat man dann wenigsten einen Rückzugsbereich. Die jetzt so moderne offene Bauweise bringt nicht nur Vorteile. |
||
|
||
|
Ich hab das gefühl das man hier eher bestättigung als tipps sucht.
Auch recht. |
||
|
||
|
humi:
ich hab mir einiges überlegt zu meinem Grundriß und habe für viele Dinge einfach meine Gründe. Aber ich bin durchaus offen für Tipps. vielleicht sollte ich noch dazusagen, dass ich das selbst geplant habe und die bisherigen beruflichen Planer mir keine allzu große Hilfe waren, ich hier im Forum aber immer wieder gute Sachen sehe/lese altenberg: das Eck vor dem Schrankraum ist tatsächlich noch ein Thema, ich würde es machen, wie du vorschlägst, mein LG lieber so wie am Plan... |
||
|
||
|
Wenn ihr schon ein eigenes Bad möchtet würde ich einen direkten zugang von eurem schlafzimmer machen. sonst hat das wenig sinn.
Ein seperates klo und nicht mit dem bad kombimiert ist sicher besser Statik ist sicher kein problem elementdecke gibt es bis 8m hohldielen decke bis 22 m hab selbat eine hohldielendecke mit 9.30 m spannweite und einen unzerzug mit 7m spannweite wc und technik tauschen |
||
|
||
|
Keller würd ich mir - auch noch einmal überlegen... Weil kommt sicher nicht viel teurer, wie die angedachte Variante. |
||
|
||
|
na eben nicht, es hat hier schon viele gute tipps gegeben, wurden alle wiederlegt. für euch ist das haus perfekt, dann bau es so, es ist in ordnung. |
||
|
||
|
altenberg:
wieso? vom planer wurde uns gesagt, die erdbewegungen sind kein großes problem und auch preislich nicht so arg (unter 10TEUR) und zw. bodenplatte und keller ist doch bestimmt ein unterschied von 40TEUR. |
||
|
||
|
Hallo - Sagt wieviel würdet ihr für den Rohbau+ Dach+ Dachdecker zahlen?
|
Dieser Thread wurde geschlossen, es sind keine weiteren Antworten möglich.