Wie findet ihr meinen Entwurf? - Seite 2
|
|
||
Andere Idee - Mit der Zeit wirst "betriebsblind" beim eigenen Plan - habs selber erlebt
Vlt hilft Dir Input durchs Forum, um andere Lösungen in Erwägung zu ziehen. Hier zB: EG:
OG:
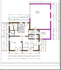
Die Fenster hab ich jetzt im Groben so belassen, wie sie waren (außer im OG - AR, das benötigts mMn nicht). edit: im eg gehört zwischen bad/wc und stiege noch eine wand... die wandstärken sind auch willkürlich, so gehts mit copy/paste einfach schneller...
ng bautech |
||
|
||
|
Danke für die Mühe.
Was mir nicht daran gefällt bzw. was der Hintergrund daran ist, hab ich leider noch nicht erwähnt. Im EG ist jetzt schön alles offen aber genau das will ich nicht. darum hab ich die Trennwand zwischen WZ und Küche. Es wirkt zwar etwas offen aber es ist dennoch unterteilt und eventuell wird es dann mal komplett geschlossen, je nachdem wie sehr es micht stört bzw. der Lärm von der Küche. Im OG ist es mir zuviel Vorraum das Schlafzimmer zu verwinkelt. Ausserdem ist der Grund warum ich durch den Schrankraum in das Schlafzimmer folgender: Meine Freundin und ich stehen zu unterschiedlichen Zeiten auf. Somit geh ich in den Schrankraum und danach gleich raus. Das heißt kein Licht oder minimal im SZ. Anders müsste ich in den Schrankraum und dann wieder durchs Zimmer. Ich hoffe ihr versteht mich ein wenig. |
||
|
||
|
@bautech schade um deine Mühe. Finde die Stiegenlösung echt gut gemacht. Aber wie bereits mehrfach angeführt bringt es leider nichts mehr einen plan zu diskutieren der mehr oder weniger in Stein gemeißelt ist. @ VWG 40 bau dein Haus doch einfach so wie du es willst. Nur man stellt einen plan meiner Meinung nicht ins Forum wenn man keine Kritik und Änderung akzeptiert und man eigentlich nur eine Bestätigung für seinen plan möchte. Es ist einfach so das du auf keine Idee aufbauen willst und du alles sofort nieder machst. Deine eigenen Fehler/Problemstellen redest du aber klein. Nachdem ich viel mit dem Innenleben eines Technikraumes zu tun hab, kann ich dir definitiv sagen das die Anordnung nicht optimal ist. Also mein fall ist der plan nicht! ThinkAbout |
||
|
||
|
Es sind ja ein paar gute Ideen dabei keine Frage nur es ist genau das Gegenteil was ich will.
Mit so einer Stiege hab ich mich auch schon beschäftigt jedoch nie eine ordentliche Raumeinteilung zusammengekommen. Bei dem Entwurf von Bautech ist zwar alles schön offen nur es ist mir Zuviel Vorraum den ich nicht nutze. Das Wohnzimmer will ich nicht offen sonst hätte ich nie diese Wandeingezeichnet. Wo soll dann der TV hinkommen? Beim Raumteiler? Und wenn ich ganz links auf der Couch sitze muss ich den Kamin ansehen? Im OG stört mich der lange Schlauch im Gang der nicht genutzt werden kann. Der Schrankraum ist ein Labyrinth und das SZ ist viel zu klein. Die Kinderzimmer sind jetzt zwar gleich groß aber das muss ja nicht sein. Ich bau ja für mich und nicht für die noch nicht vorhandenen Kinder. Alles in allem verliere ich Wohnraum und alles ist verwinkelt. Ich will so einfach wie möglich und so viel Platz wie möglich nutzen können. Trotzdem danke für eure Mithilfe aber jetzt weiß ich wenigstens das mir das was ich schon habe am besten gefällt |
||
|
||
|
Aber vielleicht könnt ihr mir ja ein paar Detailfragen beantworten.
Im Schrankraum war Anfangs ein Flachdach Fenster gepalnt mit 60x60cm. meint ihr reicht das um etwas Licht rein zu bekommen?? |
||
|
||
|
So nun hab ich eine kleine Änderung vorgenommen was ich von bautech gesehen habe.
Sollte normalerweise Umsetzbar sein oder? Meine das die eine Wand bei der Garage kürzer ist und dadurch der Eingangsbereich größer wird und besser als Besuchergaderobe genutzt werden kann. |
||
|
||
|
Sollte prinzipiell kein Problem seinZu dem Flachdachfenster im SR:
- jede Durchdringung der flachen Dachhaut birgt Gefahrenpotential wg Feuchtigkeitseintritt - zum Reinigen eher suboptimal - innen wie außen - im Winter bei Schneelage unbrauchbar Meins wäre es nicht... Eine Kleinigkeit noch zum Plan: Überleg Dir bitte im EG die Änderung der beiden Terrassentüren von Drehflügel- auf Hebe-Schiebe-Türen und eine evtl. Vergrößerung (2,20 bis 2,50m wäre gut glaub ich). Vorteil: bei der Möblierung genau Null im weg, das, was man hier in Deinem Entwurf sieht - Tür stößt gegen Kochinsel - gibts mit einer HST HST [Hebeschiebetür] nicht ng bautech |
||
|
||
|
Ich muss mal nachfragen ob das ein Problem ist wegen dem Foliendach. Will natürlich ein dichtes Haus.
Reinigen ist klar Schnee haben wir nicht viel und ich denke das er dort eher schmilzt. Wenn auf Schiebetüren, Hebeschiebetüren sind ja noch teurer. Muss mir das mal durchrechnen lassen, danke |
||
|
||
|
Hallo!
Ich bin gerade beim Angebote einholen und nun stehe ich vor einem Problem mit der Garagendecke. Es soll ein Pult oder Flachdach werden. Aus Holz lässt sich der Dachstuhl nicht wirklich kostengünstig fertigen oder nur mit einer Stütze. Diese will ich aber vermeiden. Ich möchte gerne die 9x7m voll nützen können. Für eine Stahlbetondecke fehlen mir die Auflagepunkte. Mir wurde vorgeschlagen einen Überzug zu machen. Aber ich denke das wird nicht gerade Kostengünstig sein. Hat jemand eine Idee wie ich das am besten mache? Technikraum kann auch verschoben werden. Zählt der Technikraum eigentlich zur Wohnnutzfläche? Mfg |
||
|
||
|
@VWG40 ich vermute mal du hast den Plan selber gemacht, nachdem du die Änderungen immer gleich gepostet hast. Mit welcher Software hast du diese erstellt (bzw. ist diese auch "Anfänger"tauglich)? |
||
|
||
|
Technikraum muss dann nicht zur WNF gerechnet werden, wenn er extern begehbar ist. |
||
|
||
|
Hab jetzt leicht umplanen müssen wegen der Garagendecke.
Dieses komische Eck im Technikraum hab ich nur gemacht damit ich mit den Rohren von der KWL KWL [Kontrollierte Wohnraumlüftung] oben im Arbeitszimmer in der Ecke raus komme.
|
||
|
||
|
.....Platz effizienter nutzen - auf jeden Fall vorher mit dem zuständigen Bausachverständigen reden. Nicht das bei der Einreichung das Erwachen kommt. Die Garage benötigt vermutlich eine eigene tragende Wand.
Die stiege wird ich nicht nur viertel wendeln sondern um 180 Grad. Dann kommt man im OG mittig heraus und erspart sich dadurch viel unnötigen Gang im OG. Dadurch kann man das SZ größer machen oder einen zusätzlichen AR .......... |
||
|
||
|
Ich verstehe dich jetzt nicht ganz.
Die Sachen die du ansprichst sind geklärt bzw. genau so wie du sie beschreibst. Also das mit der Garagendecke wurde heute abgekärt. Für die Stahlbetondecke werden 10cm gebraucht wo sie aufliegen kann. Meine Treppe kommt im OG (letztes Bild) genau mittig raus. Ich habe ja nichtmal 4m² Gang im OG. Also der Raum wird genutzt |
Dieser Thread wurde geschlossen, es sind keine weiteren Antworten möglich.Nächstes Thema: Meinungen erbeten
