Vom Neubau zum Altbau - Seite 2
|
|
||
|
Hallo
ich bin nur Laie aber wenn du die Fassadendämmung vorerst weglässt würde ich zumindest die Dachbodendecke anständig dämmen, dort geht die meiste Energie verloren. mfg Sektionschef |
||
|
||
|
Hallo,
die Dachbodendämmung wird mit der Innensanierung mitgemacht. Zwischen den Trambalken wird gedämmt und eine begehbare Dämmung zusätzlich aufgelegt. LG |
||
|
||
|
Neuer Zwischestand:
nicht benötigte Innenwände, Innenputz, Estrich und verputzte Schilfdecke wurden aus dem Haus geschmissen 110 Tonnen wurden entsorgt. Davon 2/3 durch meine Wenigkeit und meine GGin hat geschaufelt wie eine Wilde. Diese Woche soll hoffentlich eingereicht werden. Änderungen derzeit: Fassade: Aus Kostengründen Umstieg auf EPS-F 20cm Dalmatiner Premium 0,031W/mK der Fa. Capatect (300m2 - 23 tsd reichen eh) Beschattungen nur in Wohn und Schlafräumen bzw vorwiegend nur südseitig. 90/220 statt 80/204cm Innentüren Heizung bleibt noch beim alten Gaskessel, jedoch mit allen Vorbereitungen zum Umstieg auf eine Alternativquelle. (K*llar oder Sch*auer werden das Rennen machen für Umbau und Rohinstallationen) Ich weiss noch nicht, ob ich die 2 Schachtbrunnen gleich machen soll (ca.5 tsd), da ich in ein paar Jahren wieder den Garten zerstören will. Deto für Pool. Haben gleich in der Nähe das Freibad. Jahreskarte 80.- zu 10-20tsd Euro für einen Pool. Schwierige Frage. Ruhig zuhause liegen mit höheren Kosten und Arbeit oder ab ins Freibad und mit Hunderten plantschen? LG |
||
|
||
|
cooles projekt, gratulation. |
||
|
||
|
so ist es bei mir auch gekommen und nun saniere ich 140m² aus dem Jahre 1936 genau vor diesem Problem stehe ich auch. Bei mir habe ich Beobachten können das es nur dort feucht ist wo die betonierte Regenrinne sich gesetzt hat und sich das Wasser etwas staut. Jedoch werde ich den Keller neu Aufbauen müssen da die Raumhöhe zu gering ist wenn ich an der Kellerdecke dämme. Außerdem liegt meine Wasserzuleitung noch halb/halb im Beton, somit alles raus, tiefer koffern und dann gleich mit Isolierung, Dämmung & FBH neu aufbauen. Außen wird nichts gemacht da ich das Regenwasser in einer Zisterne zusammenfangen möchte. ist war bei uns auch ein Thema, ebenfalls das der Charakter vom Haus erhalten bleibt, Mansardendach! ![]() ich bin gerade am Schüttung OG, schaufeln >:( Fenster hast du schon? Eventuell kann ich dir da noch etwas helfen, Bekannter von mir ist Selbständig und hat mir einen sehr guten Preis machen können, habe ich auch schon an ein Forumsmitglied weiter vermittelt. Bei Interesse schreib mir kurz... hoffe es hält sich bei mir in grenzen... muss aber auch Wände versetzten und Schilfdecke runter... Hast da einen tipp für mich wie ich die am schnellsten runter bekomme? zum Thema Pool kann ich dir nur sagen, hatte einen (6x3) und vermisse ihn wenn es sehr warm ist und bin froh das er nicht da ist wenn Tochter alleine im Garten spielt. somit ein lachendes und ein weinendes Auge Werde mir aber keinen mehr bauen, Freibad in der nähe wie bei dir |
||
|
||
|
Bei mir bleibt der Keller nur Heiz- und Lagerraum bzw für die Poolpumpe und -technik, falls die Vibrationen wenig ausfallen, falls ein Pool überhaupt kommt. Ich habe 220cm RH, allerdings 190cm bei den Unterzügen, die alle 100cm auf meine Stirn wartet (Ich, 198cm) Werde auf der KG Decke 10cm Schüttung über den Elektroleitungen legen, und zwischen den Unterzügen 10-15cm Platten anbringen. Welches System ich genau mache, weiss ich leider noch nicht. Wird eins der letzten Arbetien werden. Habe Holz/Alu vom Bruckner, sehr gutes Angebot, Vergleich zu andere ANbieter billiger als KST/Alu, und halbe Montagekosten 30tsd über 20 Fenster, 1xHST 4m, 1x3m Fenster, 1x 2,7m Balkontür, teils Raff, teils Rollläden, inkl. geiler Haustür (Fotos folgen hoffentlich bald) exkl. Montage Der Schilfdecke geht man mit der Spitzschaufel am Besten an den Kragen. Da gehen die m2 weiter. LG |
||
|
||
|
da bin ich noch Welten davon entfernt.. liege momentan fast 30% über meinem besten Holz/Alu Angebot ~13.000€ habe aber noch nicht mit ihnen direkt gesprochen. Mal schauen was noch drinnen ist. wie soll ich das verstehen? Einmal unter das Schilf und dann wie beim Eiskratzen? |
||
|
||
|
und voll Pulle durchziehen/schieben |
||
|
||
|
Von welcher Schneebergregion kommst du, maider187?
Wenn du willst auch PN |
||
|
||
|
2734 |
||
|
||
Es gibt nur eine, alle anderen sind Trittbrettfahrer f |
||
|
||
|
|
||
|
||
|
|
||
|
||
|
|
||
|
||
|
Hallo
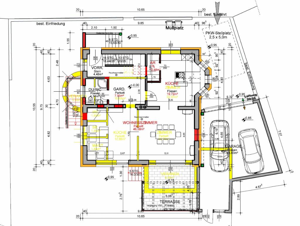
Einreichplan erledigt, morgen wird eingereicht! Wieder einen Punkt abgeschlossen und dem Ziel näher. LG |
||
|
||
auch a bissl was zu tun
Warum hast du letztens nach der Region gefragt? |
||
|
||
|
Weil du keine PLZ hinterlegt hast!
A bissl was, das trifft es! Jetzt muss ich mich fürs Grobe mit den Baufirmen vergnügen, und parallel mit meinem baldigen Heizer den Heizungsumbau vornehmen. Die Koordination der Auserwählten wird auch lustig. LG |
||
|
||
|
Zwischenzeitlich hat sich einiges getan.
Runder Erker weg Wintergarten weg Einzelgarage und restliche Garage weg Traufenpflaster weg Aushub für Terassenzubau mit Kellerabgang Poolaushub 1,5 Wochen wurde mit großem Gerät gebaggert, parallel mehrere LKW im Einsatz (Entsorgungskosten lassen grüßen) Betoniert wurden Kellerplatte, Kellerwände, Poolplatte, Terassenplatte Angepasst wurden bereits die meisten Fensteröffnungen, nächste Woche kann mein Fensterbauer kommen (juhu) Dachbodenstiege installiert, 3x Holztram ausgetauscht, in Zwischendecke und Dachgeschoßdecke jeweils 15m2 neue Tram eingebunden und verschlossen. LG |
||
|
||
|
gratulation!
nachdem du uns erfolgreich angefixt hast brauchen wir B I L D E R !!! |
||
|
||
|
|
||
|
||
|
Foto 1, alles was grünt, gehört weg
Foto 2, die rote Rose wird für meine Herzensdame gerettet Foto 3, Bauherr hofft, dass das Gebäude stehen bleibt |
Dieser Thread wurde geschlossen, es sind keine weiteren Antworten möglich.