Sanierung 60er Jahre Bungalow - Seite 2
|
|
||
|
Sorry, ich bekomme gerade Magenweh: Ich hoffe das mit Demontage Welleternit und Wiedermontage Welleternit ist ein verfrühter Aprilscherz. Da werden mir vermutlich alle Kollegen vom Fach zustimmen. Da kann ich wirklich nur mit allergrößter Deutlichkeit dringend davon abraten!! Altes Welleternit wird porös. Wenn man es demontiert und wieder montiert werden sich duch die mechanische Belastung noch mehr Mikrorisse bilden und noch schneller undicht werden. Noch dazu bekommst du die Schrauben nie wieder passgenau und dicht in die bestehenden Löcher. Da ist ein kapitaler Schaden vorprogrammiert. Bitte spart lieber bei sonst irgendetwas anderem ein, aber auf ein altes Eternitdach zu setzen, das ist leichtsinnig. Da gebe ich euch kein Jahr, bis die ersten Schäden eintreten und dann wird die Sanierung teuer. Noch dazu fällt mir auch keine seriöse Firma ein, die das tatsächlich in der heutigen Zeit noch umsetzt. Elektriker betreten zB heutzutage oft nicht einmal mehr Eternitdächer aus Angst vor Schadensersatzforderungen nach erfolgten Arbeiten durch Mikrorisse (wer war als letzter am Dach? Der hat es kaputt gemacht!). Und da spreche ich noch gar nicht von der Gefährlichkeit von Asbest. Natürlich kostet die Entsorgung. Aber die Kosten der Entsorgung werden in Zukunft noch deutlich teurer werden. Auch werden es beim Wiederverkauf Häuser mit Eternitdächer schwerer haben durch die Altlast. Bitte nicht! Es ist nur in eurem Sinne!! PS: Ich hab mir die Foto angesehen. Ist das Haus zufällig in der Gegend Marchegg, Breitensee oder Lassee? Ich kenne da eine Siedlung mit so ähnlichen Häusern... |
||
|
||
|
Keine Sorge, ich hab schon laut geschrien, bei Eternit wieder raus. Ich denke, es wird fix neu eingedeckt. Bin da voll und ganz bei dir… glaube auch kaum, dass man noch eine Firma findet.
Haus ist nicht östlich (Lassee) sondern südlich von Wien.
@ds50 : danke für den Hinweis. Es kommt hoffentlich ein guter HT an Bord, der das berücksichtigt.
Bei Zellulose müsste man halt den kompletten Fassadenaufbau preislich mit der EPS Fassade vergleichen. Glaube Zellulose bietet in der Sanierung viele Vorteile.
|
||
|
||
|
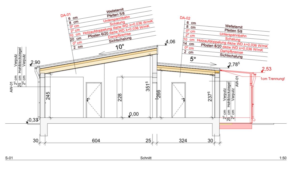
Mal wieder ein Update: So sehen die Pläne für den Umbau aus Bestand ![]() Sanierung ![]() Schnitt ![]() Elektro ist folgendes geplant: - Erstellung eines eigenen Kreises für Arbeitssteckdosen/Geräte (derzeit ist alles in einem Kreis) - Einbau eines Durchlauferhitzers (21 kW) im Badezimmer - Anschluss für ein Klima-Außengerät mit 3 Inneneinheiten - Anschluss für eine Waschmaschine - Einbau von Steckdosen und Lichtauslässen in einem geplanten Gartenhaus - Einbau einiger neuer Steckdosen im Haus - Verlegung einer Steckdose und Leitung (Die Wände unterhalb der beiden Fenster neben der Terrassentür im Wohnzimmer werden weggerissen und in einer der beiden Wände befindet sich eine Steckdose und die Leitung zur Außenbeleuchtung am See) - Anschluss für elektrische Vertikalmarkisen bei den Fenstern der Terrassenfront sowie im Schlafzimmer Installateur: - Lieferung und Montage eines Split-Klima-Geräts mit 3 Inneneinheiten (WLAN-fähig um Fernsteuerung zu ermöglichen, wenn man nicht vor Ort ist) - Abriss des derzeitigen Badezimmers und Entfernung der alten Fliesen - Lieferung und Montage der neuen Sanitärobjekte - Einbau eines Waschmaschinenanschlusses im Zimmer gegenüber dem Badezimmer was schätzt ihr Kosten diese beiden Gewerke je? Natürlich exklusive der Sanitärobjekte... Fenster Angebote liegen auch schon vor für - Terrassenfront - Schlafzimmerfenster - zerstört Terassentür und Fixglas im neuen Arbeitszimmer - Raffs im Süden (Terrasse und Schlafzimmer) habt ihr vielleicht Empfehlungen für Südliches NÖ - Installateur und Elektriker? Fassade würde vorerst nicht gemacht werden(Förderung sollte sich auch mit Dach und Fenstern ausgehen) |
||
|
||
|
Wenn die Außenwanddämmung nicht gleich mit gemacht wird, dann würde ich die Anschlussdetails Außenwand/Dach und Außenwand/Fenster gleich möglichst mit planen. Zum Bspl. wie dämmst das Wandstück später einmal (bzw. die Abdichtung): ![]() |
||
|
||
|
Das stimmt natürlich. Bin nicht sicher, ob sie die Fassade überhaupt machen. Ist nur ein Sommerhaus... Dach dämmen und Raffs vor den Fenstern sollte genug Hitzeschutz geben. Aber wenn man die Fassade iwann machen will, muss es bedacht werden |
||
|
||
|
Allgemein Dachüberstände für späteres Dämmen vorbereiten würde ich sagen. Keine Ahnung was Splitklima kostet mit der Verlegung, sollte in einer Woche mit 2 Mann erledigt sein. Beim insti für Leitungen und Arbeitszeit würde ich 10K veranschlagen. Beim Elli 10-12k. Ist halt die Frage ob der Stromverteiler auch komplett dabei ist. Wäre jetzt so meine Einschätzung, hoff ich lieg net zu weit daneben |
||
|
||
|
Die ersten Angebote sind da. Elektriker geht extrem stark auseinander... Angebot 1 (ohne DLE!) ![]() ![]() ![]() Elektriker war vor Ort und hat auch alles angesehen. Holzdosen, aber PVC Rohre, alte Erdung (rot) |
||
|
||
Angebot 2 Ich finde beide Angebote sehr schwer zu vergleichen, da beim zweitem die Arbeit anscheinend in den Pauschalen mit drin ist. Aber, soweit ich es erkennen kann, ist es kein Regie Angebot. Was sagt ihr dazu? |
||
|
||
|
Hast eigentlich recht gut geschätzt 😊 |
||
|
||
Bei Angebot 1 wieder folgendes berücksichtigt: |
||
|
||
|
Hallo liebes Forum, hier die Schwester von Selma und Bauherrin dieses Projekts :) Unser Projekt ist jetzt schon weiter fortgeschritten und folgende Punkte haben sich noch geändert: - WWS statt DLE, weil wir nur einen 18 kW (maximal einen 21 kW) DLE installieren könnten und da reicht mir die Wasserdurchflussmenge nicht zum Haare waschen (und färben ;)) - Fassade wird nun auch gedämmt, damit wir die 40% Energieeffizienzsteigerung für die Förderung erreichen - Dach wird komplett neu gedeckt (vermutlich Prefa Alu) und mit Zellulose gedämmt - Fenster werden alle (bis auf Küche, das wurde letztes Jahr neu gemacht) getauscht Wir haben nun große Sorge, dass wir ein Schimmelproblem bekommen könnten: Das Haus ist im Winter nicht geheizt (nur Frostwächter). Die Wände sind nach der Sanierung gedämmt, die Fenster dicht (bisher waren die wirklich wie in einem Vogelhaus, weshalb es an Belüftung nicht gemangelt hat). Und schon jetzt haben wir immer wieder an den Wänden unten leichte Ausblühungen, vermutlich von aufsteigender Feuchtigkeit. Was wir fix einbauen ist eine dezentrale Lüfung. Geplant wäre nur im BZ, aber wir überlegen jetzt eher auch eine zweite im WZ einzubauen. Fassade soll mit EPS gedämmt werden. Wäre da eine Dämmung mit Zellulose besser? Beim Dach ist die Dämmung mit Zellulose sogar günstiger, als die ursprünglich geplante. Ich fürchte aber bei den Wänden wird das dann sehr viel teurer. Sind ca. 112 m² Fassade. Für Feedback wäre ich dankbar :) |
||
|
||
|
Aufsteigende Feuchtigkeit hat nix mit einer Lüftung zu tun. Die aufsteigende Feuchtigkeit hast (sicher, dass es das ist?) weil das Fundament/Wand Wasser zieht und das nach oben wandert. Ohne horizontal Sperre wird das IMMER da sein, egal ob du eine Lüftung verbaust oder nicht. Die Ausblühungen entstehen ja, weil der Putz sich ansäuft mit Wasser und da drin gelöste Salze sind. Irgendwann ist der Putz voll davon und kann nix mehr aufnehmen. Wenn der trocknet, dann kristallisiert das. Egal bei welcher Luftfeuchtigkeit. Eine dezentrale Lüftung bringt dir halt die Luftfeuchtigkeit raus und hilft gegen Schimmel, aber die Wand wird deswegen nicht trocken |
||
|
||
|
danke, das klingt einleuchtend. Also solange wir nicht nach unten Richtung Boden isolieren, werden wir immer wieder Ausblühungen haben, weil sich die Feuchtigkeit hochzieht? Aber das bewirkt nicht unbedingt Schimmel, solange wir die Luftfeuchtigkeit zB mit dezentraler Lüftung gering halten? Sind denn die Ausblühungen problematisch? Oder nur nervig, weil nicht schön? Das Haus hat keine Keller und ist aus den frühen 60er Jahren. Wir wissen leider nicht wie es mit horizontaler Sperre aussieht. Die Ausblühungen sind immer nur ganz unten an den Mauern (auch nur an einigen wenigen Stellen), meistens hinter den Sockelleisten, und nicht stark ausgeprägt. Die aufsteigende Feuchte haben wir hier im Haus halt schon immer, die ist nicht neu. Ich habe mich nur gefragt, ob sich das verschlechtert, durch die bessere Isolierung des Hauses durch Dämmung von Fassade und Dach? |
||
|
||
|
Wird besser werden (sehe ich bei unserem Keller grad), aber grundsätzlich ändert die Lüftung nix an der Feuchtigkeit. Also ja. Das spricht eben dafür, dass es aufsteigende Feuchtigkeit ist, sonst wär's auch überall. Feuchtigkeit kann halt die Substanz schädigen und sollte schon einmal angegangen werden. Klar wird's mieser wenn ihr alles abdichtet und die Luftfeuchtigkeit dann zusätzlich dazu kommt, die nimmt der Putz ja nochmal mit auf. Deswegen unbedingt eine Lüftung einplanen aber später auch Mal an die horizontale Abdichtung denken. Besser wird's bestimmt nicht |
||
|
||
|
Alles klar! Werden wahrscheinlich 2 Lüfter (Bad und WZ) einbauen. Und das mit der horizontalen Abdichtung gehen wir dann an, wenn wir nicht mehr komplett pleite sind ;) Danke dir für die Auskunft und den Ratschlag! |
||
|
||
|
Ich denke ihr solltet das Problem mit der aufsteigenden Feuchtigkeit vorab lösen. Wenn die Fassade gemacht is wirds richtig übel da ran zu kommen und ihr sperrt nach außen ab. Das heißt die Feuchte muss innen raus, da wirds denke ich sogar eher schlimmer. |
||
|
||
|
Ja, es wäre sicher am sinnvollsten das gleich zu machen und erst danach die Fassade. Problem ist: Es geht sich finanziell nicht mehr aus... Und die aufsteigende Feuchte war bis dato zwar sichtbar, aber nie ein Problem. Wenn sie durch die Fassadenabdichtung nun heftiger wird, wäre das natürlich sehr suboptimal. Meinst du bisher wurde etwas von der aufsteigenden Feuchte nach außen abgegeben und das wäre dann nicht mehr möglich, weil neue Fassade? |
||
|
||
|
Bei gedämmter Fassade sperrt du nach außen definitiv ab, dann geht's nur noch nach innen. Horizontalsperre ist mMn unverzichtbar |
||
|
||
|
Es haben sich bei uns im Zuge der Baustelle nun 2 weitere Fragen ergeben: 1.) Dezentrale Wohnraumlüftung Wir haben uns 2 Geräte von Südwind Ambientika gekauft, die wir möglichst weit von einander entfernt platzieren wollen, damit sie einen guten Luftaustausch im ganzen Haus ermöglichen. Ein Gerät ist fix im Arbeitszimmer geplant (Position in hellgrün am Plan). Jetzt ist die Frage, wo wir das zweite Gerät positionieren. Ursprünglich war in der Küche geplant, aber da ist nicht genug Platz an der Außenwand. Wir haben nun die Option es im Wohnzimmer (blaues X) oder im Haushaltsraum, in dem sich dann Waschmaschine, Boiler usw. befinden (rosa X) zu positionieren. Von grün zu rosa wäre der längste Weg durch alle Räume durch, aber die Geräte wären dann an einer sehr ähnlichen Stelle am Haus außen positioniert. Wäre das ein Problem? Von grün zu blau wäre nicht so ein langer Weg durch viele Räume, aber am anderen Ende des Hauses. Was meint ihr wäre die bessere Position? 2.) Kanallüftung Wir haben ein Kanalbelüftungsrohr geplant und der Installateur hat es nun schon entlang der Wand im Badezimmer nach oben geführt. Das Bad ist sehr klein, weshalb wir nicht viel Spielraum bei der Positionierung haben. Es verläuft nun hinter dem WC in einer Vormauerung, die für den versenkten Spülkasten gemacht wird. Nun hat der Dachdecker/Spengler das Loch in das Dach und die Dämmung (Zellulosedämmung) geschnitten. Leider hat er das Loch scheinbar einfach "irgendwo" gemacht. Das Rohr, das vom Dach aus kommt ist nun einfach mitten im Badezimmer, ca. 50-60cm von der Stelle entfernt, wo es sein sollte (wo das Kanallüftungsrohr nach oben führt). Wir werden den Dachdecker nun auffordern, dass er das verbessert. Für uns stellt sich aber die Frage, ob das so überhaupt noch verbesserbar ist. Nun ist ja ein Loch im Aludach, in der Dämmung, der Dampfbremse etc. Kann das so einfach ausgebessert werden oder ist das nun so eine "Sollbruchstelle" für das Dach, wo wir dann immer mit Feuchtigkeitseintritt oder mangelnder Dämmung zu rechnen haben? Vielen Dank euch für euer Feedback :) |
||
|
||
|
Hallo Selma, hier gibt es dazu Erfahrungen und Preise: Sanierung 60er Jahre Bungalow |
||
|
||
|
Danke nochmal für den Hinweis. Wir lassen jetzt Probebohrungen machen, ob wir ein Problem mit aufsteigender Feuchte haben. Falls ja, lassen wir die Horizontalsperre mit Bohrlochkette noch machen. Es geht sich zum Glück jetzt vom Budget noch aus. |
||
|
||
|
Stell mal Fotos rein, Louise ;) |
Beitrag schreiben / Werbung ausblenden?
Einloggen
Kostenlos registrieren [Mehr Infos]



















