Feedback zu Heizungs- und Sanitärplanung durch Ingenieurbüro - EFH - Seite 2
|
|
||
|
wir haben schon dutzende planungen von der seite zur neuauslegung bekommen. die normheizlast paßt immer - kein wunder dort wird ja auch mit der forumstabelle aus dem htd-forum gearbeitet. aber heizflächenauslegung ist immer mehr oder weniger unbrauchbar. standardsoftware nimmt immer den verlegeabstand fix und errechnet aus der raumweisen heizlast den volumenstrom. das war schon früher nicht optimal, aber seit modulation & variable wasserumlaufmengen standard sind funktioniert es schlicht nicht mehr. flow30 hat daher den paradigmenwechsel vollzogen und nimmt die kreislänge fix und den verlegeabstand variabel. dieser hat nämlich nur 1/10 des einflußes auf die heizleistung gegenüber der fläche. nur so ist ein hydraulischer abgleich bei unterschiedlichen volumenströmen überhaupt machbar, weil der druckverlust nicht linear sondern exponentiell mit dem volumenstrom steigt. der zweite punkt ist daß eine rein verlustbilanzierte heizlast im neubau nicht mehr funktioniert. die EN12831 ist daher in A auch nur für altbauten mit einem mittleren u-wert > 0,5W/m2K zulässig. dort spielen innere & solare gewinne eine untergeordnete rolle. wir simulieren daher raumweise und füttern mit dem ergebnis den flowplanner. dort planen wir die kreislängen auf +/- 10% unterschied. manchmal auch weniger ... 😉 eine solche auslegung hat den hydraulischen abgleich schon per planung erledigt und kann daher voll offen ohne eingedrosselte kreise betrieben werden. die errechneten volumenströme der kreise sind am verteilerbalken real umsetzbar & ablesbar. dies ist das einzige hydraulische system das über alle betriebspunkte gleitend von übergangszeit zu typischem winter bis sibirischer woche stabil ist... https://www.energiesparhaus.at/forum-romsch-fbh-planung-verlegung/84488
|
||
|
||
|
Ich habe dir nun einen Hilferuf geschickt. - ich hoffe, ihr könnt mir kurzfristig sagen, wie ich die BKA BKA [Betonkernaktivierung] vom EG anders verlegen soll. Der Rest ist dann nicht mehr so zeitkritisch. |
||
|
||
|
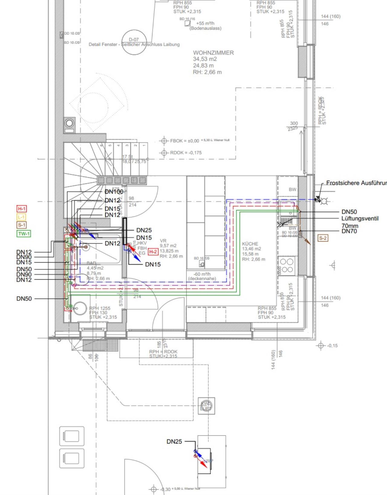
mein Hilferuf wurde gehört und Büro Komposch hat sich meiner Heizungsplanung angenommen 😀 Das frostige Wetter hat mir auch etwas Zeit verschafft. Die Decke wird vorraussichtlich erst am Donnerstag betoniert. Ich teile hier mal meine BKA BKA [Betonkernaktivierung] Verlegung vom EG: Vorgabe vom Büro Komposch waren bei mir die Zonen, mit dem Verlegeabstand. Verlegt habe ich mit 20mm Mehrschichtverbundrohr (Aluverbundrohr). Ich habe in LoopCad dann nochmal die Verlegung genau gezeichnet, und musste die Verlegeabstände etwas anpassen, damit ich die Kreislängen beibehalten konnte. Das Badezimmer vom EG wird mit dem OG später zusammengeschlossen, sodass dieser Kreis auch 100m länge hat. Die FBH FBH [Fußbodenheizung] Kreise werden dann mit 16mm Rohr ausgeführt. Hier werden angeblich etwa 70m angesetzt werden um die hydraulik über alle Betriebspunkte gut abgleichen zu können. Mit dem grünen Pfeil habe ich jeweils die Kreismitte markiert, um beim Verlegen feedback zu haben ob ich noch im Soll bin. Verlegt habe ich im Doppelmeander. Das hat mir auch beim Rücklauf erlaubt mit der letzten Schleife ein etwaiges Längendefizit auszugleichen. Doppelmeander finde ich auch einfacher zu verlegen, da man nur jede zweite Schleife eng biegen muss, und es weniger Temperatur-Gradienten über die Fläche gibt. - Richtung Vorlauf und Rücklauf ist auch egal. Randbügel waren bereits lose verbaut sowie die Plattenstoßbewehrung. Ich musste 8 Stegträger aufschneiden (Rote Lininie im Screenshot oben) - das war aber auch nach Rücksprache mit meinem Statiker kein Problem (ich musste dann nur mit 40cm übergriff wieder Eisen ausbessern). Die Verlegung bei den Randbügeln war am zeitintensivsten - aber nachdem ich nicht wollte dass noch viel von den Bauarbeitern auf der verlegten BKA BKA [Betonkernaktivierung] herumgestiegen werden muss, ist mir das so lieber. Gebunden habe ich mittels Kabelbinder auf die Plattenstoßbewehrung (~400 Stück), an Stellen wo nichts passends zum anbinden war dann mit Fixpins und Band (~100 Stück) Aufnahme Luftbild - teilweise habe ich die Positionen noch schöner gebunden, besonders im Ortbetonfeld sind die Schleifen noch lose, da noch Dübelleisten (Durchstanzbewehrung) installiert werden und sich der BM nicht unnötig plagen soll. Den Übergang habe ich mit Leerrohren geschützt und die Durchbruchabschalung entsprechend ausgeschnitten und ausgeschäumt. Die Enden habe ich zu einem großen Kries verpresst und mit Druckluft auf 4 Bar gedrückt. Derzeit hält sich der Druck seit 2 Tagen konstant. (Temperatur auch gleich geblieben...) Das Mehrschichtverbundrohr hält aber beim Verlegen einiges aus. Testweise habe ich ein Reststück auf eine Stoßbewehrung gelegt und so quasi punktuell mit meinem vollen Gewicht belastet. Mehr als eine kleine Delle war dann nicht im Rohr. Abgewickelt habe ich mit einer Rohrabwickelhaspel. Dabei hat einer die Abwicklung gemacht und versucht immer etwa 5-10m Rohr vorzuhalten. Der andere hat dann die Schlaufen gelegt und mit Kabelbindern fixiert. Wir hatten auch versucht "abzurollen" direkt beim Verlegen - da war das Aluverbundrohr aber zu bockig - besonders bei den Schleifen. Ich habe das zum ersten mal gemacht, und nun für diese Decke (70m², 330m Rohr) etwa 10 Stunden benötigt. Beim Obergeschoß wird sich das Spiel wiederholen, da werde ich allerdings schon wissen wie es geht 😉 Falls sich jemand wundert über die Leerverrohrung: die Halox-Dosen werden über DALI angesteuert. Dabei kann ich immer 3 Dosen zu einem Netzteil/Treiber Zusammenschließen - das sind die Halox-Dosen mit Tunnel. Diese sind in Serie verrohrt. An machen Stellen habe ich dann "Backup" Verbindungen gelegt, und nochmal einen zweiten Auslass aus der Decke gelegt. - Kabel sind noch keine drin. Danke für euer Intermezzo zur verhunzten Planung von Büro He****nn - ihr habt mir die BKA BKA [Betonkernaktivierung] gerettet! LG BirnbauMax
|
||
|
||
|
Darf ich fragen was so eine Planung gekostet hat? |
||
|
||
|
Nachdem dieses Büro auf ihrer Seite ja auch offen Flow30 diffamiert kann man vielleicht ein Feedback über die - zumindest teilweise - versenkten 1700€ schreiben. Anderseits würden sie es ja eh nicht verstehen, schätze ich. 🥸 Deswegen auch der richtige Passus auf ihrer HP: "Wir erstellen grundsätzlich keine Auslegungen nach Flow30. Auch nicht gegen Aufpreis! Wünschen Sie zwingend eine entsprechende Planung, dann suchen Sie sich bitte ein anderes Planungsbüro." Dem ist nichts hinzuzufügen. 😅 |
||
|
||
|
Mit den nun endlich wärmeren Temperaturen schreitet bei mir die Baustelle gut voran - heute kommt der Beton auf die OG Decke. Nachdem ich von der EG-Decke schon Erfahrung sammeln konnte ging die Verlegung der OG BKA BKA [Betonkernaktivierung] rucki-zucki. Ablauf war wieder der gleiche. Für die Halox Dosen habe ich diesmal etwas weniger robustes Leerrohr Verwendet. Hier reicht auch einer Trittfestigkeit von >750N aus, was nur halb so teuer war wie das "schwere" welches ich noch im EG verlegt hatte. Es gibt für fast jeden Pfad eine zweite Route, falls sich beim Betonieren eine Verbindung lösen oder beschädigen sollte. Ich habe mich zwecks Einfachheit für eine etwas andere Verlegetechnik der BKA BKA [Betonkernaktivierung] Leitungen entschieden - dabei waren keine so engen Biegungen notwendig. (Siehe Aufnahme) Gibt es hierbei einen Nachteil den ich übersehen habe? - bzw. wie heißt diese Technik? Aufgrund der Elementdecke und der vorhandenen Stoßbewehrung war ohnehin ein 100%iges planes Aufliegen der Rohre unmöglich, daher dachte ich mir machen die Kreuzungen auch keinen merklichen Unterschied. Es sind wie in der EG Decke nun wieder 4 Kreise - der Badezimmerkreis ist mit dem des EG verbunden, womit jeder Kreis knappe 100m Länge aufweist. |
||
|
||
|
das ist doppelmäander, sehr gut geeignet... wichtig ist nur die flächenschnitte und den abstandsraster lt planung einzuhalten damit die kreislängen und die heiz/kühlflächenzuordnung korrekt rauskommen... 👍 |
Beitrag schreiben / Werbung ausblenden?
Einloggen
Kostenlos registrieren [Mehr Infos]






















