Auslegung FBH- so sieht der Supergau aus - Seite 4
|
|
||
|
stimmt! die abgabe in den raum geht über den strahlungsaustausch heizfläche<->körper im raum, aber die gesamte masse des estrichs wird durchgeladen -> siehe BKA BKA [Betonkernaktivierung]...
|
||
|
||
je nach system/anlage/haus kommen vorm verteiler sehr viele leitungen zusammen. wenn man bsplw das bad weiter entfernt hat will man nicht wertvollen vorlauf auf dem weg dorthin verlieren. außerdem soll das bad der wärmste raum im haus sein und nicht der platz vorm verteiler...
![]() |
||
|
||
|
stimmt!
leider nicht ... ;-( das ganze geht exponentiell und hängt auch noch vom arbeitspunkt ab - und derer gibt es bei modulation viele. das ist quasi die dritte dimension der haustechnik... die tabelle rechnet auch für on/off und nicht für modulation. bei on/off wird permanent in einer variante (100%) in zyklen geladen und entladen, bei modulation gibt es einen eingeschwungenen zustand in zahllosen varianten... man hat hier einfach eine menge zielkonflikte zu lösen. die klassische software zur heizflächenauslegung hält den verlegeabstand fest und rechnet einen individuellen volumenstrom. den ansatz finde ich mittlerweile weit überholt. ich versuche den druckverlust über den modulationsbereich zu balancieren, und das geht überhaupt nur mit gleichlangen kreisen. zum ausgleichen kann man den verlegeabstand nehmen. fläche sticht rohrabstand. wenn ich auf 1m² fläche 10m rohr packe, und dann nochmals 10m dazugebe bekomme ich 10% mehr leistung. lege ich die zweiten 10m aber daneben hin verdoppelt sich die leistung. man kann ja gut variieren. warum 10 oder 5cm? einfach 10 UND 5cm verlegen, dazwischen noch 7,5 zum ausgleichen der kreislängen... ![]() |
||
|
||
|
@dyarne: unter welchen Bedingungen sollte man dann bei einer modulierenden WP WP [Wärmepumpe] den thermischen Abgleich machen? Ist dies überhaupt sinnvoll möglich? In meinem Fall bin ich froh, dass der Heizungsbauer versucht hat, meine FBH FBH [Fußbodenheizung]-Auslegung umzusetzen. Ich bin gespannt, wie sich dies in der Praxis auswirkt... |
||
|
||
|
servus maik, einfach im realbetrieb.
je besser gedämmt das haus ist umso unwichtiger wird der punkt. die wunschwohlfühltemperatur wird wie gehabt einfach über die heizkurve und verschiebung eingestellt... wir haben immer nur probleme wenn die bauherren beim einzug die werte von irgendwelchen berechnungen an den flowmetern einstellen wollen ...
diese sind ja rein theoretischer natur (ohne innere&solare gewinne) und für vollast berechnet. dort läuft eine modulierende maschine aber nie... im prinzip macht die modulation ja alles besser und einfacher. es gelten bloß neue regeln... |
||
|
||
|
nächste Woche kommt endlich die Schüttung rein dann kann der Installateur endlich an die FBH FBH [Fußbodenheizung] ran und dann ist der Dreck raus und wir haben es endlich geschafft, dann muss das ganze eh erstmal 2-3 Monate ruhen Bodenaufbau sieht bei uns wie folgt am Ende aus von oben nach unten ca. 65cm insgesamt Fliesen ca. 1,5cm Kleber ca. 0,5cm Estrich ohne Zusatzmittel und sonstiges 6cm FBH Gitter Mineralwolle 3cm Thermotecschüttung 10cm KSD Baudertec Bopla weiss 25cm XPS 12cm Sauberkeitsschicht ca. 6cm |
||
|
||
|
@ dyarne unglaublich was man erlebt, der insti scheint es ja doch zu können, wenn nan den plan von seite 1 mit den neuen vergleicht |
||
|
||
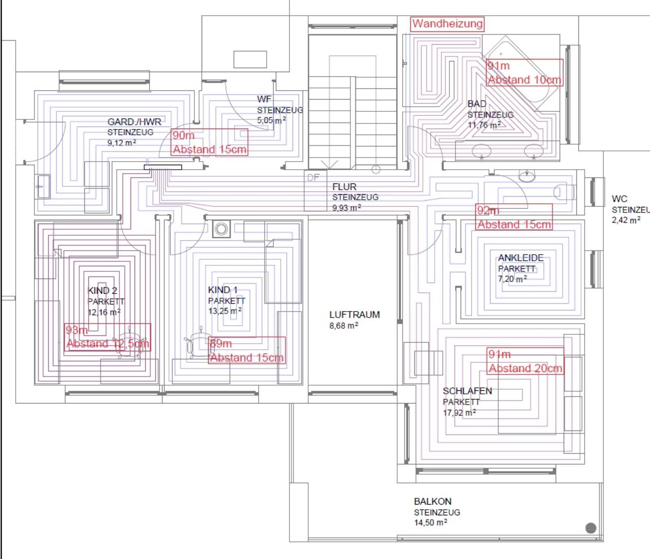
und das UG Verhältnis kürzester 89 zu längstem Kreis 94 1: 1,06 ![]() |
||
|
||
|
na schau her. das sieht doch richtig gut aus. Voraussgesetzt das passt jetzt zu den erforderlichen Heizleistungen. Macht auf mich aber einen richtig guten Eindruck. |
||
|
||
|
ja das passt zu den Heizleistungen, da wir beim Bodenaufbau und dem Estrich auch nochmal aufgerüstet haben sind wir im Bad ohne die Wandheizung nun bei 98% Abdeckung. und nun bin ich wirklich am überlegen ob ich die Wandheizung noch mache (verputzt ist nämlich schon) oder ob ich es lasse |
||
|
||
|
@maack Na also, es geht doch. Noch viel Freude am neuen Heim! Gruss EHD |
||
|
||
|
Super, maack, Gratulation! |
||
|
||
|
hehe, das kommt mir bekannt vor... ich habe zumindest eine Blindleitung gelegt...war aber ein bisschen ein Husch-Pfusch weil eigentlich kein Platz mehr für die Anbindeleitung war... |
||
|
||
|
das war die theorie und in der Praxis ist es das geworden UG Lager 89-96-94 m Wohnzimmer/Küche 91-93-90-87 m WC-Flur 95m EG Kind 2 90m Kind 1 92m Schlafzimmer 93m Ankleide-WC 96m Bad 90-90m ohne Wandheizung dafür auf VA5 verlegt teilweise unter der Wanne HWR-Windfang 90m Verhältnis um UG 1:1,10 wobei das Lager unwichtig ist und wir dort vermutl. nur temp. werden bzw. viell. auch nur einfach Tür zum Technikraum aufmachen um die Serverabwärme sinnvoll zu nutzen, Das Rohr kam halt rein weil es erstmal fast nix kostet und wer weiss was passiert wenn man Drillinge bekommt und plötzlich ein Raum fehlt und eine Ausbaureserve braucht Verhältnis im EG 1:1,07
|
||
|
||
|
Großartig!! Da brauchst ja gar keinen hydraulischen Abgleich mehr und kannst idealerweise alles voll offen betreiben - nur mehr thermisch sin bißchen spielen! |
||
|
||
streber |
||
|
||
|
der Robert Költringer ist ein sehr sehr guter mann... |
||
|
||
|
Vielleicht hat deshalb bei mir der Installateur auch keinen hydraulischen Abgleich gemacht, weil alle Kreise in etwa gleich lang sind (90-100m) |
||
|
||
|
@ dyarne stimmt der Robert ist ein sehr guter ich hab einen Vorschlag für andere Interessenten die 1255-6 sollte eigentl. schon längst auf der Baustelle sein aber der Schnee hat es bisher verhindert da Auffahrt zum Haus eisig wir planen nun das die bis Ende Januar aufgestellt wird und die Inbetriebnahmetechniker die dann freigeben besteht im Forum Interesse das die Konfiguration und Anpassung der Software, Strom kommt z.b. von Awattar und gehört auch umgestellt auf den hourly usw. von der 1255-6 viell. eine Gemeinschaftsveranstaltung wird ? Ganz gut wäre es wenn einer von den Spezialisten unter Euch viell. auch dabei wären wo dann Tipps direkt vor Ort geben können wo man was verändert und was es für Auswirkungen hat. nur so ein Gedankengang von mir, da ich viel aus dem Forum mitgenommen habe, würde ich unser Haus im Gegenzug für sowas zur Verfügung stellen, dann könnte man die theoretischen Leitfäden mit einem Praxisbeispiel unterlegen. Besteht an sowas Interesse PLZ wäre 5310 |
||
|
||
7 messen in 8 wochen ... |
||
|
||
nur noch einmal schlafen dann geht sie in betrieb |
Dieser Thread wurde geschlossen, es sind keine weiteren Antworten möglich.Nächstes Thema: Wärmepumpe am Dach







