EFH Hang

von oniel

Diese Seite wurde von unserem Mitglied 'oniel' gestaltet. Energiesparhaus.at übernimmt keine Gewähr für die Richtigkeit oder Vollständigkeit (Haftungsausschluss).

Anzahl der Bilder: 2 Galerieansicht

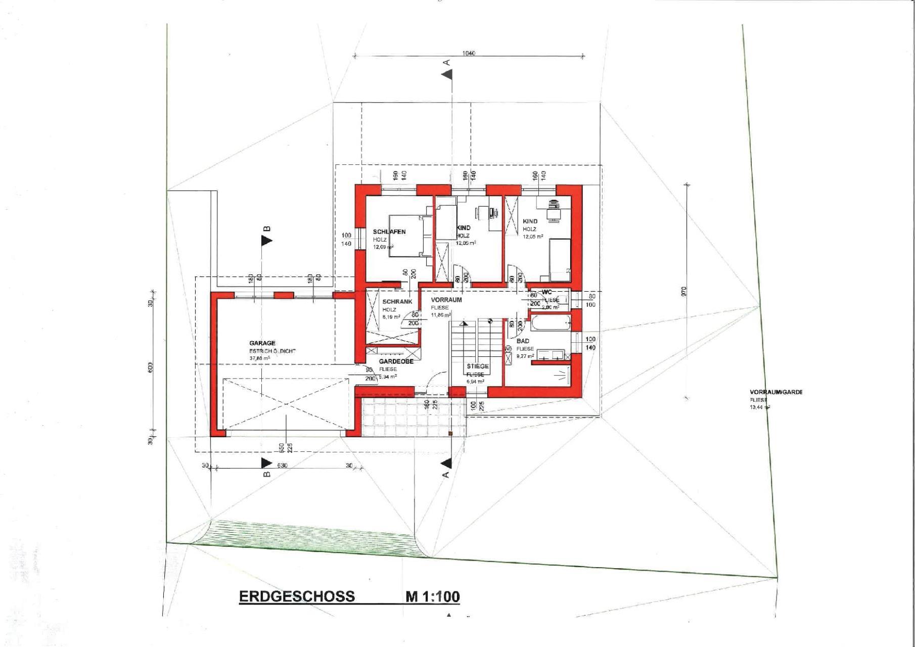
Erdgeschoss
Erdgeschoss


Kellergeschoss
Kellergeschoss