Zubau / Neubau in Holzriegelbauweise

von matwi

Diese Seite wurde von unserem Mitglied 'matwi' gestaltet. Energiesparhaus.at übernimmt keine Gewähr für die Richtigkeit oder Vollständigkeit (Haftungsausschluss).

Anzahl der Bilder: 1 Galerieansicht

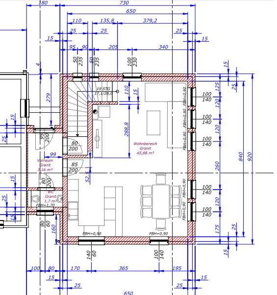
... der Plan ist soweit fertig :-)
... der Plan ist soweit fertig :-)
#BILD#20130123852168.JPG

#BILD#20130123290447.JPG