Grundrissplanung EFH 170m² - Meinungen, Verbesserungsvorschläge
|
|
||
|
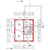
das "eventuell" würd ich gleich streichen ;) Garagentor mindestens 5,5m breit, wir haben 6m und ich würds keinen cm kleiner machen wollen. Bad im OG ist halt im kältesten Eck vom Haus, das Eltern-SZ dafür im wärmsten, könnte man tauschen. Oder Eltern mit Kind 1 tauschen. |
||
|
||
|
Wenn ihr schon mit Keller plant und dieser sogar einen eigenen Zugang von außen hat, dann würde ich gleich ein Bad im Keller vorbereiten. Falls ein Kind zum Nesthocker wird, könnt ihr Euch wenigstens aus dem Weg gehen. Dann natürlich auch die Räumlichkeiten dementsprechend planen. |
||
|
||
|
Danke für eure Tipps, Garagentor werden wir anpassen. Bei den Bädern haben wir darauf geachtet, dass sie übereinander sind und über dem Technikraum, um die Wege kurz zu halten. Den Gedanken mit dem Bad im Keller hatten wir tatsächlich auch schon, wir werden es zumindest vorbereiten. |
||
|
|
||
|
||
|
Durch 12er Mäuerchen hörst zwischen den Zimmern alles durch. Vielleicht mit Kästen wie bei dir besser, aber das war - neben der nicht vorhandenen KWL KWL [Kontrollierte Wohnraumlüftung] - wohl einer der größeren Baufehler bei uns. |
||
|
||
|
Denkst du, dass eine dickere Mauer dieses Problem schon ausreichend behebt oder bräuchte es da nicht andere Maßnahmen, wie zb Schalldämmplatten? |
||
|
||
|
Die Bedenken mit der 12er Wand im Elternschlafzimmer hatten wir tatsächlich auch schon, allerdings verlieren wir sonst nochmal ein paar Zentimeter Breite in diesem Raum. Und aufgrund der Baufluchtlinie können wir da nicht mehr breiter werden. Im Kinderzimmer wärs platztechnisch kein Problem, würdet ihr dort statt der 12er eine 25er Mauer machen? |
||
|
||
|
Ich erkenne es schlecht, aber für mich sieht der Plan so aus, als ob du beim Elternschlafzimmer nur zum Gang eine 12er Mauer hast, aber zum KiZi eh eine dickere. Dann wäre das für mich ok. Ich hab halt den direkten Vergleich: Bei einem Zimmer bei uns schließt ein anderes mit 12er Mauer an, auf der anderen Seite das Bad mit einer tragenden 25er Mauer. Wenn der Große einen Film ansieht hört man das leider im anderen Zimmer. Im Bad hingegen ist es ausreichend still. Eine 25er Mauer muss man sich auf jeden Fall statisch anschauen, die hat schon ein ordentliches Gewicht. Als Kompromiss gibt es auch 17er Ziegel - aber auf jeden Fall alles besser als die 12er. Ich würde mir bei wenig Platz ernsthaft schlau machen, ob nicht eine Trockenbauwand bei gleicher Dicke den Schall besser schluckt, aber da kenn ich mich nix aus. |
Beitrag schreiben oder Werbung ausblenden?
Einloggen
Kostenlos registrieren [Mehr Infos]








