"KWL-freundlicher" Grundriss, was muss ich beachten?
|
|
||
|
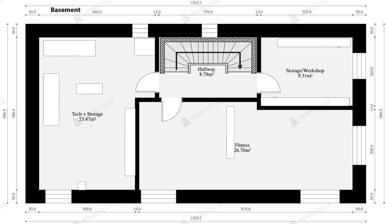
Du hast in jedem Stockwerk zentral einen Flur, den du mit abgehängter Decke für die Verteilung verwenden kannst. Vermutlich macht es Sinn, in der Wand gegenüber vom Stiegenhaus einen Schacht einzubauen, von dem aus du alle Stockwerke anbindest. Die Abluft in der Küche könntest du noch separat aus dem darunterliegenden Technikraum anbinden. Eigentlich aus Lüftungssicht ein fast idealer Grundriss. Hier findest du ganz viele Infos, auch zu Luftmengen- und Rohrdimensionierung: https://www.komfortlüftung.at/ |
||
|
||
|
Oh, danke, das erleichtert mich sehr zu hören! Ich hab daran jetzt schon eine Weile getüftelt und bin froh wenn ich nicht wieder ganz von vorne starten muss. Danke für den Link, den lese ich mir jetzt vollständig durch. https://www.xn--komfortlftung-3ob.at/einfamilienhaus/was-ist-eine-komfortlueftung/baum-oder-sternstruktur/ Wenn ich von dem Schacht im Flur ausgehend alles in Sternverrohrung verlege dann hätte ich einfachere Reinigungsmöglichkeit als in Baumstruktur und hoffentlich trotzdem relativ kurze Leitungswege. Wär das dann die beste Variante? Und der besagte Schacht, wäre das dann der allgemeine Technikschacht? Wie groß muss ich den planen um nicht zu viel Fläche zu verlieren aber trotzdem alles unterzubringen? 1 m x 0,30 m hab ich gerade als Minimum gelesen. Sollte es mehr sein? |
||
|
||
|
Sternverrohrung ist optimal, ja. Wie groß der Technikschacht sein muss, hängt davon ab, was alles durchgehen muss. Die Luftleitungen werden ca 160mm Durchmesser haben. Nur für die Lüftung genügen also 20x40cm. Die restliche Haustechnik müsste man halt noch planen. Ein paar Optimierungen könnte man am Grundriss noch vornehmen, da ist das Grundrissforum sehr hilfreich: https://www.energiesparhaus.at/Bauplan-und-Grundriss-Forum-95 |
||
|
|
||
|
||
|
Perfekt, danke für die Antwort, das hilft mir schon mal weiter. Ja ins Grundrissforum möchte ich auf jeden Fall noch posten. Ich lese mich jetzt mal ins Thema Schachtplanung für Haustechnik ein, versuche eine erste Version einzuzeichnen und dann mach ich das. (edit: oder vielleicht frage ich sofort, bin mir unsicher wie die beste Lösung wäre) Bin so froh dass es dieses Forum hier gibt! |
||
|
||
|
@sonnendeck Es ist eigentlich nicht zu früh, sich über die haustechnischen Anforderungen Gedanken zu machen. Wenn man ein paar Dinge im Plan berücksichtigt, kann man einiges an Kosten sparen und ermöglicht eine einfache Rohrführung, sowie eine effizientere und flexiblere Betriebsweise. Der Grundriss eignet sich ideal für die Sternverteilung im Flur wie christoph1703 schon bemerkt hat. Ich weiß nicht, wie das Stiegenauge (dort wo "Hallway" steht) genutzt werden soll, aber das wäre der ideale Ort für Steigleitungen der Lüftung, für die Heizungsleitungen, sowie FBH FBH [Fußbodenheizung]-Verteiler und die Elektroleitungen. Der Fitnessraum sollte eine eigene große Zuluftzuleitung mit Klappe bekommen, damit man im Bedarfsfall auch dort mehr Luft hinbekommt. Und dann gibt es je nach persönlichen Vorlieben noch einige Optionen. |
||
|
||
|
OK, ich war mir nicht sicher ob jetzt schon der richtige Zeitpunkt ist weil der Plan im Moment noch so grob und unsauber ist aber jetzt gut und effizient planen und dann später Kosten und Probleme möglichst reduzieren wär natürlich super und dafür bin ich hier :) Soll ich mich dafür also am Besten jetzt schon mit dem Formular per Mail melden? Edit: jetzt verstehe ich was mit "Stiegenauge" gemeint ist. Super Idee falls das geht! Über den Raum und den Keller im Allgemeinen hatte ich schon viel nachgedacht.Ich möchte dort wo es Sinn macht eine FBH FBH [Fußbodenheizung] verlegen, also zumindest im Fitnessraum. Weiß noch nicht was es für die Kosten bedeuten würde wenn ich sie auch in den anderen Räumen verlege. Wenn ich den Keller jetzt aber in die KWL KWL [Kontrollierte Wohnraumlüftung] mit einbeziehe, habe ich im Sommer dann nicht das Risiko dass es dort unten kondensiert und es dadurch erst recht zu Schimmel kommt? Den ganzen Sommer durchheizen möchte ich eigentlich nicht. Ich hatte deswegen überlegt ob es das Beste wäre, einen Entfeuchter zu installieren (fest installiert an der Wand oder Decke, Kondenswasser direkt in den Abfluss), manuell zu lüften wenn es die Außentemperatur erlaubt und später bei Bedarf in diesem Raum eher eine dezentrale Belüftung einzubauen? |
||
|
||
|
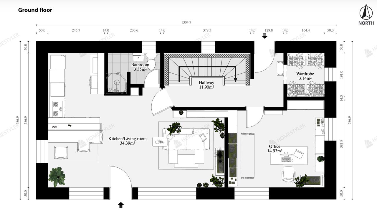
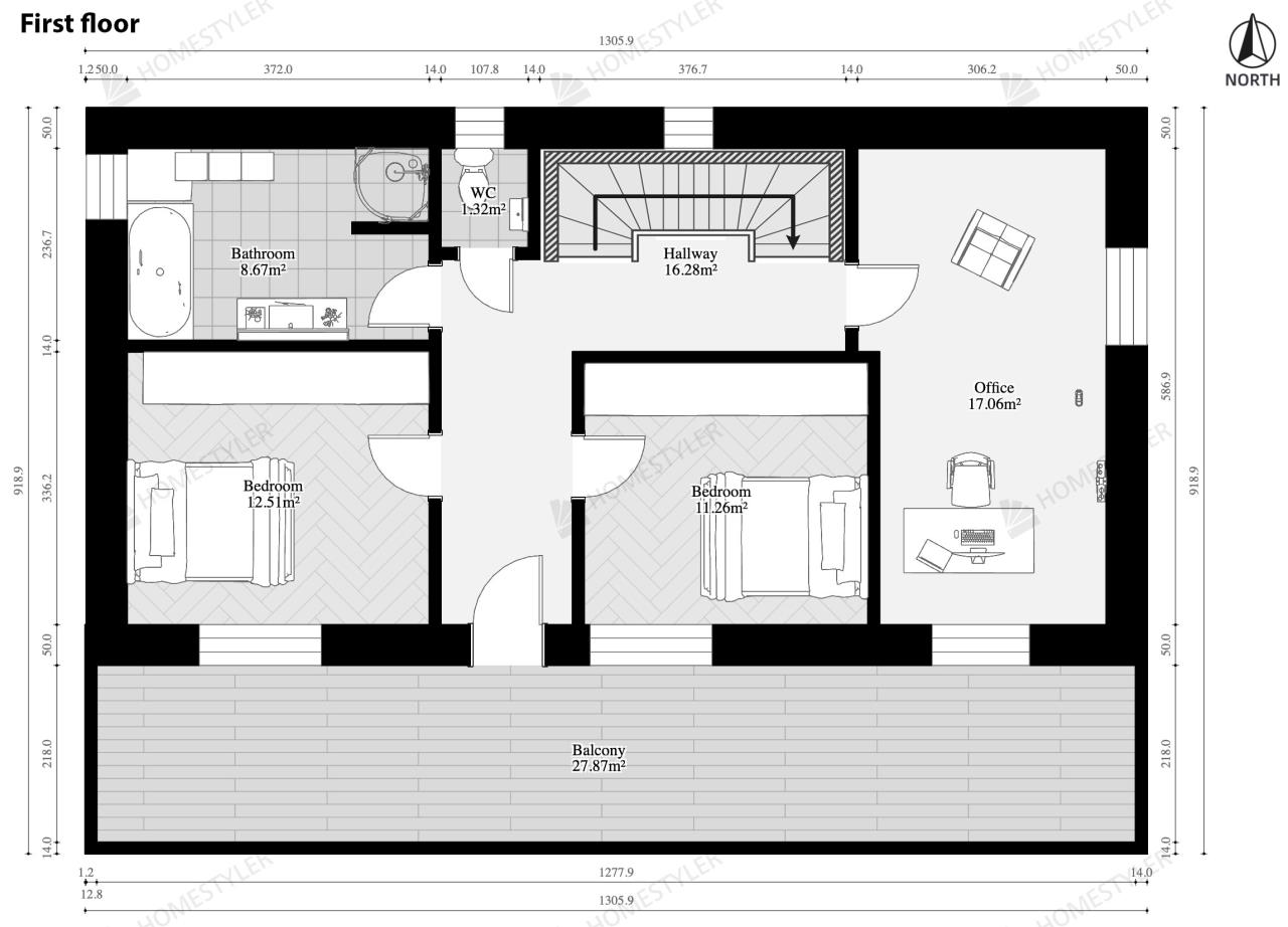
Was ich persönlich ändern würde, wäre das Bad im EG vom Vorraum aus zugänglich machen und nicht vom Wohnzimmer, und im OG beide Schlafzimmer größer und je eine Balkontüre aber ansonsten schaut er gut aus. LG |
||
|
||
|
Dafür verwendet man ein zentrales Entfeuchtungsmodul, das in die Zuluft der KWL KWL [Kontrollierte Wohnraumlüftung] eingebunden wird. Bei Raumtemperaturen zwischen 23 und 24 Grad im Sommer wird es nämlich auch in den anderen Geschoßen tendenziell zu feucht. Derzeit werden bei uns fast alle neuen KWLs im warmen Klima mit Entfeuchtungsmodulen ausgestattet und viele bestehende Anlagen nachgerüstet.
|
||
|
||
|
Dafür gibt es Lösungen, z. B. Klappen. Wenn du das möchtest, solltest du den gesamten Keller beheizen, heißt aber auch den Keller Wohnraumtauglich zu machen und diese in die Gebäudehülle gedämmt aus zu führen. Entweder Keller Kalt oder Warm, also ganz oder gar nicht. Alles andere ist schwierig thermisch zu trennen. Wenn du da noch Platz findest. Denke aber das sollte vom Platz her aber schon reichen, die Ecke ist bestimmt 1mtr breit. 11er Wand sollte da schon reichen
|
||
|
||
|
Schau dir mal den brink'schen Bypass an: https://www.energiesparhaus.at/forum-solare-gewinne-in-keller-einlagern/48478
|
||
|
||
|
@leitwolf Gut zu wissen, danke. Entfeuchtung wird bei uns sicher sowieso ein Thema, ich hatte hier wegen meiner Aquarien diese Woche als es so richtig warm wurde schon wieder über 70% Luftfeuchtigkeit im Büro. Das wird dann gut wenn man beide Themen (Fitnessraum und Aquarienraum) durch die KWL KWL [Kontrollierte Wohnraumlüftung] erledigen kann. Danke @AndiBru , ich versteh den Einwand und hatte das auch zuerst genau so geplant. Ich hab hier jetzt einen separaten Post zum Grundriss ganz allgemein und hab beide Varianten dort nochmal hochgeladen, mit meiner Begründung warum sich die Variante mit Gang für mich derzeit besser anfühlt (durchgehende Schrankwand, will nicht mit Gast durch ein Schlafzimmer gehen müssen) https://www.energiesparhaus.at/forum-grundriss-efh-3-x-70m2-leichte-hanglage/82787_1#879874 @Akani OK verstehe, danke. Ich hatte mal gelesen dass man zumindest im Technikraum eventuell nichtheizen muss weil die Geräte eine gewisse Abwärme erzeugen aber es wäre wohl Unsinn, die FBH FBH [Fußbodenheizung] nicht im gesamten Keller vorzusehen. Der Plan ist schon ein beheizter Wohnkeller, auch wenn ich in so einfach und günstig wie möglich ausführen möchte. Aber an der falschen Stelle will ich da dann auch nicht sparen. |
||
|
||
|
Dafür muss man im Sommer umso mehr kühlen. Unbedingt mit einbeziehen. |
||
|
||
|
@christoph1703 OK wird dann so gemacht, danke. Wir gehen in den Keller dann jeden Tag auch mindestens zweimal runter und mein Mann verbringt viel Zeit im Fitnessraum. Das soll schon gemütlich sein und ich will auch alles tun, um dort Schimmel zu vermeiden. |
Beitrag schreiben / Werbung ausblenden?
Einloggen
Kostenlos registrieren [Mehr Infos]



