Planung Neubau EFH
|
|
||
|
Hallo - dragon79!! Auf jeden Fall alles Gute bei deinem Projekt!
Also wir sind erst mit dem Einreichplan zu den Baumeistern gefahren,da kann man schon ziemlich genau schätzen!! mfg Löpi |
||
|
||
|
Hallo - Danke! So habe ich es mir auch vorgestellt! Habt Ihr gleich alle Pläne zeichnen lassen oder nur den Einreichplan? Es soll ja einige Pläne geben (Polierplan, Einreichplan, etc...) Welche benötige ich und welchen Kosten (in etwa) sollte ich einkalkulieren.
mfg dragon79 |
||
|
||
|
hallo erstmals, willkommen!
kosten EP bei uns: ca. 1.500,-- polierplan? haben wir nicht :) bisher alles bestens und absolut praxisgerecht! grüsse, alex |
||
|
||
|
Danke! Sind die genannten Preise inkl. oder exkl. Steuer. |
||
|
||
|
wir haben unseren - Erstplan von einem Architekturstudenten zeichnen lassen und waren sehr zufrieden damit.
Mit diesem Plan sind wir dann zwecks Angebotseinholung zu diversen Baufirmen gegangen. Bei den meisten wäre dann der Einrichplan und alle sonstigen Pläne bei den Gesamtkosten dabeigewesen. |
||
|
||
|
Unser EP hat auch ca. 1500 gekostet. Auch wir hatten keinen Polierplan, unser Maurer hat mit dem EP gearbeitet. |
||
|
||
|
Einreichplan - An einen Architekturstudenten hab ich auch schon gedacht. Vielleicht erwische ich einen nächste Woche. Ich schätze die werden einwenig günstiger den Plan machen. Naja der Preis von ca. 1500 finde ich auch nicht so schlimm, falls Änderungen in Preis inkludiert sind. Ich schaffe es noch nicht die genauen Zimmeranordnungen am richtigen Fleck zu platzieren. Ich habe oder kenne einige Leute mit verschiedenen Gewerken (Mauerer, Installateur, Elektriker, etc..). Ich weiß es ist einwenig riskant alles mit Verwandten und Bekannten zu machen (Zeit, Nerven), aber wer nichts riskiert gewinnt auch nichts!!!! |
||
|
||
|
"wer nix riskiert, kommt nie nach stein" :)....mir war riskieren bei meiner wichtigsten und grössten inverstition in meinem leben doch ein wenig, nomen est omen, zu riskant!
bei plan waren sicher 10 änderungen, hat trotzdem nicht mehr geksotet. die rechnen das sowieso schon im vorhinein ein. grüsse, alex
|
||
|
||
|
Da hast du schon recht alex. Egal wie oft man über etwas nachdenkt und vorstellt, irgend etwas wäre anders sicher besser gewesen. :) Ich bin ein sehr pingeliger ;) Mensch und versuche alles so gut wie möglich zu machen und deswegen wäre mir am liebsten die ganze Zeit vor Ort auf der Baustelle zu sein. Aber dann würde ich wahrscheinlich ein ganzes Jahr Urlaub benötigen. Werde natürlich jede Neuigkeit berichten. Danke an alle erstmal!!! |
||
|
||
|
???wenn das Grundstück nur 11 m breit ist - ...dan hast du ja nur 5m als Haubreite verfügbar???
Also zumindest in OÖ ist es so, dass du 3 Meter Abstand zur Grundgrenze halten musst! LG matty |
||
|
||
|
Mindestens 3 Meter ;) |
||
|
||
|
Hallo - das stimmt, wie breit soll das haus den nun werden? oder darfst du gekuppelt bauen? dann hättest du ja zumindest 8m was aber innen auch nur 7m übrig lässt. sind es 2 Grundstücke? wieviel % darfst du verbauen? lg johannes |
||
|
||
|
Breite vom Grundstück - Also die Gesamtbreite vom Grundstück ist 11m, Länge 66m. Da der Nachbar schon gekuppelt hat, muss gekuppelt gebaut werden. Von der anderen Seite muss oder sollte man 3m Abstand halten, was wir sowieso vorhaben um 1. mit einem Fahrzeug nach hinten (zweites Haus) zu gelangen und 2. mehr Sonne ins Gebäude zu bekommen (südseitig). Die vorigen Eigentümer waren 2 Familien, deswegen 2 Häuser auf dem Grundstück. Sind zwei Parzellen, aber nicht teilbar angeblich?? Achja 30% bebaubar wenn ich es noch richtig im Kopf habe oder 33%????
lg |
||
|
||
|
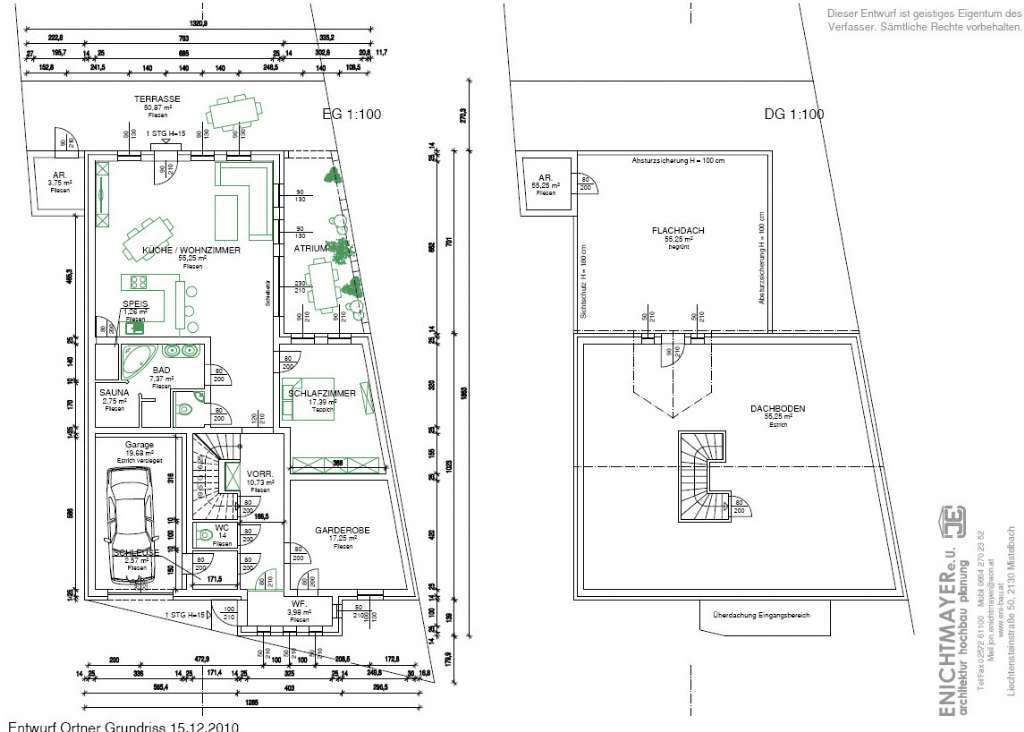
entwurf - anbei entwurf baulücke
lg architektur |
||
|
||
|
entwurf Architektur - Danke für den Entwurf einer Baulücke! Unser Grundstück ist folgender Maßen zu gestalten oder besser gesagt unser Wunsch: Beim Hauseingang von deinem Plan haben wir die Straßenseite (3m Bauwich einzuhalten). Auf der schrägen Seite haben wir den Nachbarn wo angebaut werden muss. Auf der Seite von der Garage auf deinem Plan haben wir ein Fuß- und Radweg. Auf dieser Seite (Süden) wollen wir 3m Platz lassen um nach hinten mit einem Fahrzeug zu gelangen und mehr Sonnenlicht ins Erdgeschoß zu bekommen. Wer möchte schon vom Fuß und Radweg aus gesehen werden (Zaun ca. 2m hoch geplant aufgrund des Kellers der 0,5m hinauf ragen soll). Die Problematik bei dem Ganzen ist die Vorstellung von der Straßenseite aus möchten wir 6m Platz lassen um ein Abstellplatz vor der Doppeltengarage zu haben (Gäste). Über der Garage möchten wir in der Zukunft wenn das nötige Kleingeld hergibt, eine kleine Wohnung bauen (Mehrgenerationenhaus). Dann bekommt das Haus gleich angebaut auf dieser Seite keine Fenster und zum Nachbarn (Norden) wird es mit Fenster auch schon schwer. Also habe ich im eigentlichen Haus nur zwei Seiten mit Fenster (Süden und Westen). Aber ich Danke Dir trotzdem für den Entwurf den Du hier eingestellt hast.
Lg |
Dieser Thread wurde geschlossen, es sind keine weiteren Antworten möglich.Nächstes Thema: 2 verschieden angebote/selber anbieter
