Planung Hebeanlage
|
|
||
|
Variante 1 (vom Einreichplan siehe Bild oben):
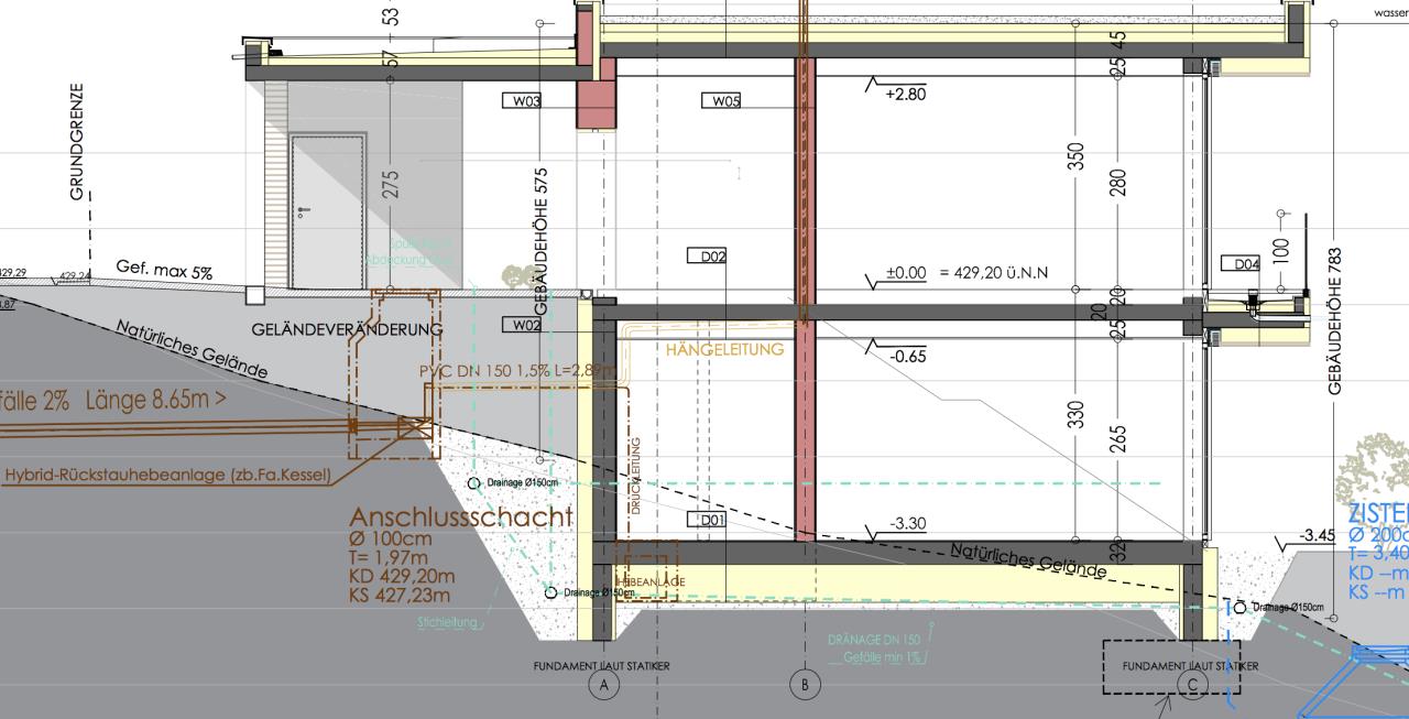
-) 2m tiefer Anschlussschacht mit 1x Hybrid-Rückstauhebeanlage/Rückstauschacht (zB http://www.kessel.de/de/produkte/hybrid-hebeanlagen/ecolift-xl.html , http://www.kessel.de/produkte/hybrid-hebeanlagen/rueckstaupumpanlage-n-pff.html oder gleich als fertiger Schacht http://www.kessel.de/produkte/rueckstauschutz/ausserhalb-von-gebaeuden/rueckstauschacht-lw-1000.html) -) EG wird mit natürlichem Gefälle in den Anschlussschacht geleitet -) UG verwendet eine normale Hebeanlage. Diese soll sich aber ausserhalb der beheizten Hülle in einem trockenen aber nicht frostfreien Raum befinden. Das ist bei mir der Stauraum unter der Terrasse (zB http://www.kessel.de/produkte/hebeanlagen/faekalienhaltiges-abwasser/aqualift-f-compact.html) Vorteile: -) EG leitet die meiste Zeit ohne Strom in den Kanal ein (nur bei einem Rückstau würde sie verwendet werden) -) Rückstauschleife der Hebeanlage wir nur bis zur Decke des UG geführt -) UG Hebeanlage ist nicht im Haus Nachteile/Probleme: -) Anscheinend nicht Frostsicher -) Zwei Hebeanlagen und damit auch doppelte Wartung. Besonders die Hybrid-Rückstauhebeanlage ist kritisch. -) Grosse Sauerei sollte der Rückstauschutz nicht schliessen Frage: Mir wurde jetzt gesagt, dass die für Innenaufstellung gedachte Hebeanlage nicht draussen verwendet werden kann, weil sie nicht frostsicher und für den Aussenbereich ist. Liegt das daran, weil das Kompaktanlagen sind und das Wasser bei Frost dann den Behälter sprengen kann? Könnte man das ganze mit Dämmung frostsicher machen? Variante 2: Wie Variante 1 aber die UG Hebeanlage kommt ins Haus. Nachteil: -) Im Haus -) Pumpensumpf durchbricht die Bodenplatte -> mögliche Probleme mit der Dämmung/Wärmebrücke Variante 3: Ein gutes Bild dafür: Bildquelle: https://www.heinze.de/media/61356/images/19171814px1920x1094.jpg oder Bildquelle: https://www.heinze.de/media/61356/images/19171745px1920x1353.jpg
-) Rund 5 m tiefer Anschlussschacht vor dem Haus mit integrierter Hebeanlage (zB http://www.kessel.de/produkte/hebeanlagen/pumpstationen/aqualift-f-xl-nass.html oder ein anderer dichter Schacht mit Tauchpumpe) -) UG wird direkt in den Anschlussschacht geleitet -) EG wird über das UG eingeleitet Vorteile: -) Alles im Anschlussschacht integriert -) Natürliche Rückstausicherung Nachteile: -) Jedes Abwasser muss mittels Hebeanlage entsorgt werden -) sehr tiefer Schacht Frage: -) Warum ist das Frostsicherer? Liegt das daran, dass im Schacht genug Raum ist wenn stehendes Abwasser vereisen sollte? Variante 4: -) Normaler Anschlussschacht mit 2m Tiefe -) 1,5m tiefer Pumpensumpf in dem offenen Stauraum (nicht frostsicher) unter der Terrasse, mit einer Hebeanlage/Tauchpumpe wie sie normalerweise in Variante 3 eingebaut wird. Die Rückstauschleife dieses mal bis rauf ins EG (im Ziegel der Terrassenwand) um über die Rückstauebene von 430,42m zu kommen. -) EG wird über das UG eingeleitet Vorteil: -) Nur eine (einfache?) Hebeanlage -) keine tiefen Schächte -) Pumpensumpf durchbricht die Bodenplatte im nicht kritischen Bereich -) Natürliche Rückstausicherung Nachteile: -) Zwei Schächte -) Jedes Abwasser muss mittels Hebeanlage entsorgt werden -) Längeres Kanalrohr von Hebeanlage zum Anschlussschacht und unter der Bodenplatte -) Lärmbelästigung auf Terrasse? Frage: -) Was müsste man da nehmen um das Frostsicher hinzubekommen? Variante 5: Wie Variante 4, aber die Hebeanlage wird dieses Mal in einen zu bauenden frostsicheren Raum unter dem Carport gegeben, die Rückstauschleife wird in der Fassade vom EG versteckt. Danke ap99 für diese Variante! Vorteil: -) Eine günstigere Innen-Hebeanlage könnte verwendet werden -) Natürliche Rückstausicherung -) Keine mögliche Lärmbelästigung -) Nicht so langes Kanalrohr wie bei Variante 4 Nachteile: -) Zwei Schächte -) Jedes Abwasser muss mittels Hebeanlage entsorgt werden -) Mir wurde gesagt, dass die Baukosten hier höher sein könnten um so einen Raum zu schaffen Variante 6: Der Kanal wird mit natürlichem Gefälle beim Nachbarn unterhalb angeschlossen. Vorteile: -) Es ist kein Hebeanlage notwendig! -) Nachbar baut zur gleichen Zeit, baggern auf seinem Grund ist also kein Problem Nachteile: -) Es muss ein Höhenunterschied von ca. 12m auf einer Länge von ca. 43m überwunden werden -) Mehrere Absturzschächte um den Höhenunterschied zu überbrücken, mindestens einer am Nachbargrundstück -) Langes Kanalrohr -) Viel baggern notwendig -) Anschlussschacht beim Nachbarn (seiner kann nicht verwendet werden weil der das über ein anderes Gebäude macht) -) Servitutsrecht muss eingetragen werden -) Mir wurde gesagt, diese Variante ist vom Bauaufwand nicht günstig. |
||
|
||
|
Zu VAR 2: Der eine oder andere Polier betoniert das mit der Bodenplatte mit (ich sehe da kein Problem, dämmen kann man das auch), bleibt noch der „Nachteil“ mit der Hebeanlage im Haus (ich persönlich würde die nicht im Haus/Wohnbereich haben wollen). Zu VAR 5: Der Vorschlag entstand dadurch, weil im Bereich des Carports Winkelstützmauern im Polierplan dargestellt sind (sieht man oben nicht) ... Mehrkosten für einen Raum halten sich dadurch mMn in Grenzen. Auf alle Fälle wird das Fäkalwasser lt. Darstellung weder im ERP noch im PP über die Rückstauebene gehoben. |
||
|
||
|
Servus Lois, Ist das auch bei einer Hybrid-Rückstauhebeanlage (zB der Pumpfix F http://www.kessel.de/produkte/hybrid-hebeanlagen/rueckstaupumpanlage-n-pff.html) notwendig? Ich habe das laut Beschreibung so verstanden, dass die gegen den Rückstau pumpt. Aber ich stimme dir voll zu, dass die Rückstauschleife fehlt, wenn man die Ecolift verwendet oder wie im Polierplan eingezeichnet Variante 3. Habe versucht es jetzt zu visualisieren, hast du das so gemeint? Wie müsste man das ganze Dämmen damit es frostsicher ist? Wahrscheinlich müsste man den Schacht auch noch breiter machen, damit man da unten wirklich was warten kann und die Hebeanlage auch rausbekommt. Der Schacht hat ja doch eine gewisse Tiefe. Die Wartungsluke geh leider nicht wirklich tiefer, weil an der Seite angeschüttet und abgeböscht wird. ![]() Was sagst du von deinem Erfahrungsschatz zu Variante 6, die hat sich jetzt kurzfristig ergeben als ich mit dem Nachbarn gesprochen habe. Ist das teuer? |
||
|
|
||
|
||
|
Servus Patrick,
Den von außen begehbaren Schacht hätte ich ganz ans Gebäude gestellt (Erdarbeiten berücksichtigen) ... Die Stützmauer geht ja um die Ecke bis ans Gebäude) Ich versuche wenn möglich immer ohne Hebeanlage auszukommen (da wo ich tätig bin, ist das auch fast immer durch die Topografie kein Problem) ... Var 6 kann ich also durchaus was abgewinnen (Längsschnitt (28 %), Absturzpfeifen usw. muß sich halt jemand ansehen) ... will der Nachbar was dafür, was kostet dich der längere Kanal samt Schächten? Die Pumpfix F wäre aus meiner Sicht nur für EG-Abwasser (als Rückstausicherung) geeignet, denn das UG-Abwasser liegt unter der Kanalsohle ... also keine Lösung für dich. http://www.kessel.de/fileadmin/eba/010-843_DE_EN_FR_IT_NL_PL_2017_04_Pumpfix_F.pdf |
Dieser Thread wurde geschlossen, es sind keine weiteren Antworten möglich.Nächstes Thema: Dach Kostenschätzung






