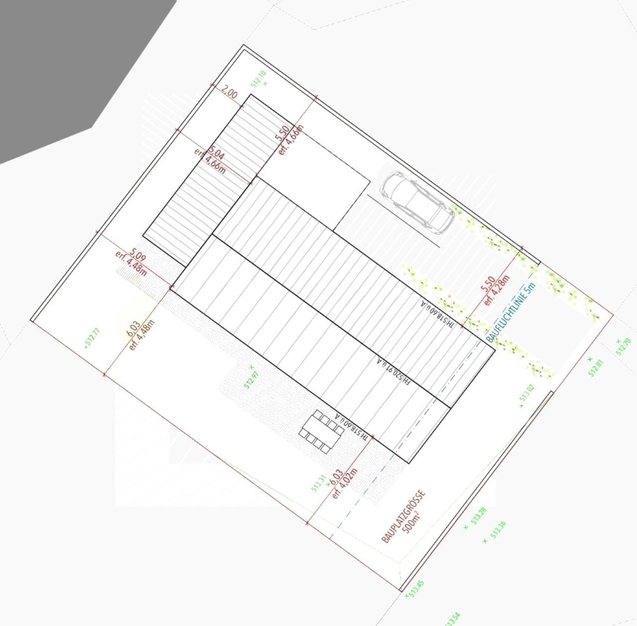
Machbarkeit RGK auf kleinem Grundstück
|
|
||
|
Möglicherweise machbar, evtl mit TB in Kombination. Wird aber auf jeden Fall ein vertikaler Kollektor mit gewissen Herausforderungen. Probier mal mit dem Trenchplanner einmal rundherum. Also in der oberen Ecke mit Slinkies anfangen, rund ums Haus bis zur Einfahrt. Evtl kannst du im breiteren Garten auch einmal wenden, dann hast du den doppelt genutzt. |
||
|
||
|
Ich würde auch sagen, probier mal mit dem Trenchplanner. Bei vertikaler Verlegung musst halt vorher prüfen (Probegrabungen!), ob die Grabenwände stabil sind. Wir hatten eine ähnliche Problematik, vertikal wäre gegangen, allerdings war bei uns der Boden nicht stabil. Und horizontal wär sich bei uns nicht ausgegangen. Die Frage ist halt immer, ob sich der Aufwand für den RGK RGK [Ringgrabenkollektor] dann noch auszahlt. Der kostet ja auch etwas. Und wenn der Tiefenbohrer anrückt, zahlst du auf jeden Fall viel, egal ob viele oder wenige Bohrmeter. Und die Bohrmeter, die du ohne RGK RGK [Ringgrabenkollektor] mehr brauchst, kosten vermutlich nicht viel mehr als der RGK RGK [Ringgrabenkollektor], wenn überhaupt, und es ist halt weniger Aufwand für dich als mit RGK RGK [Ringgrabenkollektor]. Aber ist sicher im Einzelfall zu prüfen. Oder halt eine Luft-Wasser-Wärmepumpe. |
||
|
||
|
Grundsätzlich: So wie ich Schluff verstehe (nämlich lehmig), ist dieser Boden doch ausgezeichnet für den RGK RGK [Ringgrabenkollektor] geeignet. Wenn das sehr kompakt ist, dann ist das natürlich auch eine gute Voraussetzung für einen vertikalen RGK RGK [Ringgrabenkollektor] (Standsicherheit!). Allerdings spricht Bodenklasse 6 (leichter Fels) wohl wieder dagegen, nehm ich an... 🤔 Prinzipiell sind Steine kein Problem, solange man sie ausbaggern kann und den RGK RGK [Ringgrabenkollektor] direkt in vielleicht ausgesiebten Material bettet. Ganz ehrlich würde ich mich bei grenzwertigen RGK RGK [Ringgrabenkollektor] vertrauensvoll an die RGK RGK [Ringgrabenkollektor] Fachplanungsbüros wenden, die haben da mehr Erfahrung darin. Dafür benötigen sie aber einen Einreichplan, den EAWEAW [Energieausweis] und das Bodengutachten (hast du anscheinend eh). |
||
|
|
||
|
||
|
Grüß dich, der Bodengutachter hat gemeint dass es lehmig ist und sehr gut tragfähig. Der Mergel (Bodenklasse 6) ist natürlich fraglich. Wir tragen bereits etwas ab um den Boden zu nivellieren. Dann müssten wir wohl noch ziemlich weit runter für die vertikale Verlegung und ein Reißzahn müsste möglicherweise zum Einsatz kommen. Dann den RGK RGK [Ringgrabenkollektor] in den "Mergel" legen - ich weiß nicht wie es sich dann mit der Regeneration und der generellen Erwärmung verhält. Da müsste wohl ein Spezialist her um das zu prüfen - kennst du jemanden mit Erfahrung auf dem Gebiet? |
||
|
||
|
Würde ich übrigens auch. Vorher mit dem Trenchplanner ein Gefühl für die Materie zu bekommen, schadet aber auch nicht. |
||
|
||
|
Servus, Tiefenbohrung ist natürlich eine Option - jedoch teuer und die Bodenbeschaffenheit macht es wahrscheinlich schwierig. Dann möglicherweise Luft/Wasser - obwohl ich das eigentlich nicht wollte. |
||
|
||
|
Je kompakter das Material (am Besten wäre Fels!), desto besser für den RGK RGK [Ringgrabenkollektor] - so hat dieser die geringsten Rohr-Erdreich Widerstände, die Nachströmung vom ungestörten Erdreich ist so am Besten. Und ein RGK RGK [Ringgrabenkollektor] wird so dimensioniert/berechnet, dass da nix vereist und somit auch keine großartige Regeneration notwendig ist. Einzige Voraussetzung dafür ist, dass die Fläche über dem RGK RGK [Ringgrabenkollektor] unversiegelt bleibt (Regenwasser). Außerdem verwendet man den RGK RGK [Ringgrabenkollektor] sowieso schlauerweise mit BKA BKA [Betonkernaktivierung] zum Kühlen im Sommer. 😉 (Und die vollflächig verlegte BKA BKA [Betonkernaktivierung] auch zum Heizen im Winter.) https://www.ringgrabenkollektor.at/ Bitte unbedingt vorher prüfen lassen, ob es möglich ist, bevor leichtfertig eine LWP LWP [Luftwärmepumpe] verbaut wird! 🙏 Falls z.B. auch Keller kommt ist ganz easy ein Baugrubenkollektor möglich, usw usf. |
||
|
||
|
Mahlzeit, Bin auch auf der pro-RGK Seite mit Empfehlung zum Abklären durch Planer. Und Vertikaler RGK RGK [Ringgrabenkollektor] ist sowieso ein cooles Ding! Plan A wär für mich immer RGK RGK [Ringgrabenkollektor]. Aja zum (grössenmässigen) Vergleich, arbeitskollege hat LWP LWP [Luftwärmepumpe] on/off und verbraucht grob das 2...2,5 fache an Strom. Lg |
||
|
||
|
Das kommt mir sehr viel vor - da müsste man wohl die Häuser vom HWB in Relation setzen und bei der WP WP [Wärmepumpe] kommts natürlich auch drauf an, wie gut die und die Heizflächen ausgelegt sind. Normal würd ich vermuten, dass der Unterschied zumindest im österr. Flachland eher so maximal 30-40% sind, wenn überhaupt. |
||
|
||
|
Je nach solarer Ausrichtung kann ein und dasselbe Haus bis zu 40% weniger HWB haben. Wenn aber die WP WP [Wärmepumpe] zusätzlich in einem verkorkstem System läuft (Luft statt Sole, überdimensioniert, Pufferspeicher, Zirkulationsleitung, ERR, falsche Parametrierung,...), dann sind auch mehrfache Stromverbräuche bei ansonsten gleich großen Häusern durchaus möglich. JAZ 3 hat doppelten Stromverbrauch wie JAZ JAZ [Jahresarbeitszahl] 6, beides sieht man in der Realität. |
||
|
||
|
Hi
war auch nur ganz grob über Haps. Häuser sind ca gleich groß, seins DHH, meins freistehend. Meins Südausrichtung, seins O-W. FBH bei beiden quasi ungeplant. Also grob als Grössenordnung zu verstehen, nicjt aif Punkt und Komma genau. Lg |
||
|
||
|
Natürlich. Aber das liegt dann nicht nur an Luft vs. Sole, sondern an vielen Faktoren, die das ganze beeinflussen. Es gibt hier Solemaschinen mit JAZ JAZ [Jahresarbeitszahl] > 6, aber auch Luftgeräte, die an die 5 rankommen. Vielleicht sogar drüber, aber daran kann ich mich jetzt konkret nicht erinnern. Everything else equal, ist Sole im Normalfall natürlich effizienter. |
||
|
||
|
Wir haben ja auch so ein Minigrundstück mit RGK RGK [Ringgrabenkollektor]. Meine Kollektortemperaturen sind nicht brilliant, und die gesamte JAZ JAZ [Jahresarbeitszahl] ist aktuell bei ca 4.5... Unser Haus kriegt in Winter leider auch wenig Sonne ab (Nachbarhaus und auch Topografie/Hügel am Nachmittag) 2026 wird das erste korrekte Betriebsjahr wo ab Jänner alles korrekt gedämmt ist etc, dann sehen wir weiter. Ich sehe eine gute LWP LWP [Luftwärmepumpe] aber nicht mehr als Drama. Wird zu oft zerredet bis ins letzte Detail. Wenn ein RGK RGK [Ringgrabenkollektor] gut passt ist er eine feine Sache, ich persönlich finde auf einem kleinen Grundstück trotzdem eine LWP LWP [Luftwärmepumpe] eine Überlegung wert. Wir wollen jetzt eventuell doch einem Pool und sind da bezüglich Überbauung etc arg limitiert. |
||
|
||
|
Gerade bei engen Siedlungen ist mMn das Hauptproblem an LWP LWP [Luftwärmepumpe], dass viele sich keine Gedanken machen bzgl Ausrichtung und Betriebslärm, aber ja bei dem aktuellen Klimawandel ist die JAZ JAZ [Jahresarbeitszahl] im Winter auch bei LWP LWP [Luftwärmepumpe] in Ordnung |
||
|
||
|
meine Nibe S2125/8 läuft seit 4 Wintern mit AZ 5,2. Laut Shelly und WP WP [Wärmepumpe] eingebautem WMZ. Allerdings nur Heizung (FBH), WW über extra BWWP. Ich bin sehr zufrieden damit. |
Beitrag schreiben / Werbung ausblenden?
Einloggen
Kostenlos registrieren [Mehr Infos]


