Lautstärke Haustechnik
|
|
||
|
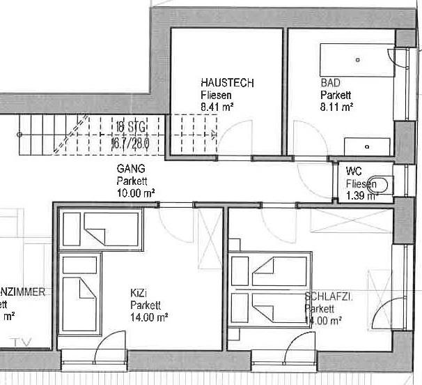
Vielleicht kannst du dazu einen Grundriss zeigen. Auch wäre wichtig zu wissen, welche Haustechnik du einplanst. Pumpen für Gartenbewässerung, etc. sind oft sehr laut. Ich denke aber, wenn ein Gang dazwischen liegt, die Wände massiv sind, keine Fehler bei der Körperschallentkopplung der Wärmepumpe passieren, ist kein Schall im Schlafraum mehr wahrnehmbar. Bei nur einer Wand zwischen Technik und Schlafraum, wäre ich vorsichtig und würde davon abraten. Relevant ist dann eigentlich auch noch die Schalldämpfung der Zuluft der Lüftung. In vielen Häusern, wo ich Inbetriebnahme gemacht habe, wurde die Lautstärke des Kühlschranks unterschätzt, der in einem offenen Grundriss im ganzen Haus hörbar ist. |
||
|
||
|
bei uns auch hanghaus - oben wohnen unten schlafen. der technikraum grenzt direkt an das sz. wand ist 25cm trockenbau wo auch der verteiler eingebaut ist. wp haben wir nicht, aber eine kwl (D&W) und Loxone. von der kwl, die eigentlich gar nicht so leise ist wenn man direkt daneben steht hören wir im sz nichts - genausowenig wie ein klackern der ralais in schaltschrank. was wir allerdings hören, ist das regenerieren der enthärtungsanlage, aber die ist auch ziemlich laut (schrill). die waschmaschiene hingegen hören wir selbst beim schlaudern kaum. ich denke es kommt hier sehr auf die frequenz an. |
||
|
||
![]() Danke für die Antworten Ich plane: -KVN Wärmepumpe (KNV 1255) inkl 120 Liter Warmwasser -eventuell KWL KWL [Kontrollierte Wohnraumlüftung] -Elektro -LAN -Zisternenpumpe nur für Garten (weiß ich aber nicht ob es da nicht auch mit Pumpe in Zisterne geht) -alle Hausanschlüsse wie Wasser, Strom, Telefon, usw... -vielleicht Waschmaschiene Sonst sollte eigentlich nichts in den Technikraum. .....oder vergesse ich grad was? Lg |
||
|
|
||
|
||
|
Ev. Wechselrichter (Photovoltaikanlage) Die KNV hat übrigens einen 180l-Speicher, was aber nichts an ihrem Geräuschpegel ändert Wir haben kürzlich mit der WP WP [Wärmepumpe] ausgeheizt: bis auf die Anlaufphase ganz zu Beginn war sie leiser als unser derzeitiger Kühlschrank, das hat uns schon beeindruckt. Wir haben die Zisternenpumpe auch im Technikraum, sehen aber vom Lärm her kein Problem: die ist ja nicht dauernd im Betrieb. |
||
|
||
|
Evenuell solltest du bei der Türe eine Absenkdichtung vorsehen, haben wir bei uns eingebaut. |
||
|
||
|
Weder EWP noch KWL KWL [Kontrollierte Wohnraumlüftung] sind ein Problem. Mein Netzwerkschrank mit unify ist tatsächlich lauter, was an den schlechten verbauten Lüftern liegt. Mein PV WR WR [Wechselrichter] (Kostal Plenticore) wäre zu laut. Pumpe für die Zisterne habe ich in der Zisterne geplant. Cleverer wäre aber wahrscheinlich ein Hauswasserwerk, hatte ich aber nicht dran gedacht und somit auch leider keine Erfahrung mit der Lautstärke. |
||
|
||
|
brauchst halt sehr gute türen. bei der wp ist es so, dass die moduliert. in den 20-90 hz bereich ist bereits ein bereich intern gesperrt 56-63 hz, weil zu viele eigenresonazen. meine erzeugt bei ~28hz auch ein dröhnen. solange die türen gut abschließen, bleibt der schall im technikraum. alternativ kann man 2 sperrbereiche einlegen. (knv sperrt pauschal den unteren 20-30 hz bereich) lüftung ist weniger zu hören. dass sie läuft wirst merken, wenn die tür offen steht und im haus totenstille ist - da hörst aber ohnehin alles mögliche. das drit-lauteste gerät in unserem haus ist der geschirrspüler. obgleich der wirklich leise ist, nur wenn sonst wirklich stille im haus herrscht, hörst du diesen dann. insofern sollte es auch so gehen, wie geplant, aber schau auf schalldämmende türen. bei kwl wirst aber luftaustausch durch die türen brauchen. vielleicht schließt du technikraum aber komplett ab und hast dort sowohl zu- als auch abluft. ganz ganz wenig wird dort ja schon reichen. |
||
|
||
|
Also meine Polo Air 450 kann ganz schön laut werdn auf 3/4 und vollgas und der fronius wr auch(laute ventilatoren drin). Die knv pumpe geht eig. Bei zunehmender last wirds a lauter |
||
|
||
|
Gute (dicke) Holztüren und Absenkdichtung unten sind für Technikräume schon mal eine gute Idee und für Schlafzimmer sowieso (gibt auch welche die noch Luft für KWL KWL [Kontrollierte Wohnraumlüftung] Überströmung durchlassen). Und den Estrich zwischen Technikraum und dem angrenzenden Flur trennen (hab ich vergessen). KWL auf den Boden stellen, nicht an die Wand montieren. |
||
|
||
|
Absenkdichtung aber nur dann, wenn die KWL KWL [Kontrollierte Wohnraumlüftung] die Luft zwischen den Räumen anders austauscht als durch einen kleinen Spalt am Boden. |
||
|
||
|
Damit es glasklar ist. wenn kein Luftaustausch benachbarter Räume notwendig ist, dann eine normale Absenkdichtung. falls Luftaustausch in geringen Volumina notwendig (Überströmung), dann diese hier http://planet.ag/produkte/absenkdichtungen/lueftungs-dichtung |
||
|
||
|
Bei Zeitschalt/Treppenlichtautomaten nur elektronische Fernschalter verwenden (sollte eigentlich eh ein Standard sein), ich denke nicht dass das ein Problem ist aber bei Lärm hat ja jeder andere Empfindlichkeits-Grenzen. Die absenkbare Türdichtung beim Schlafzimmer wird glaub ich weniger das Problem lösen, weil es ja Überströmöffnungen insbesondere zum Schlafzimmer bei einer KWL KWL [Kontrollierte Wohnraumlüftung] benötigt. Besser wäre zB eine absenkbare Dichtung im Technikraum und dezente Überströmöffnung zum Bad (Loch in Wand mit Abdeckgitter). Ich würde den Technikraum unbedingt ins Lüftungskonzept einbinden, ich bin so froh in meinem Technikraum ein Abluftventil zu haben, alles am dort stehenden Wäscheständer wird immer innerhalb 24 Std trocken. |
||
|
||
|
Wir haben die Technik auch auf denselben Gang gehend wie das Schlafzimmer. Allerdings eine 25cm Schallschutzziegelwand dazwischen. ebenfalls KNV 1255-06 d&w stratos KWL KWL [Kontrollierte Wohnraumlüftung] Grünbeck SC 18 Die Enthärtung hört man am Gang "gurgeln", wenn sie regeneriert. Wach wurde ich deswegen noch nie. Könnte man auch fix zeitlich regeln, wenn es nächtens stört. Die KWL KWL [Kontrollierte Wohnraumlüftung] aus dem Technikraum raus hört man selbst bei Stufe 3 nicht. Auf Höchststufe hört man wenn dann die Strömungsgeräusche bei den Ventilen. Im Sollvolumenstrom darf man sie meiner Meinung nach nirgends außerhalb vom Technikraum hören, sonst ist was falsch geplant oder ausgeführt. Die Wärmepumpe hab ich manchmal ganz schwach gehört, wenn sie mitten in der Nacht gemeint hat, wegen WW WW [Warmwasser]-Bereitung raufmodulieren zu müssen. Hab ihr dann einen Sperrbereich und eine andere Bereitungszeit eingestellt. Möglich, dass man in einer -20 °C kalten Nacht wieder mal was mitbekommt. Dem Technikraum haben wir jedenfalls eine Schallschutztür spendiert. Aufpreis unter 100 EUR für Tür+Zarge. Die wird dann voll ausgeschäumt und hat ein sehr schweres Blatt. |
||
|
||
|
Genau Wechselrichter für die PV hätt ich jetzt fast vergessen! Laut Entwurfplanung ist der Technkraum nur mit einer 12 cm dicken Wand zum Gang abgetrennt. Danke für eure Kommentare und guten Tipps zur Technikraumtür, ich werde versuchen so viel als möglich davon umzusetzen. Lg |
||
|
||
|
Ihr habt ja laut diesem Planausschnitt nur 12er Wände. Das sind ja Spannweiten jenseits der 6 Meter, wenn ich da mal so drüber schätze. Wo will der Baumeister seine Betondecken legen? |
||
|
||
|
Tja darauf haben mich schon mehrere Personen angesprochen - muss ich beim nächsten Termin mit dem Architekten besprechen. Ich glaub es geht ihm erstmal nur um die Raumaufteilung. Was mir jetzt noch eingefallen ist, jeder sagt doch immer ein Technikschacht wäre gut für Wasser, Elektro, Lan- Installationen aber ist der Deckendurchbruch nicht auch schlecht für die Schallweiterleitung ins OG? |
||
|
||
|
Ich hör den Schall bei mir ganz schön durch den Schacht bis oben. Man müsste den Brandschottn aber jtz gehts schwer |
||
|
||
|
Hi, Wir haben einen Schacht von 90x35 cm vom KG bis ins OG. Da sind die Steigleitungen von Heizung, Lüftung und Wasser drin sowie die Kabelrinnen für Elektro und Netzwerk. Auf den Stockwerken sind da zudem noch die Verteiler für Elektro und Netzwerk eingebaut. Im offenen Zustand hat das den Schall herrlich weitergeleitet. Auch jetzt ist es noch nicht wirklich versiegelt, weil ich noch einiges an Elektrik/Netzwerk fertigstellen muss, aber ich habe die Deckendurchbrüche mit ordentlichen Mengen Mineralwolle ausgestopft und nach oben und unten mit OSB-Platten abgedeckt. Da hört man nun rein gar nichts mehr. Die finale Lösung wird ähnlich aussehen, nur eben ordentlicher versiegelt. Falls es ein Fronius-WR wird: Gerade das Modell mit 10 KW ist ordentlich laut! Bei uns ist es im Keller verbaut mit zwei Türen bis zum Wohnbereich. Da hört man nichts mehr, aber als die beiden Türen noch nicht verbaut waren, hat man es im Sommer bei ordentlich Last bis ins OG gehört. Was auch sehr laut war, waren die im Installschacht verbauten Verteiler für Ab- und Zuluft der KWL KWL [Kontrollierte Wohnraumlüftung]. Angeblich sind die schallgedämmt, aber das bezieht sich nur darauf, dass sie den Schall nicht zu den Räumen weiterleiten. Die Dinger selbst geben ordentlich Geräusche weiter, was im wesentlichend die Ventilatorgeräusche der KWL KWL [Kontrollierte Wohnraumlüftung] aus dem Keller waren. Wir haben daraufhin Schalldämpfer hinter der KWL KWL [Kontrollierte Wohnraumlüftung] nachrüsten lassen. Aus Platzgründen wurden es diese flexiblen Dinger, die nicht den allerbesten Ruf haben. Ergebnis war, dass man an den Verteilern jetzt kaum noch was hört und in den Räumen gar nichts mehr. Einzig im Technikkeller, wo die KWL KWL [Kontrollierte Wohnraumlüftung] steht und diese Schalldämpfer verbaut sind, ist es lauter geworden. Dank zweier Türen (ganz normale Türen) hört man aber auch das im Wohnbereich nicht mehr. Viele Grüße, Jan |
||
|
||
|
Ganz nebenbei:
wie wird es den KiZi-Bewohnern mit den Geräuschen aus dem Schlafzimmer ergehen? Gruss Rudi PS.: eventuelles Schnarchen mein ich...... |
||
|
||
Hi, Bei uns bestehen die Innenwände im OG mit Ausnahme der Wand zwischen Bad und Flur aus 17,5er Hochlochziegeln. Das sind 6 cm mehr als die üblichen 11,5er. Dazu ist das ganze aus Schalldämmziegeln (Lücking S27) gebaut. Da hört man dann von einem Zimmer zum anderen nichts mehr, es sei denn, die Türen sind offen. Damit werden die Zimmer zwar eine Spur kleiner, das ganze aber auch wesentlich solider und eben besser schallgedämmt. Viele Grüße, Jan |
||
|
||
|
Servus Jan,
find ich gut! Wieso nicht zwischen Bad und Flur? Bzw. wie sieht diese Wand aus? Wahrscheinlich nochmals besser? |
Dieser Thread wurde geschlossen, es sind keine weiteren Antworten möglich.
