« Bad & Sanitärtechnik  |

Hilfe bei Badanordnung

   
Teilen: facebook    whatsapp    email
  •  youpy1978
4.8. - 5.8.2022
4 Antworten | 3 Autoren 4
4
Hallo,

ich benötige Euer Input um das Bad noch zu optimieren. Aktuell gefällt uns nicht dass wir mit dem Rücken an einem Südfenster bei den Waschbecken sind. Ich kann mir die Gegenlichtsituation nicht wirklich als "optimal" vorstellen oder hat es jemand so geplant und kann dem was positives abgewinnen ? Evtl. gibt es eine Anordnung ohne T-Lösung oder jemand hat einen Vorschlag wie es praktikabler wird. Norden ist auf dem Plan oben.
Danke im Voraus und falls Infos fehlen gerne melden 😀


2022/20220804791066.jpg

2022/20220804434130.jpg

  •  MissT
  •   Gold-Award
4.8.2022  (#1)
Wie Du richtig festgestellt hast, ist eine starke Lichtquelle (Fenster/Tageslicht) gegenüber des Waschtischs möglichst zu vermeiden.

Welche Raumhöhe hast Du im EG und wie schaut es mit Höhe und Anzahl der Treppenstufen aus? Ich schließe aus der Anzahl der Stufen, dass die Decke ohne weiteres noch ein Stück über die Treppe verlängert werden könnte. Dann würde es sich anbieten, das WC separat zu machen und das restliche Bad ungefähr wie folgt.


2022/20220804957351.jpg

Ob sich das wirklich genau so ausgeht, dazu müsste man es maßstabsgetreu zeichnen. Es gibt aber sicher noch andere Lösungen.

1
  •  youpy1978
4.8.2022  (#2)
Wir haben 2m70 im EG und die Lösung wäre denke ich machbar. Ich werde es mal mit den richtigen Maßen einzeichen. Leider ist bei deiner Lösung das WC ohne Tageslicht, auch nicht optimal... aber es ist zumindest eine mögliche Alternative. Danke diremoji

1
  •  MissT
  •   Gold-Award
4.8.2022  (#3)
Bei 2,70m Raumhöhe solltest Du die Decke über 2-3 Stufen ziehen können. Tageslicht sollte für ein WC im OG kein großes Kriterium sein - hilfreich ist, dass Ihr eine KWL KWL [Kontrollierte Wohnraumlüftung] habt!

1


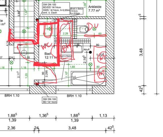
  •  ap99
  •   Gold-Award
5.8.2022  (#4)
Auf die Schnelle das T einfach gedreht, wenn es nur um das Licht/Fenster geht (ich finde das übrigens nicht so tragisch, wenn man üblicherweise in der Früh und am Abend im Bad ist ... und im Winter ist es mMn sowieso egal). Ob sich das mit der Position deiner Strangleitungen ausgeht muss sich halt jemand ansehen.


2022/20220805902846.jpg


2022/20220805171943.jpg

Die Version von MissT könnte man auch noch mit Varianten durchspielen (mir wäre der Eingang zu eng) ... die Bad-Eingangstüre nach rechts (bündig Fensterleibung) schieben, oder die WC-Tür im Bad usw. ... da gäbe es Möglichkeiten.

Das Bad ist mMn auf alle Fälle groß genug um eine gute Lösung zu finden.

Die Wanne würde ich evt. an der Längsseite z.B. 15 cm wegrücken, dann kann man den Arm noch raufgeben und hat Platz für Badeutensilien etc.

1


Beitrag schreiben oder Werbung ausblenden?
Einloggen

 Kostenlos registrieren [Mehr Infos]

Nächstes Thema: Magnetventil scheint nicht ganz zu schließen