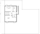
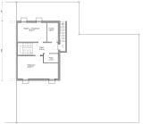
Grundriss Neubau DHH - Westlich von München
        
  | 
           
  | 
||
| 
Ohne Bemaßung natürlich schwierig aber: Nimm einfach die Mauer vor den Garderobeschränken weg - du wirst den Platz im Eingangsbereich brauchen! (Gestern paradebeispiel erlebt: 5 Kinder + 4 Eltern die versuchen nach einer Party ihre Kinder gleichzeitig in nur 2m² Garderobe anzuziehen/sachen zusammenzusuchen,... plus die Gastgeber die natürlich auch noch im Weg standen - ich hab währenddessen vom Wohnzimmer aus entspannt zugeschaut und mein Kind erst im Anschluss eingesammelt ;))   Wohnzimmer: Davon abhängig, wie ihr das nutzen wollt - aber die Möblierung macht so tatsächlich recht wenig sinn. Für "Fernsehzimmer" sollte man die Couch mittig vor dem Fernseher ausrichten. Für "gemütlich auch mit Gästen sitzen" sollte man eine gewisse U-Form einplanen (jo eh, diese Eckcouchen sind voll modern und so...) Fensterfronten haben übrigens den Nachteil, dass man Wandfläche verliert (Bücherregale zB) Den Kindern würd ich übrigens ein Ost-/Westfenster zusätzlich spendieren wenn sichs ausgeht. Ansonsten sind einfach nur permanent auf allen Seiten die Rollläden unten.  | 
||
           
  | 
||
Hier sind nochmals die Bilder mit eigener Bemaßung, damit man es sich etwas besser vorstellen kann.                          Die Garderobe ist tatsächlich gerade der Punkt, bei dem wir uns am wenigsten einig sein. Die Wand weg und die Schränke zumindest etwas nach Norden könnte noch ein Kompromiss zwischen uns beiden sein. Der praktische Nutzen ist natürlich nicht von der Hand zu weisen. Die Möbelierung im Wohnzimmer wird, wie es dargestellt ist, definitv nicht kommen. Da haben wir uns aber noch keine so großen Gedanken gemacht, wie wir das gestalten. Es wird eher Richtung "Fernsehzimmer" gehen. West Fenster ist leider nicht möglich, da dort (irgendwann) die andere Hälfte dran gebaut wird. Ost Fenster ist im rechten Kinderzimmer geplant.  | 
||
           
  | 
||
| 
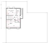
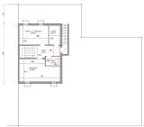
Euer Entwurf zeigt, dass ihr euch schon intensiv mit dem Thema auseinandergesetzt habt – das ist eine gute Basis.   Einige Punkte würde ich mir dennoch unbedingt noch einmal genauer ansehen: Durch die Position der Treppe wird der Wohnbereich stark geteilt in Küche/Essen und Wohnzimmer. Grundsätzlich kann eine Zonierung Sinn machen, nur liegt hier der Eingangsbereich dazwischen – dadurch fehlt die Verbindung, und man steht beim Wechsel zwischen den Räumen gefühlt in der Garderobe. Das Gäste-WC mit Dusche ist für die Nutzung überdimensioniert (im Vergleich zum restlichen EG) und liegt zudem direkt im Schmutzbereich – im Alltag oft unpraktisch. Die Garderobe ist bei dieser geringen Tiefe kaum nutzbar, da nur eine Seite möblierbar ist. Für eine vierköpfige Familie ist insgesamt zu wenig Stauraum eingeplant. Der Essbereich ist zu schmal – unter 3 m Tiefe wird es sehr eng, besonders wenn noch Bewegungsfreiheit oder ein Sideboard gewünscht sind (für ein Siedboard bitte zu den 3 Metern zusätzlich Platz einplanen). Eine Podesttreppe würde ich bei dieser Grundfläche und dem begrenzten Platz im EG hinterfragen – sie nimmt viel Raum ein, den man an anderer Stelle besser nutzen könnte. Die Kinderzimmer sind schön groß und funktional angelegt. Super! So was sieht man leider selten. Im Obergeschoss würde ich Schlafen und Ankleide tauschen – so weckt man sich nicht gegenseitig beim An- oder Ausziehen. Die Badsituation im OG ist noch nicht stimmig. Vielleicht wäre eine Aufteilung in Eltern- und Kinderbad sinnvoll – dafür könnte die Dusche im EG entfallen und vielleicht auch das Bad im OG? In Summe steckt hier auf jeden Fall Optimierungspotenzial – vor allem, um Abläufe, Proportionen und Atmosphäre besser aufeinander abzustimmen. Ich wünsche euch viel Energie und ein gutes Händchen für die nächsten Planungsschritte.  | 
||
| 
 | 
                
Beitrag schreiben oder Werbung ausblenden?
                
 Einloggen
                
 Kostenlos registrieren [Mehr Infos]
                








