Feedback zu Heizungs- und Sanitärplanung durch Ingenieurbüro - EFH
|
|
||
|
Die wenigsten können das überhaupt. Entspricht nicht dem was die DIN vorschreibt. Zudem können die allerwenigsten damit umgehen die FBH FBH [Fußbodenheizung] und die BKA BKA [Betonkernaktivierung] gemeinsam auf einen Kreis zu legen, dass diese hydraulisch passen. Fläche schlägt Temperatur. Für die Deckung brauchst du zusätzlich Wandheizung. Definitiv ein anderes Planungsbüro für die Flächenauslegung nehmen. Deine Zielvorgabe ist flow30, hoffentlich auch so vertraglich fixiert. Kann dier das Planungsbüro Komposch empfehlen, die planen 100% nach flow 30. Zensiert nach Heiz- und Kühlflächen passen der Räume. Wenn ich mir nur die BKA BKA [Betonkernaktivierung] Planung DG anschaue könnt ich schon kubeln. Badkreis gehört separat gelegt, mit dem Kühlst im Sommer eher nicht, heizt aber im Winter. Also Flächenauslegung kannst schon mal so nicht ausführen wenn du das vernünftig machen möchtest. Alles andere hab ich mir noch nicht so genau an gesehen |
||
|
||
|
Auch die Strangauslegung der Rohrdimensionen im Verteilsystem und Anschlussleitungen zu den Verteilern. Kostenoptimierte Auslegung, aber nicht Druckverlustootimiert. Es gilt eigentlich immer, im Heizsystem lieber übertreiben, beim Trinkwasser etwas knapper |
||
|
||
|
Auch die Strangauslegung der Rohrdimensionen im Verteilsystem und Anschlussleitungen zu den Verteilern. Kostenoptimierte Auslegung, aber nicht Druckverlustootimiert. Es gilt eigentlich immer, im Heizsystem lieber übertreiben, beim Trinkwasser etwas knapper Auch bei der Trinkwasserplanung fällt auf die schnelle auf. Gartenwasser. Ist das Trinkwasser? Dann steht das Wasser halt oft unbenutzt in den Leitungen( Winter) diese sollten durchgeschliffen werden. Außer ihr braucht eine Enthärtung. Dann sollten diese aber bei Nichtgebrauch entleerbarr sein. Die Dimensionierung kann ich nicht richtig sehen ist am Mobil zu klein |
||
|
|
||
|
||
|
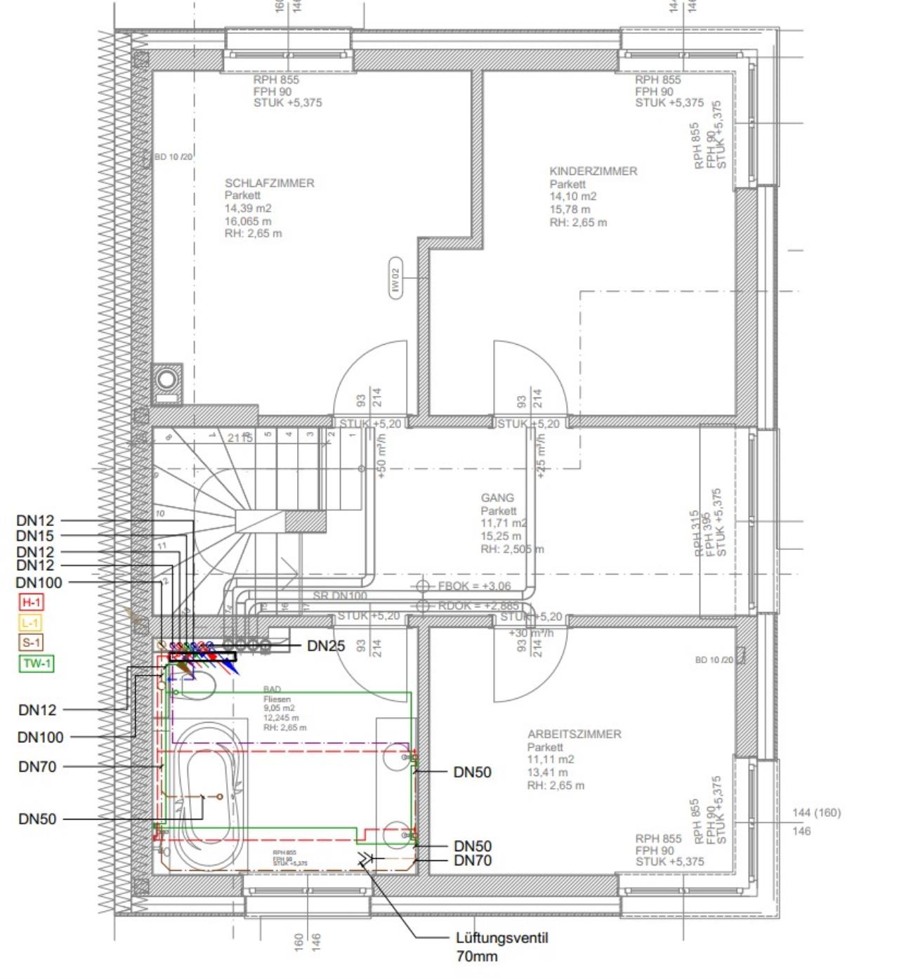
Beide Bäder in den Außenecken. Jeweils ein Kreis, einmal deutlich kürzer als die anderen Räume, einmal deutlich länger. Demzufolge würgst du den kurzen Kreis komplett ab, der lange bleibt von selber kalt. Ergebnis: Kalte Badezimmer. Da wird das bissl Luft von der KWL KWL [Kontrollierte Wohnraumlüftung] keinen Unterschied machen. Jetzt weißt du auch, warum die Planung so billig ist - weil sie für die Tonne ist. |
||
|
||
|
Ach, ich bin eigentlich auch kurz davor das Büro zu beauftragen. Ich fand das eigentlich ganz sympathisch, dass sie auf ihrer Homepage schreiben sie legen explizit nicht nach flow30 aus sondern machen das besser. Das konnte ich nachvollziehen, denn flow30 ist natürlich gut zu merken, wenn sich jemand damit beschäftigt sollte es ja möglich sein das besser zu berechnen als die Daumenregeln zu nutzen. Ich wollte nur eine Fussbodenheizung (ohne BKA BKA [Betonkernaktivierung]) berechnen lassen. Von daher bin ich auch gerne für Alternative Büros offen. |
||
|
||
|
Wenn du schon Geld dafür zahlst, solltest du das Heizen und Kühlen ganzheitlich für dein Gebäude betrachten. Nicht einfach nur...... Wie gesagt, Planungsbüro Komposch! Flow 30 ist keine Daumenregel, sondern Grenzwerte für die Auslegung der Flächen |
||
|
||
|
Das muss man wohl schreiben, wenn man flow30 nicht KANN. Das sind ja keine "Daumenregel", sondern das Ergebnis hoher Planungskunst und Expertise. Zuerst wird belächelt. Dann schlecht geredet. Dann hilflos und hemmungslos kopiert. Ich fürchte, mangels Namenschutz werden in 2 Jahre alle sagen, "jaja, natürlich legen wir nach Flow30 aus", ohne einen Tau davon zu haben, wozu man das eigentlich macht. Solche Beispiele gibt's ja heute auch schon, welche Schweinereien teilweise als RGK RGK [Ringgrabenkollektor] verkauft werden... 😭 Dieser Satz sagt ALLES über die mangelnde Kenntnis des Büros aus, worum es bei Flow30 überhaupt geht und wozu man das macht. Da kannst vom Rohrhersteller auch gleich auslegen lassen, ist zumindest gratis. |
||
|
||
|
Danke für eure Rückmeldungen! Ich bin dann erstmal etwas schockiert - ich dachte bei dem Büro handelt es sich um ein langjährig bewährtes Ingenieursbüro - die Bewertungen waren auch sehr gut, und im Internet habe ich auch nichts Schlechtes über die gelesen 🤨 nein meine Vorgabe war nicht Flow30 - ich habe nur öfters davon gelesen. Ich interpretiere flow30 als gute Faustregel, um ohne große Berechnungen zu einer guten Lösung zu kommen. Ich habe das nie so ganz verstandan weiso ein längerer und ein kürzerer Kreis ein Problem sein sollte? - Klar, wann ich am HKV alles voll offen hab, dann sehe ich den Kurzschluss, aber die Wassermengen je Kreis wurden genau berechnet - wenn ich den HKV nach diesen Durchflüssen einstelle, dann sollten die Rücklauftemperaturen die gleichen sein. Oder verstehe ich hier etwas falsch? Ich habe mich auch gewundert - bei Flow30 wird auch 30 mm Versorgung zu den HKV empfohlen. Wenn man aber gegenüber rechnet, was ein DN25 mehr an Energie verbrät gegenüber einem DN32, dann lohnt sich der teurere Materialeinsatz bei den Steigleitungen nicht. Das könnte ich noch leicht so ausführen - die BKA BKA [Betonkernaktivierung] wird von der EG Decke von mir erst in KW2 verlegt. Ich kann den Kreis einfach splitten beim Bad. Du meinst, ich sollte im Bad im Sommer nicht kühlen wegen der höheren Kondensneigung in den Feuchträumen? Ja, das ist leider ein Kompromiss gewesen, um die Positionierung bin ich leider nicht herumgekommen. Immerhin ist das Gebäude gekoppelt - somit ist das Bad in keiner echten Außenecke, da das Nachbargebäude auch beheizt wird (und nicht gedämmt ist) Meint ihr, ich sollte den Kreis mit dem großen Druckverlust splitten, um Energie bei der Heizkreispumpe zu sparen? Im Endeffekt muss ich doch die gleiche Energie aufwenden. Die Reibung an den Rohrinnenwänden ändert sich nicht, wenn ich die Durchströmung gleich lasse. Wo habe ich hier meinen Denkfehler? |
||
|
||
|
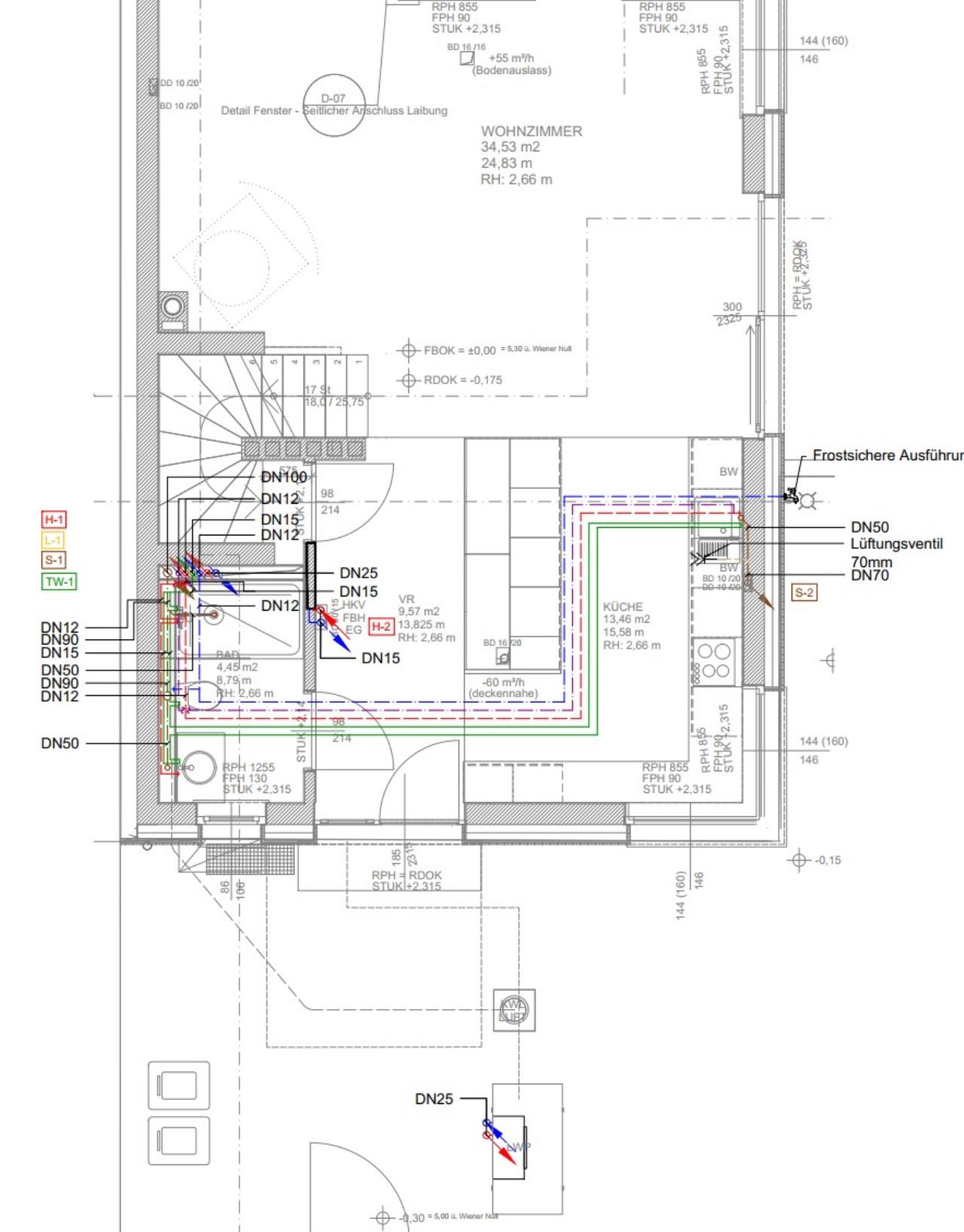
Ich habe vergessen zu erwähnen, dass ich die BKA BKA [Betonkernaktivierung]- und FBH FBH [Fußbodenheizung] Verteiler nicht zusammenfassen werde. Im Sommer möchte ich ggf. nur mit der Decke kühlen können. Ich werde hierfür einen eigenen Mischer installieren. |
||
|
||
|
Indem du den Heizkreis drosselst, nimmst du ihm die Heizleistung, die du im Bad am dringendsten brauchst. Umgekehrt kannst du den zu langen Kreis im anderen Bad nicht mehr als voll aufdrehen. Der bekommt also von Haus aus zu wenig. Wenn man es ganz genau rechnet, kann man im Bad etwas kürzere Kreise legen. Wenn die dann voll offen sind, kommt mehr Wärme an, was ja im Bad das Ziel ist. Das ist aber in dem Fall ganz offensichtlich nicht gemacht worden. |
||
|
||
|
Sagte man über Verbrennermotore auch, bis dann BEVBEV [Battery Electric Vehicle, Elektroauto] kamen. Das Problem ist wirklich, dass solche Auslegungen "immer schon so gemacht" worden sind, und bei Flammenheizungen auch ganz passabel funktioniert haben. Nur wissen viele auch gar nicht, wie schlecht ihre WP WP [Wärmepumpe] eigentlich läuft, bis der Smartmeter der neuen PV plötzlich 50 Zacken am Tag anzeigt, überspitzt formuliert. Beispielsweise ist das Eindrosseln der unterschiedlich langen Heizkreise (hydraulischer Abgleich) nur für einen definierten Arbeitspunkt der Heizkreispumpe gültig. Sobald sich die Drehzahl ändert stimmen die Volumenströme untereinander aufgrund der nichtlinearen Widerstandswerte unterschiedlicher Heizrohrlängen nicht mehr. Deswegen kann man bei so einer Auslegung nie das Energiesparpotential einer modulierenden Heizkreispumpe nützen. Bei Flow30 sind die Heizkreislängen harmonisiert, in jedem Heizkreis ist der selbe Volumenstrom, der hydraulische Abgleich wurde per Planung gemacht. Man kann alle Heizkreise voll aufdrehen, und das ermöglicht erst niedrigste VL VL [Vorlauf] Temperaturen. Und eine modulierende Heizkreispumpe ist auch überhaupt kein Problem mehr. Dafür braucht man aber Hirnschmalz und Know-how, sowas fällt nicht vom Himmel. Flow30 ist das optimale Ergebnis nach eingehender Berechnung, kein Zufallsprodukt.
|
||
|
||
|
Falsch Falsch Genau so Das sagt dir schon alles. Aber wenn du immer noch glaubst dass dein Planungsbüro das richtig macht, dann Bau es so. Warm wird es. Wenn du aber Änderungen an Volumenströmen, Pumpen oder dergleichen vornehmen musst weil Räume nicht passen, wird ein nachregulieren nur schwer möglich. Auch wie DS schreibt, die Harmonie im Druckverlust der Kreise. Pumpen werden fix auf Spreizung gestellt, auf Volumenstrom der zur WP WP [Wärmepumpe] passt. Hast du jetzt unterschiedlich lange Kreise, werden diese nicht linear weniger bekommen, sondern hier fällt das Ungleichgewicht so aus Also plane richtig, ist viel einfacher als hinterher Fehler wieder gerade zu bügeln. Es gibt hier zig Anlagen, die genau so laufen, nach flow 30 und diese Anlagen sind diejenigen die für Heizen und Warmwasser weniger Energie brauchen (Stromverbrauch) als das Haus selbst |
||
|
||
|
Nein, der Widerstand steigt quadratisch mit der Länge. Nein, weil es dir im Bad sonst zu kalt wird wenn du nackt und nass aus der Dusche kommst. |
||
|
||
|
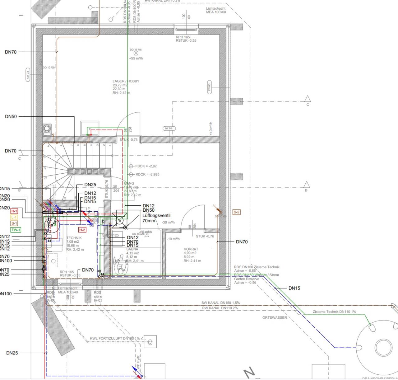
Ist der Keller im Energieausweis eingerechnet? Ganz verstehe ich das nicht. Das Büro rechnet mit 17x2 und du verwendest dann 16x2 in der Hoffnung zum gleichen Ergebnis zu kommen? 16x2 hat aufgrund des geringeren Querschitts einen höheren Druckverlust! Aber wenn ich mir die Planung generell so anschaue, dann ist das auch schon egal. Du hast einen Lottoschein bekommen, mit dem nichts zu gewinnen ist: ![]() Die Vorredner haben eh schon darauf hingewiesen. Grundlegend fehlt es an folgenden Stellen: 1.) Diese Planung kann nicht mit variablen Volumenströmen umgehen. Das System wird nur in einem speziellen Betriebspunkt hydraulisch abgeglichen sein. Sobald sich der Volumenstrom ändert, hat das direkte Auswirkungen auf den Druckverlust. 2.) Die Bäder sind massiv unterversorgt! Großer Außenwandanteil bewirkt mehr Wärmeverlust. Ich sehe keinen Nordpfeil eingezeichnet, aber ich vermute, dass die Bäder auf der Nord bzw NO Seite sein könnten. Das heißt, auch keine solaren Gewinne. Ohne (hydraulisc abgestimmte) Wandheizungen werden hier die Zieltemperaturen nicht erreicht. 3.) Alle BKA BKA [Betonkernaktivierung] Kreise mit 20x2 und dieser geplanten Länge müssten eingedrosselt werden, um einen vernünftigen Prallelbetrieb FBH FBH [Fußbodenheizung]/BKA zu gewährleisten. Die BKA BKA [Betonkernaktivierung] im OG Bad ist mit der falschen Flussrichtung geplant. Außerdem bringt diese mit dem großen Verlegeabstand in diesem Bereich nichts. Kleinere Rohrdimension und engerer Verlegeabstand nur für diesen Bereich, dann wäre es sinnvoll gelöst. Eine kühlere Temperierung im Sommer erreicht man am Besten mit FBH FBH [Fußbodenheizung]&BKA. Lediglich die Bäder würde ich abdrehen, da es hier keinen Sinn macht, die zu kühlen. Das mit dem Mischer finde ich interessant. Was willst mit was mischen? Tut mir leid, wenn ich das sage: aber schade um das investierte Geld. Da hättest ums gleiche Geld wirklich eine Planung für die essenziellen Sachen bekommen.
|
||
|
||
|
Danke für eure Rückmeldungen! Hui - da habe ich doch noch ganz schön was vor mir, obwohl ich mir eigentlich Arbeit sparen wollte... Ich verstehe durch eure Ausführungen nun, dass die Auslegung mit dem hydraulischen Abgleich nur bei einem Betriebspunkt der Kreispumpe richtig funktionieren kann. Ich hatte nur angenommen, dass die Heizleistung rein über die Vorlauftemperatur moduliert wird, und nicht über die Pumprate der Kreispumpe. Bei meinen sehr unterschiedlich großen Räumen, denke ich, ist es schwierig gleiche Kreislängen /Druckverluste hinzubekommen, ohne dass sich dann Räume einen Kreis teilen müssten. Die Kreislängen sind bis auf das EG Bad (46 m) und OG Gang (67 m) und OG Arbeitszimmer (114m) sonst zwischen 90 und 100 m. Nicht schlüssig für mich ist, wieso im Kinderzimmer zwei kürzere Kreise mit einem engeren Verlegeabstand gewählt worden sind, und im Schlafzimmer nicht - obwohl der Heizwärmebedarf nur 100W zwischen den beiden Räumen auseinander liegt. Habt ihr einen Vorschlag, wie sich die Aufteilung sinnvollerweise ändern könnte? Ich bin gerne bereit, im Badezimmer eine Wandheizung zu installieren, und euren Vorschlägen zu folgen. Die Verlegung der BKA BKA [Betonkernaktivierung] in der EG Decke soll nur schon am 13.1 erfolgen, ohne den Bauzeitplan zu gefährden. Habt ihr hierfür Ideen was ich definitiv ändern sollte an der EG BKA BKA [Betonkernaktivierung]? Die FBH FBH [Fußbodenheizung]-Verlegung wird zum Glück noch ein paar Monate brauchen, und ich kann hier noch die Hausaufgaben korrigieren (lassen) Abgesehen von der vermurksten FBH FBH [Fußbodenheizung]/BKA Planung - was hält ihr vom Rest der Sanitärplanung? Die Pläne/ Grundrisse sind übriges fast nordweisend. Die "ostseite" ist nur um etwa 30° mehr nach Süden gedreht. Die Badezimmer sind somit quasi Südseitig. Die westseitige Wand ist gekoppelt zum Nachbargebäude, welches auch beheizt wird, daher sind die Badezimmer nicht in einer klassischen Außenecke. |
||
|
||
|
Kreise hören nicht in einem Raum auf, sondern die Kreise jungen auch untergeordnet andere Räume mit Flure Endversorgen. So funktioniert Hydraulik Räume unterschiedlicher Ausrichtung. Aber diese Verlegeunregelnäßigkeit versteh ich auch nicht. Aber die is ja eh für die Tonne |
||
|
||
|
Evtl kann hier Berhan gut helfen, er hat bei BKA BKA [Betonkernaktivierung] richtig gut plan |
||
|
||
|
Ich habe mich etwas in die Beiträge von Berhan eingelesen und mir seine Auslegungstabelle auch näher angesehen. - in weiterer Ausführung dann die Tabelle von Mampfgnom, mich dann aber auf die (ursprünglichere) von Berhan fokusiert. https://www.energiesparhaus.at/forum-heizungsauslegung-mit-berhans-tabelle/60386_9 https://www.energiesparhaus.at/forum-berhansche-fbh-bka-wh-auslegungstabelle-sammelthread/57657 Ein großes Fragezeichen steht bei mir bei diesen Berechnungen in Hinblick auf die unterschiedlichen Rücklauftemperaturen, und die sehr geringen Spreizungen, mit denen sie in ihren Berechnungen auskommen. Bei mir liegt die Spreizung nach Ausführung von dem Büro bei 5K. Ich werde versuchen, meine Planung mit deren Berechnungstabelle auf bessere Beine zu stellen. Im Badezimmer im OG und EG werde ich definitiv eine Wandheizung vorsehen und auch unter Wanne und Dusche nun die FBH FBH [Fußbodenheizung] vorsehen. Die erforderlichen Heizlasten kann ich zumindest von meinem alten Planungsbüro mal übernehmen. Ich beginne bei den Bädern, und mache damit dann den Druckverlust fest, den ich dann bei den anderen Kreisen möglichst gleich behalten werde. Ich habe einen Forumsbeitrag gefunden, wo der Ersteller auch scheinbar an das gleiche Büro geraten war wie ich: https://www.energiesparhaus.at/forum-auslegung-fbh-wh-bka/72322_1 Im Kühlbetrieb im Sommer kann ich mir vorstellen, dass ich beim Fußboden schneller den Taupunkt erreichen könnte als bei der Decke, von dem her denke ich, dass ich unterschiedliche Temperaturen im Vorlauf jeweils benötigen werde, um die Kühlleistung zu maximieren. Ich werde sehr wahrscheinlich (im Sommer) auch kälter mit der WP WP [Wärmepumpe] in den Technikraum fahren, da ich auch ein Entfeuchtungsgerät mit gekühltem Wasser versorgen muss. Im Heizbetrieb könnte ich mir vorstellen wärmer in die Betondecke, als in die FBH FBH [Fußbodenheizung] zu fahren, falls doch mal ein Überschuss zur kalten Jahreszeit vorhanden sein sollte. |
||
|
||
|
Was ist dir denn unklar bei den Rücklauftemperaturen und Spreizungen? Ich messe zwar nicht die RL RL [Rücklauf] einzelner Heizkreise, aber den gesamt RL RL [Rücklauf] ziemlich genau und der ist bei mir wie festgenagelt. Hier ein Bild einer etwas kälteren Nacht ![]() Die Heizkurve habe ich auf VL VL [Vorlauf]=27C bei AT AT [Außentemperatur]=-10C und VL VL [Vorlauf]=28C bei AT AT [Außentemperatur]=-20C gestellt. Bei -10C macht das dann ungefähr eine Spreizung von 3K, vermutlich etwas weniger. Das beobachte ich auch so in der Realität. Berhan hat glaube ich noch kleinere Spreizungen wegen seiner Hydraulik und weil seine Luft WP WP [Wärmepumpe] eine stärkere Pumpe mit mehr Durchsatz benutzt. |
||
|
||
|
Aus der Praxis: Im Sommer drehe ich die FBH FBH [Fußbodenheizung] komplett ab (da sonst zu kalt im Haus), und der min. VL wird auf 20°C begrenzt (da sonst zu kalt im Haus) - da sollte nix kondensieren. Im Spätsommer, bei warmer Sole um die 21°C dann, hänge ich bei Bedarf die FBH FBH [Fußbodenheizung] dazu, um zusätzliche Kühlflächen zu generieren. Das hat bis jetzt immer gereicht. |
||
|
||
|
wir haben schon dutzende planungen von der seite zur neuauslegung bekommen. die normheizlast paßt immer - kein wunder dort wird ja auch mit der forumstabelle aus dem htd-forum gearbeitet. aber heizflächenauslegung ist immer mehr oder weniger unbrauchbar. standardsoftware nimmt immer den verlegeabstand fix und errechnet aus der raumweisen heizlast den volumenstrom. das war schon früher nicht optimal, aber seit modulation & variable wasserumlaufmengen standard sind funktioniert es schlicht nicht mehr. flow30 hat daher den paradigmenwechsel vollzogen und nimmt die kreislänge fix und den verlegeabstand variabel. dieser hat nämlich nur 1/10 des einflußes auf die heizleistung gegenüber der fläche. nur so ist ein hydraulischer abgleich bei unterschiedlichen volumenströmen überhaupt machbar, weil der druckverlust nicht linear sondern exponentiell mit dem volumenstrom steigt. der zweite punkt ist daß eine rein verlustbilanzierte heizlast im neubau nicht mehr funktioniert. die EN12831 ist daher in A auch nur für altbauten mit einem mittleren u-wert > 0,5W/m2K zulässig. dort spielen innere & solare gewinne eine untergeordnete rolle. wir simulieren daher raumweise und füttern mit dem ergebnis den flowplanner. dort planen wir die kreislängen auf +/- 10% unterschied. manchmal auch weniger ... 😉 eine solche auslegung hat den hydraulischen abgleich schon per planung erledigt und kann daher voll offen ohne eingedrosselte kreise betrieben werden. die errechneten volumenströme der kreise sind am verteilerbalken real umsetzbar & ablesbar. dies ist das einzige hydraulische system das über alle betriebspunkte gleitend von übergangszeit zu typischem winter bis sibirischer woche stabil ist... https://www.energiesparhaus.at/forum-romsch-fbh-planung-verlegung/84488
|
Beitrag schreiben / Werbung ausblenden?
Einloggen
Kostenlos registrieren [Mehr Infos]

















