EFH ca. 180m²
|
|
||
|
Hallo! Mir gefällt der Plan gut, nur ein paar kleine Anmerkungen: - Der Technikraum ist sehr klein, wie wollt ihr heizen, was muss da rein? Eventuell kannst du ihn unter der Stiege weiterziehen? Ist das falsch eingezeichnet oder kommt man in den Technikraum nur von außen? - Wenn du den Technikraum mit dem Stiegenhaus tauschst (und oben das Bad umlegst), dann hättest du wirklich eine separate Wohneinheit oben. Sonst muss man ja wieder durch den privaten Raum um nach oben zu gelangen. - Falls das oben eine eigenständige Wohneinheit sein soll, dann gleich in einem Zimmer Küchenanschlüsse vorsehen. Viel Erfolg mit dem Projekt! |
||
|
||
|
Vielen Dank für die rasche Rückmeldung! Zur Technik: wir planen mit Wärmepumpe und Photovoltaik. Waschmaschine etc. soll im HWR untergebracht werden. Der Technikraum soll tatsächlich unter der Stiege weitergezogen werden. Die Frage ist aber auch, wie viel Platz braucht man wirklich dafür. Die Trennung stelle ich mir folgendermaßen vor: ![]() ![]() Die Stiege von vornherein zum Windfang zu geben, macht mich nicht wirklich glücklich, da es für mich am Anfang einfach unpraktisch und ungemütlich ist, wenn man immer durch den Schmutzbereich muss. Die Anschlüsse für eine Küche im OG werden auf jeden Fall mitgeplant. Wir würden auch im EG im Badezimmer einen Anschluss für ein WC planen um im Fall der Fälle hier auch dem Alter Rechnung zu tragen. |
||
|
||
|
Wenn du den Technikraum unter der Stiege weiterführen willst, muss der Aufgang auf der anderen Seite sein, dh oben den Eingang ins Bad noch ändern. Irgendwo gibt es eine Richtlinie, wo definiert ist, wie viel Austrittsfläche bei Treppen notwendig ist (bilde mir ein 1,20 m), also glaube nicht dass es möglich oder praktisch ist, die Tür gleich nach der letzten Stufe zu machen (OG). Achtet beim Bauen darauf, dass die Wände, die ihr später eventuell entfernen möchtet, leicht wieder abzubauen sind. Oder plant gleich einen großen Durchgang, der bis dahin zugemacht wird. Macht ihr ein Flachdach? Insgesamt gefällt mir der Grundriss sehr gut! |
||
|
|
||
|
||
|
die statik ist hier ja auch ein thema, diese säule in der mitte zwischen küche und essplatz/Wohnzimmer wird einiges tragen müssen, hier wird man über einen nord-süd verlaufenden sowie zur vorzimmerwand führenden über-oder unterzug leben müssen auch das ansich schon schmale bad im EG wird rundherum tragende wände bekommen wieviele meter dehnt sich denn das OG in nord-süd richtung aus? hier einfach diese wand zwischen zimmer 1 und 2 später mal weg nehmen wird nicht leicht, da man hier wahrscheinlich eine tragende mauer quer (west/ost) legen muss |
||
|
||
|
Das OG hat in Nord-Süd-Richtung eine Länge von 9,4m, das Zimmer 1 eine Breite von 3,75m. Klar hier muss drauf geachtet werden. Ganz generell sind zur Zeit die Innenwände mit 25 cm eingezeichnet, die Außenwände mit 50 cm. Zum Dach: Ja Flachdach wäre einfach aufgrund der Optik unser Wunsch, wir sind uns aber nicht ganz sicher in Bezug auf die Dauerhaltbarkeit und wir glauben, dass ein Pultdach hier die sicherere Alternative wäre. Ich habe jetzt nochmal die Trennung zwischen EG und OG eingezeichnet, wie sie wohl möglich wäre, wenn man die Stiege dreht und den Bereich unter der Stiege der Technik zurechnet. Hätte auch den Charme, dass das OG komplett unberührt bliebe in diesem Bereich. ![]() ![]() |
||
|
||
|
Gibt es sonst noch die eine oder andere Rückmeldung? Ich würde mich über weitere Beiträge freuen!! Danke! |
||
|
||
|
Hallo emundem, prinzipiell gefällt mir dein Grundriss ganz gut! Hier nur einige kleine Anmerkungen: Sind beide Toiletten ohne Handwaschbecken geplant oder sind die nur nicht eingezeichnet? Im OG ist das Bad ja noch relativ nahe, da kann man rüber gehen. Aber was ist der Plan fürs EG? Da muss man sowohl zur Küche als auch in Bad durch das halbe Stockwerk gehen. Im OG schaut es so aus als würde die Badezimmer-Türe mit der letzten Treppenstufe überschneiden. Evtl. täuscht das, würde ich an deiner Stelle aber noch einmal überprüfen und nachbessern. Vielleicht kannst du oben ja Bad und WC zusammen fassen, um so eine Türe zu sparen und mehr Treppenauslauf zu schaffen? LG, ijjiij |
||
|
||
|
es ist ja nur ein grober Grundriss aber wenn man Stiege und Windfang tauschen könnte hätte das nur positive Effekte innen und außen, ja verändert den Eingang auf die Ostseite und weil das drumrum ja garnicht gezeigt wird nicht bewertbar |
||
|
||
|
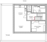
Hallo, vielen Dank für die Rückmeldungen. In den WC in EG und OG sind Handwaschbeecken geplant. Die Stiege habe ich nochmal geändert. Zusätzlich habe ich noch die ungefähre Lage auf dem Grundstück eingezeichnet: @ChristianIV: warum meinst du, sollte man Windfang und Stiege tauschen. Kannst du die positiven Effekte vielleicht noch genauer ausführen? Vielen Dank |
Dieser Thread wurde geschlossen, es sind keine weiteren Antworten möglich.Nächstes Thema: FlexibleDesign Classic 131: Mängel im Grundriss?









