Allgemeines Stützmauer Ortbeton
|
|
||
|
"Staberl" (Betoneisen) nach dem Fundamentbetonieren "reinstecken" wirds wohl nicht spielen. Auch wenns nur ein Garten ist, 135 cm abzufangen bedarf es mehr.... Normalerweise wird das Fundament mittels Korb bewehrt, in dem dann die senkrechten Eisen eingebunden werden sollten, gewissermaßen in L-Form. Aus einem Guß wird die Mauer eh nicht betoniert nehm ich an, somit ergeben sich eh die Trennfugen, aber dazu müsste man schon mehr Informationen haben. Abdichten wüsste ich nicht wozu....... |
||
|
||
|
Beim Nachbarn habens das wohl genau so gemacht. Staberl sind mehr oder weniger so lang wie die Mauer hoch und in den nassen Beton gesteckt. Wohl so vom Statiker abgesegnet. Und da steck ich wieder im Zwiespalt - gängige Praxis, so stehen wohl tausende Mauern und fallen nicht um, teils abgesegnet von Statikern und die Lehrmeinung auf der Uni ist halt eine andere (praxisferne, gürtel Hosenträger) Und die Mauer ist ähnlich hoch, wenn nicht bissl höher und ähnlich lang, nur nicht ums Eck. Stützt halt quasi einen Gartenteil zum anderen ab. Bei uns stützt es unseren Garten zum Nachbarn ab. Aktueller Plan wäre ein Guss... |
||
|
||
|
wenns ein Guss wird und ihr die Körbe selbst baut könnt ihr die Eisenstangen doch einbinden Schadet ja definitiv nicht und kostet euch außer Nerven auch nicht mehr |
||
|
|
||
|
||
|
Wie breit/hoch habts ihr denn das Fundament geplant? |
||
|
||
|
ich hab aktuell eine ähnliche Situation. Aussage der Gemeinde war bei mir, wenn die Mauer als Stützmauer deklariert wird, ist ein statischer Nachweis und ein Nachweis der "korrekten" Ausführung vom Baumeister notwendig. Üblicherweise ist eine Mauer dann eine Stützmauer, wenn sie Erddruck aufnehmen muss. Ich hab meine rund 60cm hohe Ortbetonmauer nun als "Zaunsockel" deklariert. Fundament ist rund 70x70. Ob das nun alles so nach burgenländischer Bauordnung ist, kann ich nicht sagen, aber das war zumindest die Info, die ich erhalten habe. |
||
|
||
|
Bei uns fordert die Gemeinde lt. Bescheid keinerlei Nachweise, nichtmal Bauplakette. Eingereicht ist die Sache (explizit nur die Mauer und Carport) über das vereinfachte Verfahren. Fundament soll "bei 1,35m Sichtfläche etwa 1m breit" werden. Oberkante Fundament soll min. 20cm unter Gelände liegen (d.h. wir reden etwa über 1,5-1,6m Mauer und 2/3 davon Fundamentbreite), ich vermute etwas tiefer damit das Fundament nicht 60cm dick werden muss, ist ja auch alles Erde die wir schlimmstenfalls wegkarren müssen. Grundsätzlich stützt die Mauer nur im Eckbereich die vollen 1,35m, im ersten drittel der Mauer geht das Ursprungsgelände recht steil auf etwa 80cm Sichthöhe hoch und fällt dann über die andere 2/3 wieder auf 1,35m. Grundsätzlich will ich aber dem Nachbarn statisch "erlauben können, nicht müssen" bis auf die 1,35m abzugraben. Die Betonschlitze sind wohl per Dreikantleiste einfach als "Sollbruchstelle" ausgeführt und die Bewehrung in dem Bereich ausgelassen. Klingt für mich zumindest schlauer als "wir machen da nachher einfach mit der Flex einen Schnitt" (in die Bewehrung die dann dort rostet und alles aufsprengt?!) Wie gesagt, kein Statiker sondern "werden schon wissen was sie tun" ;) Gleiche Partie wie beim Nachbarn wo das anscheinend so vom Statiker abgesegnet wurde. Vl. bekomm ich diesen Kontakt und wirf da ein paar Münzen ein für ein offizielles OK. |
||
|
||
|
so kenn ichs auch...und dort haben wir dann noch mit der Flex ein bisschen nachgeschnitten, dass es "schöner" reissen kann. |
||
|
||
|
Die Praxis zeigt dass es auch 50cm neben der Sollbruchstelle reissen kann...aber ich würde es grundsätzlich auch so ausführen. |
||
|
||
|
Absolut richtig. Beton reißt, wo er will....😁 Deshalb würde ich mir die Sollbruchstellen überhaupt sparen. Meist reicht die Schalung eh nicht für "einen Guss". Somit ergibt sich die Sollbruchstelle(n) von selbst. |
||
|
||
|
Wir haben mit Dreikantleisten in der Schalung gearbeitet, Bewehrung dort ausgelassen und dann von außen zusätzlich mit der Flex dort eingeschnitten. Dann weiß auch der Beton wo er zu reißen hat. So kommt auch nie Wasser zur Bewehrung weils wo anders reißt. |
||
|
||
|
Ich denk mir bei Fugen halt immer "wo gehts hin wenn sich das ausdehnt" und da ist halt ein bissl Dreikantleiste und Flex nicht zielführend weil keine Luft da ist wo sich das Zeug hin ausdehnen kann. Da bin ich vermutlich zu viel Maschinenbauer mit Vorbelastung hinsichtlich Hochtemperaturanwendungen mit einem Einsatzbereich von -35-900°C... Aber schön, dass hier zumindest Einigkeit herrscht, dass das übliche Praxis ist. |
||
|
||
|
Bei den Temperaturen hättest du aber andere Sorgen als den Beton 😅 Der Beton schrumpft beim austrocknen, deswegen reißt er. Die thermische Ausdehnung ist vergleichsweise gering (bei lebensfreundlichen Temperaturen). |
||
|
||
|
Wie ist die Meinung zu abdichten/dämmen? Abdichten ist eventuell nur ein optisches Thema, speziell mit Drainage soll sich nix anstauen. Noppenbahn kommt sowieso, aber das ist keine Abdichtung. Wie siehts mit dämmen aus? Noppenbahn ohne Dämmung mit Noppen an die Mauer? |
||
|
||
|
Bei einer guten Betonqualität (mind. B2) und guter Betonverdichtung brauchst du keine Abdichtung und Noppenfolie. |
||
|
||
|
Zaunfundament und Stützmauer werden auch bei uns in Kärnten unterschiedlich behandelt, ab 0,8m Höhe ist es eine Stützmauer und Genehmigungspflichtig (Plan, Bauverfahren, fachgerechte Ausführung durch Baufirma, eventuell Statiknachweis), eine Baumitteilung reicht nicht mehr aus. Mit alten schlecht ausgeführten Stützmauern die sich mit der Zeit Richtung Nachbargrundstück neigen gibt es genügend! Streitigkeiten und Bauprüfungen (auch mit Abrissbescheid) sind die Folge. 1,3 m ist beachtlich und erfordert eine gescheites Fundament wie bereits geschrieben, Frosttiefe genügend Breite, eventuell auch Riegel alle 2-3 m in Richtung Hang, mit entsprechender Bewehrung damit die Kräfte aufgenommen werden. Steckeisen die in den frischen Beton für das anbinden der aufgehenden Bewehrung gesteckt werden, sind gängige Praxis, jedoch muss das Fundament auch odentlich bewehrt werden damit das ganze hält. Abdichten ist auch aus meiner Sicht nicht notwendig, Noppenfolie ist durchaus ok. Lg Bernhard aus Kärnten. |
||
|
||
|
das wird zu wenig sein. Die eingesteckten Eisen zieht es durch den gewaltigen Hebel der aufgehenden Mauer aus dem Beton wie nichts. Diese Verbindungseisen zwischen Fundament und aufgehender Mauer müssen als "L" in den Korb eingebunden sein, die aufragenden Enden umgebogen sein. ![]() |
||
|
||
|
Ich bin inzwischen soweit, dass ich einerseits einen Statiker angefragt hab ob er über die Bewehrung drüberschauen kann bzw. hab einen sauberen Bewehrungsplan von einer ähnlichen Mauer (mit dem Unterschied, dass dort dahinter auf dem oberen Niveau ein Bungalow ohne Keller steht). Manchmal würd ich gern in Slowenien wohnen - der Plan für 2 verwinkelte Mauern mit Treppen 150€... Und dann kommen die mit der vormontierten Bewehrung am LKW und werfen die nur in den Graben. Chef der Baufirma hat mir bestätigt, dass die Eisen L förmig eingebunden werden müssen - insofern alles einigermaßen im Rahmen. Statisch würd ichs so verstehen, dass das hintere L förmige Eisen das wichtigste ist, deswegen auch 12mm. Das übernimmt die Zugkraft die durch das Kippmoment in der Trennstelle auftritt. Umgebogen ist wohl das Tüpfelchen auf den i, aber wenn das Ding 1m lang im Beton steckt reißt das Stangerl wohl eher ab bevor es aus dem Beton gezogen wird. Ich fürchte nur, dass wir dank Pfand nicht genug Plastikflaschen haben um alle abzusichern wenn sie nicht gebogen sind :) Hinsichtlich Abdichtung - ganz ohne fühl ich mich irgendwie nicht wohl, speziell wenn ich da dran denke, dass ich vl. an gewissen Stellen irgendwann (= nicht so bald, vl. nie) eine Verblendung draufkleben will. Was wäre da eine günstige, einfache Variante? 2K Dickbeschichtung wär halt die Luxusvariante, halt mit Luxuspreis auf die ca. 55m2. |
||
|
||
|
um auch etwas senf dazuzugeben. Die Bodenplatte würde ich mit Matten machen, anstatt der 1.2m breite würde ich das Fundament auf 1.30m schalen, dann passt genau eine halbe Matte hinein. Und generell wenn ich die Bewehrung oben ansehen, ist es ein kunterbunter Mix bei den Verlegeabständen. Bügel Bodenplatte alle 20 Steckeisen alle 15 und Abschlussbügel oben alle 25 lg |
||
|
||
|
Davon würde ich dringend abraten. Die geschlossenen Bügel haben schon einen Sinn. |
||
|
||
|
Bzgl Abdichtung wenn das wirklich so ungewiss ist mit den Klinkern würde ich da höchstens eine Noppenfolie hinlegen, wenn dann wirklich mal was kommen sollte klebst hald dünnes XPS oder Kalziumsilikatplatten davor und darauf dann die Klinker, oder gibst dann den Sperrgrund drauf, oder du nimmst billige Abdichtungsmasse aus dem Baumarkt, fürs Haus vielleicht eher mit Bauchweh, bei der Gartenmauer wird's schon reichen würde ich meinen |
||
|
||
|
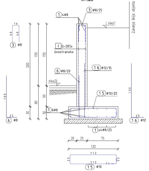
So, Ausführung ist besprochen. Oben/unten AQ70 Matte Bügel 8mm (16cm hoch, 70cm lang) auf beiden Seiten. Verbindung zur Mauer soll über 90° gebogene 10mm Stäbe geschehen die alle 45(!)cm in den Korb eingebunden werden sollen. Ist das nicht viel zu wenig? Im gezeigten Plan sind auf der Zugseite alle 15cm 12mm Stäbe geplant... Wenn ich auf die Bilder von der Ausführung schau haben die da zwar auch 20cm Abstand ausgeführt, aber das ist immer noch mehr als doppelt so viel und noch dazu 12er und nicht 10. Ich schwanke zwischen "scheiß drauf wird schon halten wenn die das dauernd machen" und Baustop bis da eine vernünftige Statik nachgewiesen ist. |
Beitrag schreiben / Werbung ausblenden?
Einloggen
Kostenlos registrieren [Mehr Infos]


