Lüftungsanlagenplanung Neubau.
|
|
||
|
Hast du schon ein bisschen im Forum gelesen? Die Ausführung mit so dünnen Flexschläuchen ist suboptimal. Da bekommst du die notwendigen Volumenströme nur mit mehreren Rohren halbwegs geräuschlos hin. Die Volumenströme in deiner Auslegung sind teilweise hart an der Grenze und teilweise unterdimensioniert. Pro Person sollte man in den Schlafräumen mit mindestens 25m³/h rechnen. Auch daran denken, dass die Kinder vielleicht in ein paar Jahren gelegentlich zu zweit sind. Hier findest du gute Infos und eine Dimensionierungshilfe: https://www.komfortlüftung.at/ Den Fahrradraum solltest du nicht so direkt einbinden, wenn der außerhalb der thermischen Hülle liegt. |
||
|
||
|
Ich dachte eigentlich schon :D In der Tabelle auf komfortlüftung.at steht ja als Ziel, dass 75mm Schläuche mit 1,5m/s zu etwa 24m^3/h zu dimensionieren sind. Maico hat jetzt 26,3m^3/h gemacht, was ja durchaus zum Richtwert passt. Abluft ist sogar nur mit 18m^3/h dimensioniert. Eien wirkliche Unterdimensionierung sehe ich also nicht wirklich. Das mit dem Kinderzimmer hatte ich auf dem Schirm, habe aber gelesen, dass es sehr gut sein soll wenn dort das Ventil maximal geöffnet werden kann. Wenn man dort zwei Schläuche hinlegen würde, müsste man das Ventil ja stark drosseln, was Geräusche verursachen kann. Das fand ich ein gutes Argument dort nur einen Schlauch zu legen. Eine wirkliche Alternative zum verlegen habe ich auch nicht wirklich. Der Keller ist wegen Abwasseranschluss auf 2,32m lichte Deckenhöhe begrenzt wenn der Eingang ebenerdig sein soll. Da kann ich nicht wirklich abhängen. Nach oben bin ich durch die Traufhöhe beschränkt, so dass das EG zwar eine lichte Höhe von 1,62m hat, den großen Allraum würde ich aber deswegen nicht abhängen. Im DG ist es sowieso relativ knapp. Der Spitzboden hat an der höchsten Stelle gerade einmal 70cm. Von daher sehe ich nur die Lösung mit den Flexrohren. Gegen mögliche Alternativen sperre ich mich keinesfalls, wie gesagt, ich sehe einfach keine. Edit: Mit der Fahrradgarage hast du natürlich recht. Der Plan wurde noch nicht angepasst, das ganze kommt nun nämlich in die thermische Hülle und wird als Abstellkammer/Speisekammer genutzt. Hatte ich vergessen zu erwähnen. |
||
|
||
|
Deswegen sollte man auch im Verteiler drosseln. Wenn du wirklich zwei Schläuche legst und an den Ventilen regelst, kannst du auch eins komplett zudrehen und das andere offen lassen. Ich weiß jetzt nicht wie euer Keller ausschauen wird, aber da könnte man auch eine offene Verlegung überlegen und gar nichts abhängen. In den anderen Geschoßen bietet sich eine (Teil-)Abhängung im Flur an. Dazu noch ein Teil im Büro an der Wand zum Wohnzimmer und im Bad über der Dusche. Die Ventile sitzen dann jeweils an der Wand zum Flur. |
||
|
|
||
|
||
|
Hm, tatsächlich habe ich sowieso geplant im EG das Bad und das Büro abzuhängen. Flur bisher noch nicht. Allerdings wären ja dann die Einlässe immer nur an der Wand und damit gefühlsmäßig die Hälfte des Hauses nicht wirklich durchlüftet. Im Keller soll es im großen BEreich eher etwas wohnlicher sein. vermutlich kommt mein Büro eher da hin, da meine Frau das Büro im EG bereits als Allzweckraum verplant... Wenn es nur um die Durchmesser geht, gerade im DG wäre es möglich 90mm Rohre hochzulegen und über der Decke zu verteilen. Alternativ auch ein zweites Rohr, wobei ein 90mm Rohr ja auch von der Luftmenge her gut wäre. Ich vermute Adapter 75m auf 90mm wird es geben. |
||
|
||
|
Ich würde mich an deiner Stelle möglichst schnell an @leitwolf wenden um das Thema anzugehen. Bei der Dimensionierung der Rohrdurchmesser würde ich weiter beachten, dass zur zentralen Entfeuchtung ein teilweiser Umluftbetrieb mit deutlich höheren Luftmengen hilfreich ist. |
||
|
||
|
Das ist ein Irrglaube. Die Luft durchmischt sich schon durch natürliche Konvektion gut im ganzen Raum. Aus der KWL KWL [Kontrollierte Wohnraumlüftung] kommt sie mit einer Geschwindigkeit im Bereich von 1 m/s raus und wird damit nochmal regelrecht durchgewirbelt. Da kannst du auch Zu- und Abluftventil direkt nebeneinander montieren. Seit ich vor ein paar Wochen ein CO2-Messgerät angeschafft habe, sehe ich auch daran, wie sehr sich die Luft durchmischt. Obwohl das Schlafzimmer ein Zuluftraum ist, sehe ich, dass dort die CO2-Konzentration steigt, wenn jemand im angrenzenden Wohnzimmer sitzt. Wir haben im ganzen Haus 160 mm verlegt und erst kurz vor den Räumen auf 125 reduziert. Unter 100 mm wird bei einer gut geplanten Lüftung nur in Ausnahmefällen verwendet. |
||
|
||
|
Grundsätzlich Gratulation zur Entscheidung einer Wohnraumlüftung. Das mit der Durchmischung erleben wir alle jeden Tag. Zb kochen, riecht man tlw im ganzen Haus. Würde sich jemand eine Zigarette im Haus anzünden, dann weiß auch jeder wie schnell sich das verteilen wird. Genau so ist es mit der Zuluft. Der Grundriss schreit förmlich nach Abhängung der Gangdecke. Empfehle dir auch die vor und Nachteile der Verrohrung aufzulisten. |
||
|
||
Ich habe mal die Grundrisse angehängt, wie sie laut aktueller Planung werden sollen. Das rot eingerahmte ist ein durchgängiger Schacht: Ihr meint vermutlich einen Aufbau der Rohre, der etwa so aussehen könnte: Über dem DG würden sich die Rohre im Spitzboden befinden, im EG über der abgehängten Decke in Bad, Flur und Büro sowie über den Küchenschränken (die vermutlich sowieso eingekoffert werden). Keller könnte das Rohr vermutlich so bleiben. |
||
|
||
|
Vom Prinzip her, ja 👍 Im Idealfall hast du in der abgehängten Decke eine Verteilerbox, die du vom Lüftungsgerät mit 160er Rohr anfährst, und gehst davon dann sternförmig in die Räume. |
||
|
||
|
In den Köpfen ist meist: man muss die Luft bis in die hintersten Winkel im Raum verteilen und das erfordert viele und lange Rohrleitungen. Daher ist mir das ganze zu aufwändig und ich verzichte drauf. Das Thema Konvektion, Luftströmungen, Luftalter, Platzierung von Lufteinlässen hat man mehr als ausgiebig mit unterschiedlichen Methoden untersucht. Es benötigt bei den niedrigen Luftwechselzahlen im Komfortlüftungsbereich (<1/h) keine großen Aufwändungen für die Luftverteilung. Jeder der ein, oder mehrere CO2 Messgeräte hat, weiß das. Wesentlich ist nur, dass die richtige Luftmenge zur richtigen Zeit in dem Raum ankommt, wo es benötigt wird. Und zweitens: der Zuluftstroms soll nicht in die Richtung der Abluft oder Überströmung orientiert sein. D. h. ein Zuluftstrahl (z. B. durch eine Weitwurfdüse), der in Richtung eines 3m entfernten Abluftventils in gleicher Höhe gerichtet ist, erzeugt einen nicht vernachlässigbaren Kurzschluss. Platziert man Zuluft und Abluft aber nebeneinander, dann ist der Kurzschluss nicht mehr messbar. Die Entfernung spielt also weniger Rolle als man denkt und ist unabhängig von der Art des Luftdurchlasses auch nicht relevant für die Beurteilung. Im konkreten Fall reicht die Abhängung im Flur und der Diele aus, um alle Räume sehr gut zu versorgen. Den Vorschlag mit den Abzweigungen kurz vor den Durchlässen würde ich aus akustischen Gründen nicht empfehlen. So wie schon von christoph1703 erwähnt, wäre der Grundriss prädestiniert für die Verwendung von Combi-Boxen, um die Lüftung lauftlos und flexibel gestalten zu können. |
||
|
||
|
Beim "herumspielen" bei der Auslegung komme ich irgendwie an dem Problem nicht vorbei, dass wenn ich 50m^3/h (2 Personen je 25m^3/h) für das Schlafzimmer einplane, sowie weitere 30m^3/h (25m^3/h plus kleiner Puffer falls doch mal jemand da schläft) pro Kinderzimmer, da bin ich ja schon bei 110m^3/h alleine für das DG. Bei einer Nennwechselrate von 220m^3/h (~0,3/h bei 248m^2) und 2,5m Höhe) bleiben ja dann für das EG und KG jeweils nur 55m^3/h übrig. Das kann ja eigentlich nicht funktionieren. Das ist ja aber ein prinzipielles Problem was bei jeder Art von Lüftungsanlage auftritt. Wie wird das denn normalerweise gelöst? |
||
|
||
|
Überströmumg vom DG ins EG |
||
|
||
|
Grundsätzlich verstehe ich das, doch mit den Luftmengen funktioniert das nicht wirklich. Hüftregel die ich gefunden hatte war: KG: Zuluft = Abluft EG: Zuluft = 0.7*Abluft DG: Zuluft so, dass Gesamt-Abluft = Gesamt-Zuluft. Damit Jahr man eine Überströmung von DG ins EG, aber mehr als Faktor 2 empfinde ich als unnatürlich hoch. |
||
|
||
|
Bei offenem Treppenhaus sehe ich da kein Problem. Dafür gibt es eine professionelle Auslegung. Daher nochmals mein Hinweis, die Planung an einen Profi zu vergeben. -> @leitwolf |
||
|
||
|
Hi, der Hinweis kam an und ich hatte bereits vorgestern mit Wolfgang kontakt. Entsprechend habe ich auch mit meiner Frau gesprochen, und beim direkten Vergleich von Wolfgangs ausgelegtem, linearen System und der Variante KG und EG mit 75mm Rohren, OG mit 90mm Rohren war es schwer für mich den Mehrpreis (und Mehraufwand) zu erklären. Hier die spontane Liste: lineares System:
Was also übrig blieb ist die Auslegung. Deshalb würde ich gerne mit Hilfe des Forums diese Auslegen um hoffentlich ein sehr gute Lüftungsanlage im Haus haben zu können. Entsprechend hilft mir der Hinweis mit "professionelle Hilfe" zu suchen nicht wirklich weiter. Mit 2x 90mm Rohren in den Schlafräuen bin ich aber nahzu überzeugt dass auch das Flexrohr System unhörbar sein wird, zumindest wenn die angehängte Tabelle auch nur ansatzweise die Realität wiederspiegelt. |
||
|
||
|
Deine Gegenüberstellung verstehe ich nicht ganz. Die baumförmige (lineare) Installation hat den geringsten Aufwand und die geringsten Kosten, ist aber akustisch nicht so gut. Die sternförmige Verteilung mit DN75 oder 90 mit zentralen Verteilboxen im Technikraum hat den größten Aufwand und ist akustisch nicht optimal. Ideal ist bei dir die sternförmige Verteilung mit Verteiler im Flur mit DN100. |
||
|
||
|
Hallo Wolfgang, vielleicht habe ich auch nur ein "wording" Problem. Für mich war die Variante mit den Flexrohren und dem einen Verteiler im Keller die Sternverteilung (jedes Rohr ist ein Strahl des Sterns, deswegen Sternförmig). Ich dachte "deine Variante" wäre eine Baumstruktur, auch wenn ich sie als lineare Variante bezeichnet habe. Baumstruktur, weil es immer ein Hauptrohr gibt, welches beim Gebäude von unten nach oben geht ("Stamm") und von dort ab"zweig"end ein Rohr zum Verteiler, von dem man an jedem weiteren Raum abzweigt. Vielleicht wäre "zentrale Sternverteilung" und "dezentrale Sternverteilung" passender. ich kann das selbstverständlich nur laienhaft beurteilen, den Aufwand hätte ich so abgeschätzt: DN75 + DN90:
Bei der "dezentralen Sternverteilung"- Variante:
So würde ich grob die Aufgaben einschätzen, ohne, dass ich das jemals gemacht habe. Frischluft und Fortluft sind ja immer gleich, deswegen kommen die in der Liste nicht vor. Kosten wären beim DN75 + DN90 System ungefähr bei 8000€. Und wie gesagt, das ist nur eine Ansammlung an laienhaften Vermutungen. Ich bin gerne bereit mich entsprechend belehren zu lassen; sehe dabei durchaus ein, dass ein DN100 Rohr deutlich besser geeignet ist als Innendurchmesser 62mm Rohre (auch wenn zwei verlegt werden), sehe aber, wenn ich die zuletzt angehängte Tabelle betrachte, bei 90er Schläuchen (innen 80mm) im Dachgeschoss kein Problem was die Lautstärke angeht. Im Wohnzimmer sehe ich das Problem, das ist mir aber den (laienhaft abgeschätzten Mehr-) Aufwand und Aufpreis nicht Wert. Wie geschrieben, das ist mein momentaner Informationsstand, der gerne berichtigt werden kann. Eine Kombilösung könnte ich mir noch Vorstellen, damit gerade das Wohnzimmer noch entsprechend über die Wand versorgt werden könnte, während beim restlichen System auf Flexrohre gesetzt wird. |
||
|
||
|
Hallo zusammen, ich habe jetzt einmal bei Hybalans die Auslegung gemacht. Gesamt komme ich auf:
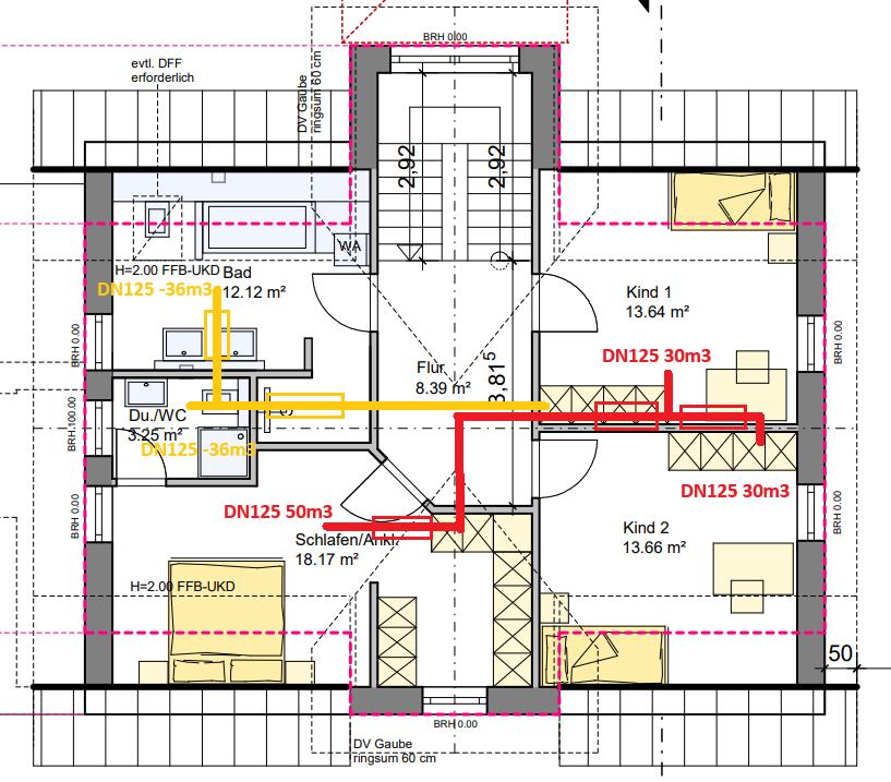
Kinderzimmer und Schlafzimmer (inkl. offene Ankleide) sind jeweils zwei 90er Schläuche, wobei man so im Schlafzimmer auf auf 51m^3/h bei etwa 1,4m/s, und die Kinderzimmer etwa 31m^3/h bei 0,8m/s. Kinderzimmer mit 75er Schläuchen ausgeführt wäre man immer noch bei 1,4m/s, was vermutlich immer noch sehr gut (=unhörbar) wäre. ~23m^3/h in Wohnzimmer und im Abstellraum (wo wohl mein PC stehen wird) entsprechen 2,1m/s, hier sollte aber immer nur jemand sein wenn entsprechend Trubel ist. Ein Zuluftrohr hätte ich noch und könnte so drei Schläuche auf 2 Ventile verteilen, dann bin ich bei gleichem Volumen bei 1,4m/s. Gibt es hier noch etwas was ich nicht beachtet habe? Im Detail sieht das so aus: |
||
|
||
|
Aber die Luftmengen in deinem Plan sind doch weiterhin zu gering, oder? Schlafzimmer bei 28m3. Büro bei 15m3 ... Was sagt der Statiker zu den 90er Schläuchen in der Decke? |
||
|
||
|
Hallo, und danke für deine Nachfragen. Ankleide und Schlafzimmer sind in einem offenen "Raumverbund". Also da ist keine Wand und keine Tür zwischen beiden Anschlüssen. Ich habe das Schlafzimmer-Ventil einfach auf zwei aufgeteilt, in Summe sind das über 50m3 für beide Personen. Büro heißt zwar Büro, wird aber eher ein Allzweck-Raum. Den habe ich quasi an meine Frau "verloren". Da kommen Spielsachen usw rein, lange drin sitzen wird da niemand. Mein Computerraum/Büro kommt in den Keller in den "Abstellraum". Wegen der Statik: In die Decken von KG und EG kommen nur 75er Schläuche. 90er Schläuche kommen nur beim Schlafzimmer und Kinderzimmer zum Einsatz. Die liegen im Technikchacht und gehen hoch bis in den Spitzboden und werden dort über der abgehängten Decke verteilt. Deswegen ist die Statik hier egal. Die 75er Schläuche mit bisher geplanter Vergelung habe ich beim Statiker "angekündigt". Edit: Wie ja bereits erwähnt, wenn man die Schlafräume als Fixwerte nimmt, habe ich nur noch Wohnzimmer, Büro (der als Allzweckzimmer genutzt wird) und Abstellraum (der eher als Büro genutzt wird) als Zuluftraum. Ich habe dann geschaut, dass ich im KG weder Überdruck noch Unterdruck habe, und den Rest auf Wohnzimmer und Büro im EG verteilt. Im Endeffekt kann ich nur hier noch hin und herschieben. Aufgrund der Raumgrößen und Verwendung habe ich das Büro entsprechend niedrig gewählt. Wenn ich das erhöhe geht das auf Kosten vom Wohnzimmer. Falls eine andere Aufteilung sinnvoll ist kann ich das natürlich anpassen. Aber "einfach die Zuluft erhöhen" geht halt nicht, sondern die nimmt man immer von einem anderen Zuluftraum. |
||
|
||
|
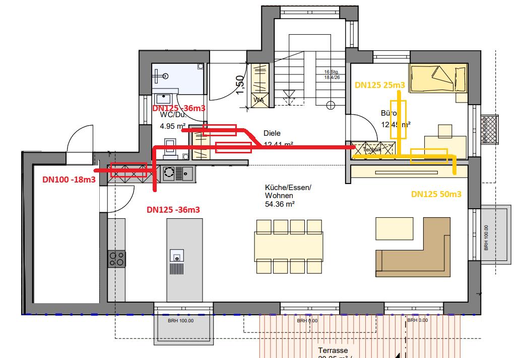
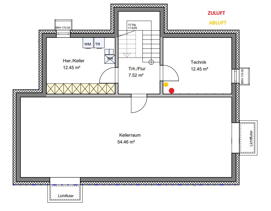
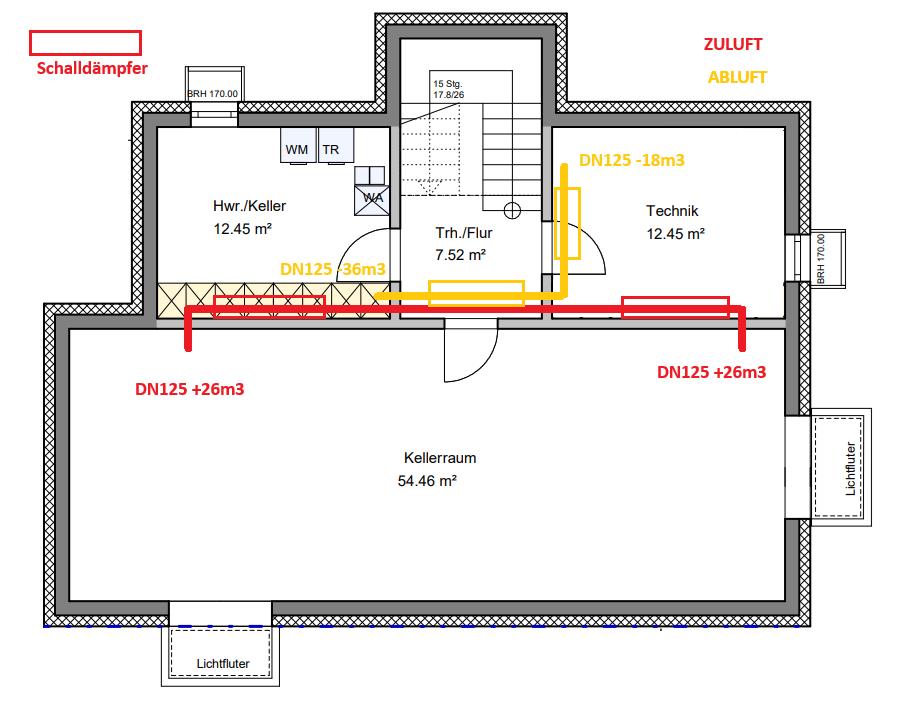
Hallo zusammen, meint ihr es lohnt sich wenn ich folgendes einmal in 3D mit einzelnen Wickelfalz-Formteilen plane? Die Leitungsführung kann tatsächlich ziemlich einfach gestaltet werden. Wenn ich die 160er (eventuell auch 200er) Steigrohre so anordne: Dann kann ich den Keller so verrohren: Das EG so: Und das DG so Die Kästchen sollen Schalldämpfer darstellen Ich müsste noch etwas die Zahlen justieren, so dass Abluft auch wirklich der Zuluft entspricht, grob sollte es apssen. So sollte ich doch sogar noch genug "Luft" übrig haben, um im Kellertreppenbereich zusätzliche Umluft ansaugen zu können, so dass ich das Haus noch entfeuchten kann, oder? Gibt es Schalldämpfer für 125mm Wickelfalzrohre die nicht viel höher als die 125mm sind? Reicht es, wenn ich die Decke im EG im Flurbereich und im gesamten DG hierfür 15cm (abzüglich Rigipsplatte) abhänge? Den Technikraum könnte ich dann auch 3D planen, die Maico WS320 kommt praktisch in die Ecke im Plan oben rechts. Sole-Wärmepumpe an der Außenwand, so dass die Soleleitung auch in der Nähe des Entfeuchters ist. Was muss man denn einplanen um den Durchfluss einstellen zu können? Wie heißt das? Ich dgehe davon aus, dass nicht direkt an den Ausgangsventilen einjustiert werden sollte. |
Beitrag schreiben oder Werbung ausblenden?
Einloggen
Kostenlos registrieren [Mehr Infos]



















