Neubau Massivholz und einige Fragen
|
|
||
|
Das sind vermutlich die EPDM-Manschetten für die Luftdichtheit. siehe hier: https://www.energiesparhaus.at/forum-meine-lueftungsmontage/46987_11#488681 Wir haben die Manschetten aber gar nicht. Das muss ich sagen war bei uns auch so. Es wurde seitens leitwolf für ZUL und FOL je eine 22cm Kernbohrung geplant, das DN160er Rohr wurde jedoch ohne weitere Dämmung durch die Wand geführt. Ich habe den Raum um die Rohre dann mit 2 Dosen PU Schaum ausgeschäumt. Wenn es eh nur eingeschäumt wird hätte eine kleinere Kernbohrung auch gelangt? Das Armaflex wurde bis zum Innenputz gemacht und dort mit einer umlaufenden extralage (statt der EPDM Manschette) nochmal ummantelt. ![]() ![]() Probleme gibt's damit keine aber ob das so gehört? @leitwolf ? |
||
|
||
|
Danke für die Antwort und die Bilder, das hilft mir weiter. Ich habe in der Zwischenzeit einen Anruf von Leitwolf erhalten, der hat mir das auch nochmal genau erklärt! die Gummimatten sind tatsächlich die Dichtmanschetten, die werden direkt auf das Rohr geschoben.Verklebt werden müssen sie da so wie ich das verstehe nicht, wobei ich das vielleicht trotzdem machen werde. Dann wird der Rest der Manschette an die luftdichte Ebene, bei mir die OSB- Wand geklebt. Das Armaflex wird dann an die Manschette rangeschoben. |
||
|
||
|
Hallo, Wir sind mit unserem Hausbauprojekt jetzt schon ein gutes Stück weiter. Während gerade der Außenputz fertiggestellt wird bin ich dabei die Elektrik und KWL KWL [Kontrollierte Wohnraumlüftung] zu verbauen. Der Plan wäre derzeit dass Ende Juli die übrigen Innenwände mit Rigips beplankt werden, und zirka im September der Estrich kommt. Daher stellen sich mir jetzt ein paar Fragen zur Ausführung: -Wenn ich die KWL KWL [Kontrollierte Wohnraumlüftung] zum kühlen verwenden will muss ich die Rohre mit armeflex dämmen. Kennt von euch wer eine gute Bezugsquelle für passende Rohrisolierung? Das ganze aus Matten zuzuschneiden sagt mir nicht wirklich zu, wäre aber eine Notlösung. -Die Garage soll auch oder großteils als Werkstatt verwendet werden. So wie ich das aus meiner derzeitigen unbeheizten Werkstatt kenne ist das lästigste der kalte Boden. Daher hätte ich geplant in diesen 8cm Heizestrich einzubringen. Der Installateur hätte mir jetzt davon abgeraten, da es sehr kompliziert sein soll das in die Wäremepumpe einzubinden. Teilweise verstehe ich das, da ja ein Frostschutz verwendet werden müsste, und daher auch ein Wärmetauscher im Heizkreis. Andererseits würde wahrscheinlich die Rücklauftemperatur runtergemischt, wodurch die Heizkurve nicht mehr wirklich passen würde. Eine Alternative wäre ein wasserführender Holzofen, das sagt mir aber wegen dem Dreck und den Kosten nicht wirklich zu. Ich habe versucht die Heizlast der Garage abzuschätzen; Unter der Bodenplatte sind 20cm XPS, an den Wänden 5cm Holzfaserdämmung mit hinterlüfteter Fassade auf 17,5cm Hochlochziegel, und an der Decke 16cm Massivholzdecke mit durchschnittlich 7,5cm Dämmung. Damit komme ich auf zirka 1,3kW Heizleistung bei 15°C Temperaturdifferenz. Wie würde ihr das angehen? Splitklima habe ich mir auch schon überlegt, bin mir aber noch nicht ganz sicher, da ich das Aussengerät quasi mitten im Garten hätte, und das eher vermeiden möchte. |
||
|
|
||
|
||
|
Ich werde das mit Splitklima lösen - hat auch den Vorteil, dass die Garage im Sommer auch etwas gekühlt werden kann (Getränkelager ). Heizestrich sehe ich auch aufgrund der genannten Punkte skeptisch. Und falls die Garage als Werkstatt nur unregelmäßig genutzt wird sind die Aufheiz- und Abkühlzeiten des Estrichs ziemlich indiskutabel. |
||
|
||
|
Wir werden voraussichtlich Deckenheizung und Bodenkühlung machen, weil wir die Platte leider nur mit 5cm XPS gedämmt haben 🤦 Frostschutz machen wir nicht, die Garage soll ja sowieso "warm" sein. Das wäre nur bei einem längeren Ausfall der Heizung relevant. Die Bodenkühlung werden wir voraussichtlich als BKA BKA [Betonkernaktivierung] light machen, also im Verbundestrich. Nachdem die bei dir gut gedämmt ist, müsstest du das zum Heizen eigentlich auch so machen können und hättest noch ein bisschen Speichermasse gewonnen. |
||
|
||
|
Hallo Christoph; Das wäre so zirka mein Plan gewesen. Mit 8cm Estrich und der Bodenplatte müsste ich die Werkstatt halt dauerhaft, oder zumindest immer für längere Perioden heizen. das ist im Prinzip kein Problem und auch so geplant, aber wie verbinde ich das ganze am besten mit der Wärmepumpe? per Wärmetauscher? |
||
|
||
|
Wenn du mit Wasser fährst, musst du dauerhaft zumindest frostfrei heizen, dafür brauchst du keinen separaten Kreis. Einfach anschließen wie jeden anderen HKV. Da wirst du eine recht hohe Spreizung fahren müssen, die in der Mischung mit den anderen Rückläufen aber wieder in den normalen Bereich kommt. |
||
|
||
|
Wir haben durch eine 50er Ziegel Wand die Armaflex Dämmung bis außen zum Kasten weitergeführt. Die Manschetten haben wir nicht verwendet, stattdessen direkt ans Armaflex drangespachtelt. Auf die Idee das Armaflex innen und außen an die Manschette anzukleben bin ich damals nicht gekommen, ist aber sicher die optimale Lösung. |
||
|
||
|
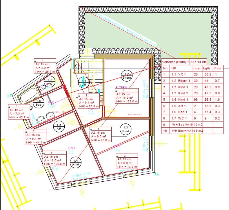
Nachdem in den letzten Wochen viel passiert ist haben wir letzten Freitag die Schüttung bekommen. Vom Installateur habe ich die Auslegung der FBH FBH [Fußbodenheizung] bekommen, und möchte die nun überarbeiten (ja, ist relativ kurzfristig..) Einige Punkte an der Auslegung sind mir noch nicht wirklich klar: EG: -Ich würde den Bereich unter der Stiege auch mitbelegen, soweit ich hinkomme. -Die Dusche im EG würde ich auch belegen, ist laut Installateur auch so geplan, sehe ich im Plan aber nicht so. -Das Bad im EG hat derzeit den kürzesten Kreis, aber auch den höchsten Druckverlust (17mbar), wie kann das sein? OG: -Eltern würde ich auf zwei Kreise aufteilen, damit werden es zwei kürzere Kreise, oder passt das so vielleicht sogar für ein kühleres Schlafzimmer? wirklich viel kühler geht aber im Neubau ja sowieso nicht. -Die Wand zwischen 1.4 und 1.5 wurde nicht umgesetzt; ich würde die zwei Kreise dann einfach gleich lang machen (etwa 70m) -Im Bad OG möchte ich die Heizung auch unter die Dusche legen, ist aber anscheinend eh so geplant. -WC und Bad würde ich kombinieren; damit werden es zwei Kreise mit etwa 53m. -> besser als jetzt. Alternativ würde ich bad+ WC+ 40m vom Gang kombinieren -> zwei Kreise ja 73m; Rest vom Gang zu den zwei Schalfzimmerkreisen -> wären dann 2x 76m. Zusätzlich werde ich in der Garage eine Fußbodenheizung umsetzten. Geplant wären drei oder vier Kreise. Diese würde ich mit Kabelbindern an ein Estrichgitter befestigen. Was haltet ihr davon? Danke für die Mithilfe und das Mitdenken, LG |
||
|
||
|
Haben wir gerade so umgesetzt. In unserem Fall aber (wie oben geschrieben) nur zum Kühlen, weil wir nach unten nicht viel Dämmung haben. |
||
|
||
|
Die Auslegung ist ja irgendwas. 25 vs 122m Kreislängen sind schon hart. Hast du eine raumweise Heizlastberechnung? Damit würd ich mal starten und dann mit dem Trenchplanner eine vernünftige Auslegung nach flow30 machen. |
||
|
||
|
Eine raumweise Heizlastberechnung habe ich leider nicht. Im Trenchplanner habe ich bereits versucht eine Planung zu machen, das ist aber mit den vielen schrägen Wänden nicht so einfach. Ich habe keine Möglichkeit gefunden die Heizflächen zu drehen, so wie es im Trenchplanner bei den Gebäudeteilen geht. Habe ich mich da nur blöd angestellt, oder geht das tatsächlich nicht? Hast du da einfach Estrichgitter, Baustahlgitter oder was spezielles genommen? Ich hätte gedacht dass ich die Gitter mehrfach am Boden verschraube. Heizen möchte ich schon auch; unter der Bodenplatte liegen 20cm XPS, das sollte schon halbwegs gehen. LG |
||
|
||
|
Dann ist die der erste Schritt. Ohne die tappst du komplett im Dunkeln. Nicht so tragisch, kannst ja grob mit Rechtecken approximieren. Wichtig sind im ersten Schritt eigentlich nur die Fläche und die ungefähre Position. Stinknormale Estrichgitter. Da sind ein paar Bilder: https://www.energiesparhaus.at/forum-was-habt-ihr-heute-geschafft/82590_18#897586 Die Matten liegen eh ganz gut am Boden. Stellenweise hab ichs mit Schraube und Beilagscheiben auf die Platte gedübelt. |
||
|
||
|
Die raumweise Heizltast wird über eine Exceltabelle berechnet, oder? Gibt es da eine leere Tabelle als Vorlage? |
||
|
||
|
https://www.energiesparhaus.at/forum-vorlage-fuer-kombinationstabelle-hfrik-berhan/60755 Einfach bisschen einlesen. Da gibts auch einige Infos zur Berechnung/Auslegung etc. Je nachdem wie sehr man in dem Thema schon drinnen ist, kann das ein bisschen dauern die Auslegung selber zu machen. Interesse + Zeit + Forum = gscheites Ergebnis |
||
|
||
|
Ich habe mich jetzt etwas mit der Tabelle gespielt, und versucht alle Daten korrekt einzugeben. einiges passt da sicher noch nicht, das werde ich mir morgen nochmal ansehen. Wie mache ich dann mit den Daten am besten weiter um eine ordentliche Heizungsauslegung zu bekommen? gibt es eine Möglichkeit das zu simulieren? Danke, LG |
||
|
||
|
Wenn nicht alles ganz exakt passt, ist es nicht so tragisch. Zu 100% kannst du es eh nicht fixieren, da leben ja dann Menschen drin. Solange es ungefähr passt, ist es schon eine gute Grundlage. Verbessern kannst du immer noch. Jetzt kannst du den Trenchplanner anschmeißen und deinen Plan samt Daten so genau es halt geht nachbauen. In irgendeinem Menü gibts eine sehr ausführliche und sehr hilfreiche Anleitung dazu. Die Bedienung ist leider nicht ganz intuitiv, aber wenn mans mal heraußen hat, gehts recht gut. In den Plan malst du dann Heizkreisverteiler und Heizflächen rein, verbindest sie und spielst mit Fläche und Verlegeabstand, bis du so ungefähr bei der gewünschten Länge und der notwendigen Leistung pro Raum bist. Da muss man einfach sehr viel herumprobieren. |
||
|
||
|
ein paar Fragen habe ich noch: Der Wert den ich auf der Seite "Heizlast" unter Transmissionswäreverlust sehe beträgt 3133W; der müsste dem Wert Transmissions- Leitwert aus dem Energieausweis entsprechen, oder? Das wären bei mir 94,92W/K, also bei 20°C Innen- und -15,3°C Außentemperatur 3351W Das würde dann sehr gut zum Energieausweis passen, oder übersehe ich da was? Ich werde jetzt die Daten der Räume und den Plan jetzt mal im Trenchplanner nachbauen. ![]() ![]() edit: Es ist wahrscheinlich nicht möglich oder sinnvoll die räume einzeln im Trenchplanner zu simulieren, oder? Ich habe jetzt einen ersten Versuch gewagt, und der war eher durchwachsen. Es ist nicht so einfach bei den vielen schrägen Wänden eine ordentlich Skizze zu machen: ![]() Hat da vielleicht noch wer Tipps zur Vorgehensweise? Danke, LG |
||
|
||
|
Nachdem unser Bauprojekt gerade etwas steht (Probleme mit der Schüttung, anderes, und leider sehr langwieriges Thema) mache ich in der Garage/ Werkstatt weiter. Hier möchte ich dieses Wochenende die Fußbodenheizung legen und die Schalung für die Hebebühne bauen. Der Bodenaufbau ist wie folgt: Rollierung 200mm XPS druckfest 250mm Bodenplatte doppelt bewährt 5mm Flämmpappe, glasfaserverstärkt Darauf sollen jetzt 110mm (damit die Hebebühne künftig eben eingebaut werden kann) Estrich kommen. Mir wurde nun empfohlen eine Reflexionsfolie zu verlegen. Ich bin mir allerdings nicht sicher ob das wirklich was bringt. Die Garage soll auf zirka 10-15 Grad temperiert werden; da sollte noch nicht so viel Wärmestrahlung auftreten dass die Folie einen nennenswerten unterschied macht, oder? Außerdem würde der Estrich ja vollflächig darauf liegen, da kannn mMn auch nichts abgestrahlt werden. Ich würde mir das lieber sparen, und die Heizungsrohre direkt an die Estrichgitter binden Wie seht ihr das, bzw hat da wer Erfahrungen? Edit: Eine Frage habe ich noch: Würdet ihr auf die Bitumenbahn noch eine PE-folie legen? Grundsätzlich würde ich ja sagen dass diese Dampfsperre sowieso dicht ist, also unnnötig. Danke, LG |
||
|
||
|
Die Folie würde doch unter die Estrichgitter kommen, oder nicht? Da sehe ich das Problem nicht. Die PE-Folie soll vermutlich eine gleitschicht sein, damit der Estrich mechanisch von der Platte entkoppelt ist. |
||
|
||
|
ja, die käme unter die estrichgitter. ich frag mich halt ob das einen Vorteil hat, zb bei der Verklebung des randdämmstreifens. wenn es nichts bringt würde ich mir die Arbeit sparen, da ich denke dass die sowieso von den estrichgittern beschädigt wird. |
Beitrag schreiben / Werbung ausblenden?
Einloggen
Kostenlos registrieren [Mehr Infos]










