Sanierung/Umbau Ferienhaus, mit KWL-Entfeuchtung&Kühlung - Fotodoku
|
|
||
|
Weiter ging es mit der Entkernung und der Bestandsaufnahme. Vorher ist eigentlich keine brauchbare Planung möglich. Das ist leider auch etwas, das aus meiner Sicht bei unseren ganzen Förder-Richtlinien und Genehmigungsprozessen ziemlich schief läuft. Man muss fertige Pläne, Angebote, etc. einreichen, um irgendetwas freigegeben zu bekommen, bevor ich mit irgendeiner Arbeit beginnen bzw. etwas bestellen/beauftragen darf... Wie soll das bei einer Sanierung mit ungewissem Gebäudezustand funktionieren? Das ist mir wirklich schleierhaft. 🙄 🤔 Da das bei uns aber alles in Eigenleistung erfolgt ist, ging es ja einigermaßen. Aber wie andere Leute das bewerkstelligen, ist mir, wie gesagt, echt ein Rätsel? Jeder Plan beziehungsweise jedes Angebot ist vor einer Komplett-Entkernung aus meiner Sicht praktisch wertlos. Naja, wie dem auch sei. Das ich kein Freund unserer Bürokratie mehr werde, wisst ihr ja eh schon 😉 so gings dann jedenfalls mal los: Gastherme entfernt: Entrümpelt: Nichtragende Wände entfernt: Kindern was gelernt: Putz&Schilfmatten und Deckenschalung entfernt: (eine echte Drecksarbeit... 😷 😠) Dann wurde der Boden entfernt und ca. 75cm tief gegraben, um die FFOK tiefer setzen zu können und genug Platz für ca. 30cm Glasschaumschotter zu schaffen: Dabei hat sich herausgestellt, dass die mittlere, tragende Wand eigentlich ohne richtiges Fundament nur auf dem gewachsenen Boden steht. An einigen Stellen stand sie aber auf aufgeschütteter Erde, was auch leichte Setzungen erkennen lies. Diese Bereiche haben wir dann vollständig unterfangen. Das restliche Mauerwerk wollten wir aber nicht anfassen, das stand Jahrzehnte/Jahrhunderte stabil genug. Hier wurde nur ein Streifen Stützfundament seitlich betoniert und ringsherum verankert. hier als Aufbau-Skizze: In obiger Skizze ist auch der Wandaufbau ersichtlich, der mit Zellulose-Innendämmung verwirklich wird. Die Überlegungen und technischen Hintergründe dazu wurden hier schonmal diskutiert: https://www.energiesparhaus.at/forum-sanierprojekt-aussen-oder-innendaemmung/71571_1 Um Wärmebrücken beim Anschluss der tragenden Wand an die Außenwand zu verhindern, haben wir die Anschlussbereiche neu aufgemauert und mit Multipor-Platten thermisch getrennt. Das bot sich an, da durch das Unterfangen ein teilweiser Neuaufbau ohnehin notwendig war, und ich noch genug Multipor-Plattenreste von meinem Hausbau übrig hatte. Hier sieht man, wie die Wand vorab ausgeglichen wurde, um die Multipor-Platten anzukleben. Die Platten selbst haben wir anschließend mit eingeputzten Dampfbrems-Anschlussbändern vorbereitet und verklebt, damit die Dampfbremse der Innendämmung sauber und lückenlos durchgezogen werden kann. |
||
|
||
|
Meine Hochachtung vor deinem Engagement! Entkernen, Mauern umreißen, Betonstemmarbeiten, Boden tiefergraben, Fundamente unterfangen, thermische Sanierungslösung finden, etc. Das alles kommt mir sehr bekannt vor. Habe ich auch vor 25 Jahren am Zweifamilienhaus meiner Großeltern vollzogen. Ich weiß, was das in Eigenleistung bedeutet, viele Stunden Planung und Recherche, viel Geduld, echte Drecksarbeit und viele Container an Bauschutt. |
||
|
||
|
danke! Aber mit den knapp 100m2, 1-geschossig ists zumindest noch "halbwegs überschaubar". Das Dach ist zum Glück auch noch nicht sooo alt und gut erhalten. Und die bisher gezeigten Arbeiten haben sich dann doch über einen längeren Zeitraum gezogen. Es fehlen da schon noch ein paar Posts bis wir auf "Stand Heute" sind 😉 |
||
|
|
||
|
||
|
als nächstes wurde dann der Kanalanschluss außen freigelegt. Draußen war dieser teilweise schon relativ neu mit KG-Rohren verlegt. Im Haus selbst gabs eine Mischung aus alten Stein- und undefinierbaren Rohren 😉. Diese wurden alle entfernt. Außen neu angeschlossen und Innen neu verlegt. ![]() ![]() Auch haben wir gleich den alten Wasseranschluss bis zum neueren Kunststoffrohr freigelegt, dort angeschlossen und von dort neu ins Haus gezogen: ![]() Die neuen Anschlüsse liegen nun auch etwas tiefer als früher. ![]() Die Anschlüsse kommen nun bestmöglich ausgemessen im Bad/WC bzw. der Wasseranschluss im Technikraum raus. ![]() Die neue Rohrverlegung haben wir dann mit Magerbeton fixiert: ![]() ![]() ![]() Auf die Rohrverlegung und die Stützmauern haben wir dann eine XPS-Schicht gelegt mit Oberkante auf der finalen Höhe folgenden der Glasschaum-Schotter-Schicht. ![]() ![]() ![]() ![]()
|
||
|
||
|
Jetzt wurde der Glasschaumschotter schon öfter erwähnt, aber nun kommt er wirklich endlich mal... 😇 erstmal Geotextil ausgebreitet: ![]() Dann wurde "lose" angeliefert. Lose deshalb, weil das wesentlich günstiger ist als in BigBags. Und in der Einfahrt neben unserm Haus ist auch ein passender Platz zum Abladen. Auch wenn die Menge von 45m³ GSS dann doch wesentlich mehr Platz einnahm, als ursprünglich gedacht 😉 (aber keine Sorge, die Fassade wurde mit Doka-Platten ausreichend geschützt) ![]() Das Ganze wurde dann an einem Tag mit ein paar Freunden und unzähligen Scheibtruhen-Runden ins Haus befördert. Damit war die Einfahrt dann auch relativ schnell wieder frei. ![]() ![]() ![]() Dann ein paar Rüttelvorgänge und bestmöglich auf Soll-Höhe gebracht: ![]() Anschließend mit PE-Folie als Vorbereitung für die Zwischen-Betonschicht belegt. ![]() Und dann zum spassigen Teil: Zwischenplatte betonieren 😊 ![]() ![]() ![]() ![]() |
||
|
||
|
Wie wurde der GSS aus dem LKW ohne Kipper ausgeladen? |
||
|
||
|
kannt ich vorher auch nicht. Im Hänger war da eine bewegliche Rückwand/Schiebewand drin, die das Schüttgut nach und nach hinten rausgeschoben hat. Glaube "Schubwandauflieger" müsste die passende Bezeichnung sein?! |
||
|
||
|
Kannte ich auch noch nicht, daher meine Frage. |
||
|
||
|
Nach GSS und Betonplatte kam der nächste größere Kostenpunkt: die nachträgliche Herstellung einer Horizontalsperre in den Wänden. Die sehr alten Mauern kannten natürlich weder Abdichtungen noch Horizontalsperren. Das hat sich früher auch im Haus bemerkbar gemacht, etwa durch Feuchtigkeit und immer wieder abfallenden Putz, der regelmäßig erneuert werden musste. Zwar nicht in einem verheerenden Ausmaß, aber doch vorhanden. Wenn wir nun das Haus neu aufbauen, konnte das aber nicht so bleiben. Sonst wäre es Schade um den Aufwand und ums Geld. Glücklicherweise haben wir im Nachbardorf die Fa. Neubauer, die genau auf sowas spezialisiert ist. Und so haben wir eine Lösung mit Hand und Fuß gewählt, nämlich die Wände komplett durchschneiden, Sperrschicht einlegen und den Spalt ausbetonieren, siehe Details hier: https://www.neubauer-group.com/mauertrockenlegung/ Aber nun zu den Bildern 😉 Erstes cooles Werkzeug 💪 Die Säge wurde für die Innenwand und die Ziegelbereiche der Außenwände verwendet. ca. nach jedem Meter, wird der Spalt dann mit Hochdruck ausgewaschen und ein schnell abbindender Spezialbeton eingebracht: Leitungsdurchführungen werden sauber ausgelassen und nicht durchgeschnitten: Außen bzw. beim Stein- oder Mischmauerwerk kam nicht die Säge, sondern ein Diamantseil zum Einsatz. Mit dem geht das noch wesentlich einfacher, aber kostet auch mehr pro m. interessantes Konstrukt: Hier sieht man auch schön, dass das Straßen-Nivau auf einer Seite des Hauses etwas höher liegt. Dort wird auf Straßennivau geschnitten und daher muss dort dann die Abdichtung Innen hochgezogen werden:
|
||
|
||
|
Echt Wahnsinn aber genial. Was wenn ich fragen darf hat dir der Aufbau ca gekostet und wieviel eigenregie stecken da an Stunden drin? Erst jetzt ist ja der normale Bauablauf zu bewerkstelligen. Geht mir nur darum in etwa kosten ab zu schätzen wenn ich mal auf seinen Umbau treffe |
||
|
||
|
genau. Nach diesen Arbeiten ist eigentlich erst "Bau-Start". Aber bis zu diesem Punkt wollten wir es "so oder so" herrichten. Egal obs nun ein Lagerraum oder sonstwie genutzter Raum werden würde. Die Grundstruktur hat passen müssen. Das war der Basis-Plan, alles weitere war dann "optional" Die Detail-Planung hat ja auch dann hier erst gestartet - kommt in den nächsten Posts dann. Ich weiß noch nicht ob ich die Kosten so ganz offen lege?! Das meiste ist Eigenleistung. Die gezeigten Arbeiten gingen über eine längere Zeit, immer mal wieder am Wochenende, oder nebenher wenn mal Luft ist. Und mein alter Herr ist hier unglaublich aktiv. Die Arbeiten sind jetzt quasi sein Pensions-Hobby geworden, was sicher auch etwas emotionalen Hintergrund hat, weils sein Elternhaus ist. Und bei den eingekauften Leistungen ist meist auch Mithilfe dabei, oder es sind Firmen von Bekannten oder aus nächster Nähe, usw. Da schau ich schon, dass die Ausgaben geringstmöglich sind. Früher hab ich immer offen Preise gepostet und mir dann anhören können, dass das unrealistisch ist, nicht vergleichbar usw... Zur Horizontalsperre z.B. Das ist breit gefächert, wird wohl irgendwo zw. 10-20K liegen. Je nach Mauerwerk, Breite, Beschaffenheit usw. Ziegel ist günstiger, Stein teuer. Ich war eher am unteren Ende 😉 mit dem GSS hatt ich viel zu kämpfen, echt schwer noch was günstig zu bekommen. Am Ende warens dann 81€ Netto pro m³ (Lieferung schon mit eingerechnet) Die Betonplatte war hingegen so verdammt günstig, das will ich wirklich nicht hier preisgeben |
||
|
||
|
Hallo Pedaaa, hier gibt es dazu Erfahrungen und Preise: Sanierung/Umbau Ferienhaus, mit KWL-Entfeuchtung&Kühlung - Fotodoku |
||
|
||
|
Vollstes Verständnis. Dein Projekt is echt super. Schön dass daran die ganze Familie mitwirkend, das verbindet. Weiterhin viel Erfolg. Ich werde weiter mit Freude mitlesen |
||
|
||
|
Aber nun weiter mit der Foto-Doku. Als nächstes kamen dann quasi verschiedene Schritte gleichzeitig: wie z.B. haben wir die Decken-Balken ausgeglichen. Die liegen mittig auf einem Holztram oben auf der Innenwand auf. Alle Balken fallen zur Mitte hin (das sieht man auf den späteren Fotos besser) Somit hab ich hier einiges an Volumen was mit Zellulose aufgefüllt werden kann. Die Decken-Dämmung wird somit gar nicht so schlecht ausfallen... 😉 Da die Innenwand dann auch bald verputzt werden sollte, haben wir an diesen Tram ein Ziegeldrahtgewebe als Putzträger genagelt. ![]() in dem Zuge wurden dann auch gleich die Fenster entfernt: ![]() ![]() Der alte Eingang zugemauert: ![]() und das Fenster im Vorraum verkleinert: ![]() Dann die Fenster alle schön auf Maß gebracht und mit einer XPS-Platte erstmal vollended: ![]() ![]() ![]() |
||
|
||
Als nächstes wurde die Innenwand schon mit dem Grobputz versehen: ![]() ![]() Und wie man schon erkennen kann, auch die Horizontalsperre angeflämmt bzw. wo nötig die Hochzüge gemacht. ![]() |
||
|
||
|
Zwischenzeitlich konnte ich dann aber auch schon mit der genaueren Planung starten. Da aber sämtliche Wände und Balken und sowieso alles irgendwie windschief war, war es alles andere als einfach, hier exakte Maße zu nehmen. Da kam aber mein Bruder mit einer Idee um die Ecke und hat mir mit einer App einen maßhaltigen 3d-Scan gemacht: ![]() ![]() Dieser Scan lässt sich in verschiedenen 3D-Programmen weiterverwenden und liefert dabei erstaunlich akkurate Maße. ![]() ![]() Auf dieser Basis hab ich dann ein etwas vereinfachtes 3D-Modell erstellt, mit dem ich weiterarbeiten konnte: ![]() ![]()
|
||
|
||
|
Ich liebe diese Dokumentationen, bitte weiter so! Welche App war das für den 3D-Scan? |
||
|
||
|
Der 3D Scan ist mega. Ich hoffe sehr dass das eine Open Source Lösung war. Muss ich auch unbedingt testen. Also +1 fürs erwähnen der Software/App, bitte. |
||
|
||
|
App nennt sich "polycam" Ist kostenpflichtig. Dürfte aber eine kurze Testbetriebsphase auch geben. |
||
|
||
|
Vielen Dank für die Info. Hab die Infos zu den Program gerade überflogen und mutmaße, dass wahrscheinlich ein iPhone 13/14 pro mit LIDAR dafür verwendet wurde. Coole Sache zu hören, dass man damit so gute Ergebnisse erzielen kann. Nur weiter so mit der Berichterstattung zu der Sanierung. 🙏 |
||
|
||
|
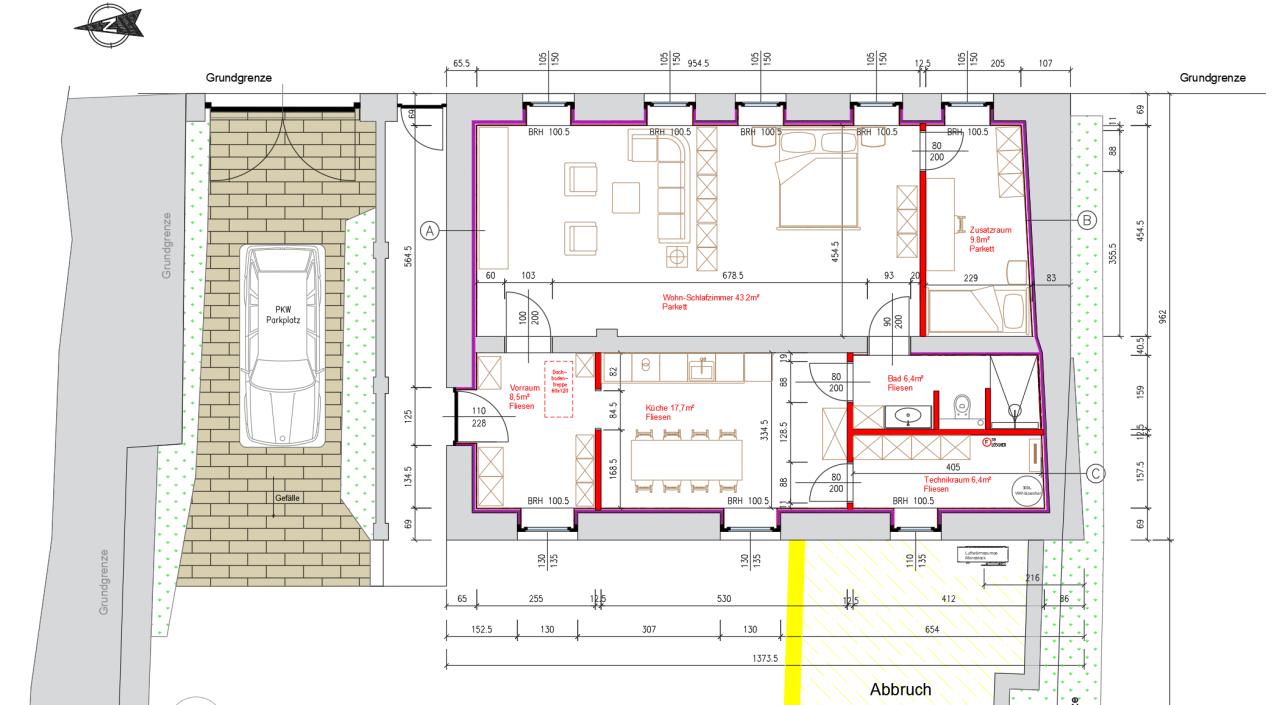
Aktuell ist wieder einmal sehr viel los, daher finde ich leider nur selten wirklich Zeit, hier weiterzuposten. Heute ists aber endlich mal etwas ruhiger, also gehts weiter: Nachdem ich nun endlich brauchbare Maße hatte, habe ich mich an die Detailplanung gemacht. Und mit „Detail“ meine ich auch wirklich Detail 😇 Das braucht zwar viel Zeit, erspart aber einiges an Ärger beim Bauen. Vieles was sonst erst auf der Baustelle auffällt und schnelle Improvisierungs-Lösungen verlangt wird so abgefangen. Gleichzeitig nutze ich die Planung auch immer als Stückliste zur Bedarfsermittlung und für die Materialbestellungen. Aber genug Blabla, wie gings denn nun weiter? Wie bereits beschrieben, ist eine Innendämmung aus Zellulose geplant. Da die Wände sehr wellig und schief sind, bietet sich diese Lösung ohnehin an: Quasi Ausgleich und Dämmung in Einem. Die Innendämmungsebene ist als Vorwandkonstruktion mit CD-Profilen mit Abhängern an der Wand geplant: Anstelle der im Bild dargestellten Gipsplatten kommt hier zunächst erstmal die Dampfbremse. Darauf folgt eine Querlattung, welche die Dampfbremse fixiert und gleichzeitig die Installationsebene bildet. Den Abschluss macht dann eine Knauf-Diamantplatte. So sieht der Aufbau der Innendämmung mit Dampfbremse aus: Und so mit zusätzlicher Querlattung bzw. Installationsebene: Danach werden Trockenbau-Innenwände gestellt. Die Profile hab ich auch hier gleich passend gesetzt und alle Leitungsführungen/Lüftungsrohre usw. berücksichtigt. Dann braucht man beim Bauen später nichts mehr denken, sondern kann stumpf einfach "ausführen" Die Planung von Lüftung, Heizung, Sanitär, Elektro usw. musste in dem Zuge also auch gleich gemacht und berücksichtigt werden, aber dazu kommen wir später. Es soll ja auch spannend bleiben 😆 |
||
|
||
|
nun zum tatsächlichen Bau der Innendämmungs-Ebene. (was mit der größte Zeitfresser überhaupt war/ bzw. ist...) nach ein wenig herumprobieren, war uns schnell klar, dass die Variante mit Metall-CD-Profilen noch umständlicher wird. Die Abstandshalter befestigen ist bei der Bestandsmauer mehr als mühsam. Daher wurde doch auf Holz umgeschwenkt: Sprich nun wird es so gelöst: erstmal Holzlatte mehrfach an die Wand dübeln: Darauf dann mit Justierschrauben noch eine Latte, senkrecht und ausgeglichen in korrekter Ebene/Lage: hier sieht man gut, welche Wellen die Wand teilweise schlägt: So gings dann mal mühsam Latte für Latte weiter... Die Wand zur Straßenseite war auch wirklich alles andere als Senkrecht - die fällt Oben nach Innen. im unteren Bereich sind wir daher auf ca.15cm Abstand/Innendämmung gekommen 😮: (urspünglich bin ich von ca. 6-7cm ausgegangen. Geworden sinds dann aber letztendlich ca. 7-15cm, je nach Gegebenheit) Aber selbst Ubakus schreit bei 15cm noch nicht, und der ist üblicherweise abnormal streng bei Innendämmung 😉 (berücksichtigt den möglichen Feuchtetransport der Zellulose gar nicht) Mit den durchschnittlichen sagen wir ~8cm, siehts so aus:
|
Beitrag schreiben / Werbung ausblenden?
Einloggen
Kostenlos registrieren [Mehr Infos]































































































