Flügeltür oder Schiebetür
|
|
||
|
Drehkipp/Parallelschiebekipptür/Hebeschiebetür - hier eine Kurzbilanz der Vor- und Nachteile verschiedener Lösungen aus meiner Erfahrung:
Zweiflügelige Dreh-/Drehkipptür (TDDK), sinnvoll bis Breite 2 m =============================== Vorteile + mit Abstand günstigste Lösung + dichteste Lösung (Luft- und Schlagregendichtheit) + beide Teile öffenbar + Flügel kippbar Nachteile: - max. Breite 200 cm (mit Fixteilen erweiterbar auf 3 bis 4 m) - ca.5 bis 6 cm hohe Schwelle unten (außer mit Haustüschiene, dann aber weniger dicht) - Flügel stehen je nach Einbauebene bis zu 70 cm in den Raum (Hinweis dazu s.u.) Parallelschiebekipptür (PSK, TSK, TKS), sinnvoll ab B 2 m ====================================== Vorteile + zweiteilige Lösung bis zu max. ca. 340 cm Breite + deutlich günstiger als Hebeschiebetür (mind. um ein Drittel) + Schiebeflügel auch kippbar + weniger Platzbedarf als TDDK + optisch gleich wie TDDK (Profile) Nachteile - nur eine Hälfte öffenbar - weniger stabil als Hebeschiebetür (merkbar beim Ausschwingen in die Schiebeebene) - etwas geringere Dichtheit als TDDK - ca.6 bis 8 cm Schwelle unten - bei großen Flügel über 150 cm enorme Gewichte (40 kg/m² -> Erschwernis bei Glasbruch etc.) Hebeschiebetür (THS), sinnvoll ab B 3 m ======================== Vorteile + zweiteilige Lösung bis zu ca. 400 oder 500 cm Breite + deutlich stabiler als PSK (daher noch größere Breiten machbar) + (praktsich) keine Schwelle unten + beschlagstechnisch meist unverwüstlich + weniger Platzbedarf als TDDK Nachteile - sehr teuer (kostet das mehrfache einer TDDK-Lösung) - nur eine Hälfte öffenbar - weniger dicht als TDDK und PSK, hohe Dichtheit ist heute möglich, aber technisch aufwändig und daher sehr teuer - große Bautiefe (weil Schiebe- und Fixteil versetzt sind) - bei großen Flügel über 150 cm enorme Gewichte (40 kg/m² -> Erschwernis bei Glasbruch etc.) Zum Platzbedarf-Vorteil bei Schiebetüren ist noch zu sagen, dass der Platz vor der Tür aus praktischen Gründen meist ohnehin freigelassen werden muss (kein Verstellen). Dadurch relativiert sich dieser vermeintliche Vorteil. Fazit: Auch wenn ich hier gegen mein eigenes Geschäft spreche (:-;), würde ich mir im Einzelfall genau überlegen, ob es unbedingt eine Schiebetür sein muss. Wenn man aber (z.B. aus optischen Gründen) eine zweiteilige Lösungen über 200 cm Breite realisieren möchte, sind sie die einzig mögliche Lösung. LG Franz
|
||
|
||
|
@Bauerin - Ich hab eine 4 Meter breite HST HST [Hebeschiebetür] und würde die auf keinen Fall mehr hergeben.
Sieht wesentlich eleganter aus und das Öffnen und Schließen ist wesentlich einfacher als diese merkwürdig aus- und einklappenden PSK-Türen. Außerdem kannst du einen ebenen Austritt realisieren auf die Terrasse |
||
|
||
|
@Gawan:
Häuslbauerin1 schreibt ja schon, dass sie sich eine Hebeschiebetür nicht leisten kann/will, damit wär für mich das Thema erledigt. Klar hat das gewisse Vorteile, aber im Endeffekt muss der Kunde bezahlen, was er kann/will, und in diesem Fall fällt die Variante eben weg. Bezüglich "ebenen Austritt": Das ist auch mit einer Terrassentür zu realisieren, die eine niedrige Bodenschwelle hat, das kostet nen 50er Aufpreis und erfüllt den Zweck. Ist eigentlich schon Standard, außer man fragt was gegenteiliges an oder will nur die billigste Tür, die es gibt. Die Schiebekipptür empfehle ich grundsätzlich niemanden. Das ist weder Fisch, noch Fleisch... Dabei brauchts ne Einschulung, damit ein Ungeübter das bedienen kann. Einziger Vorteil ist die Kippfunktion, aber die ist zu vernachlässigen. Die meisten Kunden verfluchen im Nachheinein die Entscheidung, sich eine Schiebekipptür gekauft zu haben, weil sie einfach zu umständlich in der Bedienung ist. Eins möchte ich noch loswerden: Bezüglich dem Platzproblem von Häuslbauerin1 sehe ich das so, dass es bei einem knapp 40 m² großem Raum kein Platzproblem geben wird, was die Anschaffung einer Flügeltür betrifft. Weil man dort (und auch neben dem Fixteil) ohnehin keine Möbel davorstellen kann, spätestens seitdem man weiß, was ein thermischer Glasbruch ist, und das sowas auf Eigenverantwortung läuft (ist kein Reklamationsgrund). Fazit: Bei diesen Umständen (und dieser Größe der Tür) kommt keine Hebeschiebetür in Frage, die Schiebekipptür ist nicht zu empfehlen, und die Alternative bleibt eine Terrassentür. Ist in diesem Fall das empfehlenswerteste. Die technischen Unterschiede hat Franz Lagler schon ausführlich ung gut erklärt. |
||
|
||
|
Hallo Häuslbauerin1, hier gibt es dazu Erfahrungen und Preise: Flügeltür oder Schiebetür |
||
|
|
||
|
||
|
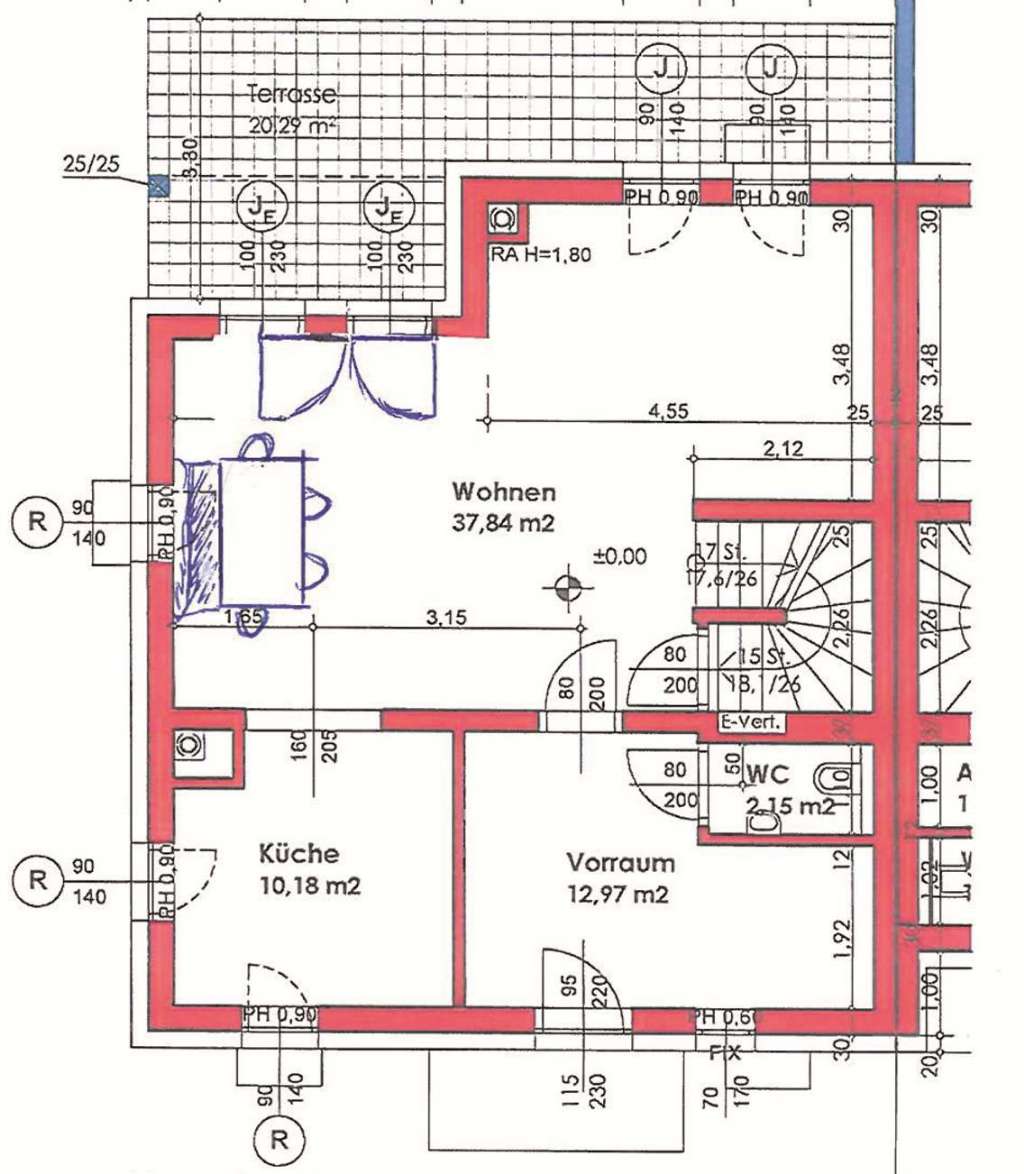
danke - füre eure super erklärten Beiträge. Wir haben uns für die Flügeltür entschieden und werden diese so weit wie möglich rechts platzieren. Somit haben wir links in der Ecke evtl. noch Platz für eine Vitrine. Nun müssen wir nur mehr überlegen, welche Seite wir als "Haupttür" verwenden wollen. Bei der rechten Seite, wie beireits oben beschrieben, meinte der Bauleiter, dass diese stören könnten. Ich glaub aber eher das die linke Türe stören würde. Unten eine kleine Skizze, wie wir unsere Einrichtung geplant haben: |
||
|
||
|
Anschlagseite - Wegen der (großen) Tiefe des Raums und der Vitrine würde ich den Gehflügel (= der Flügel der als erster aufgeht und zum Kippen ist) auch rechts machen. Für Rechtshänder wäre dies ohnehin die
gewohntere Aufgehrichtung (siehe auch die anderen Fenster am Plan). LG Franz |
||
|
||
|
Terrassentüren mit ebenen Schwellen - Zum Vorschlag von Romeo mit der ebenen Schwelle bei Drehkippterrassentüren möchte ich noch sagen, dass ich so etwas nur dort machen würde, wo die Dichtheit keine besondere Rolle spielt oder das Element (z.B. durch einen breiten Dachvorsprung) zumindest vor Regen gut geschützt ist.
Gerade bei breiten Elementen (zweiflügelige Terrassentür) ist die Dichtheit (Luft- und besonders Schlagregen) doch viel geringer als bei normalen Schwellen. Dazu kommt noch die leider oft deutliche Wärmebrücke, die dann zu Kondensatproblemen führen kann. |
||
|
||
|
@Häuslbauerin - Na, die linke Tür wäre im Weg ...
Rechts ist praktischer, außerdem öffnest du sie ja im Normalfall maximal 90° und nicht 180°. Die linke Tür bleibt dann (glaub mir) bis auf 3 Mal im Jahr immer zu. @Franz: Ist gut, dass du es dazu sagst, aber ich sehe hier überhaupt keine Probleme. Auch wenn der Plan nur auszugsweise gepostet wurde, erkennt man hier schon, dass es hier einen großen Dachvorsprung gibt, der dafür sorgt, dass es zu keinen Problemen bezüglich Wasser (insbesondere Schlagregen) kommen wird. Die Dichtheit ist hier sowas von vernachlässigbar, wenn man den Wert einer niedrigen Schwelle dagegenstellt. In dem Bereich Wohnzimmer-Terrasse spielt sich alles ab: Kinder rennen rein/raus, Besuch geht rein/raus, und auch die Bauherrschaft wird froh darüber sein, nicht über eine 7 cm hohe Schwelle stolpern zu müssen. Das ist im Neubau Usus, dass man zwischen Wohnzimmer und Terrasse niedrige Schwellen verbaut, damits keinen auf die Fresse legt. Braucht halt gewisse Umstände (geschützte Lage und planerische Vorraussetzung), aber beides ist hier gegeben. Gegenteiliges würde man ewig bereuen! Ich hab zB eine Mietwohnung, und dort wurde der Übergang zwischen Wohnzimmer und Terrasse (obwohl schlagregengeschützt!!) folgendermaßen ausgeführt: Hohe Schwelle (ca. 7 cm) + weitere 20 cm Unterschied zwischen Innen- und Außenboden. Das ist eine Barriere! Jeden Besucher muss man warnen, bevor er auf die Terrasse geht. Einer der schon 3 Bier getrunken hat, läuft in Gefahr, zu stoplern, und mein Großvater (ca. 90 Jahre alt) traut sich dort gar nicht rausgehen, weil die Stufe zu hoch für ihn ist. Fazit: Man sollte bei solchen Dingen schon noch die praktische Seite wichtiger nehmen, als minimale Unterschiede bezüglich der Dichtheit/Wärmedämmung. Häuslbauerin1 wird dort die nächsten 40 Jahre praktisch leben müssen, und nicht 63 Cent pro Heizperiode sparen wollen ... |
||
|
||
|
so nochmal so wir haben uns jetzt für die Flügeltür entschieden. Jetzt ist nur mehr die Frage welche der beiden soll sozusagen als "Haupttür" verwendet werden. Wir wissen noch nicht genau, wie wir den Esstisch stellen (anbei zwei Versionen) Freu mich über eure Meinungen. |
||
|
||
|
Ich würde - beim rechten Flügel als Gehflügel (erstöffnender) bleiben.
LG Franz |
||
|
||
|
Rechts! - Ich würde auch rechts sagen.
Platzmäßig würds passen und von der Logik her greift jeder den Griff in der Mitte der Tür automatisch mit der rechten Hand an. |
||
|
||
|
mhh - Meine Gedanken/Meinungen sind: Rechts: Vorteile: kürzester Weg, für Rechtshänder geeignet Nachteile: muss die Türe ganz aufmachen damit man rauskommt, Tür steht mitten in den Raum wenn sie offen ist, man steht mitten auf der Terrasse. Links: Vorteile: muss die Türe nicht ganz öffnen damit man rauskommt, offene Türe steht nicht in den Raum, hat einen kürzeren Weg links in den Garten Nachteile: Tisch könnte stören, langer Weg nach draußen (von der Küche aus) |
Dieser Thread wurde geschlossen, es sind keine weiteren Antworten möglich.Nächstes Thema: Beschlagteil gebrochen
