« Hausbau-, Sanierung  |

·gelöst· Dachbodentreppe / Dämmung oberste Geschoßdecke

Teilen: facebook    whatsapp    email
  •  zlau
2.1. - 9.1.2026
3 Antworten | 2 Autoren 3
3
Guten Abend allerseits,

wir sind uns etwas unsicher bei der Wahl der richtigen Dachbodentreppe, bzw. auch ob die oberste Geschoßdecke gedämmt gehört - wir hoffen ihr könnt uns vielleicht weiterhelfen.

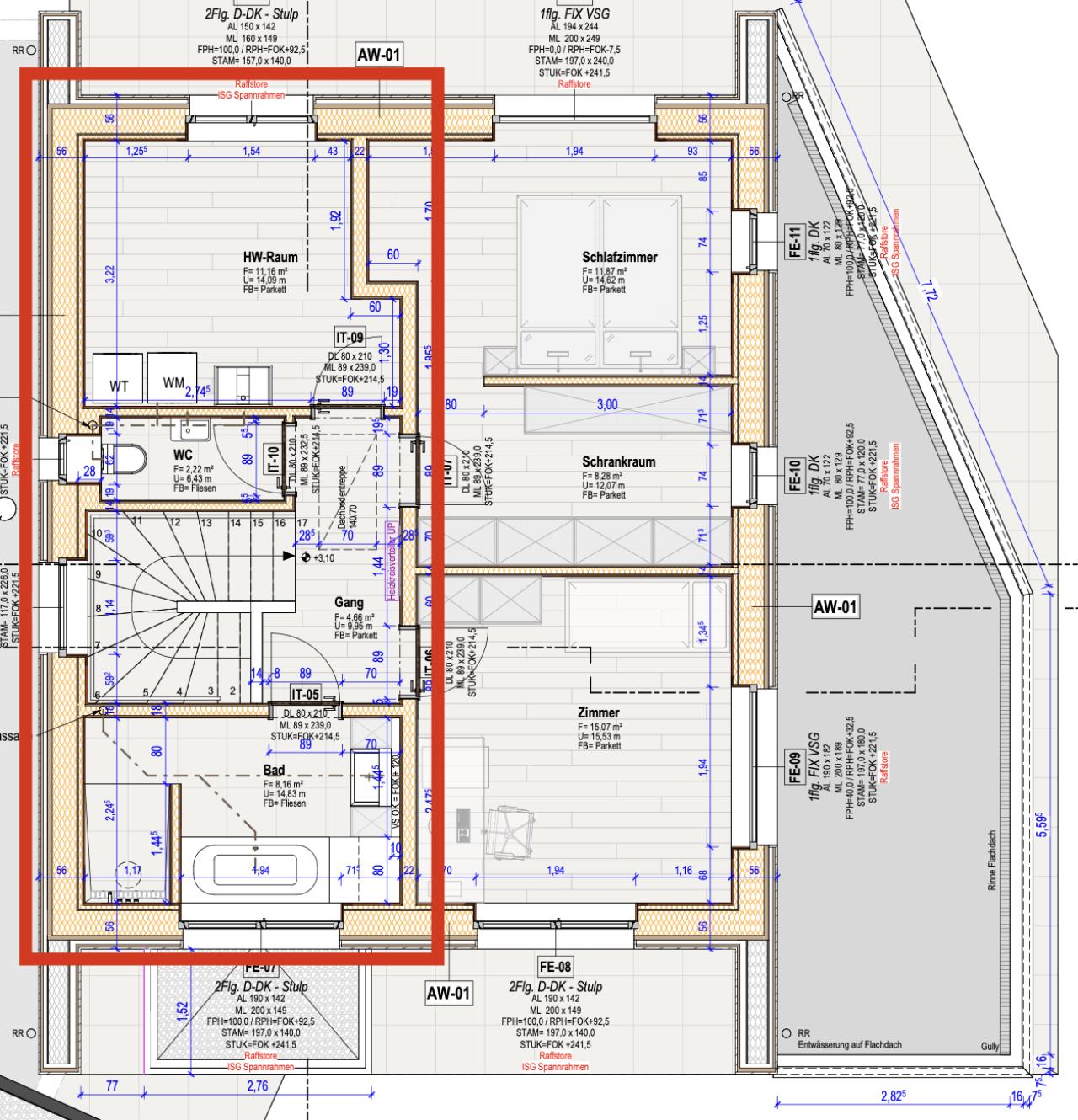
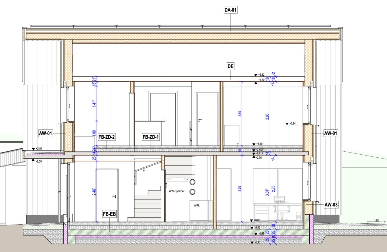
Wir bekommen ein Warmdach - auf einer Haushälfte sind die Zimmer im Obergeschoß nach oben hin zum Dachstuhl offen, auf der anderen Hälfte wird eine Zwischendecke eingezogen damit wir einen kleinen Dachboden haben. Momentan ist keine Dämmung in dieser Zwischendecke vorgesehen.

Hier unser Plan (der Bereich mit der Zwischendecke ist rot markiert), Schnitt und Aufbau:


_aktuell/20260102352787.png

_aktuell/20260102875159.png

_aktuell/20260102875720.png

_aktuell/20260102269918.png

Bei der letzten Besprechung mit Holzbauer und Architekt kam dann die Frage auf, ob man nicht zumindest die Decke über dem WC dämmt um eine Schallübertragung in den angrenzenden Raum zu verhindern. Dieser Raum ist in erster Linie HWR und Home Office, selten auch Gästezimmer (Klappbett).

Nun hatten wir etwas Zeit über die Feiertage darüber nachzudenken und es haben sich zwei Fragen ergeben. Unseren Holzbauer können wir erst nächste Woche erreichen, aber wir wären gerne vorbereitet…


  • Macht es Sinn gleich die ganze Zwischendecke zu dämmen? Das kann ja keine großartigen Mehrkosten verursachen? 
  • Derzeit angeboten ist die Dachbodentreppe „Minka Type 1 Passiv Plus“. Macht dieses Modell bei einem Warmdach - und v.a. wenn keine Dämmung eingebracht - wird überhaupt Sinn? 

  • Vielen Dank schonmal im Voraus!

    •  zlau
    7.1.2026  (#1)
    Hat vielleicht jemand eine Idee? 😅

    1
    •  ds50
    •   Gold-Award
    8.1.2026  (#2)
    Also meiner Meinung nach ist die DBT "überdimensioniert", da ja anscheinend keinerlei Anforderungen bzgl. Dämmung und Dampfdiffusionsdichtheit bestehen. Da würde es wohl die billigste DBT auch tun.

    1
    •  zlau
    9.1.2026  (#3)
    Vielen lieben Dank für deine Meinung!
    Wir haben mittlerweile auch unseren Architekten erreicht der deine Einschätzung teilt.
    Wir werden wohl auf ein einfacheres Modell umsteigen.


    1



    Beitrag schreiben oder Werbung ausblenden?
    Einloggen

     Kostenlos registrieren [Mehr Infos]

    Nächstes Thema: Sanierung Reihenhaus in Wien