KWL bei Sanierung
|
|
||
|
Der Grundriss passt perfekt für eine KWL KWL [Kontrollierte Wohnraumlüftung]. Alle Räume grenzen an den Gang an. Dort abhängen genügt also. Dann jeweils einmal durch die Wand in jeden Raum und du bist fertig. Die Kaminzüge liegen leider nicht optimal, da musst du noch irgendwie raus auf den Gang kommen. Oder du machst einen neuen Schacht für zwei 160er Rohre. |
||
|
||
|
Das hört sich doch schon einmal gut an, danke! Müsste dann aber bestimmt in jedem Raum die Ecken Abhängen dass ich diagonal zu den Zimmertüren gelage oder..? Sollte dann im EG und OG im Gang ein Rohverteiler eingebaut werden. Bei Deckenhöhe mit 245-250cm kann ich aber nur 10cm die Decke abhängen (max. 15cm) haben die ganzen Rohre überhaupt platz? Das Rohrleitungsnetz sollte natürlch auch für eine leichte Reinigung verbaut sein. Da wären natülich Winkelfalzleitungen ideal . |
||
|
||
|
Du bohrst einfach durch die Wand in die Räume und machst dort den Auslass. Wo der im Raum ist, macht keinen Unterschied. 20cm wirst du schon abhängen müssen für die Schalldämpfer und Verteiler, aber am Gang ist das verschmerzbar. Wir haben im Neubau auch "nur" 250cm Raumhöhe, die kann man in untergeordneten Räumen schon noch reduzieren. Von Wickelfalz bin ich ausgegangen, alles andere ist ein Rezept für Strömungsgeräusche. |
||
|
|
||
|
||
|
Was machst du mit Wasser und Heizung? Bleibt das wie es ist oder wird auch der Part angegriffen? WP? Wegen KWL KWL [Kontrollierte Wohnraumlüftung], unbedingt bei Fa Leitwof anfragen, die könnnen dir da richtig gut helfen und du kannst selber einbauen. Denke auch dass dein Grundris gut dafür geeignet ist. Für Kreuzungsfreie Verteiler brauchst 22cm, die Rohre wennst sogar au 80er gehen kannst ( berechnete Luftwechselrate) kommst in dem Bereich ca mit 15 cm aus |
||
|
||
|
Im EG wir komplett die gesamte Installation Wasser/Kanal/Elektro erneuert und eine Nassestrichfussbodenheizung eingebaut, im OG1 Wasser/Kanal/Elektro erneuert die Heizung weiter mit Heizkörper oder auf den Bestandestrich eine Trockenestrichfussbodenheizung draufgebaut. Wärmeerzeugung bleibt die Fernwärmestation wie bis bisher. (Nicht ganz günstig aber keine Investitionskosten und auch keine Wartungskosten) Dass der Grundriss dafür geeignet ist bin ich schon mal erleichtert, nur mit dem Thema der teilw. weit abgehängten Decken komme ich noch nicht ganz klar..... Kurz zusammengefasst benötige ich in beiden Geschosssn einen Rohrleitungsverteiler. Diese könnte ich ja auch in den WC Decken einbauen, da wäre mir die Deckenhöhe nicht sehr wichtig. Müsste ich dann in jedes Geschoss 2 160er Rohre legen oder können die irgendwie durchgeschliffen werden? |
||
|
||
|
Ich hätte auch noch eine Idee - Sprich vielleicht auch mit einem Tischler/Raumplaner für Standorte wo es schwer vorstellbar ist, eine KWL KWL [Kontrollierte Wohnraumlüftung] umzusetzen. 😉 Bin gerade beim Installieren der 125mm Spiro Rohre für Bad und Schlafzimmer, links sieht man die Zuluft für beide Räume, rechts die Abluft vom Bad, Abluft Schlafzimmer wird die Tage noch final gesetzt mit dem Detailplan vom Verbau. Meine Schlafzimmer Ein/Auslässe sind in den dunklen Nischen, da stellen wir dann halt keine Bücher davor und hoffen dass bei 30m³/h keine Geräusche auftreten. Ganz ohne Decke angreifen. ![]() ![]() Möbel sind letzte Woche geliefert worden und Aufbau die nächsten Tage - am Ende sieht man von der KWL KWL [Kontrollierte Wohnraumlüftung] in diesem Raum kaum was, erhoffe mir aber deutliche Verbesserung vom CO2 in der Luft, freu mich drauf! |
||
|
||
|
Schalldämpfer nicht vergessen, die werden sich im WC nicht ausgehen. Du legst jeweils ein 160er für Zu- und Abluft als Sammelstrang. Von dem gehst du in jedem Stockwerk zum Verteiler. |
||
|
||
|
wir haben bei unserer KWL KWL [Kontrollierte Wohnraumlüftung] Nachrüstung im EG DN80 Rohre genommen. Die Abhängung kommt dort somit nur auf 14cm. Siehe --> https://www.energiesparhaus.at/forum-nachruestung-kwl-erfahrungsbericht/81220_3#893870 |
||
|
||
|
Die Idee die Leitungen in den Möbeln zu verstecken gefällt mir sehr gut! Danke für die Bilder 👍 Sehr schöner Bericht, danke dafür 👍 Frage zu den Schalldämpfern: werden diese benötigt um das Lüftungsgerät bzw. die Luftströmungen nicht zu hören oder um Schall zwischen Räumen zu reduzieren? |
||
|
||
|
Beides. |
||
|
||
|
Bekommt man eigentlich eine kostenlose grobe Vorplanung und Kostenschätzung einer KWL KWL [Kontrollierte Wohnraumlüftung] mit Rohrleitungswege, damit man sich das Ergebnis (welche Decken in welchem Ausmaß abgehängt werden müssen) besser vorstellen und auch vorab die geplanten Durchbrüche mit Statiker abklären kann. Möchte ungern eine Planung in Auftrag geben und die dann unter Umständen doch nicht umgesetzt werden kann, sei es aus Gründen der Statik bzw. der Optik oder auch der Anschaffungskosten, aber trotzdem die Planungskosten zu haben. |
||
|
||
|
Kostenlose Vorplanung hast eh schon bekommen, siehe oben ↑ Kostenschätzung all incl bei kompletter Eigeninstallation: 6k€ Detailplanung kann man auch selber machen, hier im Forum und unter komfortlueftung.at stehen alle notwendigen Infos. |
||
|
||
|
Wir haben bei Leitwolf eine kostenlose Vorplanung erhalten, und diese auch ein paar Mal angepasst bis wir zufrieden waren. In der Detaiplanung haben sich noch ein paar Sachen geändert, aber nichts wirklich gravierendes mehr. Hat uns sehr gehofen bei der Planung der anderen Gewerke. Einiges ist dann trotzdem anders geworden da zb der Installateur die geplanten Wege der KWL KWL [Kontrollierte Wohnraumlüftung] gekreuzt hat, war aber eigentlich problemlos zu lösen. Die Schalldämpfer sind adzu da die Geräusche der Lüfter und Übertragung zwiscehn den Räumen zu verhindern. Das funktioniert bei uns extrem gut! Wir haben keinerlei Geräuschübertragung, und auch die Lüfter hört man absolut nicht. Lediglich am Umluftanschluss im Vorraum bemerkt man Geräusche, und natürlich im Aussenbereich. Das war uns tatsächlich nicht bewusst, ist aber auch nicht wirklich ein Problem, und wäre auch schwer anders umzusetzen gewesen. |
||
|
||
|
Bei uns bekommt man Beratung und Machbarkeit für die minimal-invasive Integration, einen KV und einen Entwurf. Nur für den Entwurf verrechnen wir je nach Aufwand im Regelfall zwei Technikerstunden. Je nach dem wo man die Steigleitungen platziert, müsste man im EG beispielsweise außer dem WC keinen weiteren Raum abhängen. Durch die vielen Erfahrungen mit Nachrüstungen im Neubau haben wir schon eine Palette an Möglichkeiten gefunden die Luftleitungen zu verstecken oder als gestalterischen Aspekt zu nutzen. |
||
|
||
|
Danke für die Informationen bzw. Vorschläge. Bin zuversichtlich das Thema KWL KWL [Kontrollierte Wohnraumlüftung] in die Sanierung einzuplanen. Wie sieht es eigentlich mit dem Standort vom KWL KWL [Kontrollierte Wohnraumlüftung]-Gerät und den Zu/Abluftleitung nach oben aus? Standort wäre bei mir im Keller, dieser ist aber nicht beheizt. Diesen Winter habe ich mindestets 14Grad gemessen obwohl aktuell keine Sockeldämmung (ca. 0,5m frei, rest Erdreich) vorhanden (Kellerfenster teilw. in Kippstellung) das EG (ohne wirkliche Dämmung und den alten Fenstern ) im fast Rohbauzustand ohne Heizung. |
||
|
||
|
Dann musst du alle 4 Leitungen dämmen. Außen- und Fortluft wie gehabt diffusionsdicht gegen Kondensat, Zu- und Abluft womit auch immer gegen Wärmeverlust. Das Gerät selbst sollte gedämmt sein, da würde ich vorerst mal nichts machen bei 14°C. |
||
|
||
|
Danke nochmals an alle, In 2 Wochen habe ich mit dem Statiker einen Termin bzgl. machbarkeit der Durchbrüche. Würde jetzt die Steigleitungen im WC 1x links und 1x rechts beim WC Fenster planen, hat jemand eine besser Idee wo die Steigleitung am besten positionert werden sollten, oder kommt keine andere Position in Frage? Viele Grüße Simon |
||
|
||
|
WC klingt vernünftig, da bist du im OG dann im Bad, wo eine (Teil-)Abhängung normalerweise auch nicht stört, bzw sogar ganz gut als Designelement reinpassen könnte. |
||
|
||
|
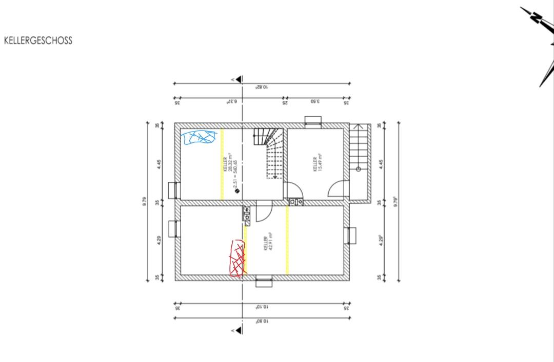
Wo ist denn im Plan der Technikraum? Unter den Bädern? Wie sehen die Bäder aufgeteilt aus? Würde versuchen die Hauptleitungen Richtung Gangwand zu bekommen, dann bleibt die Abhängigkeit außerhalb der Räume. Musst ja doch mit ca 22cm rechnen |
||
|
||
|
Also OG bin ich noch am überlegen ob die Aufteilung doch wie im EG wird, also WC vom Bad getrennt. Technikraum wird unterhalb EG - WC/Bad werden, muss aber nicht. Aktuell befindet sich mein Boiler und die Fernwärmeübergabestation wie im Bild rot eingezeichnet. Soll aber noch versetzt werden nach Position Blau (da dort die Leitungen ins Haus eingeführt wurden) |
Beitrag schreiben / Werbung ausblenden?
Einloggen
Kostenlos registrieren [Mehr Infos]






