Heizlastberechnung & Flow30-Verlegung
|
|
||
hier noch die zweite Seite der trenchplanner Berechnung ![]() Hier der Link, falls es hilft: https://grabenkollektor.waermepumpen-verbrauchsdatenbank.de/trenchplanner.html?id=gNtnAO3cDIEZ092DX0Ac |
||
|
||
|
Wie hast du die Lüftungsverluste berechnet? Bei mir sind die fürs ganze Haus rund 360W. |
||
|
||
|
Danke für die Info. Habe bei der Lufwechselrate 0,5h angenommen und bin auf die Werte gekommen: Raumvolumen= 174m³ (65m2 x 2,68 m) Massenstrom: 0,029 kg/s spezifische Wärmekapazität von Luft ~ 1000 J / (kg x K) Temperaturdifferenz = 34,1 K 0,029 kg/s x 1000 J x 34,1 entspricht ungefähr 1000 Watt Lüftungsverluste Im Energieausweis nach Sanierung steh ein Luftwechsel von 0,28 1/h. Da würde ich dann auf eine Heizlast von 1800 Watt kommen. Hab ich da was falsch berechnet? |
||
|
|
||
|
||
|
Der Luftwechsel hängt primär von der Anzahl der Personen ab. Zu wenig und der CO2-Gehalt wird zu hoch, zu viel und die Luft wird im Winter schnell zu trocken. Ich habe für unser Haus ein Maximum von 150m³/h angenommen (5-6 Personen). Real werden wir meistens darunter sein. Mir fällt gerade auf, du hast keine WRG eingerechnet - daher der Unterschied zu meiner Berechnung. Ist eine KWL KWL [Kontrollierte Wohnraumlüftung] in Planung? Die könnte die Lüftungsverluste deutlich reduzieren und bringt Komfort. |
||
|
||
|
KWL ist keine in Planung. Bin aber echt verwundert, dass ich nur mit FBH FBH [Fußbodenheizung] (ohne Wandheizung, Betonkernaktivierung oder KWL KWL [Kontrollierte Wohnraumlüftung]) die benötigte Heizlast erreichen kann. |
||
|
||
|
bist aber immer noch in unterdeckung, oder? RT21C würde wohl reichen. schaffst du es noch längsten und kürzesten kreis zu entschärfen? dann wird kaum was einzuregeln sein. |
||
|
||
|
auch mit 1800W heizleistung komm ich nur auf eine 82 % Heizlast Deckung RT21C heißt? 😁 Die Fehermeldung mit längstem und kürzesten Kreis kommt, weil die Verbindung zwischen "Wärmepumpe" und "Verteiler" als Heizkreis ansieht. keine Ahnung, wie oder ob man das korrigieren kann. |
||
|
||
|
heißt, dass ich faul bin: RaumTemperatur 21° C das hatte ich garnicht beachtet. nur gesehen, daß der längste kreis 1,1l/min will und der kurze 0,7. wenn es geht, dem langen ein paar meter wegnehmen und dem kurzen etwas mehr geben. ist aber schon finetuning. |
||
|
||
ahh, die Verbindung zur Wärmepumpe braucht man gar nicht . ich spiel das gerade mit einer niedrigeren luftwechselrate durch. bezüglich raumtemperatur: da bin ich etwas verwirrt. wirkt sich die gewünschte raumtemperatur nicht auf die heizleistung in watt aus? im trechnplanner kann ich beide werte separat ändern und es wirkt sich auf die berechnung aus. muss man die beiden werte immer gleichzeitig anpassen? |
||
|
||
|
Bei niedrigerer RT RT [Raumtemperatur] hast du höhere Übertemperatur und damit mehr heizleistung, wenn der Rest gleich bleibt. Wenn bei 22 RT RT [Raumtemperatur] eine Unterdeckung bleibt, wird natürlich die 22 nicht erreicht. Am ende muss man schauen wie sich alle Räume so verhalten. Wenn nur ein Raum mit Unterdeckung dabei ist, macht es Sinn dort bisschen mehr Fläche zu aktivieren. Vielleicht ein extra Kreis an der Wand etc. Alternativ muss man dort mit weniger Leistung leben, oder die VL VL [Vorlauf] doch ein K anheben. In einem untergeordneten Raum wäre leichte Unterdeckung vielleicht nicht so schlimm, im Wohnbereich oder Bad eher schon. Edit :ich hab im trenchplanner damit noch nicht gespielt. |
||
|
||
|
ein paar Hinweise Transmissionswärmeverlust Decke, wenn Decke zu unkonditioniertem Dach dann gibts eigentlich noch einen Korrekturfaktor von 0,9, dann wäre ich bei knapp 300 Watt hast du auch Verluste nach unten? Keller ungedämmt? für den Lüftungsverlust ist 0,5 viel zu hoch, ich glaub im Energieausweis in NÖ sinds jetzt 0,2 oder 0,25 und noch besser für den Komfort ist die KWL KWL [Kontrollierte Wohnraumlüftung] und die redziert auch den Lüftungsverlust und vom Trenchplaner hab ich keine Ahnung, aber grundsätzlich gilt, dass du mit einer höheren Raumtemperatur ein höhers Delta T hast (Diff zwischen NAT und RT RT [Raumtemperatur]) und damit auch eine höhere Heizleistung brauchst. |
||
|
||
|
Danke für eure Inputs. Ich habe nun den Lüftungsverlust auf 0,28 (laut Energieausweis) reduziert. Und komme auf einen Lüftungsverlust von 566. Verlust Richtung Keller hab ich ignoriert, der wird gedämmt (ist unbeheizt) und hat nach Sanierung einen U-Wert von 0,21. Verlust vom OG zum Dachraum (U 0,18) hab ich aber berücksichtigt, da es oben doch deutlich kühler werden kann - im Vergleich zum Keller. Komm somit ingesamt auf ein Heizlast von 1469 W fürs das Wohnzimmer. Das geht sich dann mit der Verlegung schon aus https://grabenkollektor.waermepumpen-verbrauchsdatenbank.de/trenchplanner.html?id=tYSlYGRlxYdYSiDE1CLN |
||
|
||
|
wenn es für mich wäre, würde ich da nochmal ansetzen: ist zwar wenig, würde ich aber mitberechnen. wir wollen ja nicht schönrechnen. würde den vorraum nochmal überdenken. lieber auch auf 22RT gehen. das hilft auch dem angrenzenden wohnzimmer, weil dann kein temperaturgefälle herrscht. lieber zwei kreise und bei bedarf eindrosseln, weil der jetzt bei 21RT schon 50% mehr wasser braucht. gästezimmer ist grenzwertig, weil das auch mehr wasser verlangt. entweder bleibt das nachher kühler (wenn man alle kreise möglichst offen laufen lassen möchte), oder alle anderen müssen gedrosselt werden. bad würde ich entweder VA10 machen und den rest rohr an die wand, oder besser einen ganzen WH WH [Wandheizung]-kreis dazu. und weil du eh schon ne menge kreise hast, würde ich zwei verteiler setzen. wie ist denn überhaupt der grundriss? rechteck, oder viele ecken und versprünge? |
||
|
||
|
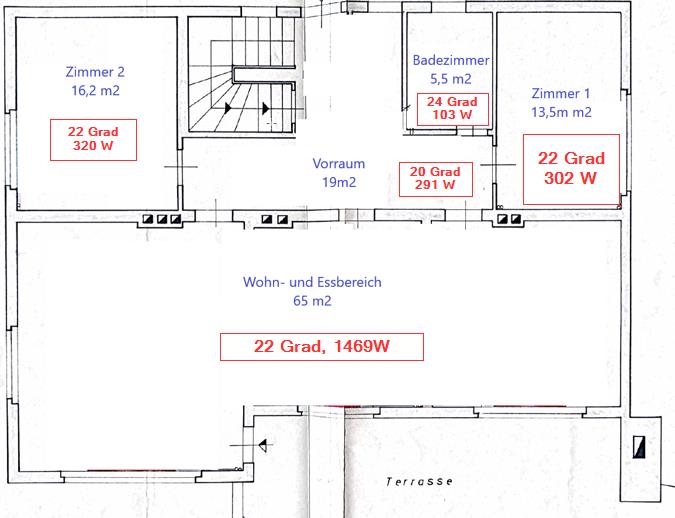
danke für den Input. ich werde das echt nochmal überdenken. Hab versucht die Auslegung so durchzuführen, dass es mit 12 Heizkreisen ausgeht, weil ich dann keinen zweiten benötigen würde. Geht sich aber wahrscheinlich einfach nicht aus. Beigefügt der Grundriss mit den aktuell berechneten Werten. |
||
|
||
|
Das Badezimmer schaut gefährlich aus. Norden, eine Außenwand und zwei dünne Innenwände zu einem Raum mit 4K Temperaturdifferenz. Hast du das ganz sicher richtig berechnet? Zum Vergleich, unser Gästebad im Neubau mit besserer Dämmung und gedämmten Innenwänden braucht für seine 4,5m² schon rund 150W. |
||
|
||
|
interessant. die temperaturdifferenz zu den anderen innenräumen hab ich ehrlich gesagt nicht berücksichtigt. für die berechnung habe ich ein eigens programm geschrieben. Die Werte ergeben sich wie folgt: Uwerte: Fenster 0,8, Außenwand: 0,18, Kellerboden: 0,21 Kellertemperatur: 15 Grad Dachtemperatur: 0 Grad |
||
|
||
|
Die Innenwände machen sicher einen Unterschied, vor allem wenn die Temperaturdifferenz groß ist und die Wände nicht gedämmt sind. Was für Wände sind denn das bei dir im Bad? Es wird ja oft gesagt, dass ein gut gedämmtes Haus nur eine Temperatur hat. Das ist sicher etwas überspitzt formuliert, aber im Grunde ist was Wahres dran. |
Beitrag schreiben / Werbung ausblenden?
Einloggen
Kostenlos registrieren [Mehr Infos]




