·gelöst· FBH Auslegung: Hilfe vor der Standardplanung!
        
  | 
           
  | 
||
| 
Nachdem bei dir eine BKA BKA [Betonkernaktivierung] verbaut und eine WH WH [Wandheizung] für das Bad geplant ist, kann es gar nicht mehr so schlimm sein.   Welches Rohr mit welchen Längen wurde den in der BKA BKA [Betonkernaktivierung] verbaut?  | 
||
           
  | 
||
| 
Hi @ds50    ich steh so ziemlich exakt vor der gleichen Aufgabe, nur hab ich noch ein paar Monate für die Planung. BKA wurde vom Hersteller auch mit VA15 ausgelegt, Insti sagt das muss so passen und geht eher nicht auf meinen Vorschlag VA30 mit 20x2 Rohr ein ("das wird nie funktionieren, du bekommst die Kühlleistung nicht hin"). Siehe https://www.energiesparhaus.at/forum-installationsplanung-auslegung-rgk/56870_1#559592 Zumindest wurde, gleich wie bei dir, eine Wandheizung in der Dusche eingeplant. Die Auslegung der FBH FBH [Fußbodenheizung] wurde noch nicht gemacht, wird aber auch vom Insti an den Rohrhersteller ausgelagert. Meine Anfrage an den Insti, wenigstens alle Rohrlängen ungefähr gleich auszulegen, wurde mit dem Argument abgeschmettert: "das wird dann eh alles eingeregelt am Verteiler". Ich denke, deine Auslegung mit VA20 in der BKA BKA [Betonkernaktivierung] sollte schon passen, so wie ich es verstanden hab (der Profi ist eh schon hier 😁) hätte man sich ein paar Meter Rohr bzw. größeren Verteiler auch sparen können. Ich für mich werd zumindest schauen, dass ich so ganz kleine Heizkreise zusammenlegen lasse (zB die WCs) damit ungefähr gleich lange Heizkreise hab.  | 
||
           
  | 
||
| 
Wer die Kapelle zahlt, bestimmt welche Musik gespielt wird.   Geht auf dem Bau leider oft vergessen.  | 
||
| 
 | 
||
           
  | 
||
| 
vielleicht hilft dir das:   VA 5cm: 17,6m pro m² VA 7,5cm: 11,6m pro m² VA 10cm: 8,8m pro m² http://hausbau-becker.blogspot.com/2017/04/fubodenheizung.html ich würde auf gleiche Längen, wenigstens + - 10m bestehen und das über den VA regeln. G-WC + Flur kombinieren! Schau dir mein Werk an, das ist schon ganz fein so.  | 
||
           
  | 
||
Danke erstmal. IIRC ist das BKA BKA [Betonkernaktivierung] Rohr ein 20er (deswegen war kein VA15 möglich    ), die Rohrleitungslängen hat hoffentlich noch mein Insti und werde ich von ihm noch erfragen.   @owall , das Bild mit der Berechnung in deinem Thread kommt mir erschreckend bekannt vor. Auch bei mir wollten sie ursprünglich das WC als eigenen Kreis behandeln, das wird der Praktikant bei Pipelife wohl so entschieden haben... 😬 Die WH WH [Wandheizung] im Bad ist bei mir wirklich nur eine Seite der Dusche mit 18 Schleifen rauf - macht es Sinn, diese geschätzt 25m einfach in Serie mit dem restlichen Badheizkreislauf - EDIT: Je nach Länge der dortigen Kreise - zu schalten?  | 
||
           
  | 
||
| 
Ja, kann man machen wenn dann die Gesamtlänge passt. Ein bisschen mehr Leistung wäre aber mit WH WH [Wandheizung] + z.B. WC, Gang in Serie und extra Kreis für FBH FBH [Fußbodenheizung] Bad für das Bad drinnen, da die Heizmittelübertemperatur für das Bad dann höher ist.                          | 
||
           
  | 
||
| 
   Klingt gut - wird aber dann etwas tricky, falls ich im Sommer damit auch kühlen möchte. Die Pedaaa'sche Bypass - Lösung wird mir (und wohl auch meinem Insti) zu kompliziert, befürchte ich...  | 
||
           
  | 
||
| 
   Kein Thema, WH einfach abdrehen. Die Kühlung würde dann eh in der Masse über die BKA BKA [Betonkernaktivierung] laufen, über die FBH FBH [Fußbodenheizung] geht eh viel weniger.  | 
||
           
  | 
||
| 
Ich hab die Kühlung erstmal auch nur über die BKA BKA [Betonkernaktivierung] geplant.    Ob ich evtl. im EG dann die FBH FBH [Fußbodenheizung] dazu schalte wird sich zeigen, wollte aber kalte Füße vermeiden deshalb strebe ich an nur per BKA BKA [Betonkernaktivierung] zu kühlen. Evtl. dreh ich dann am BKA BKA [Betonkernaktivierung]-Verteiler die Bäder/WC Kreise noch ab. Wie viele BKA BKA [Betonkernaktivierung]-Kreise sind es jetzt geworden schlussendlich? 20er Rohr klingt ja eh gut ;)  | 
||
           
  | 
||
| 
Unser Insti will die BKA BKA [Betonkernaktivierung] in einem 10er Abstand montieren weil besserer Wärme/Kälteübertragung. Hab ihm auf einen 20er Abstand angesprochen, wollte er aber eigentlich partout nicht gelten lassen. Beim gleichen Preis, hab ich durch einen 10er Abstand massive Nachteile, oder nur er beim Verlegen? 😎   Danke und lg  | 
||
           
  | 
||
| 
   Ich vermute dein Insti macht die Verlegung der BKA BKA [Betonkernaktivierung] das erste mal. Welcher Rohr-Querschnitt und welche Kreislänge?  | 
||
           
  | 
||
| 
Nein, eigentlich nicht. Ist ein relativ "großer" und macht es eigentlich relativ oft....er meinte sie machen das immer so(?)                          | 
||
           
  | 
||
| 
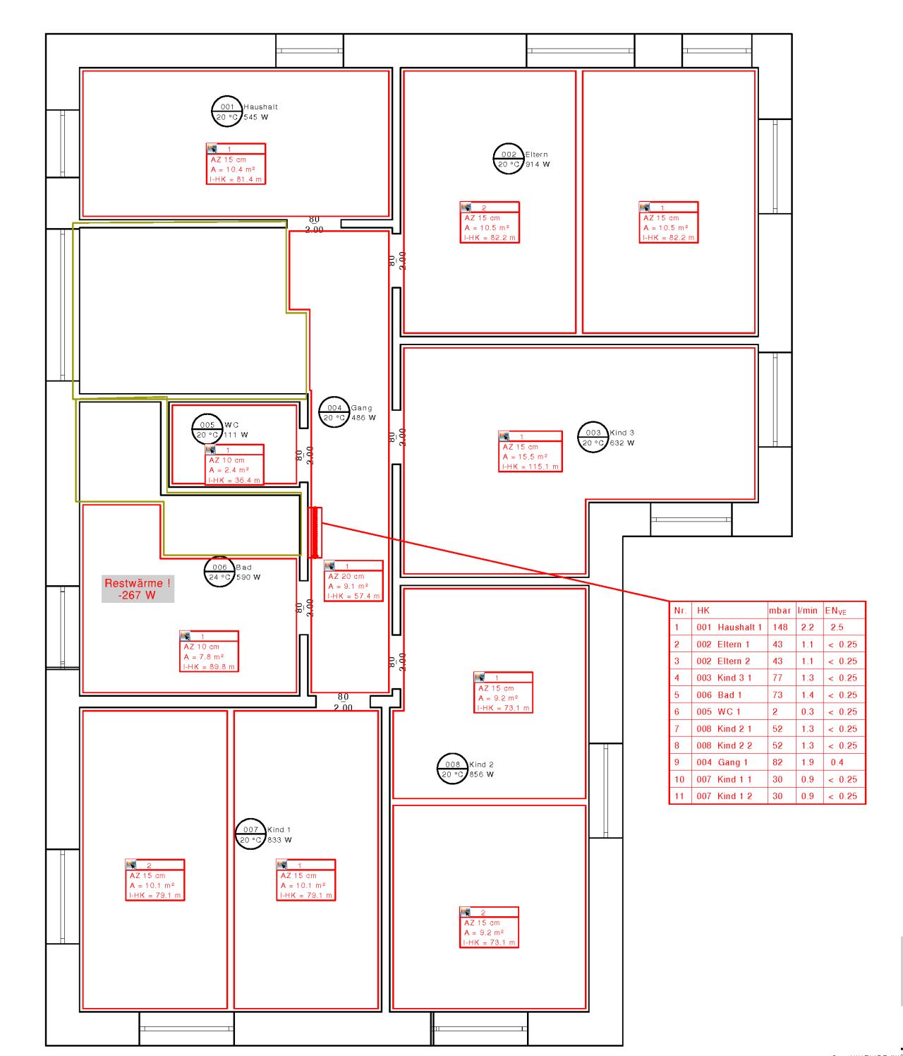
So, nun hab ich alle Infos zur Hand. Zuerst die BKA BKA [Betonkernaktivierung], so wie sie eingelegt wurde:    BKA Decke EG:      BKA Decke OG:      Alles mit 20er Rohr. Hinweis: Beide Bäder (EG und OG) wurden nicht in den Kühlverteiler, sondern in den Heizverteiler geführt (da diese nicht gekühlt werden sollten...). Der Vorraum hat leider keine BKA BKA [Betonkernaktivierung] erhalten. Und nun die geplante FBH FBH [Fußbodenheizung], alles mit 16er Rohr: FBH Plan EG:      Hier stimmen die HKV nicht, da im Abstellraum (hier im Vorraum eingezeichnet) ein 10er HKV und im Vorraum "Büro" (also ganz rechts oben) ein 4er HKV verbaut ist. FBH Plan OG:      Der HKV ist wie beim Kühlverteiler im WC. Der Insti meinte, daß er VA10 legen wird, wo hier VA15 steht, und daß er nur wenig mehr Rohr wie lt. Plan brauchen würde, da er natürlich keine 90° Ecken wie im tollen Plan legen kann. Auf die Frage, was wir mit der 25m Dusch-WH machen, meinte er, daß man die natürlich einzeln anschließen und mit Tacoregler runterdrosseln soll - Weil wenn man sie in Serie schließt, dann hat sie weniger Leistung. Außerdem kann sie mit den Jahren bei den Muffen verschlammen (??) und dadurch noch weniger Leistung bringen. Und er meint: Wenn ich es anders haben will, dann darf ich einen Schrieb unterschreiben, daß das alles auf meine Verantwortung passiert und er keine Garantie mehr für irgendwelche Fehler abgeben kann, z.B. Nichterreichung der Raumtemperaturen. Verlegung könnte bereits Mitte nächster Woche starten. Also: What to do? Danke auf jeden Fall für jeden Input. EDIT: P.S., falls irgendwie wichtig: Die Wand im OG zwischen Stiege und Haushaltsraum gibt es nicht, daß ist jetzt ein offener Raum. EDIT: "Gerechnet" wurde der FBH FBH [Fußbodenheizung] Plan ohne BKA BKA [Betonkernaktivierung].  | 
||
           
  | 
||
| 
Ich schau mir am das am Abend an.   Sind die HKV für die BKA BKA [Betonkernaktivierung] schon verbaut? Bei 49 Meter mit einem 20x2 Rohr wird nämlich für die FBH FBH [Fußbodenheizung] nicht mehr viel Volumenstrom übrig bleiben. Da Heiz- und Kühlkreisverteiler schreibst, ich nehme an du willst auch mit der BKA BKA [Betonkernaktivierung] heizen, würde ich zumindest empfehlen. Wenn ich solche Sachen lese und die Verlegung der BKA BKA [Betonkernaktivierung] betrachte, Frage ich mich schon ob dem Insti die Grundlagen bekannt sind.  | 
||
           
  | 
||
| 
Ich habe mir jetzt die Planung durchgesehen, mMn wir das so nix. Ich gehe jetzt davon aus, dass die BKA BKA [Betonkernaktivierung] für die Heizung und Kühlung verwendet wird.    Die kurzen Kreise der BKA BKA [Betonkernaktivierung] wären mit einem zweiten kurzen Kreis der BKA BKA [Betonkernaktivierung] in Serie zu hängen, damit wir zumindest auf 100 Meter Gesamtlänge kommen. Mit der derzeitgen Planung würde die Masse des Volumenstroms über die BKA BKA [Betonkernaktivierung] laufen, die FBH FBH [Fußbodenheizung] würde fast nichts abbekommen. Nur mal als Beispiel, der Insti hat bei der FBH FBH [Fußbodenheizung] einen 16x2 Kreis mit einer Länge von 118,4 Meter mit einem Volumenstrom von 2,2 l/min geplant. Der Druckverlust würde ca. 20000 Pa betragen. Auf der anderen Seite wurde bei der BKA BKA [Betonkernaktivierung] ein 20x2 mit 49 Meter geplant. Bei 20000 Pa würde durch dieses Rohr ein Volumenstrom von 8 l/min laufen. Das wird aber nicht funktionieren, da deine WP WP [Wärmepumpe] für alle Kreise nur 30-40 l/min liefern wird. Also wird mit den Tacosetter gedrosselt, auch nicht toll aber dazu später. Zum Glück ist das durch die BKA BKA [Betonkernaktivierung] alles nicht so schlimm. Die 2,2 l/min wirst du nicht benötigen, es werden bei der FBH FBH [Fußbodenheizung] eher 1 l/min werden. Nachfolgende Punkte würde ich machen. 1. Kurze BKA BKA [Betonkernaktivierung] Kreise in Serie hängen 2. FBH-Kreise zwischen 70 und 90 Meter (da die BKA BKA [Betonkernaktivierung] Kreise so kurz sind) 3. VA 15 wird grundsätzlich ausreichen, im Bad vielleicht VA 10 und im Bereich der bodentiefen Fenster eine engeren VA. 4. Wäre selber Verlegen, ist aber nicht jedermanns Sache, dann brauchst dem Insti auch nix unterschreiben. Die Raumtemperaturen werden durch die BKA BKA [Betonkernaktivierung] kein Thema sein und die Fehler sind jetzt schon da. Ich weiß zwar nicht welche Wärmequelle verwendet wird, sollte aber eine modulierende WP WP [Wärmepumpe] verbaut werden macht der "Tacoregler" probleme. Ich versuche dir zuerklären warum. Durch deine vielen Heizkreise (BKA, FBH, WH) werden diese in der Masse der Heizzeit laminar betrieben (siehe dazu https://de.wikipedia.org/wiki/Laminare_Str%C3%B6mung ) . Das bedeutet, dass der Druckverlust proportional zum Volumenstrom ansteigt. Die Tacosetter werden aufgrund des geringen Querschnittes aber turbulent betrieben, dadurch steigt der Druckverlust quadratisch zum Volumenstrom. Da aber modulierende WP WP [Wärmepumpe] den Volumenstrom mit der Heizlast verändern passt die Einstellung an den Tacosetter eigentlich nur für jenen Volumenstrom, bei welchem sie eingestellt wurden. Die einzige Möglichkeit wäre die WP WP [Wärmepumpe] mit konstantem Volumenstrom zu betreiben. Die Folge ist aber ein erhöhter Stromverbrauch in der Masse der Heizzeit. Die Grenze zwische laminarer und turbulenter Strömung liegt für das 16x2 Rohr bei ca. 1,03 l/min und für das 20x2 Rohr bei 1,39 l/min. Und um die volle Leistung für die WH WH [Wandheizung] zu erhalten wird in Serie zu WH WH [Wandheizung] einfach das WC oder der Gang gehängt, welche einfach weniger Leistung benötigen. dyarne hat zu dem Thema unter nachfolgenden Links einiges geschrieben. https://www.energiesparhaus.at/forum-fbh-nach-tichelmann/53890_1#508751 https://www.energiesparhaus.at/forum-fbh-nach-tichelmann/53890_2#508880 
                        
                          | 
||
           
  | 
||
| 
off topic: @berhan: das ist wieder einmal ein wunderbarere beweis dafür, dass die meisten installateure von ihrer materie keine tiefgreifende ahnung haben. genau diese installateure verkaufen, "planen" und verbauen luftwärmepumpen. deshalb haben die dinger bei den meisten nutzern keine daseinsberechtigung, da sie meist an vollkommen falscher stelle, in vollkommen falscher größe von den vollkommen falschen leuten verbaut werden. das ist leider mit deiner perfekten selberbaulösung nicht mal ansatzweise zu vergleichen.   übrigens: die breite masse an nutzern macht sich eben keine gedanken über dieses gewerk - die vertrauen ihrem unfähigen - das machen wir immer so - insti (ausnahmen bestätigen natürlich die regel)  | 
||
  | 
||
| 
Hallo ds50, hier gibt es dazu Erfahrungen und Preise: [Gelöst] FBH Auslegung: Hilfe vor der Standardplanung!  | 
||
           
  | 
||
| 
@heislplaner hat aber grundsätzlich nix mit der LWP LWP [Luftwärmepumpe] zu tun, siehe Eingangspost des TE.    Aber ich stimme dir zu, wenn die FBH FBH [Fußbodenheizung] falsch gemacht wurde sind die Auswirkungen mit einer LWP LWP [Luftwärmepumpe] gravierender. In Fall von da50 würde es aber durch die BKA BKA [Betonkernaktivierung] nicht so schlimm werden , er hat ja eher zu viele Kreise und dadurch kein Problem mit dem Volumenstrom.  | 
||
           
  | 
||
| 
ich meinte die generelle fachliche expertise der vielen unfähigen instis denen die meisten unwissenden nutzer vertrauensvoll zum opfer fallen.                           | 
||
           
  | 
||
| 
   off topic: Ah jetzt versteh ich dich, für mich ist das eher ein Branchenproblem. Der Insti wäre für mich nur das Durchführungselement, jedoch nicht der Planende. Ist defakto eh so, die Planung erfolgt durch den GH oder den Hersteller. Nur die wollen eigentlich die Ware verkaufen, die Planung ist nur Gutwill für den Insti und so schaut sie leider teilweise auch aus. Mir fehlt halt so was wie der Statiker am Bau für den Insti. Das Fachgebiet ist für einen kleinen Insti einfach zu groß. Der akutelle Recknagel, sozusagen die Insti Bibel, hat 2607 Seiten und deckt dabei nicht mal alles ab. Mich interessieren ja auch nur jene Komponenten die ich bei mir verbaue und lese mich dann ein. Ich habe z.B. eine Badewanne mit HG iBox, Exafill und sBox verbaut, da dauerte die Planung fast einen ganzen Tag. Und ohne Planung endet so ein Einbau in einem Desaster (vor allem aus hygienischer Sicht). Ich glaube aber nicht das ein Insti einen Tag für diese Planung investiert, obwohl es die Spannen hergeben würden. MMn werden die GH früher oder später diese Dienstleistung inkl. Installation übernehemen oder es kommt die Spezialisierung der Insti auf genau ein Thema (z.B. RGK mit SWP, LWP, KWL, FBH .....), so wie der Innenputzer am Bau.  | 
||
           
  | 
||
| 
   mit dem großhandel wird aber die planung noch mehr unter den tisch fallen, dort wird nur material/gerätschaft verkauft... dort gibts keine schulungen. die gibts nur bei den wenigen herstellern die direkt mit partnerinstallateuren zusammenarbeiten. ich denke die installateursbranche wird sich teilen. in die lohnschrauber für den großhandel, und in den kompetenten, spezialisierten und planenden installateur, bei dem es nicht nur 'macht warm' gibt, sondern auch richtig gute anlagentechnik... hier sehe ich aber auch die baufamilien in der pflicht. wenn ein pkw um 40.000€ gekauft wird werden details studiert bis zum geht nicht mehr. wenn mit dem hausbau die größte lebensinvestition um 400.000€ getätigt wird glaubt man die planung dafür fällt vom himmel. ich kenne genau einen installateur der die eier hat eine planungspauschale auf sein angebot zu setzen. warum ist das so? weil es ein vom großteil der kunden gefördertes qualitätsdumping gibt. derjenige der rechts unten die schönste zahl hat sticht. qualität, planung, kompetenz werden viel zuwenig nachgefragt. ein guter installateur stirbt in schönheit bzw ist gezwungen nach unten zu nivellieren um nicht in der versenkung zu verschwinden... wäre der großteil der baufamilien auf dem niveau dieses forums informiert würden die schwarzen schafe aussterben statt der guten... https://www.alster-logistik.de/preisgesetz ich habe letzte woche in niederösterreich den ersten Tichelmann-workshop FBH FBH [Fußbodenheizung](T) durchgeführt, mit 10 der besten installateure des landes. die initiative dazu kam von ihnen...       | 
||
           
  | 
||
| 
Super Arne,   jetzt wird auch noch die FBH FBH [Fußbodenheizung] optimiert. Ist wirklich nicht einfach als Bauherr und eine raumweise Verlegung macht dir bislang keiner von selbst. Mit der Verlegung wird das toll. 👏 Ach ja, wenn die Verlegung lt. Plan passt, auch die Umsetzung derselben überwachen. Der schönste Plan muss realisiert werden. Schöne Grüße  | 
                
Beitrag schreiben oder Werbung ausblenden?
                
 Einloggen
                
 Kostenlos registrieren [Mehr Infos]
                





