KWL-Auslegung,Planung,..
|
|
||
Du kannst in der Betondecke statt 75 Schläuche auch 75 Rohre verwenden. Verringert die Druckverluste immens. |
||
|
||
|
Guten Morgen, berhan: Was sind diese "Wunder"-Rohre DN75 DI = 70? Bitte stellen Sie ein Bild ode |
||
|
||
|
@VMCDFAU Sind keine "Wunder" Rohre, sonder es ist einfach eine Tatsache das flexible Schläuche eine höhere Wanddicke haben als Rohre. https://www.kontrollierte-wohnraumlüftung.com/wp-content/uploads/2018/02/03_POLO-KWL_de_02_18.pdf https://www.poloplast.com/fileadmin/downloads/downloads_gesamt/hausabflussrohrsysteme_uds/THB_POLO-KAL_XS_01_2018.pdf Ich habe bei mir beispielweise DN90 Rohre (di 84) und flexible DN90 Schläuche (di 76) verbaut um bei einem Volumenstrom von 30 m³/h bei unterschiedlichen Längen gleiche Druckverluste (9 Pa) zu haben, in etwa so wie bei der Fußbodenheizung. |
||
|
|
||
|
||
|
Wie geht das, dass du im OG im Gang von 22 cm auf 15 cm Abhänghöhe kommst? Bei der CombiBox schaut es so aus, als würden die Rohre mittig in der Höhe rauskommen. ich frage deshalb, weil wir das ganz gleiche Problem mit der abgehängten Raumhöhe durch die Spirorohre haben würden, also im EG eigentliche fertige Höhe von 255 cm (wobei ich den Putz noch gar nicht eingerechnet habe, da wir eine Ziegeleinhängedecke haben). |
||
|
||
|
Die CombiBox hat mit Revisionsöffnung noch einen höheren Aufbau. Ich glaube die Werte stammen vom Leitwolf und die passen sicher. Bei den Werten ist aber dann echt glaub ich das möglichste ausgereizt. Habe gerade bei mir die Abhängedecke mit CombiBox nachgemessen und die 22cm passen. Dort wo nur ein Rohr in der Ecke läuft habe ich meistens 20cmx20cm abgehängt. |
||
|
||
|
Werde ich mir auch noch anschauen wie das mit 75 Rohre ausschauen könnte. Hier habe ich hald nur die bedenken, wie ich mit die Rohre durch die Gitterträger der Elementdecke komme... und Schaldämpfer hast du nur vorm Lüftungsverteiler gesetzt? (ist so zumindest bei deinem KWL KWL [Kontrollierte Wohnraumlüftung] Thred zu sehen) Kombibox hat 22cm aufbau, schon mit integrierter Revisionsöffnung + Putzträger. Ab-/Zugänge von der Kombibox sitzen 9cm von UK Decke.. entspricht Rohrmitte.. zu den Raumhöhen: WC OG mit der Kombibox sollte passen mit den 22cm EG: 9cm zu Rohrmitte + 8cm (160er Rohr) + 2cm Rigips.. sollte sich mit 20cm ausgehen OG Gang: 9cm zu Rohrmitte + 6.25 (125er Rohr) + Rigips... wird so um de 18cm werden bei 100er Rohr sollt sich schon so 16cm ausgehen... Ist hald alles sehr ausgereitzt.. evtl. wird es vielleicht eh um de 2-3cm mehr wenn man mehr Luft lassen muss... |
||
|
||
|
Ja, das ist korrekt. Telefonischalldämpfer sollten ab einer gewissen Mindestlänge der Rohre nicht mehr erforderlich sein. Daher wurden (am Bild oben ersichtlich) kurze Schlauchlängen künstlich verlängert. |
||
|
||
interessanter Thread! |
||
|
||
|
Ein paar Inputs von mir: + Die Raumhöhe bei abgehängter Decke im EG betrifft nur Diele, HTR und Speis und ist für diese Räume unproblematisch. + Ich würde abklären, ob die Positionierung der Zuluft für die offene Wohn-Ess-Küche so wie eingezeichnet auch wirklich sinnvoll ist, oder ob diese nicht wesentlich nach "rechts" rücken sollte. + Betreffend OG: Spricht etwas dagegen dieses Geschoß einfach um eine Ziegelreihe höher zu machen? Unter 250cm vollflächige fertige Raumhöhe würde ich nirgends, auch nicht in einer Diele oder einem WC. + Wenn Ihr hauptsächlich nur in den Dielen die Decken abhängt, sollte es wohl kein Problem darstellen, dort auf die BKA BKA [Betonkernaktivierung] zu verzichten. Bei mir wurde die KWL KWL [Kontrollierte Wohnraumlüftung] leider weder gut geplant noch gut umgesetzt. Aus diesen Erfahrungswerten empfehle ich Dir: + Kehre nicht ab von dem Plan, möglichst große Rohrdurchmesser zu verwenden. Alles andere sorgt für höhere Druckverluste und damit auch für eine höhere Betriebslautstärke. + Im Nachhinein hätte ich es besser so ähnlich wie Du gemacht - also in der Diele u. dgl. die Decke abhängen und so die Räume erreichen. Das Einstemmen in Ziegelmauern ist eine erbärmliche Arbeit und bei z. B. einer 12er Innenmauer ziemlich grenzwertig. + Ich hätte mir vorher auch nicht vorstellen können, dass nur teilweise abgehängte Decken etwas gleichschauen können. Mittlerweile habe ich aber immer wieder Fotos gesehen, bei denen ich sagen muss: Optisch überhaupt kein Problem. Um Euch diese Option offen halten zu können, würde ich mir dazu gezielt Fotos suchen bzw. erbitten. |
||
|
||
|
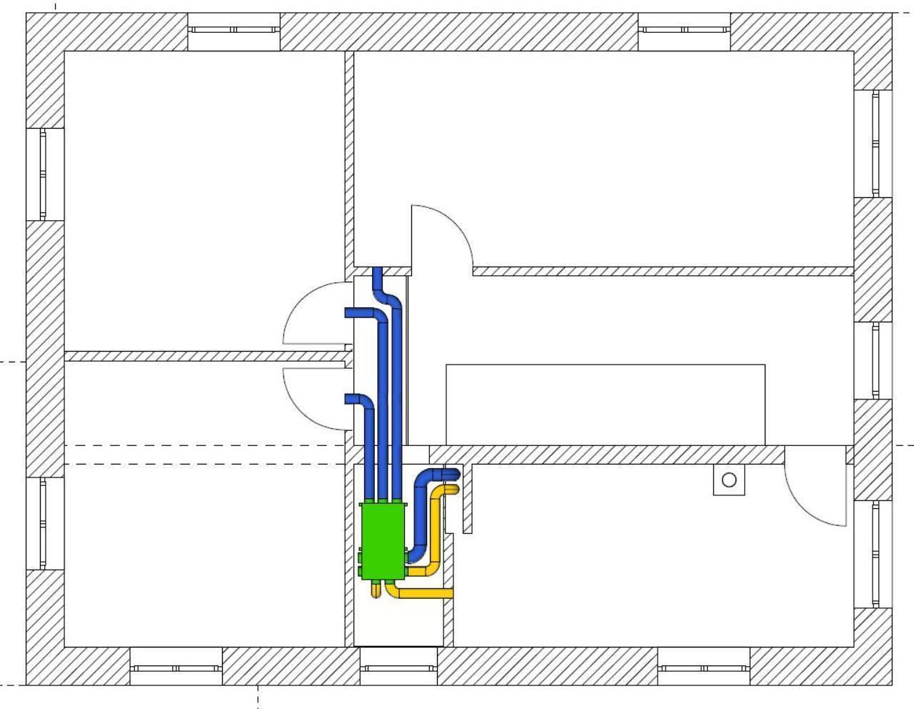
HTR + Speis würde ich glaub ich gar nicht verkleiden Ja, da habe ich auch noch ein wenig bedenken. Aber die ursprüngliche Position wie von leitwolf eingezeichnet finde ich auch nicht ideal, weil es dann genau beim Stiegenaufgang rausbläst Das habe ich mir auch schon überlegt. Grundsätzlich spricht nichts dagegen. Nur die Mehrkosten, die betragen für Ziegel, Innenputz, Fassade ca. um de 1000€ Wie du sagst, das mit den niedriegen Raumhöhen stört mich schon ein wenig. Im WC würde ich es noch OK finden, sonst sollte man die 250cm wenn möglich nicht unterschreiten meiner Meinung nach. Deswegen bin ich gerade "verzweifelt" am überlegen, wie man das am besten Lösen könnte. Was ich mir auch schon überlegt habe: im EG ungefähr so wie ich es dargestellt habe und das OG in die Betondecke mit den 75er Rohren. DI=70 Im WC OG dann die Verteiler setzen mit herabgesetzter Rigips. Nur sollte man dann im Schlafzimmer schon 3 Zuleitungen, jedes Zimmer 2 ZUL, Bad 3 ABL, WC 2 ABL vorsehen oder? Wird hald dann in der Betondecke ziemlich viel ... |
||
|
||
|
Ich behaupte mal mit einer 12er Mauer geht das gar nicht, 25er Mauer ist aber kein Problem (große Flex mit Absaugung vorausgesetzt). Würde versuchen p. Rohr (di 70) <= 25 m³/h zu bleiben. |
||
|
||
|
@heinzi00, @SaubererM: vielen Dank wegen der Infos zu den Höhenangaben! Ich will auch nicht von den 125 Rohren abweichen, und Leitwolf hat mir damals im Angebot eingezeichnet, wie schön zentral und mit wenig Rohrmetern im EG die Luftverteilung umgesetzt werden könnte. Aber wie schon erwähnt haben wir fertige Raumhöhe von 255cm, bzw. mit Deckenputz vmtl. Sogar nur mehr 253cm. Und dann nochmal 22cm abhängen kommen wir auf 231cm im Gang, bzw auch im Übergang von Esszimmer mit sehr großer Öffnung zum Gang/Stiege. Mittlerweile komme ich selber auf keine wirklich bessere Lösung, außer etwas zu optimieren, aber vielleicht ist es gar nicht schlimm mit den 230... Wir haben halt das EG als Bestand mit 270cm Rohbauhöhe, da habe ich den FB- Aufbau schon auf 15cm reduziert. Wenn ich könnte, würde ich sofort die Raumhöhe noch erhöhen. |
||
|
||
|
ja das sowieso. hast du die 25m3/h pro di 70 rohr ausgereizt? ergibt 1,8m/s wäre da zB im schlafzimmer bei ZUL 50 nicht 3 rohre besser wegen Gescheindigkeit/Geräusch? Funktioniert hier auch eine Einregelung des Volumenstroms bei den Auslässen? |
||
|
||
|
Ja die ganze Thematik ist gar nicht so einfach wie man glaubt Und hast du jetzt schon eine Lösung bzw. wie weit bist du mit deinem Bau? Also 230 Raumhöhe ist hald wie oben schon geschrieben schon recht niedrig .. |
||
|
||
|
Wenn du diese unterbringst dann schon, nur wäre ich BM dann wäre mir 1xDN90 lieber wie 2xDN75 in der Betondecke (Notfall mit einer 2 cm dickeren Decke). Ich habe bei mir auch deswegen auf DN90 gesetzt, da DN75 im Fußbodenaufbau aufgrund der dann benötigten Menge der Leitungen nicht möglich gewesen wäre. Bei mir sind aber auch alle Leitungen für EG und OG im Fußbodenaufbau des OG und das wird dann schon eng. |
||
|
||
|
Nein, habe leider noch keine endgültige Lösung oder Entscheidung. Ich habe mir auch schon überlegt, nicht unter der Decke, sondern an der Wand zu verbauen und somit keinen Höhenverlust sondern im Esszimmer eine etwas dickere Wand zu haben. Oder so wie du die Combibox nicht im Gang, sondern im TR oder WC. Aber ich muss irgendwann den Gang kreuzen, und dann muss ich sowieso abhängen. Ist halt nur die Frage, wo und wieviel ich da abhängen möchte bzw. muss. Meine Frau war anfangs auch nicht begeistert (milde gesagt ) von den 230 im Gang. Aber mittlerweile bauen wir schon seit ende Oktober 2018 und wir haben gerade mal die Wasserinstallation, FBh Verteiler, RGK, Fenster drinnen. Noch keine E-Installation bzw. putz. Also jetzt ist sie schon froh, wenns weitergeht, quasi egal wie, auch mit 230 im Gang. Hier unsere planung lt. Angebot: der Plan stimmt nicht mehr ganz. So haben wir u.a. das Fenster im Raum mit dem KWL KWL [Kontrollierte Wohnraumlüftung] Gerät verkleinert, so wie von @leitwolf damals empfohlen. Und Die Wand links neben dem Kamin auf 220 cm Breite gelassen. |
||
|
||
|
@SunValley Was ist wenn du in den Raum mit dem KWL KWL [Kontrollierte Wohnraumlüftung] Gerät eine CombiBox als Sichtinstallation hängst und dann mit den Rohren in den Ecken läufst und dann nur das Rohr verkleidest? Das ist jetzt nur mal ein grober Entwurf und keine Berücksichtigung von irgendwelchen Volumenströmen, da ist @Leitwolf dein Mann. Ich denke @leitwolf hat da sicher gute Idee. |
||
|
||
|
Bei allen Horizontalverteilungen von Luftleitungen verliert man an Höhe. Bei "Spaghetti-Systemen egal ob flexibel oder starr, müssen im Regelfall die Deckenhöhen oder Fußbodenaufbauten erhöht werden, um auch Platz für Kreuzungen mit anderen Haustechnikleitungen zu schaffen. Dadurch verlieren alle Räume an Höhe. Bei Luftverteilung im Gang können die Fußbodenaufbauten und Deckenhöhen auf das notwendige Minimum reduziert werden, d. h. Raumhöhen in den Aufenthaltsräumen bleiben erhalten. Die Einschränkungen in der Raumhöhe im Gang, Abstellräumen, WCs oder sonstigen kleineren bzw. schmäleren Nicht-Aufenthaltsräumen sorgen immer wieder für Diskussion. In der Praxis hatte ich jedoch noch nie eine Rückmeldung bei Inbetriebnahmen, wo die Nutzer dies nachträglich bereut hätten. Meist sind diese sogar froh darüber, da die abgehängte Decke im Gang die Möglichkeit bietet, nachträglich noch Ergänzungen an der E-Installation oder Beleuchtung vorzunehmen. Wer benötigt wirklich mindestens 2,60 in einem schmalen Gang oder WC? Das wirkt auf mich, obwohl ich 1,92m groß bin, wie ein Schacht oder eine Schlucht. In einem größeren Raum sind aber bereits 2,55 grenzwertig. Man muss also meiner Meinung nach immer die Raumproportionen bei der Wirkung der Raumhöhe beachten. Vielleicht können hier andere Nutzer etwas dazu sagen, wie ihre Erfahrungen mit Abhängungen sind und welche Raumhöhen sie im Verhältnis zu den Raumabmessungen als angenehm bzw. noch akzeptabel empfinden. In bestehenden Gebäuden sind manchmal auch lichte Raumhöhen um 2,40 üblich. Da sind Abhängungen natürlich nicht mehr machbar. Im Neubau sind meiner Beobachtung nach lichte Raumhöhen ohne Abhängung von 2,55 bis 2,75 üblich. Im konkreten Fall sind 2,30 sicherlich grenzwertig. Eine Erhöhung der Raumhöhe um 10 cm würde alle Räume aufwerten und 1.000,- ist es meiner Meinung nach auf alle Fälle wert. Vor allem, wenn man bedenkt, dass man als Alternative ein Verteilsystem mit deutlich kleineren Querschnitten einsetzen müsste und dann mit Kompromissen leben muss.
|
||
|
||
|
Gerne Wolfgang, habs hier eh schon öfters geschrieben. Haben eine klassische leitwolf KWL KWL [Kontrollierte Wohnraumlüftung] mit Sternverteilung über den Gang bzw. Nebenräume. * Haben durchgängig ~2,80 RH mit 2,20 Türen und in den abgehängten Bereichen ~2,60. Das Raumgefühl ist schon sensationell, fällt auch jedem Besuch gleich positiv auf. * Teilabhängung im Koch/Essbereich genau über der Küche+Insel, damit kann man auch Akzente setzen, mit Einbauspots arbeiten, den Bereich etwas abgrenzen. * Im Technik- und Wirtschaftsraum haben wir eine Sichtinstallation, die überhaupt nicht stört. * Im Gang ist durchgehend abgehängt. Gang mit 2,60 ist wie angesprochen sogar wohnlicher. * In einem Kinderzimmer läuft ein Rohr durch, das haben wir dezent verkleidet, sieht man nicht mal mehr. Nicht alles, wo man am Anfang sagt "gefällt mir gar nicht" ist nach einer gewissen Zeit noch Thema. Funktion stelle ich da schon höher als Design, weil die bleibt darüber hinaus noch.
|
||
|
||
|
Bin auch für Pro Abhängung. Habe eine Raumhöhe von 2,71 und im abgehängten Bereich bin ich bei 2,50 ich muss sagen es fällt nicht auf, im Gegenteil es wirkt vom Raumgefühl angenehmer. Hatte in meiner Wohnung auch bereits eine Abhängedecke wegen der Lüftungsanlage und mir ist das erst später aufgefallen wo überall die Decke abgehängt war. Aber 2,30 ist halt echt nicht viel, deshalb meine Idee nur am Rand abzuhängen wenn das lüftungstechnisch möglich ist. Hier noch ein paar Bilder: leider schaffe ich es nicht die Bilder richtig zu drehen
|
||
|
||
|
Guten Abend, und Sie finden es schön? Ich persönlich glaube nicht! Bei der Renovierung ist "OK" akzeptabel, bei einem Neubau überhaupt nicht. |
Dieser Thread wurde geschlossen, es sind keine weiteren Antworten möglich.
















