Energieausweis, bitte um Hilfe bei der richtigen Luftwärmepumpe
|
|
||
|
schau mal weiter da gibt es noch weitere Angaben bezüglich Heizlast, usw... |
||
|
||
|
auch wenn´s nicht zu deiner Frage passt - bist du sicher dass du KEINE Wohnraumlüftung willst? wird ja ne Riesenhütte - da musst du schon ganz schön Meter machen um da mehrmals täglich durchzulüften |
||
|
||
|
sehr kompakt, sehr gut gedämmt. kwl wäre da natürlich der hit und würde hwb um 25-50% senken. komfort unheimlich erhöhen. ansprüche an die wp drastisch senken. |
||
|
|
||
|
||
|
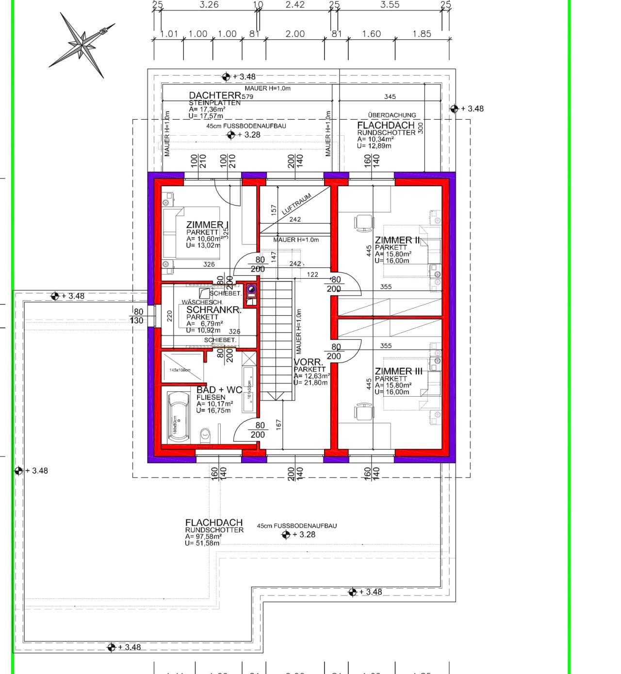
soo kompakt is das ja gar nicht. hab mit Haus in L-Form was ja nicht optimal ist identischen AV-Wert und charakteristische Länge. Plan vom Haus würd mich aber interessiern falls du ihn reinstelln willst |
||
|
||
|
meinst du das sarkastisch, oder sinken deine Ansprüche? @Michi, ich finde die Heizlast nicht, kann aber an meiner Brille liegen, ist alles so klein geschrieben. Du solltest auch schreiben, welches Gerät genau dir angeboten wurde, nicht nur die Firma. |
||
|
||
|
ich habe nur den mittleren u-wert angeschaut -> 0,18 .. sieht man hier selten
charakteristische länge 1,67 erschien mir auch gut. hwb ohne kwl von 29 fand ich auch ok. mit kwl wahrscheinlich 20 und wäre nicht so weit von mir entfernt. ja, ist eine riesige hütte.. |
||
|
||
|
wir haben heuer im frühling eine AE lwpk 8 bekommen. preis ist top, aber mehr als estrich ausheizen und heuer ein paar tage heizen hab ich halt auch noch nicht gemacht damit |
||
|
||
|
bin an einem auge blind, sorry. ist 0,19 |
||
|
||
|
Hallo zusammen, wie gewünscht die Pläne. KWL wollten wir nicht, Luftwärmepumpe wurde mir mit 11kw angeboten, Daikin leider ohne genauere Bezeichnung jedoch mit 260 lt. Speicher, was ich für zu wenig halte, da 4 Personen. AE war eine LWP LWP [Luftwärmepumpe] 14 HT Eco, also 14 kW mit 400 lt Speicher extra. Meiner Frage an euch ist ob ihr mir konkrete Tipps für eine gute Luftwärmepumpe machen könnt, bzw. Erfahrungen. Die Daikin würde mehr als das Doppelte von der AE kosten. Wir wissen auch das die Ausrichtung des Hauses nicht optimal ist, geht leider von der Lage nicht anders, bzw. der Bauflucht. Habt ihr vlt. andere Vorschläge für eine wirklich gute Luftwärmepumpe? Stefan86, wie bist du vom Lärmpegel bisher zufrieden?
|
||
|
||
|
Ich würde mir die Pumpen von Weider, Ochsner und Heliotherm anschauen. Sind die leisesten am Markt. Die Drehzahl bei der Weider kann man übrigens frei regulieren wie ich jetzt rausgefundne habe, dh wenn nötig schafft die auch 40 Db in 1 M Abstand. |
||
|
||
|
ist deine heizlast so hoch. mir wollten sie auch die 11er andrehen.
leider kenn ich keine anderen lwp zum vergleich, ich empfinde sie jetzt nicht störend. auf volllast hörst du halt den luftdurchsatz |
||
|
||
|
Gebäudeheizlast P_tot hab ich um die 8kw. Anderen Wert find ich leider nicht.
Vlt. liegt es daran, dass ich unserem Planer gesagt habe, dass ich Keller und Garage auch mitheizen will. Natürlich nicht mit den Temperaturen wie in den Wohnräumen. |
||
|
||
|
da ist ein großer unterschied welche temperaturen man vereinbart...
und wenn der keller beheizt werden soll gehört er natürlich entsprechend gedämmt, siehe brinks wohnkeller... https://www.energiesparhaus.at/forum/39901 warum wilst du die garage heizen? garagentore sind sehr undicht, das ist eine große verschwendung und einem auto tut eine beheizte garage gar nicht gut... erdwärme geht nicht? grundstück zu klein? was hast du für einen boden in 1,5-2m tiefe? |
||
|
||
|
ergänze um knv und idm... kann irgendwie nicht funktionieren bei einer on/off. die saugt ja immer mit 100% und wenn du ihr die quelle drosselst geht sie auf niederdruckstörung. der silent-mode bei on/off geräten reduziert die drehzahl nur ein kleines stück aus dem optimalen fenster zu lasten der effizienz. aber viel geht da naturgemäß nicht... hast du einen link zur bedien- u installationsanleitung? |
||
|
||
|
vorsicht: beginn der üblichen gehirnwäsche ! |
||
|
||
|
begin der aufklärung |
||
|
||
|
Hat unser Insti mir letztens gesagt...wir haben es nicht eingestellt, ist bei uns nicht nötig, die ist sowieso quasi unhörbar. Kann eh sein, daß er einen quasi Silent Mode meint. Allzu viel müsste es bei der Weider auch nicht bringen, die hat auch im Maximalbetrieb nicht mehr als 50 dB. Daß die komplette Bedienungsanleitung im Netz steht wäre mir auch nicht bekannt. KNV ? Was ich bisher so im Forum gelesen habe ist KNV nicht so speziell leise ? |
||
|
||
|
die austria email moduliert, da gäbe es auch ein 11 kw modell wenn die 8er zu knapp sein sollte |
||
|
||
sag mal bist du's gudrun oder dein lebensgefährte? kärnten, baunebengewerbe, innenaufgestellte idm-lwp UND der schreibstil sind zuviel des zufalls... |
||
|
||
|
die haben sehr viele produktserien - für den fth-bereich auch kleine günstige... die beiden topserien, split aus A und monoblock aus S gehören zu den allerleisesten am markt. einfach mal den schallschutzrechner anwerfen. haben auch beide naturgemäß riesige außenteile und es gibt einen tischverdampfer... weider, ochsner, knv, idm allesamt mit 53 oder 54 dba schalleistung die leisesten geräte am markt. heliotherm ist derzeit nicht gelistet, wahrscheinlich ist die neue serie gerade in prüfung. knv hat auch seine greenline überarbeitet (luftführung, abschirmung) und kommt mit 3dba geringerem schallpegel... |
||
|
||
|
@dyarne
nicht durchblick/gudrun/lebensgefährte/kärnten ??????????? |
Dieser Thread wurde geschlossen, es sind keine weiteren Antworten möglich.





