Spots im Wohnzimmer - Seite 2
|
|
||
|
Wir haben eine recht ähnliche Küchenform und sind mit folgendem Licht super zufrieden: - LED-Band auf der Unterseite der Oberschränkte eingefräst -> Bestes Licht im Haus - 3 Stabhängelampen über der Insel (wobei wir hier eine Raumhöhe von 3m+ haben) Mit etwas Hausverstand und einem guten Elektriker kommt man meiner Meinung nach auch weit, selbst ohne Profi-Lichtplanung und 15k-Budget. Indirektes Licht in Form von LED-Bänder wird mMnmassiv unterschätzt, wir haben im Wohnzimmer 2Stk. dieser Bänder, das ist so ein angenehmes Licht dass unsere mühsam ausgesuchte Deckenlampe nur selten zum Einsatz kommt. Bzgl. Spots: Dort und da haben sie definitiv Berechtigung. Alles würde ich damit aber auch nicht zupflastern. Wenn dann würde ich aber gleich Hallux-Dosen in die Decke einlassen. Bedenke dass du damit im Vgl. zu Aufputz-Spots auch Raumhöhe gewinnst von der die LEDs abstrahlen |
||
|
||
|
Lichtplanung kann ich auch nur empfehlen, aber wie so oft muss man auf schwarze Schafe aufpassen. Wir haben im Raum Mödling nur "Verkäufer" gefunden. Die hätten zwar eine 3D-Ansicht erstellt aber so richtig hatte ich bei keinem ein gutes Gefühl (CRI, dimmbar, Abstände). Glaube dazu aber, dass ich ein nicht einfacher Kunde bin 😉 Bei einer Architektin für Aussenanlagen konnte ich mir aber ein gutes Program abschauen: Dialux (https://www.dial.de/en/dialux/) Ist im Prinzip ein 3D-Zeichenprogram mit denen man diverse Leuchtmittel simulieren kann. Es gibt auch eine rießige Library mit allmöglichen Lampenformen, sowie kann man die Lichtwerte (Farbe, CRI, Abstrahlwinkel) manuell einstellen. Szenen, Tag, Nacht, bewölkt, innen, aussen sogar Möbel können abgelichtet werden. Für ein gratis Programm war ich sehr überrascht. Von der Bedienung auch recht intuitiv. Wenn man mit CAD gezeichnet hat ist es natürlich einfacher. |
||
|
||
|
Ich glaub das grundsätzlich auch. 15k€ sind vielleicht wirklich etwas viel, aber ich wollte nur die Perspektive von einem professionellen Lichtplaner auch ein bissl zeigen. Der kann nicht einen Tag Arbeit investieren und am Ende für 4000€ Lampen verkaufen, das geht sich einfach nicht aus. Wenn man, so wie MissT schreibt, für 500€ oder so ein Konzept für Platzierung, Lampenart und benötigte Leuchtkraft und Abstrahlwinkel bekommt, ist es doch perfekt... dann hat man ja eigentlich alles was man braucht. Aber wie auch angemerkt wurde, fertiges Lichtkonzept ist das dann noch keines, da würde ich eben eher mit 1000€ aufwärts rechnen. |
||
|
||
|
Hallo fresh, hier gibt es dazu Erfahrungen und Preise: Spots im Wohnzimmer |
||
|
||
|
Das sehe ich nicht so. Zum einen gehen Halox-Dosen ziemlich ins Geld, vor allem, wenn sie schon ab Werk in Filigrandeckenelementen gesetzt werden müssen. Und von 2-3 cm Höhengewinn merkst Du beim Abstrahlverhalten nichts. Es gibt mittlerweile so flache, unscheinbare Aufputzspots, dass ich jetzt im nachhinein so manchen Einbauspot nicht mehr machen würde und durch solche ersetzen würde. Ja. |
||
|
||
|
Hi MissT und kannst du uns einen Produkttipp bzw. Link / Produktnamen zu einer deiner ultraflachen Sports geben, damit wir etwas recherchieren können. Vielen Dank LG |
||
|
||
|
@Filigrandecke: schön von unten bohren damit es nicht einen Kegel rausstanzt beim bohren:) Glaub bei den flachen Downlights sind sowas gemeint: https://www.lampenwelt.at/weisse-eckige-led-deckenlampe-solvie.html |
||
|
||
|
Hi wir haben uns die Halox auch angesehen aber der Preis hat uns dann ein wenig abgeschreckt. WIr planen die Spots (mit 110 bis 120°, Also keine direkten spots die nur einen kleinen Teil beleuchten) eh nur im WOhnzimmer und im Bad. Die Spots die wir planen sind ca 12cm hoch bei einer Raumhöhe von 2,57m. Bekannte haben das auch so gelöst und das gehen wir uns heute nochmals ansehen. Über den Esstisch werden wir vermutlich doch keinen Spot machen sondern eine Hängeleuchte. Eine Idee wäre noch zum Beispiel beim Sofa also beim Wohnzimmerbereich ein LedPanel statt den Spots zu installieren. Wäre das dann mehr in richtung einer indirekten Beleuchtung? Mich würde da mal interesieren wir ihr das alle gemacht habt? GIbt es irgendwo Bilder wie man sich das vostellen kann? mfg Harald |
||
|
||
Hier ein Foto von unserer Situation während des Aufbaues: fertig: Wir haben voriges Jahr unser WZ neu gemacht und hinter dem TV indirekt beleuchtet. Deckenlampe und Stehleuchte runden ein sehr angenehmes Beleuchtungskonzept stimmig ab.
|
||
|
||
|
@speeeedcat Sehr schön Alex, wirklich alles Licht auf der Couch wenn man es braucht und gesamt auch was Einrichtung und Farbgestaltung betrifft irrsinnig stimmig. @fresh Wir haben im Küchenbereich (ca. 9 m²) insgesamt 9 Spots, 8 ganz normale aus dem Baumarkt mit tauschbaren LED-Leuchtmitteln, nur mittig einen minimal größeren, sehr hellen mit fix verbauten LEDs (auch aus dem Baumarkt), Dosen haben wir keine genommen sondern uns mit Styrodur-Resten Model (nach den besorgten Spots) geschnitzt und die vor dem Betonieren der Decke ausgemessen, auf die Dokaplatten geklebt und genagelt und die Leerverrohrung angebracht. Das Entfernen der Styrodurmodel war ein wenig fitzelig, aber nicht der Rede wert. Edit: Entschuldigung, die Filigrandecke habe ich übersehen. Damit ist das bei euch leider nicht möglich. Allerdings so um so mehr die Frage ob über dem Esstisch und im Wohnbereich eine Beleuchtung mit Lampen nicht stimmungsvoller und kostengünstiger realisiert werden könnte. Im Wohnbereich haben wir mittig einen alten 6-flammigen Messingluster mit LED-Leuchtmitteln bestückt. Dann noch 2 indirekte Leuchten an der Wand und 2 an der Decke. Beim Fernsehen sind die indirekten Leuchten an, beim Spielen, Wäschemachen und Lesen haben wir den Messingluster aufgedreht. Passt für uns. Im Wohnbereich solltet ihr euch anschauen ob euch die Beleuchtung mit Spots gefällt. Uns hätten dort auch dimmbare nicht glücklich gemacht. In der Küche mag ich keine Lampen wegen des größeren Putzaufwandes (Dampf, Fett etc. in Kombination mit Staub). Wir haben viel geschaut was wir machen werden und viele Leuchten und Spots im Rohbau angeschlossen und geschaut wo wir sie genau wollen und wie das aussieht, dem entsprechend die Beleuchtung und Verrohrung geplant. |
||
|
||
|
Hallo Shan, vielen Dank, das freut mich, wenn es dir gefällt! lg |
||
|
||
|
Die Lampe beim Sofa taugt mir auch voll, könnte ich mir sehr gut vorstellen. Ist das eine Stehlampe oder an der Wand montiert? |
||
|
||
|
Wir haben im Wohnzimmer eine "normale" Deckenlampe, also keine Spots. Über der Couch 5 dimmbare Spots mit schmalem Abstahlwinkel. Wurde vom Lichtplaner so vorgesehen und gefällt mir gut - zum TV schaun kann man diese ganz runterdimmen (falls mans nicht abdrehen möchte), zum Lesen auf der Couch ganz hell stellen, spart eine separate Leselampe. Hab jetzt leider kein Bild dazu. |
||
|
||
|
Das ist ne dimmbare Stehlampe. |
||
|
||
|
Hi Also wir haben uns jetzt die Spotlösung bei bekannten angesene. Die haben es ähnlich gemacht mit Leuchtmittel mit einen hohen Abstrahlwinkel (>110°). Wir haben nun aber doch im Wohnzimmer eine normale Deckenleuchte und auch über den Esstisch eine Hängeleuchte geplant. Vielleicht habt ihr noch Ratschläge für das aktuelle Design. |
||
|
||
|
Ich finde es sehr gut, die Beleuchtung wirklich selektiv zu machen. ZB Gang, Küche Spots Stiegenhaus Wandleuchten Kinderzimmer/Wohnzimmer Deckenleuchten Schreibtisch was passendes für den Arbeitsplatz Esstisch eine Hängeleuchte Sofa eine schöne Stehlampe Dann ist man eh schon sehr gut aufgestellt:) |
||
|
||
|
Ja, halbier die Anzahl. Spots über der Couch blenden oft wenn man rumlümmelt, könnte man als eigenen Kreis steuern. L2 würde ich vertikal auf 3 reduzieren, L1 auf 2. Mit hohem Abstrahlwinkel reicht das locker aus. Hängelampe über dem Esstisch würde ich unbedingt eine empfehlen die auch nach oben leuchtet dann drückt der Raum nicht so, wir haben z.B. die After8 von MoltoLuce. Lässt den Raum nochmal größer wirken als nur Spots von oben. Ebenso fürs Wohnzimmer eine die zumindest auch zur Seite etwas Licht auslässt... kann ja trotzdem eine Deckenlampe sein. |
||
|
||
|
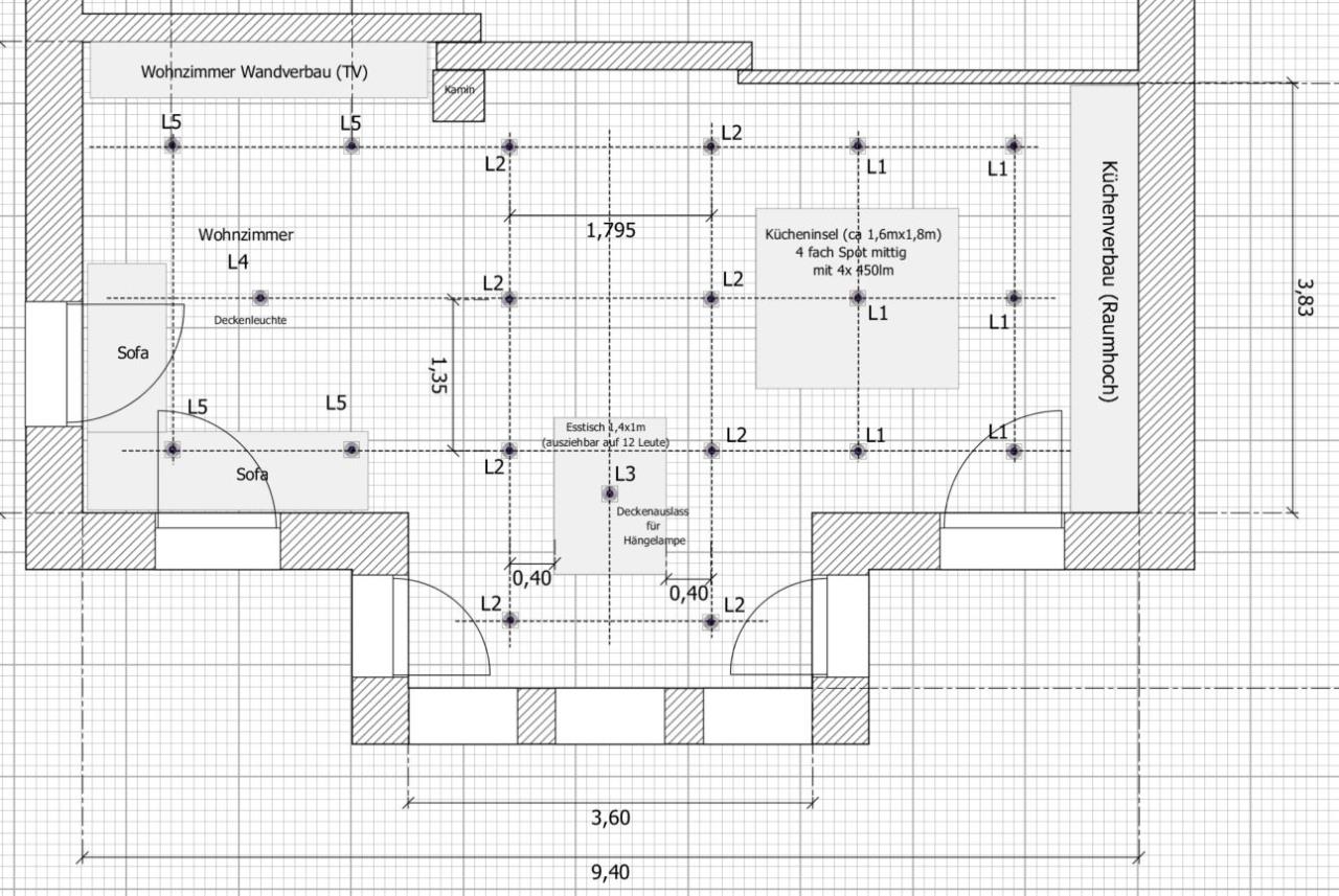
@derLandmann: Danke für deine Tipps. Beim Wohnzimmer habe ich auch schon überlegt ob die Deckenleuchte L4 nicht mehr richtung TV Wand geht da die Leuchte eh Dimmbar werden soll und dafür die zwei Spots beim TV weglasse (im otfall kann die TV Wand mit LED Stripes helfen). Und dafür noch ein L5 Spot dazu beim anderne Sofa Teil. In der Küche kann man eigentlich nur die dreierreihe bei der Küchenwand auf 2 reduzieren (also die mittlere weg) aber dann habe ich angst das es dort zu dunkel wird aber ansich ist dort eh ein LIcht bei bei einer kleinen Arbeitsplatte (in der Küchenwand hinter der Insel). Im Essbereich könnte dann der Bereich bei den Fenstern recht dunkel werden oder? Vorallem will ich sie nicht total anders setzen als die anderen. |
||
|
||
|
Mach lieber ein richtig gutes Panel über die Insel. Die ganzen Spots rund um die Insel sind meiner Meinung nach unnötig bis kontraproduktiv. Warum so stur und nicht lieber einfach einen Profi drüberschauen lassen? |
||
|
||
|
Ganz ehrlich? Weil leider in ca 1 Woche die Decke kommt und ich niemanden gefunden habe der so schell drüberschaut. Also ein LED Panel über die Insel ist auch eine gute Idee. Fakt ist das dort ein Auslass hin muss. Warum findest du die Spots runterherum kontraproduktiv? |
||
|
||
|
Weil du dir damit selber Schatten auf der Insel wirfst. 4x450lm könnten reichen, sind für so eine große Insel aber eher knapp glaube ich. Ich hab aber echt keine Expertise... Aber es ist für mich immer noch eine (bissl sinnlose) Spotorgie... Ich persönlich würde fett über der Insel beleuchten, eine schöne Pendelleuchte beim Esstisch, 2-3 breit strahlende Downlights im restlichen Wohnzimmer und 2 Wandlampen beim Sofa zB und noch was indirektes beim Fernseher... |
||
|
||
|
Naja wenn die Insel die Leuchte darüber hat zb 4 x 600 oder 700lm dann sollte der Schatten vom Spot dahinter eher egal sein oder? Ob im Endeffekt über der Insel ein Spot oder eine Hängeleuchte oder ein LED PAnel ist wird sich dann beim EInrichten im September entscheiden aber die Auslässe müssen leider jetzt definiert werden. |
Beitrag schreiben oder Werbung ausblenden?
Einloggen
Kostenlos registrieren [Mehr Infos]






