Klimaanlage Planung
|
|
||
|
Du kannst uns gerne mal eine Anfrage per Email reinsenden dann arbeiten wir Dir gerne ein Angebot aus. Wir verbauen Samsung Wind Free Geräte. Ohne die Aussenhaussituation zu kennen ist die Ferndiagnose so nicht leicht weil das "optische" Übel ist immer die Ausseneinheit die keiner sehen will bzw die Kälteleitungen. Auf die schnelle könnte sich bei Dir ein Monosplitgerät anbieten für die Wohn-Essbereich (Energieeffizienter als ein Multisplit) und ein Multisplitgerät mit 2 Inneneinheiten für Büro/SZ da diese laut deiner Definition nicht so oft/so kontinuierlich bespaßt werden |
||
|
||
|
Verständlich, aber das kommt mir komisch vor. Beschattest du nicht? Was ist mit den Kinderzimmern? Wenn diese tatsächlich benutzt werden, ist dort der Kühlbedarf eigentlich am höchsten. Die Kids nutzen die KZ in der Regel am längsten und verbringen die meiste Zeit drinnen. Zusätzlich haben sie dort noch elektr. Geräte (zb. Computer, Bildschirm, Fernseher usw.) die zusätzlich zur Körperwärme Wärme produzieren. Ausserdem sind deine lt. Plan auch nicht allzu groß. |
||
|
||
|
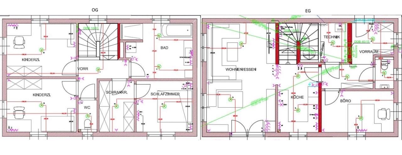
Hmm das stimmt allerdings. Ein stärkeres Gerät am Gang im OG das dafür alle Räume (im OG) abdeckt (bei offenen Türen) wäre das eine Option? Macht das Sinn? Eventuell reicht ja auch ein Monosplit Gerät fürs ganze Haus um diese Spitzen zu kühlen in Kombi mit der Fußboden Kühlung. Aber bin unsicher. Will nicht jetzt eine Klimaanlage anschaffen und dann am Ende merk ich das es nicht reicht. Oder eventuell doch ein Multisplit wo ich ein Innengerät ins Wohnzimmer hänge und das andere im Gang im OG. Dann sollte außer das Büro doch alles abgedeckt sein oder? ---- Doch ich beschattet schon aber in Kombi mit Geräten heizt sich das Haus auf wenn es draußen so heiß ist um nicht mehr gut Lüften zu können. --------- Alternativ hätte ich mir dieses Kühlkonzept gedacht wenn ich alle Räume kühlen möchte. Das wäre wsl die Wahl mit den wenigsten Kabelkanälen. (Bei den Kinderzimmern ist die Frage ob ich den einen Kanal lieber draußen habe oder drinnen, hier ist es mal mit draußen eingezeichnet). Bzw eigentlich wäre es cleverer wenn die Klima im Wohnzimmer auf der linken Seite ist. Weil dann kann man an der Außenwand einfach gerade runter und fertig. |
||
|
|
||
|
||
|
Das mit einem Gerät und Türen offen ist eine Alternative aber trotzdem mMn ein fader Kompromiss. Ja es funktioniert bei einigen in der Anwendung aber Türen baut man um diese gern vor Lärm oder Blicken (Kinder werden älter) zu schützen. Kinder oder Eltern wollen mal Ruhe haben Wenn Du schon ein Projekt Klima planst dann dann eher richtig und flexibel dass jetzt oder in ein paar Jahren jeder für sich selbst entscheiden kann wie warm/kalt er es haben will Mit den Samsung Windfree Geräten drückst du die kalte Luft zwar gut in den Räumen und flutests diese kühl aber es ist auch keine Magie wo du mit einem Gerät das ganze Haus individuell bekommst. Bodenkühlung ist "nett" mMn , drückt die Grundwärme etwas aber bei richtigen heissen Tagen , schwülen Nächten will ich nicht nur die Kühle SOFORT sondern auch die feuchte, stehende Luft rausbringen. |
||
|
||
|
Als preisliche Wasserstandsmeldung: Daikin 1x Monosplit 7,1kW Aussen + 1x Perfera 7,1kW Innen plus Daikin 1x Multisplit 6,8kW Aussen + 3x Perfera 2,0kW Innen inkl. Montage (Überputzkanäle) u. Mwst 12k € geradeaus fix und fertig, minus HW Bonus = 11.460 € Hab mir vom Elektriker zu den 2 AG noch je eine eigene 2,5mm² Leitung mit je C16 abgesichert ziehen lassen 350 €. Das "Dazuhängen" auf bestehende Stromkreise wollte ich nicht. Ich hab mir vergleichbare Toshiba, LG, Gree, Mitsubishi Heavy Industries und Samsung Anlagen angesehen und anbieten lassen. Die Preisspanne lag im April 2025 bei 9,5k bis 13,4k . |
||
|
||
|
Danke für die Info. Gut zu wissen womit ich so rechnen muss |
||
|
||
|
Preislicher Vergleich (01/2025): Mitsubishi Heavy Industries 1*AG 3*IG 2kw+2kw+2.5kw 6000 Euro, alles Aufputz Region südliches NÖ |
||
|
||
|
Am anderen Ende der Skala: LG 3Fach Multisplut, 3 Innengeräte zu je 2.5kW, Außengerät mit 7kW: online 2200€. Leitungen etc waren ca 350€. Kältetechniker kommt nur noch die Leitungen anschließen und befüllen. Also sub 3000€. Wenn ich jetzt noch ein fettes Monosplit dazurechne, dann wäre ich mit überschaubarer Eigenleistung bei 5000€ für das genannte. Klar, sind keine Daikin Geräte sondern halt "nur" LG. Arbeitsaufwand für mich sind ca 6-8 Stunden gewesen am Ende. Ich hab noch eine 16A Sicherung in Reserve im Sicherungskasten, das bedeutet hier gab es keine weiteren Kosten mehr. Nur als Anmerkung und zur Einordnung... Meine Schwester hat für eine Monosplit und ein Multisplit mit 2 Innengeräten ca 5300€ gezahlt ohne Eigenleistungen. Noch als weitere Zahl, auch mit LG Geräten. |
||
|
||
|
Das ist nicht nur ein fader Kompromiss und hat Nachteile - es funktioniert auch mehr als schlecht. Es fehlt schlicht die "Thermik" für den nötigen Luftaustausch zwischen den Räumen und die Innengeräte werden aus nachvollziehbaren Gründen auch nicht dermaßen überdimensioniert. |
||
|
||
|
Noch eine Stimme gegen Geräte am Gang. Das funktioniert wenn überhaupt nur wenn alle Türen offen sind, und dann mehr schlecht als recht, je weiter weg ein Raum vom Innengerät ist desto schlechter. Dh: spätestens über Nacht oder wenn die Kinder größer werden und geschlossene Türen und Privatspähre wollen, klappt das nicht mehr. Ad Preis: 4er Split von Midea, vor 2 Jahren fixfertig 4000 Euro. Mittlerweile aufgrund Inflation etc würde ich eher ab 5000 rum sagen. Daikin wäre aber natürlich teurer als Midea, LG o.ä. Und übrigens: wir hatten trotz konsequenter Beschattung und Fußbodenkühlung genau die gleiche Situation wie ihr, nämlich 26 Grad und hohe Luftfeuchtigkeit (Standort Wien). Vorallem dann wenn es mehrere Nächte hinereinander nicht unter 24,25 Grad abgekühlt hat. Wir haben die Fußbodenkühlung deaktiviert und nutzen nurmehr die Klima. |
||
|
||
|
handelt es sich um eine luftgekoppelte wp mit aktiver kühlung? die kühlung über wand/boden/deckenflächen funktioniert nämlich passiv sehr gut, weil hier 24/7 permanent gekühlt wird. dann reichen minimale deltas zwischen fläche und raum. hier... liegt es an der aktiven kühlung mit einer on/off LWWP LWWP [Luft-Wasser-Würmepumpe], also einer gepulsten kühlung... |
||
|
||
|
Wir sind ja eh PRO-je Raum, Ganglösung ist eine Notnagellösung auch wenn die Samsung Geräte mit Windfree die Luft gut reindrücken udn du den boden flutest gibts mMn nur eine Lösung. Wann schon einen aktive Kühlung, dann richtig und in jedem Raum der "Sinn" macht benutz wird. Keine kalten Passiv-kühlfüße am Boden, Kühlung auf Knopfdruck, richtige Kühlung, keine Feuchte Luft. Im Auto schätz ich mal haben auch ca 99% einen aktive Kühlung, im Haus wars noch "PÖSE" wird aber seit ca. 2 Jahren auch gefühlt mehr, zumal ich sowieso PV-Überschuss-Strom produziere in einer Zeit wo die Klima zu 99% läuft, ein besseres Perpetuum Mobile gibts nicht 😁 |
||
|
||
|
Für mich ist es nicht unbedingt "pöse", aber hässlich. Sowohl die Inneneinheiten, aber v.a. die Außengeräte. Da plant man ein schönes Haus und dann dübelt man sich so ein hässliches Teil auf die Fassade. Bringt mich zur Frage... 😉 Wie lang dürfen die Leitungen realistisch werden? Und welche Steigung/Höhe ist möglich? |
||
|
||
|
Wie bei jeder Luftwärmepumpe auch. Wir haben unseres auf der Nordseite stehen, sieht man von vorn/aussen nicht, dahinter ist nur der Zaun und dahinter die Luftwärmepumpe vom Nachbarn. Es gibt aber auch so Einhausungen dafür wenn es partout keinen Ort gibt an dem es nicht so stört. @Solarbuddys ja gut, die in Österreich tief verwurzelte Abneigung gegen Kühlung ist mir sowieso unverständlich. Aber wer lieber schwitzt, bittesehr. |
||
|
||
|
auto/haus: ja, wenn du mit denselben u-werten, derselben masse und demselben glasflächenanteil baust ist das ein vergleich ... 😉 kalte passivfüße gibts bei schlechter planung, schlechtem konzept, wie überall. bei einer guten auslegung bsplw flow30 passivkühlung ist der boden nur ein halbes grad kühler als der raum... bei dem komfort, der behaglickeit sticht halt strahlung jeden luftquirl um längen... wir heizen ja auch nicht mehr mit heizlüftern. das schöne ist daß die strahlung die luft nicht braucht um uns wärme zuzuführen oder abzunehmen. hier gibts ja zum glück genug beispiele die zeigen daß das bessere der feind des guten ist... https://www.energiesparhaus.at/forum-pedas-auslegung-der-heiz-und-kuehlflaechen/49105 https://www.energiesparhaus.at/forum-hydraulik-fbh-bka-deckenheizung-kuehlung-und-entfeuchtung/47897
|
||
|
||
|
Ja wie so oft machts die Auslegung da hast sicher Recht, da hast Du auch viiiiiiiel mehr Erfahrung. Ich persönlich bin ein Fliesenkind der alten Generation ohne Fußbodenheizung und mag daskühle/kalte aber es gibt auch Mimosen im Verbund der Solarbuddys die im Winter 28Grad im Haus brauchen damits "warm" ist 😃 und besagte sudern halt über kalte Füße im Sommer (Bestandshaus, kein Neubau) Passivkühlung alles gut, läuft "alles" mit, gut ausgelegt löäufts toll verstanden - eine Klima ist trotzdem eine andere Liga mMn für schwitzige, feuchte, heisse Sonnentage. Wann ich mir anschau was alle grad so produzieren mit den PVs, gestern noch bähh kühler, Woche , heute schon knackig heiss, will ICH halt heute aufn Knopf drücken, mit Gratisstrom die Klima betreiben und meine Kühle sofort geniesen wie im Auto. Reines "Luxusproblem" vielleicht, aber ein einfach lösbares. Wir haben vor kurzem eine Samung Windfree installiert die eben keine Luftverwirbelung im klassichen Sinn hat weil die kalt Luft reingedrückt wird, sinkt und dann die Räume flutet. FunFact. Der Klimabuddys war enttäuscht weil es nicht klassisch bläst 😂 und er genau deswegen eine Klima wollte. Ging dann auch auf Knopfdruck weil das Gerät das normale blasen natürlich auch kann. Nicht jede Lösung muss für jeden passen - gut dass unterschiedliche Lösungen gibt. Aber die Klima kommt mir persönlich nicht mehr ausn Haus 😇 |
||
|
||
|
😂😂😂 1200€ für 2025 heuer (nur Einspeisung gerechnet) bar auf die Kralle ist halt nicht "gratis". 😉 Aber gut, ich verstehe schon was du meinst. @brtl : Baust du nicht neu? Keine BKA BKA [Betonkernaktivierung] bzw. Decken Kühlung (+ Heizung)? Wenn man im Hochsommer in eine ordentlich alte barocke Kirche geht, dann ist das angenehm - weil die gesamten Flächen innen diese angenehmen Temperaturen "abstrahlen". Da sind die Oberflächen nicht bei 26°C, und eine Punktquelle versucht verzweifelt diese runterzukühlen. Rein nur mit passiver BKA BKA [Betonkernaktivierung] Deckenkühlung schaffte ich letzten Sommer in der heißen SO-STMK bei 35°C+ AT max. 24,5°C IT. Nix Kältesee. Jedes Mal, wenn es draußen unerträglich war, war ich unendlich dankbar über den angenehm kühlen Rückzugsort namens Haus - realisiert rein mittels Erd"wärme". Hätte ich auch noch eine ordentlich geplante KWL KWL [Kontrollierte Wohnraumlüftung], dann wäre auch mein Feuchtethema in den schwülen Hitzewellen wohl keines. |
||
|
||
|
@dyarne: Nichts für ungut, aber hier schießt Du mMn schon deutlich übers Ziel hinaus. Dass Erdwärme und insbesondere der RGK RGK [Ringgrabenkollektor] in Kombination mit guter Planung eine super effiziente Heizung ist, ist mittlerweile über jeden Zweifel erhaben. Dass man damit über FBH FBH [Fußbodenheizung] und/oder BKA BKA [Betonkernaktivierung] mit sehr geringem Energieaufwand auch etwas kühlen kann - ja. Aber dass das die beste Lösung zum Kühlen ist, so wie Du das hier propagierst: Das sehe ich nicht so, und das ist hier im Forum auch durch die Erfahrungswerte von einigen Usern dokumentiert: 1. Kühlung ist nur die halbe Miete. Es muss unbedingt auch entfeuchtet werden, sonst wird es noch schwüler, als es ohnehin schon ist, und die von Dir angesprochene Behaglichkeit ist überhaupt nicht gegeben. Für die Entfeuchtung z. B. über die KWL KWL [Kontrollierte Wohnraumlüftung] gibt es meines Wissens noch immer keine guten, erschwinglichen Lösungen, sondern nur DIY-Bastellösungen von "Nerds". 2. Die Sole-Eingangstemperatur steigt im Laufe des Sommers immer weiter an, bis ein Kühlbetrieb nicht mehr möglich ist. 3. Mit einem 23°C warmen Fußboden kannst Du ein Haus mit 26°C oder mehr nicht kühlen, ja nicht einmal die laufenden Wärmeeinträge durch Bewohner, Kochen/Backen, Elektrogeräte etc. egalisieren. Ich hoffe, Du nimmst das nicht persönlich, denn ich schätze Dich, Dein Fachwissen, was Du hier im Forum alles bewegt und geleistet hast und Deine hilfreichen Inputs für Bauherrn mit vermurksten Heizungen, zu denen ich auch gehöre, sehr! Aber dass eine passive Kühlung über Erdwärme bessere Kühl-Ergebnisse als eine Klimaanlage liefert und im Sinne von "das Bessere ist der Feind des Guten" entsprechend zu bevorzugen ist, das ist aus meiner Sicht eindeutig nicht zutreffend.
|
||
|
||
|
Ja, BKA wird jedoch vermutlich nicht kommen (das liebe Budget...). Wir hoffen mit Beschattung und Kühlung über FBH FBH [Fußbodenheizung] das Auslangen zu finden. Entfeutchtung bei der KWL KWL [Kontrollierte Wohnraumlüftung] wird vermutlich noch ein Thema. Wir möchten eventuell aber Leitungen für Klima vorbereiten, falls es irgendwann wirklich nicht mehr ohne geht - aber ich würde (aus genannten Gründen) gerne davon absehen, wenn irgendwie möglich. Ist das so? Ich habe gehofft, dass es mittlerweiles schon brauchbare fertige Lösungen gibt. |
||
|
||
|
@MissT: Häuser mit großflächiger Strahlungsheizung oder -kühlung sind Häusern mit Luftheizung oder Luftkühlung grundsätzlich immer bezüglich thermischer Behaglichkeit überlegen. Das sage ich als jemand, der eigentlich sehr positiv gegenüber luftgeführten Systemen eingestellt ist und diese auch in manchen Fällen bevorzugt.
@dyarne kann das vielleicht noch besser untermauern als ich.
Entfeuchtungslösungen gibt es serienmäßig in unseren KWLs auf Wunsch integriert, sind also fern einer Bastellösungen für "Nerds". Die Geräte gibt es schon länger im südeuropäischen Markt. Jetzt finden sie langsam aber unaufhaltsam den Weg in nördlichere Klimazonen. Ein logischer Schritt, da KWLs ideale Systeme für die ganzjährige Feuchteregulation im Haus sind.
@Pedaaa ist Pionier bei der Systementwicklung und Integration der Entfeuchtungshydraulik in Wp-Systeme. Nur dieser Teil ist neu und war in Südeuropa aufgrund der Abwesenheit von erdgekoppelten Systemen noch auszuarbeiten und abzustimmen.
Es geht gar nicht darum ein System gegen das andere auszuspielen, sondern ein stimmiges Gesamtkonzept zu erzielen, das die Anforderungen der Nutzer am besten erfüllen kann. Manchmal empfehle ich daher sogar eine Splitklima zur Kühlung und Entfeuchtung, wenn es dazu passt.
|
||
|
||
|
Muss ich leider wieder etwas einhaken: Mein hitzetechnisch über jeden Zweifel erhabenen Standort (SO-STMK) konnte ich letzten Sommer NUR mit BKA BKA [Betonkernaktivierung] (FBH abgedreht) sämtliche Hitzezähne ziehen. Rein nur mit passiver Kühlung via BKA BKA [Betonkernaktivierung] und RGK RGK [Ringgrabenkollektor] bei minimal 20°C Vorlauf hatte ich im Haus max. 24,5°C, im Schlafzimmer durchwegs 1°C weniger. Und das bei meiner mauen Außenwand, wer sie kennt... 🙄 Und eines kann ich dir versichern: Lieber 23,5°C bei 75% relFeuchte als 26°C bei 60% relFeuchte. Denn der Mensch hat in Wirklichkeit gar kein Feuchte-Sinnesorgan. Nur indirekt merkt man hohe Feuchte bei aktiver Bewegung, d.h. Workouts im Haus sind dann vielleicht nicht sooo prickelnd, aber im Haus ruht man doch eher, und es war letzten Sommer ein gern genutzter Rückzugsort von der Hitze draußen. Ich kann somit Argumenten wie überhaupt nix abgewinnen. Ich lade auch gerne jeden zum Beweis ein, kannst es ja bei mir im Sommer testen. 😁 Das ging aber auch nur, weil bei mir sehr wohl funktioniert, allerdings mit der Einschränkung BKA BKA [Betonkernaktivierung] statt FBH FBH [Fußbodenheizung]. Deswegen sag ich ja, dass eine BKA BKA [Betonkernaktivierung] im Neubau auch aufgrund des immer notwendigeren Kühlbedarfs essentiell ist, weil es eben so wahnsinnig gut funktioniert. Umgekehrt heizt man im Winter ja auch ein Haus mit 26°C warmen Fußboden, oder? 😉 Ja, die Soletemp stieg bei mir Ende August soweit an, dass ich statt 20°C VL VL [Vorlauf] "nur" mehr 21-22°C zusammenbrachte. So what? Damit konnte ich ja trotzdem noch super kühlen, denn 21°C VL VL [Vorlauf] sind besser als 26°C Deckentemperatur.... Und ich bin mir sicher: Hätte ich zur Not die FBH FBH [Fußbodenheizung] auch noch dazu genommen, hätte ich den extra Kühl-Boost gehabt, denn wie beim Heizen sticht die Fläche (und die Zeit) die Momentaneistung...😉 Nochmal: Ja, beim Kühlen nur mit FBH FBH [Fußbodenheizung] gibt's Einschränkungen. Aber im Neubau ist für mich derzeit passives Kühlen mit BKA BKA [Betonkernaktivierung] bei gleichzeitiger Feuchtekontrolle via KWL KWL [Kontrollierte Wohnraumlüftung] der Goldstandard. |
Beitrag schreiben oder Werbung ausblenden?
Einloggen
Kostenlos registrieren [Mehr Infos]



