« Bauplan & Grundriss  |

Grundriss zur freien Diskussion - Seite 8

Teilen: facebook    whatsapp    email
 1  2 ... 3 ... 6  7  8  9 ... 10 ... 74  75  76 
  •  Selma
15.3.2022 - 28.2.2026
1.505 Antworten | 91 Autoren 1505
63
1568
So, da sind nochmal Grundriss und Ansichten


2022/20220315440589_th.jpg



2022/20220315591473_th.jpg



2022/2022031585439_th.jpg


  •  Selma
  •   Bronze-Award
18.2.2023  (#141)
Sodala, der Frühling ist da 🤣 und wir starten durch...
 hier ein paar Eindrücke von der Baustelle im Moment.
 Fundamentplatte vom Pool wurde schon betoniert und die Steifenfundamente auch. Nächste Woche geht's dann mit der Platte vom Haus weiter und den Poolwänden.
 Langsam sickert es, dass das jetzt wirklich unser Haus wird 🫢


2023/20230218971155_th.jpg


2023/20230218674275_th.jpg


2023/20230218967319_th.jpg


2023/20230218523346_th.jpg



2023/20230218414105_th.jpg


1
  •  MalcolmX
  •   Gold-Award
18.2.2023  (#142)
Sehr schön, alles Gute für euren Bau :)

1
  •  SunValley
18.2.2023  (#143)
Spannendster Thread für mich derzeit, danke fürs teilen! 

1
  •  rocko567
  •   Bronze-Award
19.2.2023  (#144)
coole fotos. was mir auffällt:
habt ihr rundums haus eine kältebrücke wenn die platte auf die schalsteine gelegt wird?
mE hätte man zwischen schalsteinen und kies zumindest xps einlegen können.

1
  •  Selma
  •   Bronze-Award
19.2.2023  (#145)


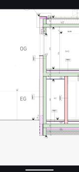
2023/20230219564404_th.png Also du meinst hier, wo ich jetzt gelb gemarkert hab?
 Stimmt natürlich... da geht's sonst über die Stf kalt in die Wände und die Platte... aber sie stehen ja auch im Erdreich , müsste man sie nicht komplett einpacken und das wäre das statisch nicht so toll?
 Dafür kenn ich mich zu wenig aus...

1
  •  MalcolmX
  •   Gold-Award
19.2.2023  (#146)
Manchmal werden sogar die Streifenfundamente auf XPS gestellt.
Innen wäre es statisch völlig egal gewesen. 

So ist es schon eine Wärmebrücke... wird die unterste Reihe Ziegel als Thermofuß gemacht oder ist da was betoniertes dabei?

1
  •  Selma
  •   Bronze-Award
19.2.2023  (#147)
Das ist komplett Stahlbeton

2023/2023021956641_th.png

1
  •  MalcolmX
  •   Gold-Award
19.2.2023  (#148)
Thermisch blöd gelöst aber hilft euch jetzt auch nix mehr.
Der Übergang Fußboden zur. Wand wird thermisch thermisch heikel bezüglich Kondensat fürchte ich...

1
  •  Selma
  •   Bronze-Award
19.2.2023  (#149)
Heikel, weil es von unten kalt kommt?
dort Betonwände kann man nicht iwie nach unten isolieren?

1
  •  Amateur
  •   Bronze-Award
19.2.2023  (#150)
Da wird schon nix sein. Diese Detaillösung ist Standard.

Wichtig ist, dass das Fugendichtblech in die Bodenplatte (zw. Betonwand und Bodenplatte) eingebaut wird.

1
  •  Selma
  •   Bronze-Award
19.2.2023  (#151)
Das hab ich gefunden...
das sieht es für mich nicht so dramatisch aus, aber weiß nicht wie verlässlich die Quelle ist.


2023/20230219414084_th.png


2023/20230219347240_th.png


2023/20230219532666_th.png




1
  •  Amateur
  •   Bronze-Award
19.2.2023  (#152)
Frag mal hier nach, wie das gelöst werden soll. Der Raffstorekasten sollte nicht direkt auf den Beton aufgebracht werden. Besser ist es, wenn ein XPS-Streifen dazwischen steht. Ansonsten hast hier eine Kältebrücke und ganz sicher eine Kondensatfalle. 

2023/20230219956519_th.jpg


1
  •  Amateur
  •   Bronze-Award
19.2.2023  (#153)
Klar ist ein Thermofuß eine Spur besser. Du musst aber bedenken, dass deine Unterkante Sockel (gedämmt) ca. 1m unter GOK ist. Das ist etwas besser (thermisch) als im Regeldetail Nr. 1 (dort sind es nur 80cm).

1
  •  MalcolmX
  •   Gold-Award
19.2.2023  (#154)
Am Ende passt es sicher irgendwie... passt nur nicht zum Highend Anspruch letztlich... (und war auch in keiner Weise despektierlich gemeint, ich wundere mich nur das hier vielleicht 2000€ gespart werden an der Basis wo man es nie nachrüsten kann.

1
  •  Selma
  •   Bronze-Award
19.2.2023  (#155)
Raffstorekästen werden eh mit xps hinterdämmt.
Es wurde in dem Sinn eh nicht gespart, die 2k könnte man locker ein anders einsparen, mit aufgefallen ist es keinem, bzw hat es keiner vorgeschlagen oder hinterfragt (?)

1
  •  MalcolmX
  •   Gold-Award
19.2.2023  (#156)
Seid einfach wachsam dass sich nicht mehr solche Hoppalas einschleichen. Euer Installateur hat seine Sachen im Griff? Das ist auch ein Gewerk das oft noch ein bisschen in der Pendeluhr schläft...

1
  •  Selma
  •   Bronze-Award
19.2.2023  (#157)


2023/2023021935827_th.png
ja, unserem Installateur vertraue ich sehr :) ist auch ein in diesem Forum hoch gelobter 

wachsam ist immer gut. hab halt jetzt nicht alle Ausführungspläne hier hochgeladen. Ist schon toll, welches Feedback man bekommt, will hier aber auch nicht "überstrapazieren"... hätten ja auch einige Profis an der Planung beteiligt gehabt, die auch entsprechend entlohnt wurden/werden 😆

1
  •  MalcolmX
  •   Gold-Award
19.2.2023  (#158)
Die 3cm XPS hinter dem Raffstorenkasten sind halt trotzdem ein Witz.
Schlotterer sagt in den Normalien mindestens 6cm, ich sag 8-10cm sind auch kein Luxus. Das Detail solltet ihr noch komplett überarbeiten und auch sonst noch überall überprüfen ob es noch Maßnahmen braucht...

Die Fensterbank mit der Purenitauflage würde ich mir auch noch in Detail ansehen. So wie es dargestellt ist, ist das Detail nicht praxisnahe.

1
  •  Amateur
  •   Bronze-Award
19.2.2023  (#159)
3cm ist nix....hat vermutlich mit der dünnen Betonwand bzw. nach Abzug der 3cm mit den verbleibenden 17cm des Überlegers zu tun. 

Bei uns waren die Betonüberleger/Fensterstürze auch alle 17cm breit. Allerdings bei einer 25er Ziegelwand. Somit hatten wir 8cm XPS zwischen Raffstorkasten und Wand.

1
  •  Selma
  •   Bronze-Award
19.2.2023  (#160)
Ist schwer möglich, das auf mehr cm zu kommen. Deswegen kommt da auch ein Resolution rein... gleicht nicht komplett aus, aber besser als nix

1
  •  Selma
  •   Bronze-Award
23.2.2023  (#161)
Die Bodenplatte wurde vorgestern Abend betoniert und morgen kommen die Poolwände und das EG in Elementen ☺️

2023/20230223662104_th.jpg

1


Beitrag schreiben / Werbung ausblenden?
Einloggen

 Kostenlos registrieren [Mehr Infos]