« Bauplan & Grundriss  |

Grundriss zur freien Diskussion - Seite 16

Teilen: facebook    whatsapp    email
 1  2 ... 3 ... 14  15  16  17 ... 18 ... 74  75  76 
  •  Selma
15.3.2022 - 28.2.2026
1.505 Antworten | 91 Autoren 1505
63
1568
So, da sind nochmal Grundriss und Ansichten


2022/20220315440589_th.jpg


2022/20220315591473_th.jpg


2022/2022031585439_th.jpg

  •  Selma
  •   Bronze-Award
2.6.2023  (#301)
Ja, das stimmt, das ist OG, hätte es dort auch gehört?

1
  •  MalcolmX
  •   Gold-Award
2.6.2023  (#302)
Nein das passt schon. Solange im EG alles stimmt.

1
  •  Selma
  •   Bronze-Award
2.6.2023  (#303)
😅 Gott sei Dank

1
  •  Selma
  •   Bronze-Award
2.6.2023  (#304)
Werde am WE die Fenster einpacken. Habt ihr einen Tipp für mich? Etwas das auch Rückstandsfrei wieder entfernen lässt?

1
  •  derLandmann
  •   Gold-Award
2.6.2023  (#305)
Ist die Verpackung der Lieferung vl wiederverwendbar?
Noppenfolie wär ideal, wenn Klebeband notwendig nur auf Noppenfolie oder Glas nicht auf den Rahmen. Lagerung in der Sonne vermeiden, das kriegst du sonst nur schwer wieder ab.

1
  •  Selma
  •   Bronze-Award
2.6.2023  (#306)


Super, herzlichen Dank! Das hörte ich jetzt schon von mehreren Seiten... werde sehen, dass ich den Schutz außen nicht aufs Alu gebe.

 Aufs purenit kann ich es ja geben, oder?

1
  •  Selma
  •   Bronze-Award
2.6.2023  (#307)
Jetzt sind schon fast alle drin 


2023/20230602984712_th.jpg


2023/20230602160833_th.jpg


2023/20230602616092_th.jpg


2023/20230602778008_th.jpg


1
  •  Selma
  •   Bronze-Award
5.6.2023  (#308)


2023/20230605325854_th.jpg


2023/20230605438290_th.jpg


2023/20230605315796_th.jpg


2023/20230605190921_th.jpg


1
  •  Selma
  •   Bronze-Award
5.6.2023  (#309)
Montage Team von Josko arbeitet top... 


2023/20230605493168_th.jpg

Die schwersten Gläser hatten knapp 400 kg 😅


2023/20230605792026_th.jpg


1
  •  PhilippG
  •   Bronze-Award
5.6.2023  (#310)
sehr schön!

1
  •  Selma
  •   Bronze-Award
5.6.2023  (#311)
Dämpfer: HST Eck Element sitzt zu weit außen - morgen nochmal Krisensitzung mit Baubegleitung, Fenstermontagefirma und Josko Partner... 😩 ich hoffe, es gibt eine gute machbare Lösung.

1
  •  Selma
  •   Bronze-Award
5.6.2023  (#312)


2023/20230605750270_th.jpg


2023/20230605564849_th.jpg

Innentürrahmen wurden auch schon verbaut - da passte alles gsd perfekt!


1
  •  Selma
  •   Bronze-Award
6.6.2023  (#313)
Gerade auf der Baustelle gewesen und gsd sieht es nicht so schlimm aus.

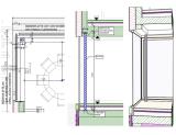
 Hab gestern noch meine Fotos durchforstet und mit den Plänen abgeglichen... und es sieht so aus, als hätte ich recht 😇 das Element sitzt an der richtigen Stelle!

 Für mich relevant: der purenit schließt bündig mit der Kante der Bopla ab.
 Die seitlichen Holzstaffeln können abmontiert werden, da das Element ja eingemauert wurde, dann kann von unten gut abgedichtet werden und auch die Fassade oben gut angeschlossen werden. 


werde meine Erkenntnisse bei der Besprechung vor Ort kund tun. Mail ging gestern Abend schon raus mit Bildergeschichte für alle... 🤣




1
  •  Selma
  •   Bronze-Award
6.6.2023  (#314)


2023/20230606504213_th.jpg Purenit schließt bündig ab

2023/20230606708419_th.jpg Seitliche Staffeln werden weggenommen

2023/20230606236747_th.jpg

1
  •  Selma
  •   Bronze-Award
6.6.2023  (#315)
Das entspricht mM nach dem Plan.


2023/20230606886524_th.jpg

1
  •  peterT1
  •   Gold-Award
6.6.2023  (#316)
Lt. Plan springt im Bereich des Fensters die Bodenplatte vor die Betonwand, das dürfte bei dir nicht so sein, da ja die Betonwand (seitlich) mit der Bodenplatte bündig ist (zumindest sehe ich das auf den Fotos so). Wärmebrückentechnisch ist das so jetzt halt nicht "so gut". 
Lt. Plan sollte der seitliche und obere Fensterrahmen in der Dämmebene sitzen.

1
  •  stefano
  •   Bronze-Award
6.6.2023  (#317)

zitat..
peterT1 schrieb:

Lt. Plan springt im Bereich des Fensters die Bodenplatte vor die Betonwand, das dürfte bei dir nicht so sein, da ja die Betonwand (seitlich) mit der Bodenplatte bündig ist (zumindest sehe ich das auf den Fotos so). Wärmebrückentechnisch ist das so jetzt halt nicht "so gut". 
Lt. Plan sollte der seitliche und obere Fensterrahmen in der Dämmebene sitzen.

Die Bodenplatte dürfte schon etwas hervorspringen. Sitzt das Fenster nicht etwas außerhalb (dort wo jetzt noch die Holzstaffeln sind)?


1
  •  rocko567
  •   Bronze-Award
6.6.2023  (#318)
gefährliches detail, welches gut durchgedacht werden muss.
ich würde hier (ähnlich wie @peterT1 ) darauf tippen, dass die Bodenplatte zu kurz betoniert wurde - wodurch jetzt das Fensterelement zu tief drinnen sitzt (nicht innerhalb der dämmebene).
oder aber die wände sind zu weit aussen aufgestellt, was dazu führt, dass zwar die fenster unten wie lt. plan bündig mit der Bodenplatte sind aber eben nicht mehr in der dämmebene positioniert sind.
war das verständlich?
es ist aber auf den fotos auch eher schwer zu erkennen und vielleicht irre ich mich.


1
  •  Selma
  •   Bronze-Award
6.6.2023  (#319)
Nein, die Betonwand endet 12cm weiter innen, wie im Plan. Nur wurde dazwischen geziegelt und die gehen raus, bis zur Kante der Bodenplatte.

2023/20230606500767_th.jpg


2023/20230606815651_th.jpg


werden über dem Holz und dem Ziegel eine bessere Dämmung (Resolution) nehmen und hoffen, so keine schwache Stelle zu bekommen. Der Bereich ist halt mega haglich... 😏


1
  •  Gemeinderat
  •   Gold-Award
6.6.2023  (#320)
Noppen innen?

Aber wirklich sehr schöne Elemente. Das wird dir viel Freude bereiten :)

1
  •  Selma
  •   Bronze-Award
6.6.2023  (#321)
Das ist die Außenseite, oder meinst du, dass die Noppen zum Haus zeigen? 😟

1


Beitrag schreiben / Werbung ausblenden?
Einloggen

 Kostenlos registrieren [Mehr Infos]