« Hausbau-, Sanierung  |

Grundriss PassivHaus 164m² - Seite 8

Teilen: facebook    whatsapp    email
Zusammenfassung anzeigen
 1  2 ... 3  4  5  6  7  8 
  •  bono71
24.5. - 19.10.2012
145 Antworten 145
145
Hi All,

Noch ein Plan. Bitte um Meinungen.
Das ganze soll ein Passivhaus werden (ev. von Elk) und ist daher von der Grösse beschraenkt. 164m² NGF derzeit. Keine Heizung (nur die Nilan KWL KWL [Kontrollierte Wohnraumlüftung] + PTC und Kamin).
Ein paar Dinge wollte ich unbedingt haben, daher ist es teilweise ein bisschen verwinkelt. Da ich aber schon ziemlich genau weiss was ich brauche seh ich das nicht so schlimm.
Ausrichtung ist genau nach Süden. Westlich ist ziemlich nah ein grosses Haus (nachbar ca. 7m entfernt). Nördlich und Östlich sind die Strassen. Garage kommt Nördlich links.
Bitte an den Pranger damit! ;)

  •  bono71
16.10.2012  (#141)
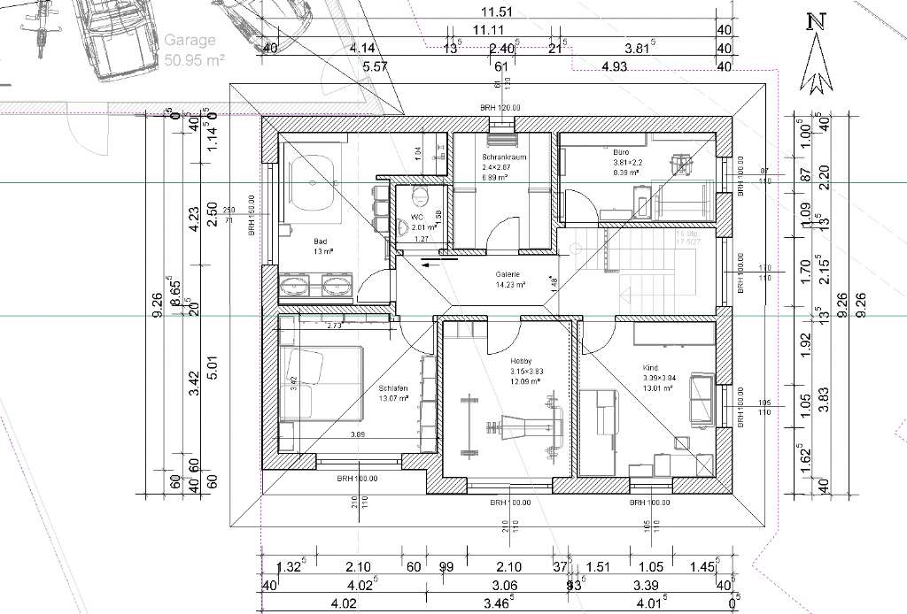
oder doch so? -
2012/20121016477016.JPG

1
  •  ThinkAbout
  •   Bronze-Award
16.10.2012  (#142)
also wenn ich mir das OG von der ersten Version zu jetzt anschaue, dann finde ich das wirklich gelungen. badewanne ist für mich zwar im og ein bisschen groß, aber ansonst finde ich es nicht schlecht aufgeteilt.

gruß
thinkabout

1
  •  Woedas
19.10.2012  (#143)
Klettert das Kind mit der Leiter ins Zimmer ? ;)
Würde mir auch noch überlegen ob ich das WC nicht zwischen Bad und SZ quetschen will, hättest somit die Möglichkeit ein Fenster zu machen was, für mich zumindest, ein must-have ist.

MfG

1
  •  Drops
19.10.2012  (#144)
Kinderzimmer - Die Tür ins Kinderzimmer fehlt noch immer emoji

1
  •  bono71
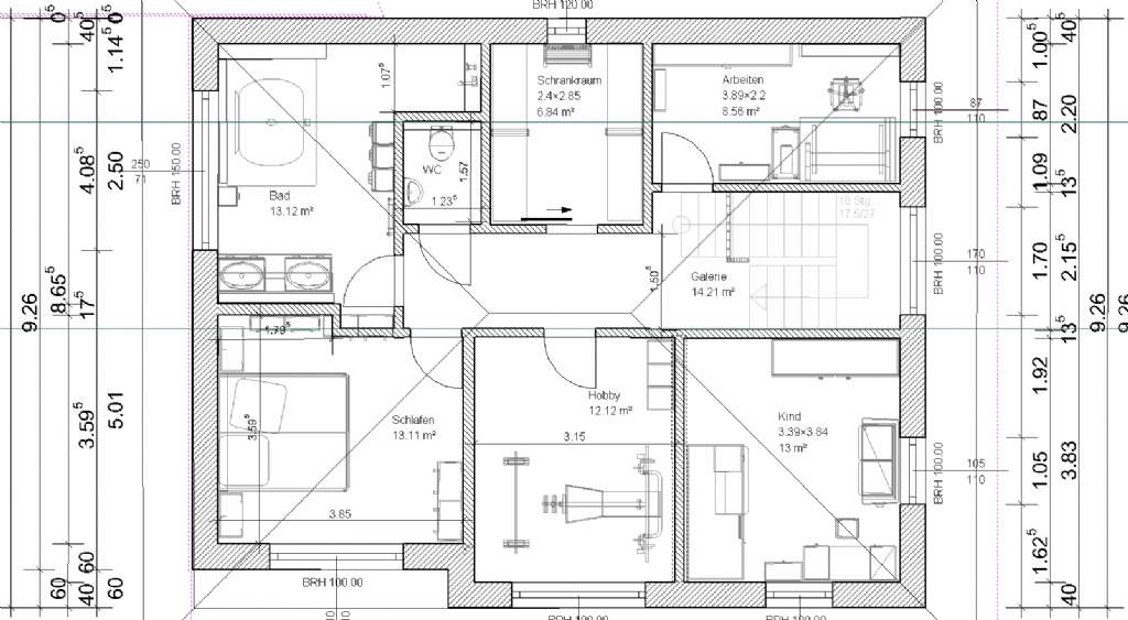
19.10.2012  (#145)
*gg* - Das Kind kommt einmal rein aber nimmer raus ... so is das halt in Strasshof emoji

soda .. habs nochmal feingeschliffen und es geschafft zu begradigen. Fenster WC ist mir wegen KWL KWL [Kontrollierte Wohnraumlüftung] inkl nicht so wichtig.


2012/20121019281627.JPG


1

Thread geschlossen Dieser Thread wurde geschlossen, es sind keine weiteren Antworten möglich.

Nächstes Thema: Wasserdichte (LED-)Spots