« Bauplan & Grundriss  |

Grundriss EFH - bitte um Feedback, Optimierungsideen und Erfahrungen

Teilen: facebook    whatsapp    email
  •  OliverE
21.1. - 22.1.2026 1
1
Schönen Nachmittag!
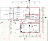
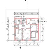
Wir planen ein Einfamilienhaus in OÖ auf einem ca. 500 m² großen Grundstück (ca. 19,4 m × 25,7 m). Im Osten grenzt eine Gemeindestraße mit 70 km/h-Beschränkung, im Westen erfolgt die Zufahrt über die Siedlung. Norden und Süden sind Nachbargrundstücke. Die östliche Baufluchtlinie beträgt 4 m, die westliche 5 m. Das Haus wird leider ohne Keller geplant, da das Gebiet hochwassergefährdet ist und ein Keller natürlich teuer ist. Der Garten liegt überwiegend im Westen und Süden und ist damit straßenabgewandt.

Ich habe die Grundrisse selbst in Archicad gezeichnet. Ich bin aber nicht vom Fach, bin in der IT-Branche tätig. Wir würden uns über eure Einschätzung zu folgenden Punkten freuen:

– Die Kinderzimmer sollen doch gleich groß sein.
– Eine Doppelgarage ist für uns wichtig.
– Geplant sind zwei Kinder, zusätzlich brauchen wir unbedingt einen Homeoffice-Raum (der Raum im EG ist aktuell vorgesehen).
– Trennung von Bad und WC im OG: Lässt sich das mit dem bestehenden Layout sinnvoll umsetzen? Oder ist das so am besten?
– Generelle Einschätzung zu Raumaufteilung, Wegeführung, Stauraum und Belichtung bitte.
– Lärmthema: Die Straße im Osten macht uns etwas Sorge. Hat jemand Erfahrung mit einer Schallschutzmauer zur Straßenseite? Bringt das in der Praxis spürbar etwas?
– Passt die Position von Garage/Technik/HWR für Alltag und späteres Handling?


_aktuell/20260121358970_th.jpg


_aktuell/20260121526040_th.jpg

 
Danke im Voraus für konstruktives Feedback – wir sind für jede Einschätzung offen.

  •  Neubau2022
22.1.2026 14:37  (#1)
Schallschutz sieht man bei uns öfters Gabionen, ich denke in Eigenleistung mit einem Baggerfahrer sollte das preislich im Rahmen sein. Entweder schön schichten für die Optik oder später zuranken lassen.

1


Beitrag schreiben oder Werbung ausblenden?
Einloggen

 Kostenlos registrieren [Mehr Infos]