« Bauplan & Grundriss  |

Flachdach bei BK I (5m)

Teilen: facebook    whatsapp    email
  •  dallas01
25.4.2026 0
0
Liebs Forum,

ich brauche eure Hilfe.

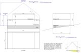
Wir beabsichtigen, einen Grund in Niederösterreich zu kaufen, leider ist dieser mit Bauklasse 1 und mit einer Gebäudehöhe von nur 5 m. Ein Einstöckiges Einfamilienhaus mit Satteldach wäre kein Problem. Allerdings wollen wir ein Flachdach. Das sollte grundsätzlich möglich sein, weil am Nachbargrundstück eines steht.

Es wurde schon viel zur Ermittlung der Gebäudehöhe geschrieben, ich bin mir aber nicht sicher, ob ich das richtig verstanden habe. Unser Haus sollte eine Grundfläche von 15m x 8m haben, der erste Stock wäre zurückversetzt mit einer Grundfläche von 10m x 8m. Ich hoffe, die Skizze im Anhang ist hilfreich.
Auf zwei der vier Seiten wäre die Gebäudehöhe 4,875m. Auf der Front=Straßenseite käme ich immer auf 6m. Sind zurückversetzte Fronten in der Berechnung eventuell anders zu berücksichtigen?

Vielen Dank!
lg dallas


_aktuell/20260425488705_th.jpg



Beitrag schreiben / Werbung ausblenden?
Einloggen

 Kostenlos registrieren [Mehr Infos]