« Heizung, Lüftung, Klima  |

Heizung/Kühlung Galerie

Teilen: facebook    whatsapp    email
  •  gandi
5.1.2026 0
0
Hallo,
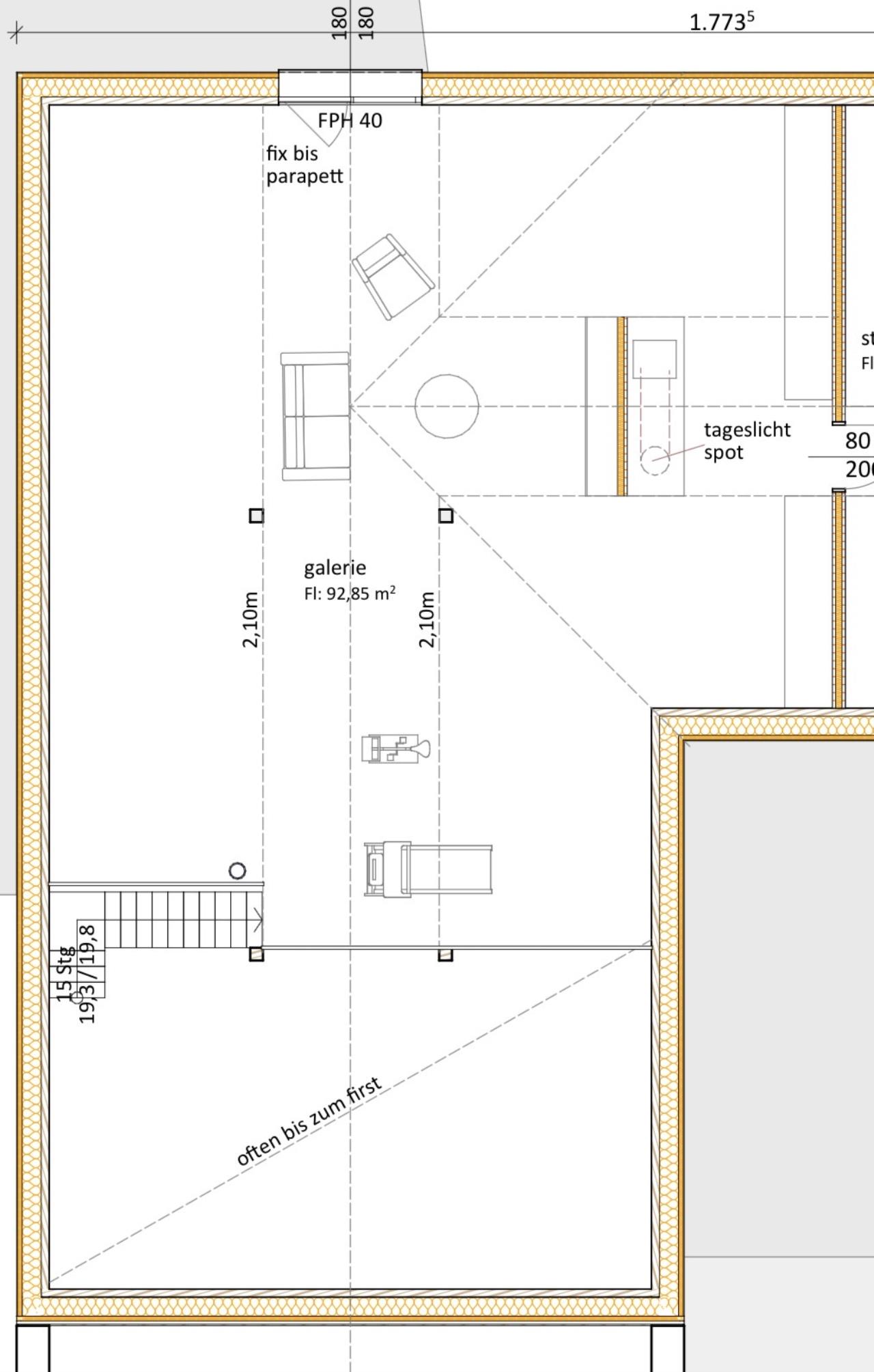
Wir bauen eingeschossig und planen eine relativ große Galerie unter dem Satteldach welche vom offenen Wohnraum erreichbar ist. Wir wollen diese hauptsächlich als Fernseh- und Spielzimmer nutzen.


_aktuell/20260105244582.jpg


_aktuell/20260105430404.jpg

Jetzt frage ich mich, wie wir diesen Bereich am besten beheizen und ob wir etwas zur Kühlung im Sommer einplanen sollten? Aufgrund der niedrigen Raumhöhe möchte ich den Fußbodenaufbau so niedrig wir möglich halten.
Sollen wir wie im EG eine Fußbodenheizung in der Mitte entlang des Firstes einplanen? Oder lieber im Bereich des Fernsehers Decken-Panele? Nachdem es oben naturgemäß wärmer ist wird die Raumluft durch das Wohnzimmer sicher mitgeheizt, die Frage ist halt wie man trotzdem eine austeichende Behaglichkeit hat.
Wir bauen mit CLT, dh die Zwischendecke und die Außenwände sind aus Holz. Die Heizung erfolgt über eine Erdwärmepumpe und wir planen eine KWL KWL [Kontrollierte Wohnraumlüftung].
Vielen Dank für euren Input.



Beitrag schreiben / Werbung ausblenden?
Einloggen

 Kostenlos registrieren [Mehr Infos]

Nächstes Thema: Wernig Wohnraumlüftung / Regelung der Luftfeuchtigkeit schlecht