Bauwich bei Vordach [NÖ]
|
Beste Antwort [im Thread anzeigen]
|
||
OK, wir sind etwas weiter:
Zu beiden finde ich keine genaue Definition in der BO BO [Bauordnung/Baugesetz] oder ich verstehe sie falsch Würde mich über Hinweise freuen! Danke & LG, Tobi |
||
|
||
Hat jemand Erfahrung mit diesem Thema? Ganz so klar scheint die Lage nicht zu sein |
||
|
||
|
Ich denke, da brauchts noch zusätzliche Planinfos, um das exakt beurteilen zu können - zumindest noch einen Grundriss und Lageplan. Das war nicht vorweg klar? Muss ja im Einreichplan eindeutig nachvollziehbar dargestellt sein?! Was heißt "trotzdem"?? Der einzuhaltende Bauwich ergibt sich IMMER und NUR aus halber Gebäudehöhe der jeweiligen Front. Sollte die Gebäudehöhe einer Front z.b. 7,59 m sein (Fläche der Front dividiert durch Breite der Front), dann darf der Abstand dieser Front zur gegenüberliegenden Grundgrenze an keiner Stelle 3,795 m unterschreiten. Das ist eine eindeutige und klare Regelung, ok? Da es bei dir ja um die Frage der Einhaltung des notwendigen Bauwiches geht, vergiß hier bitte den Begriff "Umhüllende". Der hat mit der "Bauwichfrage" überhaupt nichts zu tun! Wie du siehst, rede ich immer von "Fronten" und deren (Gebäude)höhe. Nach unten wird die Frontfläche durch das "Bezugsniveau" begrenzt. Ich sehe in deinen Plänen nirgendwo die Bezeichnung "Bezugsniveau"! Ist das die gelbe Linie? Warum schreibt dann der Planverfasser nicht klar und eindeutig "Bezugsniveau" zu dieser Linie? Wenn du Gebäudehöhen ermitteln willst, ist der 1. Schritt immer die Bildung aller Fronten rundherum um das gesamte Gebäude. Daher die Frage: sind für das Gebäude rundherum die genaue Lage aller Fronten eruiert worden? Erst wenn du weißt, wo genau eine Front liegt (wo also ihre seitlichen, oberen und unteren Begrenzungen liegen) kannst du Flächen berechnen, Breiten genau ermitteln und vor allem den jeweiligen Abstand zur Grundgrenze (Bauwich) genau wissen. Ich denke, das (bzw. dein) Problem liegt darin, dass dir nicht klar ist, wie und wo sich "Fronten" ergeben und wie bei der Frontbildung mit den "Vordächern" umzugehen ist. Bei 1,20 m Auskragung sind die Vordächer jedenfalls bei der Bildung der Fronten zu berücksichtigen, d.h. die Front rückt nach außen an die Kante des Vordaches. Ich denke da musst du mal zu allererst ansetzen. Wenn du mal deine Fronten exakt gebildet hast, ist es wohl ein Leichtes, ihre Fläche zu berechnen, durch die Breite zu dividieren und somit die für die Einhaltung des Bauwichs relevante Gebäudehöhe zu erhalten. |
||
|
|
||
|
||
|
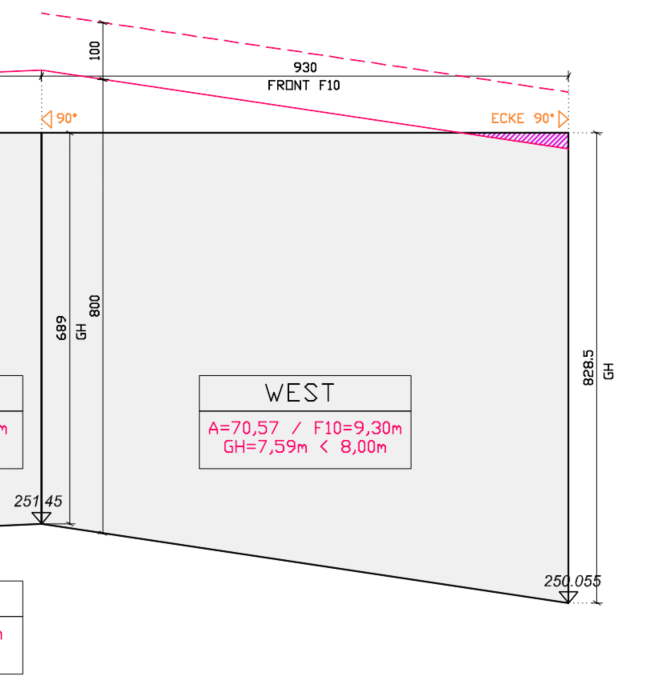
Danke für deine Rückmeldung @Karl10 Du hast recht - ich habe in der Bauordnung nachgelesen, dass der Bauwich sich aus der halben Gebäudehöhe gemäß der Formel ergibt. Das steht in der Bauordnung ja auch klar, allerdings war die Aussage unseres Architekten, dass die tatsächliche halbe Gebäudehöhe relevant ist, nicht die mittlere halbe Gebäudehöhe. ... und du hast Recht, ich meinte nicht die "Umhüllende" (das habe ich falsch interpretiert und mit Gebäudefront gleichgestellt), sondern Gebäudefront. Und die scheint nicht die Vordächer zu berücksichtigen: Hier noch ein Screenshot des EG: Verstehe ich also richtig, dass sich die Gebäudefront unter Berücksichtigung der Vordächer gemäß §53a definiert? In Summe also recht einfach, wenn man weiß, wie eine Gebäudefront definiert ist Vielen Dank noch einmal & LG, Tobi |
||
|
||
|
Is natürlich falsch und ein Armutszeugnis für einen Architekten. Gebäudehöhen berechnen und einhalten sowie davon abgeleitet die Einhaltung von Bauwichen sind das Grundgerüst jeder Planung....(mehr will ich mich dazu gar nicht äußern)! Und das scheint der nächste gravierende Fehler des Architekten zu sein..... Nein. Bei deinem Thema bzw. deiner Frage gehts es ja darum, ob der notwendige Bauwich eingehalten wird. Das hat nichts mit §53a zu tun, sondern ergibt sich aus §53! Dort ist definiert, wie die Fronten zu bilden sind und wie sich die Gebäudehöhen für die Fronten errechnen. Und genau diese Gebäudehöhen ergeben mit der Halbierungsregel des §50 Abs. 1 den bei jeder Front zur gegenüberliegenden Grundgrenze einzuhaltenden Bauwich. Aber abgesehen von deinem falschen Bezug zu §53a hast du es richtig verstanden, dass die Vordächer bei der Frontbildung zu berücksichtigen sind, und zwar wenn sie mehr als 1,0 m auskragen (was laut deinen Plänen ja der Fall ist). Somit dürfte die Front F10 (Westen) lt. obiger Darstellung falsch berechnet sein. Wahrscheinlich auch die Front F9 (Norden), da das Vordach an der Westfront in der Ansicht der Nordfront (seitlich rechts) natürlich auch irgendwie berücksichtigt werden muss (wie genau, kommt jetzt auf den Abstand des Vordaches zur Mauerecke West/Nord) an. Und eine weitere Frage taucht in diesem Zusammenhang auf: Sind Wohngebäude und Garage (einschließlich überdachtem Vorplatz) als 2 getrennte Gebäude zu betrachten oder als 1 einheitliches Gebäude. Sollte es beabsichtigt sein, von 2 getrennten Gebäuden auszugehen, dann müssten auch für jedes einzelne Gebäude rundum die Fronten gebildet werden. Auch dort wo die beiden Gebäude unmittelbar aneinander stehen. Nach obiger Darstellung der Fronten handelt es sich um ein einziges, einheitliches Gebäude. Ist das auch so gewollt? |
||
|
||
|
Vielen Dank @Karl10, das hilft uns sehr weiter. Ich sehe das auch so, dass die Fronten neu berechnet werden müssen. Initial haben wir uns die gleiche Frage gestellt, um die Garage ggf. im Bauwich zu errichten. Das hätte wegen zu hoher Gebäudehöhe nicht funktioniert - ich bin mir aber nicht mehr 100% sicher, ob das Problem tatsächlich eine Höhe von >3m war. Nachdem uns nun Angebote vorliegen, wäre das aber so oder so keine Option mehr, da die Baukosten dann wegen der statischen Trennung deutlich erhöht wären - insofern würden wir das Gebäude als ein einheitliches Gebäude errichten. Die zurückgesetzten Fronten werden dann auch separat betrachtet. Sehe ich richtig, dass die zurückgesetzte Front (rot markiert) dann auch die zulässige GH von 8m nicht überschreiten, korrekt? Da werden wir dann wohl überlegen müssen, wie wir das lösen. Vielen Dank & LG, Tobi |
||
|
||
|
Versteh ich jetzt mal wieder nicht. Wo siehst du an dieser Stelle ein Problem? Das was du rot eingerahmt hast, ist ja gar keine Front. Da die Garage mit dem Wohntrakt ein einheitliches Gebäude ist, liegt die Frontfläche ja rechts vorne an der Garagenaußenwand und das Wohngebäude gilt als zurückgesetze Gebäudefront. Und außerdem: Dein Problem ist doch lt. Eingangsthread die Westfront und die Einhaltung des dortigen Bauwichs. Überall sonst geht es ja nicht um den Bauwich, sondern nur um die Einhaltung der Bauklasse/Gebäudehöhe, wobei dazu nirgendwo ein Problem zu erkennen ist. Die Westfront liegt bei Berücksichtigung des Vordaches allerdings bei einem Abstand von deutlich unter 3m. Geht sich also - unabhängig von der Gebäudehöhe - nicht einmal mit dem Mindestbauwich aus. Was ist dort dein Lösungsvorschlag?? |
||
|
||
|
Alles klar, danke dir. Gebäude schmaler durch den geänderten Aufbau, westliches Vordach weiter südlich enden lassen Vordächer 1m (oder 1,01m?) statt 1,20m - und ansonsten wirds eben kleiner. |
||
|
||
|
Ich muss das Thema leider noch einmal aufwärmen. Da wir ja baurechtlich hier doch einige Baustellen hatten, würde ich gerne auch bei der Süd-Fassade sicher sein, dass das passt. Die Fassade hat einen Rücksprung von exakt einem Meter: ![]() In der Abwicklung ist die Süd-Fassade als eine Front dargestellt: ![]() Im Gesetz steht dazu: Es handelt sich ja hier um zwei Knicke von 90° mit einem Rücksprung von 1m. Aus der Regelung werde ich nicht ganz schlau - haben wir hier nun eine zusammenhängende Front oder zwei Fronten? Danke & LG, Tobi |
||
|
||
|
Auch die Südseite deines Gebäudes hat Vordächer, die 1,20 m auskragen. Daher musst du zunächst mal eine Front an der Außenkante der Vordächer anlegen. Und dann musst du schauen, ob du irgendwo RÜCKSPRÜNGE um mehr als 1m hast. Wenn ja, dann wäre dort eine weitere Front zu bilden. Bei der an die Vordächer angelegten Front musst du dann mit der "45°-Ebene" prüfen bzw. ermitteln, wo der obere Frontabschluss liegt und daraus die Fläche errechnen. |
||
|
||
|
Sorry Karl, den Fakt, dass wir die Vordächer auf 0,95m reduzieren habe ich doch glatt unterschlagen Dann dürfte es also passen, da Vordächer <= 1m und der Rücksrpung ebenfalls <= 1m, richtig? Mir ist nicht ganz klar, wie ein Rücksprung definiert ist und die Formulierung in der BO BO [Bauordnung/Baugesetz] liest sich so, dass einer der Fälle zutreffen muss (45° Knick oder Rücksprung), nicht, dass beides zutreffen muss (durch die Formulierung "... und nach ..."), aber vielleicht missverstehe ich das, da mir nicht ganz klar ist, wie ein Rücksprung definiert ist. Danke & LG, Tobi |
||
|
||
|
Ok. Dann sieht die für die Ermittlung der Gebäudehöhe maßgebliche Frontfläche im Süden trotzdem anders aus, als da oben dargestellt. Es gibt dann nur eine einzige, gerade durchgehende Frontfläche - ohne irgendwelche Rücksprünge. Diese Frontfläche liegt direkt an der Front der Garage an. Beim Hauptgebäude liegt sie somit 1m VOR dem eigentlichen Gebäudeabschluss. Dann musst du im Bereich des Hautpgebäudes an der Oberkante der Attika eine Ebene mit 45° Neigung anlegen und wo sich diese 45°-Ebene mit der vorne angelegten horizontalen Front schneidet, dort ist dann die für die Flächenberechnung maßgebliche obere Frontbegrenzung im Bereich des Hauptgebäudes. Grundprizip ist, dass mit dem Anlegen einer Front immer an der vordersten Ebene zu beginnen ist (bei deiner Südseite ist das die Garagenwand). Und dann kann´s immer nur nach hinten gehen. Und da gibts 2 Möglichkeiten: Hat die Ecke 90° dann ist es ein "RÜCKSPRUNG" . Sind es weniger als 90°, dann ist es ein "KNICK". Beim Rücksprung ist eine neue Front zu bilden, wenn er mehr als 1m beträgt, beim Knick dann, wenn er mehr als 45° beträgt.
|
||
|
||
|
Vielen Dank @Karl10 - jetzt habe ich alle Zusammenhänge (hoffentlich) verstanden. Für deine umfangreiche Antwort gibts selbstvertständlich einen Orden 😊 |
||
|
||
Sogar zwei 😮 Wie hast du denn das gemacht? |
||
|
||
|
Erst Orden und dann beste Antwort? Wieder mal eine Konstellation die dem Qualitätssicherungsteam durchgerutscht ist 😅 |
||
|
||
|
Haha, Karl hat mir schon viel mehr geholfen als diejenigen, die es eigentlich wissen sollten, da kann man ja mal ein Auge zudrücken 😅 |
Beitrag schreiben / Werbung ausblenden?
Einloggen
Kostenlos registrieren [Mehr Infos]









