Nurglasgeländer Balkon
|
|
||
|
Servus Ich habe ca 17lfm Glasgeländer montiert. System pasiert auf Bohle Vetromount Bodenprofil 1,0KN. 130€ inkl MwSt pro Lfm Glas wurde ein Speziell Laminiertes 2xFloat Glas 16,67 Diese kosten kann ich nicht ummünzen da es ein Prototyp war. Normales 2Fach Float mit Laminat 16,67mm (und/oder Farbe) ist bei m2 100-160€ Soweit meine damalige recherche. Zum Profil: dieses ist TOP. Einfach zu verarbeiten, Eloxiert, Montage kinderleicht (hinlegen, Markieren, Bohren, ausblasen, kleben (hab ich ausgeführt) Dichtungen und Klemmen einfach zum montieren. Auch umgekehrt wenns ausgeglast werden sollte... Kinderleicht Gibt auch noch Q Railing mit Profilen. Dort habe ich einmal eines Montiert (0,5KN) und das Glas 55cm hoch Preis kann ich dir nicht meh sagen. Aber ich würde das Bohle bevorzugen. Ich hoffe es hilft dir irgendwie weiter |
||
|
||
|
Das Bohle Profil kann ich auch nur empfehlen. Es garantiert die richtige Eintauchtiefe des Glases in das Profil, um die Absturzsicherung sicher zustellen. Entwässerung ist auch super. |
||
|
||
|
Vielen Dank für die Info! Wie sieht bei euch die Gesamtkonstruktion aus? Wie wird entwässert? |
||
|
|
||
|
||
|
Hab es im Innenbereich und dadurch etwas anders gelöst |
||
|
||
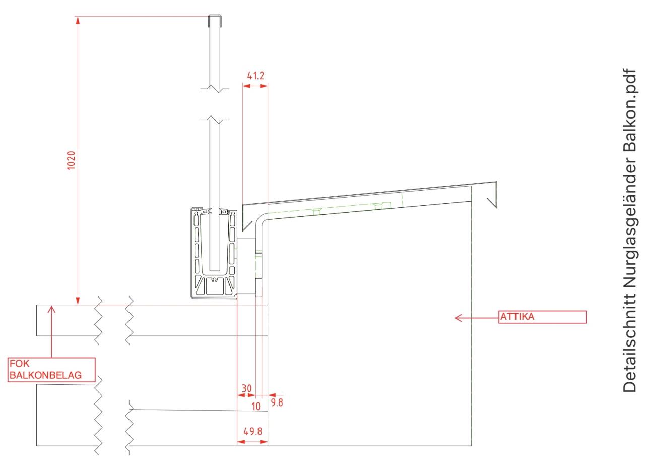
Wir haben Nurglasgeländer an (niedriger) Attika und sind sehr zufrieden mit der Ausführung. Die Halterungen für die Profile wurden von oben im Mauerwerk der Attika verankert. Die Verblechung wurde darüber angebracht, so dass die Konstruktion unsichtbar ist. Regenwasser tropft einfach nach unten ab und kann nicht ins Mauerwerk eindringen. ![]()
|
||
|
||
|
Hättest du da auch ein Foto dazu? |
||
|
||
Bitteschön: ![]() ![]() ![]() ![]() |
||
|
||
|
HI Bembel, wie habt ihr das mit dem 30mm Abstandshalter gelöst? oder ist es Teil des Profiles? |
||
|
||
|
Ich war leider nicht dabei als die Montage erfolgte. Würde aber davon ausgehen, dass die Profile stranggepresst sind und die Abstandhalter nachträglich montiert wurden. Die Profilhalterungen sind aus Edelstahl, ebenso die Verblechung des Profils, allerdings farblich passend zur Attikaverblechung pulverbeschichtet. |
||
|
||
|
Sehr schön Bembel, was hast du pro m Glas ca. bezahlt? |
||
|
||
|
Genau beziffern kann ich das leider nicht, da mir für den Posten Geländer nur der Gesamtpreis gemäß Angebot GU bekannt ist. Für die Glasgeländer außen und innen wurden 16.800 Euro brutto berechnet. Es sind ca. 8 laufende Meter am Balkon und etwa 11 Meter Nurglasgeländer im Innenbereich. Der Auftrag wurde Ende 2020 erteilt. |
Beitrag schreiben / Werbung ausblenden?
Einloggen
Kostenlos registrieren [Mehr Infos]





