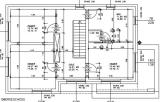
Entwurf EFH 164m2
|
|
||
|
Hier sieht man schön das Problem einer geraden Treppe. Man braucht spätestens im OG mehr als die gleiche Fläche nochmal als Gang und verliert dadurch wertvolle Wohnfläche. Ich würde wenn es bei der geraden Treppe bleibt, das WC als eigenen Raum neben das Bad platzieren und dafür das Schlafzimmer verkleinern und den Schlafzimmereingang beim Schrankraum machen. Den Erker würde ich persönlich auch nicht machen, ist aber Geschmackssache. Mehr Platz für die Kinder ergäbe sich, die würden es dir im jugendlichen Alter danken und aufpassen auf die Wärmebrückenthematik bei Bau mit 50er Ziegel. |
||
|
||
|
Bzgl. SR IM OG. Fenster Mittig setzen und Begehbard aus dem SZ.. ![]() |
||
|
||
|
wenn du die terrasse mit tisch und sessel nutzen willst, muss sie zumindest 1m tiefer sein; die derzeitigen gut 2m sind VIEL zu wenig! bei jedem regen ist darunter alles nass, kaum steht die sonne nur ein bisschen schräg heizt es voll hinein. in der derzeitigen form wenig brauchbar. |
||
|
|
||
|
||
|
Ich finde den Grundriss für einen Erstentwurf eigentlich vergleichsweise gelungen; das mit der Terrasse unterschreibe ich, die ist in der Form für eine vernünftige Nutzung zu klein. Bei den Kinderzimmern würde ich schauen, dass sich auch ein 1,40m-Bett ausgeht. |
||
|
||
|
Ich würde noch versuchen Bad und Sclafen im Og zu tauschen wegen der Kürzeren Wege.Wasser. der Schrankraum wie er jetz steht als seperate Waschkammer oder WC nutzen. Finde das jetzige SZ Platzverschwendung |
||
|
||
|
Leider gibt es keine Angaben zur Nachbarschaft, ich frage mich über 8 Meter Vorgarten. Da hätte ich lieber bei der Terrasse mehr Garten. Und warum wird Dach Garagendach nicht bis zum Eingang gezogen? Im OG würde ich lieber ein Minibad beim Schrankraum machen und im SZ den SR Teil besser nutzen. |
||
|
||
|
die gerade Treppe haben wir gewählt weil wir sie für komfortabler als eine halbgewendelte U Treppe empfnden. Das sie natürlich etwas mehr Platzbedarf benötigt nehmen wir in kauf. Erker ist wie du sagst Geschmacksache, ohne wäre das Haus wie ein Würfel, der Erker lockert das ein wenig auf. Den Schrankraum sehen wir eher als Stauraum für alles mögliche, deswegen vom Gang aus zugänglich. Türe und Fenster werden auf alle Fälle noch versetzt damit wie du angedeutet hast an beiden Wänden ein Regal reinpasst. Terasse hätten wir gegenüber den Plan um 0,5m vergrößert dann wären sie 3,5m tief und davon 2,9m überdacht. Vor der tiefstehenden Sonne sollte der Teil rechts neben dem Erker gut geschützt sein, links ist das sicher ein Thema. |
||
|
||
|
Den Erker verbreitern damit sich ein 1,4m Bett ausgeht haben wir auch überlegt, sind aber dann zum Entschluss gekommen dass es einige andere Möglichkeiten in den KZ gibt um auch ein größerses Bett zu platzieren. Generell sind wir uns mit der Badaufteilung noch im unklaren, vor allem mit der Postionierung von der Dusche/Badewanne und WC. Da wäre sicher wie du sagst ein Tausch Bad/Schlafzimmer auch noch eine Überlegung wert. Nach der Terrasse gehören uns noch 50m, daher haben wir das Haus nicht ganz zur Straße gesetzt. Beim Eingang hat uns das freie Dach besser gefallen als ein durchgezogenes Garagendach. Dadurch das wir eine Verbindung von der Garage ins Haus haben, ist das Dach außen auch nicht nötig |
||
|
||
Wir haben mit gerader Treppe einen ähnlichen Grundriss im OG. Unsere WC Lösung und Bad "en" Suite sieht so aus: |
||
|
||
|
habt ihr auch schon eine Plannung wo Dusche, Waschbecken und falls geplannt Badewanne hinkommen ? was habt ihr für ein Maß von der letzten Stufe zur Wand? Wir überlegen ob wir die ganze Treppe noch ein wenig verschieben damit im EG der Durchgang in die Wohnküche größer wird |
||
|
||
|
Unser OG ist auch ähnlich zu eurem Plan (aber halt größer), hier die finale Version: https://www.energiesparhaus.at/forum-auf-ein-neues-efh-210m-ohne-keller/62137_1#600947 |
||
|
||
|
Die Tür zum AR unter der Stiege würde ich nicht im Wohnzimmer sondern im Büro machen, weil du dann den Fernseher viel besser platzieren kannst (auch ein größerer Fernseher ist dann möglich). In der jetzigen Planung kannst du nur schräg zum Fernseher schauen, was ich als störend empfinde. |
||
|
||
|
SR sehe ich auch so, der MUSS aus dem Schlafzimmer erreichbar sein. Sonst fällt mir da wirklich wenig auf. Find es eigentlich wirklich gut gelöst. Einiges wird euch während dem Bau noch auffallen, aber das ist dann einfach situationsspezifisch. Gefällt mir! |
||
|
||
|
Eine Anmerkung zur Garage. Ich würde diese auch mindestens 6,5m breit machen. Die Autos werden nicht unbedingt schmäler. Das Garagentor wird auch gerne breiter gemacht. 5,5m würden nicht viel mehr kosten. Andere Frage: Welche Raumhöhen sind geplant? Welche Haustechnik soll im Technikraum Platz finden? |
||
|
||
|
wie im Anfangsposting erwähnt, wird diese Türe ins Büro versetzt. Den SR werden wir als Abstellraum benutzen deswegen ist da kein direkter Zugang vom Schlafzimmer eingeplant. Da wäre eher so eine Lösung jetzt geplant: @Landei: kann dich jetzt leider irgendwie nicht zitieren Die Garagenbreite ist sicher noch eine Überlegung wert. Raumhöhe ist im EG 2,75m und im OG mit 2,5m geplant. Im Technikraum ist jetzt mal nur Wärmepumpe + Boiler geplant, da würde der Installateur mit den 2,4x1m auskommen, daher überlegen wir ihn zu verkleinern. Denke mit 2,41x2,5m hätten wir auch noch genügend Platz falls wir irgendwann mal eine Batterie für die PV wollen |
||
|
||
|
Die gerade Treppe ist hier der Dealbreaker. Die Fläche sollte grundsätzlich für das Raumprogramm ausreichend sein. Würde umplanen. |
||
|
||
|
Ja. Wir bewohnen den Grundriss seit knapp 10 Jahren 😁. Neben der Wanne haben wir auch eine kleine offene IR Kabine. Stufe zur Wand is 1,30m. Im EG 1,20m und Platz genug da die Treppe im unteren Bereich offen ist.
|
||
|
||
|
Wie sieht es mit KWL KWL [Kontrollierte Wohnraumlüftung] aus? Falls bisher nicht geplant, lese dazu hier im Forum quer. Würde dringend davon abraten einen Neubau ohne (vernünftig geplante!) KWL zu bauen. Der Elektroverteiler brauch auch Wandfläche, sowie was ich zuerst nicht auf dem Schirm hatte: Wasseruhr, Filter, Verteilung und evtl. Entkalkung. |
||
|
||
|
Der Technikraum ist zu klein. Wenn ihr alles vernünfti unter bringen wollt. Heizung, Ww-Speicher, Elekttoverteilung, Hausanschlüsse, Lüftung, Wechselrichter, Pv Speicher. Sollten mM 2 Seiten a je 3mtr zur Verfügung stehen, weil bewegen und Arbeiten sollte ma da drin auch können. Finde es allgemein immer recht amüsant wie groß hier oft Häuser gebaut werden und Technikraum der vollgestopft wird hat meist Abstellkammer größe |
||
|
||
|
In diesem Thread (unten verlinkt) bekommt man ein Gefühl dafür wie viel Platz Haustechnik einnimmt. Ich würde den TE-Raum auf jeden Fall groß genug machen. https://www.energiesparhaus.at/forum-sammelthread-zeigt-her-eure-heizrauminstallation-technik/59551_2#575405 |
||
|
||
|
Den Erker würde ich jedenfalls breiter machen. Sonst musst du immer am Esstisch vorbeischlüpfen, um auf die Terrasse zu gehen. Wir haben die südseitigen Räume im EG und OG auch so wie ihr. Der Tisch steht bei uns schon nicht mehr mittig im Erker, dass man eben besser auf die Terrasse kommt. Im OG geht sich im Erker genau der Schreibtisch aus, was ich vom Licht her ziemlich genial finde. ![]() ![]() Ich hoffe, man kann die Screenshots halbwegs sehen. |
Beitrag schreiben / Werbung ausblenden?
Einloggen
Kostenlos registrieren [Mehr Infos]












