Planung Lüftung 75er in Betondecken
|
|
||
|
Das Forumarchiv ist schon so groß, dass man viele Dinge übersehen kann, die bereits vielfach diskutiert wurden. Du planst deine Anlage so, wie das viele Standard-Anbieter machen würden. Das sollte dich sofort stutzig machen. Im Forum haben sich manche Lösungen als deutlich besser herauskristallisiert, als die Standardlösungen, um das gleiche Geld oder weniger und bieten damit einen deutlichen Mehrwert und verhindern Probleme. Die wesentlichen Punkte bei dieser Konzeption sind: - keine Flexibilität bei der Raumnutzung entsprechend der Leitungsquerschnitte und Leitungslängen - die Einregulierung nur an den Ventilen wird hier nicht gut funktionieren, weil die Widerstände hoch und sehr unterschiedlich sind (es muss primär am Verteiler gedrosselt werden) - falls du akustisch empfindlich bist, sollten es nicht mehr als 20m³/h pro Schlauch sein (hörbar wird es ab ca. 15 m³/h) - bezüglich Volumenströme: in der Küche ist der Abluftvolumenstrom niedriger als der Zuluftvolumenstrom im WZ --> Überdruck, Kochgerüche in den Vorraum Büro benötigt für eine Person mind. 30 m³/h Ankleide benötigt keine Zuluft, da zwischen Bad und SZ, SZ benötigt 25m³/h pro Person - durch fehlende Schalldämpfung in den Schläuchen ist die Gefahr von akustischen Störungen durch Telefonie- oder Geräteschall gegeben (insbesondere bei kurzen Leitungen). Die Geräteschalldämpfung muss sehr gut sein, da auch die Ventilatoren durch den höheren Strömungswiderstand lauter sind. - Die Leitungsverlegung ist ziemlich aufwändig und muss in mehreren Bauetappen erfolgen (Gefahr der Beschädigung und Verschmutzung) - die Reinigung der langen Luftleitungen kann nur mit Ausrüstung durch eine Fachfirma erfolgen - die Zuluft-Deckendurchlässe sollten mit einem Mindestabstand zu den Wänden von 1,5-2m geplant werden, um eine Umlenkung nach unten zu vermeiden. Es ist nicht erforderlich die Durchlässe diagonal zur Tür zu planen. Das ist ein Mythos. - eine sommerliche Entfeuchtungslösung sollte mitgeplant werden insbesondere bei Bauteilkühlungen und Kellernutzung als Wohnraum bzw. HWR mit Waschmaschine. Das sind die Punkte, die mir aufs erste aufgefallen sind. Ich will eigentlich nur, dass deine Erwartungen an eine Wohnraumlüftung erfüllt werden. Dazu ist es aber erforderlich, dass man von einer Standard-KWL in Richtung Komfortlüftung geht.
|
||
|
||
|
Vielen Dank für die erste Rückmeldung 🙌! Da bin voll bei dir, dass eine flexible mit schönen Querschnitten geplante Anlage Crème die de la Crème ist. Abweichen vom 75iger Betonkonzept kann ich aus Kompromissgründen nicht, da generell keine Zwischendecke (natürlich auch schöne Vorteile) gewünscht ist und so auch schön für eine BKA BKA [Betonkernaktivierung] (geht auch mit Zwischendecke). Daher hoffe ich hier das mögliche Optimum aus dem Rohrsystem gestalten zu können. - OK, drosseln am Verteiler - Generell nachfolgend ein Entwurf, darin jeder Anschluss mit 2x Leitungen - Darin 20x Zuluft und 16x Abluft 😅 - Esszimmer Zuluft darin wieder entfernt - OG Flur um 1x Abluftventil erweitert (2x Ventil = 4x Schläuche) - Anhand welchen Kriterien am besten die Zuluft (und Abluft) platztieren? - Ja die KWL KWL [Kontrollierte Wohnraumlüftung] inkl. Entfeuchtung wäre ein Traum, mal sehen was es dann am Markt mit so gibt 😊 Danke für die Tipps und fürs drüberschauen, echt super! ![]() |
||
|
||
|
Du müsstest jeweils genau 1 Zimmer abhängen. Ist do h nahezu ideal vom Grundriss. |
||
|
|
||
|
||
|
Okay da stehe ich jetzt auf dem Schlauch, wie meinst du das MalcomX? 👌 |
||
|
||
|
Hi, das was MalcolmX meint ist: - KG Diele abhängen - EG Windfang abhängen - OG Flur abhängen Hinter der Abhängung die Combiboxen Schalldämpfer und Spirorohre verstecken. Bei 100/125mm ca.22cm (siehe Leitwolfs Website, oder diverse Forumthreads) Mit den Spirorohren gehst du dann durch die Wände und da dann die Auslässe drauf. 1 Raum pro geschoss abgehängt und jeder Raum wird mit Luft versorgt.
|
||
|
||
|
Genau. Ist bei den Grundriss komplett aufgelegt... Und ich sage Mal, bei vielen Anlagen sehr ähnlich. Im Flur ist die verringerte Höhe ziemlich wurscht. Ich hab die Stürze gleich so gemacht dass die Haustüre bzw dAs Fenster im OG quasi "raumhoch" sind. |
||
|
||
|
Wir sind z.B. von der W**f Haus Standardhöhe von 2,52m auf 2,62m gegangen. Dadurch ist der Gang jetzt auf 2,40m dafür alle anderen Räume etwas höher. Finden wir sehr angenehm. Im Keller haben wir nicht abgehängt. Haben auch keine Combibox im Keller, sondern nur Verrohrungen. Die Abhängung haben wir auch direkt für versteckten Accesspoint, Einbauspots und Präsenzmelder verwendet. |
||
|
||
|
Das klingt definitv interessant... 👌, unser Bau startet vsl. im Frühjahr 2025. Wie mache ich am besten weiter um mal grob eine Hausnummer zu bekommen, wie das umgesetzt werden könnte und welche Kosten damit einhergehen? Super wäre es wenn es auch Lösungen gibt, falls auch nicht der komplette bspw. Windfang abgehängt werden muss, sondern nur die Rohrelemente, dann würde ich darunter Spots o. ä. setzen. Somit das Deckenelement in Szene setzen. |
||
|
||
|
Am Besten schreibst du dem leitwolf und wenn du Glück hast, hat er noch Zeit für eine Planung. Kosten wird er dir sicher auch abschätzen können |
||
|
||
|
Die Abhängungen können natürlich minimiert werden. Z. B. kann Büro und Wohnzimmer über das KG mit einem Bodenauslass versorgt werden. Im KG würde ich die Leitungen nur in den Raumecken am Flur führen. Nur den Vorraum im OG würde ich komplett abhängen. Dadurch entsteht ein übersichtliches Verteilsystem. Statt schätzungsweise 400m Leitungslänge nur mehr 60-70m. |
||
|
||
|
Ojemine jetzt stehe ich vor dem Dilemma, zumindest habe ich mich schonmal für eine KWL KWL [Kontrollierte Wohnraumlüftung] entschieden, entgegen vieler Widersacher im Bekanntenkreis (vorallem alle Neubauten ohne KWL KWL [Kontrollierte Wohnraumlüftung] realisiert 💩), was ich denke schonmal gut ist 🙂. Meine Ausgangslage - bei ggf. neuem Konzept: - Betondecken sind im vergebenen Rohbauangebot bereits auf 24cm eingepreist, entweder bei 24cm bleiben oder Minderpreis erfragen (wird vsl. nicht viel bei rumkommen) - KWL Schläuche inkl. Anschlussstutzen im Wert von 1600€ bereits auf Lager (könnte ich vsl. Wiederverkaufen), der Rohbau hätte ggf. auch bereits dieses Jahr gestartet und ich wollte kein Risiko bzgl. eines Lieferverzugs - eine komplette Decke abhängen möchten wir vermeiden, lieber nur die Rohrleitungen geschickt geplant und als quasi "Designelement" - Zulässe im Boden würden wir gerne auch vermeiden (dabei die Prio jedoch niedriger wie kpl. Decken abzuhängen) Ich denke die Elementdeckenplanung wird Ende Q1/2025 so langsam finalisiert werden müssen. Welchen Rat habt ihr, natürlich vorweggreifend @leitwolf falls du generell Kapazitäten für eine Planung hättest 😊 und was dies grob monetär ausmacht. Meint ihr nicht kpl. Decken abzuhängen wird sich lösen lassen? Das sind so die größten Bauchschmerzen..., natürlich ohne Know-How zu der Betonvariante. Ich kann nicht beurteilen ob ich mir in 5 Jahren sage hätte ich mal lieber, da die "Beton-KWL" nicht glücklich macht. |
||
|
||
|
Hallo etstas, hier gibt es dazu Erfahrungen und Preise: Planung Lüftung 75er in Betondecken |
||
|
||
|
mein Rat: Beiß jetzt rein und mach es gleich gscheit. ich glaub keiner hier im Forum, der das Leitwolf-Stern-Spiro-Konzept und abgehängte Teilbereiche hat, ist irgendwie unzufrieden. |
||
|
||
|
Schau nach vorne und nicht zurück 🙂 Wir haben in unserer Wohnung eine KWL KWL [Kontrollierte Wohnraumlüftung] mit Schläuchen und die ist hörbar. Außerdem sind die Schläuche innen extrem staubig und nicht zu reinigen durch die gerippte Oberfläche. Für uns kommt nur Wickelfalz mit anständigen Leitungsquerschnitten in Frage. Das verlegen viele auch selbst nach Planung von @leitwolf und sparen sich so einiges. Eine Lösung findet sich immer 👍 Ich würde versuchen, das als Designelement irgendwie hübsch zu machen. Sonst schaut es einfach aus wie ein verbautes Lüftungsrohr. Was mir die Scheu vor dem Abhängen genommen hat: In einem Raum mit gleicher Höhe eine flache, 20cm hohe Schachtel an die Decke halten. Dann sieht man, dass das gar nicht so wild ist, wie man es sich vorstellt. Könntest du auch mal probieren. |
||
|
||
|
Das Einlegen der vielen Schläuche in die Betondecke erzeugt meist Stress, weil der Termin für das Betonieren steht und nicht so einfach verschoben werden kann. Wenn es dann Verzögerungen der anderen Gewerke gibt, die in die Decke einlegen müssen und vielleicht auch das Wetter nicht ganz mitspielt, dann 😥 ... Beim Einbau nach dem Estrich ist der grobe Baustress vorbei, die Professionisten stehen nicht mehr im Weg und man kann unter Dach und bei angenehmen Bedingungen ohne Zeitstress in einem Zug alles sauber montieren. Das ist ein nicht zu unterschätzender Vorteil, abgesehen von den technischen Vorzügen. Aufenthaltsräume werden nicht abgehängt (außer das ist aus anderen Gründen erwünscht). Die Raumhöhe bleibt erhalten, bzw. kann sogar erhöht werden (weniger Deckenstärke, minimaler Fußbodenaufbau). Kleinere Abhängungen können gestalterisch genutzt werden, und bieten die Chance auch noch nach dem Estrich Anpassungen z. b. der Elektrik vornehmen zu können. @etstas für eine Kostenschätzung einfach über unsere Webseite das Anfrageformular ausfüllen und den Plan als pdf übermitteln. Ganz einfach und unverbindlich. Fragen beantworte ich immer gerne telefonisch. |
||
|
||
|
Kurze Zwischenfrage, welche Geräusche sind von einem Combi-Turm zu erwarten. Im Westen (braun eingezeichnet) befindet sich unsere Terasse und direkt ums Hauseck wäre aktuell der Combi-Turm eingeplant (oranger Kreis mit Pfeil). Das geht sich Leitungstechnisch (kurze Wege) super aus und alles wäre im HWR, jedoch sollte ich am Sommerabend ums Eck die KWL KWL [Kontrollierte Wohnraumlüftung] ständig hören würde ich doch umplanen und diesen versuchen irgendwo im Osten unterzubekommen. Besten Dank! |
||
|
||
|
Der Combi-Turm ist relativ leise, kommt aber auf die Auslegung (DN160 oder 200) und den Volumenstrom an. Da die Fortluft noch oben ausgeblasen wird, ist die Schallabstrahlung auch noch oben gerichtet und weniger seitlich zu hören. Zusätzlich kann man in die Fortluft einen Schalldämpfer einbauen. Dann sollte auch in einer leisen Nacht kein Rauschen zu hören sein.
|
||
|
||
|
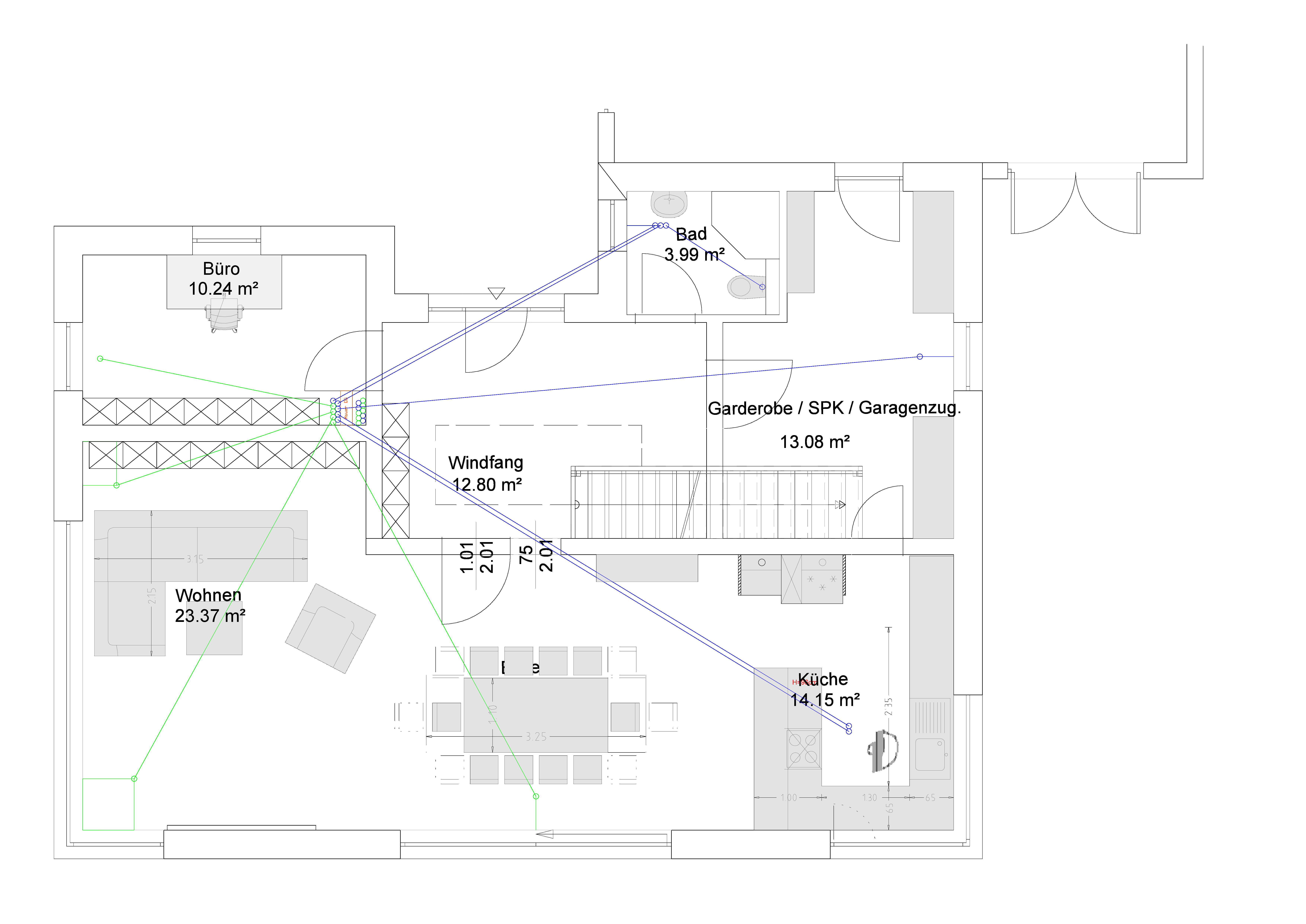
Schonmal vielen Dank für die Infos und @leitwolf auch Merci vorab für das anfertigen eines Kostenvoranschlag! Welche Variante es wird kann ich heute noch nicht sagen und würde gerne bevor mich der Baubeginn überrennt (BKA + Elektro etc. / nächste Woche Dienstag erste Gespräche mit Rohbauer) würde ich gerne die Zeit noch nutzen und die Betonvariante auch optimieren. Sodass ich schnell aus Schubladen dann greifen kann. Nachfolgend die angepasste Berechnung der Luftmengen: Und die Leitungsführung nochmal wenn möglich gekürzt. Bei Küche und Schlafzimmer hätte ich jetzt 3x 75er Schläuche geplant. Wäre super, wenn sich jemand die Zeit nehmen könnte, einen Blick darauf zu werfen! 😊 |
||
|
||
|
Servus, Ich habe auch Elektro, BKA und 75er KWL KWL [Kontrollierte Wohnraumlüftung] Rohre in 25cm Betondecken gelegt. Zusammen mit einem Rentner als helfende Hand, der sich zwischen den ganzen Eisen und seinen Füßen schon etwas schwerer tat, hatte ich mir je Decke ein Zeitfenster von 2 Wochen freigehalten. Das hat auch wunderbar geklappt. Vorraussetzung ist natürlich die Deckenauslässe und deine ganze Arbeitsplanung/Material passen perfekt. Falls du da oben in den Plänen Deckenauslässe geplant hast würde ich mir die Positionen im Wohnzimmer nochmal überdenken. Ich habe auch einen (der Optik wegen) über die Couch gesetzt. Wenn es draußen seeehr kalt ist und die KWL KWL [Kontrollierte Wohnraumlüftung] auf Nenn läuft, spürt man den kühleren Luftstrom schon leicht. Gruß Schorschi
|
||
|
||
|
Bau eine Ebene mit Schläuchen und eine mit Spiro. Dann kannst du die Unterschiede kennenlernen und weißt, was du beim nächsten Haus wählen wirst 😉. |
||
|
||
|
Jede schlauch KLW ist besser als keine, aber eine richtige Spiro KLW schlägt jede Schlauch Variante. Kurze Leitungen, Flexibilität bei Installation und nach dem Rohbau, Reinigbarkeit, Schalldämpfer usw ist alles mit Spiro leichter. Die Statik der Decke ist AUCH zu prüfen bei der Schlauch Variante |
||
|
||
|
Die Schlauch Variante würde ich noch mal überdenken bezüglich Machbarkeit. Du hast dann insgesamt 36!! Schläuche beim Verteiler. Alle Luftschläuche in 2er Reihe angeordnet brauchst du ein Loch mit 1,4 x 0,2m Das ist sehr viel Platz den man benötigt. In der Betondecke musst du dann auch noch aufpassen wegen Luftschläuche und BKA BKA [Betonkernaktivierung] und Kreuzungen mit Elektroschläuche... |
Beitrag schreiben / Werbung ausblenden?
Einloggen
Kostenlos registrieren [Mehr Infos]










