Neues Projekt in Vorarlberg - eure Meinung?
|
|
||
Sieht schon ganz gut aus, mir sind ein paar Punkte zum überlegen aufgefallen:
Folgende Positionen fehlen meiner Meinung nach:
|
||
|
||
|
Hallo Aquila, da sehe ich schon, ich habe vieles bedacht - aber bei weitem nicht alles darf ich fragen, woher du aus Österreich kommst? 1. bei den Fenstern - die werde ich vermutlich in Bosnien produzieren lassen - habe ich bei meinem jetzigen Haus auch (zB. Hebe Schiebetür 2.2M Höhe und 4,5M Breite kostet etwa 3000 Euro ohne Transport & Einbau) Ich denke da spare ich mir knapp die hälfte, wie wenn ich alles hier kaufen würde. Fensterbänke haben wir dann eigentlich keine oder so gut wie keine da alle Fenster Bodentief sind. 2. Gut Fassade wird bei uns vermutlich nur die Vorderseite zur Straße schön gemacht und hinten eine günstigere Variante - muss ich noch schauen was für Möglichkeiten es da gibt (dahinter steht eine Scheune & ein großes Betriebsgrundstück vom Nachbarn). 3. Beim Flachdach bin ich mir auch nicht sicher, das könnte aber auch schnell mal 30-40% teurer sein vermutlich? 4. Beim Rohbau hat unser Architekt mit 90 Euro pro Kubikmeter kalkuliert, ich weiß zwar nicht wie er auf den Preis kommt (wir haben in etwa 1100 Kubikmeter Innen) Rohbau ist geplant mit Ziegeln, Beton - kommt noch drauf an was der Statiker sagt und uns empfielt. So tief bin ich jetzt noch nicht in der Marterie, dass ich genau sage welche Ziegel etc. 5. Elektrik, PV ist nicht geplant - jedoch kenne ich den Aufpreis ca. 15-20tsd. 6. Ja Innentüren haben wir da auch eingerechnet, eine Tür kostet ca. 1000 Euro mit Einbau - im Untergeschoss kommen dann aber Türen vom Hornbach oder ähnliches rein (da es kein Wohnraum ist) 7. Wir werden alles mit Fliesen machen - Kostenpunkt pro m2 ca. 50 Euro + verlegen 8. Estrich, da kenne ich auch einige die uns helfen können und vermutlich kommt ja nur im OG der Estrich rein - in der Werkstatt wird ein Betonboden sein. 9. Bei den Erdarbeiten waren Kanalkosten auch dabei - jedoch verlangt die Firma knapp 50.000 Euro und nicht wie angegeben 40.000,- da würde ich aber noch kleine Anbieter anfragen, da diese meist günstiger sind & das in wenigen Tagen mit Aushub und entsorgen erledigt ist. Ich weiß die Entsorgung kostet auch ne Menge bei uns. 10. Stimmt Sonnenschutz wurde nicht berücksichtigt, da gehen auch mind. 10 eher 15-20tsd drauf. 11. Innenputz habe ich jetzt mal mit "Malerarbeiten" verknüpft, der Untere Stock bleibt ja fast im rohbau - da es eine Werkstatt mit Büro ist & für den oberen Stock habe ich jetzt 25.000 veranschlagt (wird von einem Familienmitglied gemacht) Aber vermutlich wirst du recht behalten und wir sollten statt den 800.000 eher vlt. sogar in Richtung 900-1Mio gehen, bis alles perfekt fertig ist. Ich überlege jedoch gerade, ob ich unten eine Werkstattseite weglassen soll & stattdessen 1 kleine Wohnung noch reinbaue & diese per Kurzzeitvermietung dann vermiete, damit die monatliche Belastung etwas runter geht. Danke dir jetzt schon für deine Ausführliche Erklärung & berücksichtige dass ich ein "Anfänger" bin der erst einmal einen Anbau gebaut hat. Liebe Grüße Dani |
||
|
||
|
Hallo Palacko, hier gibt es dazu Erfahrungen und Preise: Neues Projekt in Vorarlberg - eure Meinung? |
||
|
||
|
Wird das eine gewerblich genutzte Werkstatt? In DE gibts da einige Vorschriften, weiß nicht wie das in Ö ist? |
||
|
|
||
|
||
|
Hallo Michael, ja die Werkstatt wird gewerblich genutzt - die Vorschriften erledigt jedoch unser Architekt - Brandschutz usw wurde geachtet. Fällt dir sonst was auf? |
||
|
||
|
Ölabscheider würd mir da spontan noch einfallen. Hast Du bereits ein Konzept für die Werkstatteinrichtung? |
||
|
||
|
Stimmt Ölabscheider wird sicher ein Thema sein, wir warten noch auf die Auflagen - ansonsten haben wir halt Hebebühne mit Type rausgesucht und wo der Kompressor steht usw. für weiteres warte ich auf die Behörde. |
||
|
||
|
Mit dem Wissen das sie gewerblich genutzt wird musst du die EInfahrt im Prinzip schon fertig machen. Ist ja dann nicht wie beim EInfamilienhaus. |
||
|
||
|
stimmt, geplant ist auf jedenfall zu asphaltieren. |
||
|
||
|
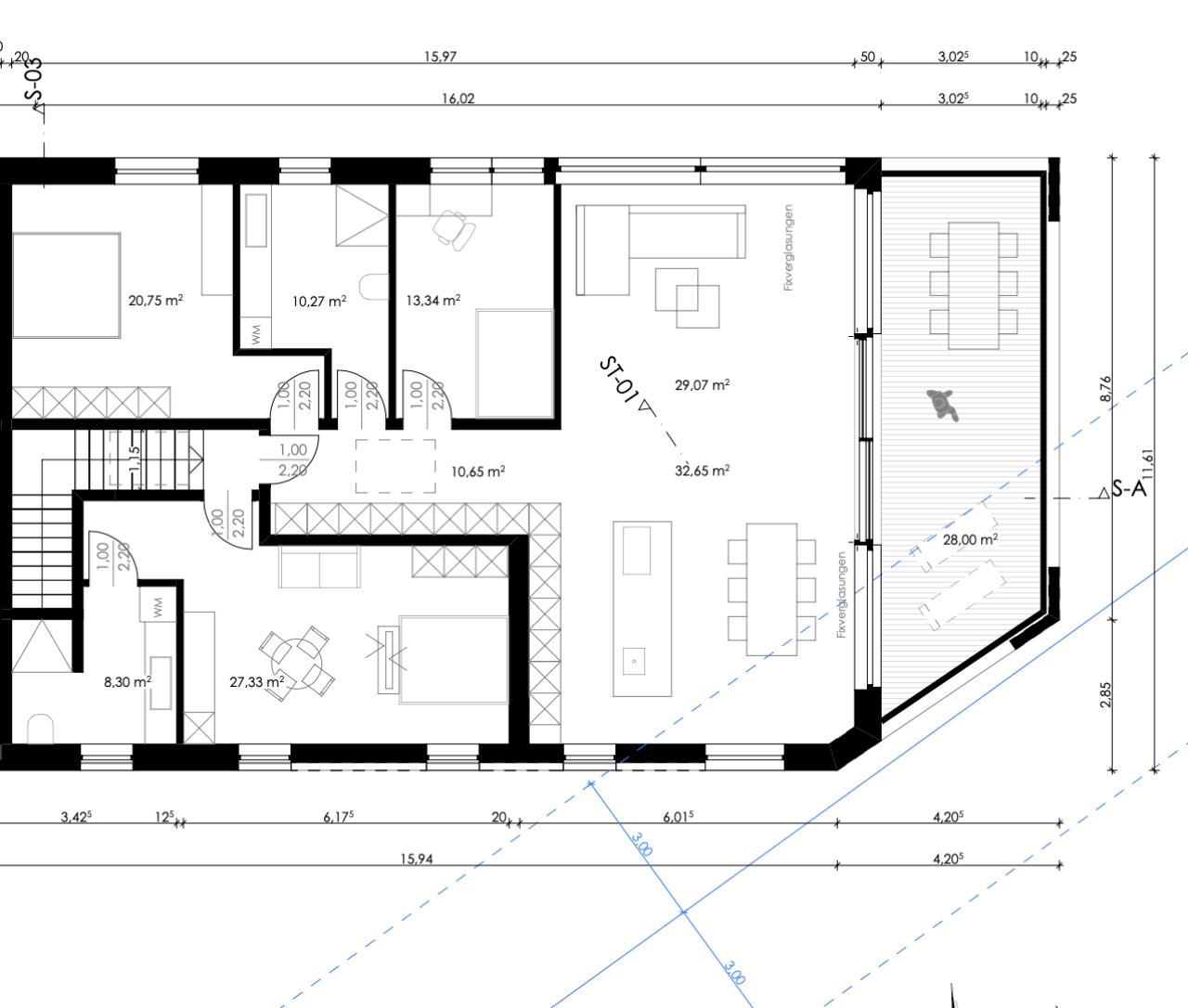
Zum Grundriss hätte ich vlt auch noch Feedback. Der Wohn-Essberreich ist rießig und der Technikraum Miniklein - ist das so gewünscht? Ich würde der Technik schon 10m² gönnen. Auch Leitungswege beachten und Deckendurchbrüche, die brauchen auch Platz. |
||
|
||
|
Die Technik wird so nicht reichen. Würde mal aufzählen was alles da rein muss. Hausanschluss, Heizung, evtl Lüftung, Kopressor, Elektro. Das is Platztechnisch nicht zu unterschätzen. Vielleicht den Platz unter der Treppe besser mitnutzen, |
Beitrag schreiben oder Werbung ausblenden?
Einloggen
Kostenlos registrieren [Mehr Infos]



