« Heizung, Lüftung, Klima  |

WW zu lange Wege, falsch dimensioniert?

Teilen: facebook    whatsapp    email
Zusammenfassung anzeigen (Beta)
 1  2 
  •  plen
31.10. - 11.11.2022
23 Antworten | 10 Autoren 23
3
26
Hallo zusammen,
ich wurde bei meiner Sanierung hier sehr gut geholfen, doch leider bin ich nicht ganz verschont geblieben und habe nun ein paar Probleme mit der Trinkwasserversorgung.
Vorweg, die Nibe S1155-6 arbeitet hier ihren Dienst, ganz ohne Puffer, Überstromventil oder sonst was. Die Fussbodenheizung ist perfekt ausgelegt an der raumweisen Heizlast. Soweit so gut.

Bei der Trinkwasserversorgung habe ich den HB´ler machen lassen, mit dem Gedanken, das kann der schon.
Ok, Ende vom Lied ist, im Bad OG braucht es 1,5min bis warmes Wasser kommt.
Vorgabe damals war von mir, dass ich keine Zirkulation möchte, demnach sollte die 3 Liter Regel gelten.
Nun ist es so, dass im Keller (unbeheizt) fürs EG sowie OG jeweils ein 26mm Mepla(20mm innen) benutzt wurde.
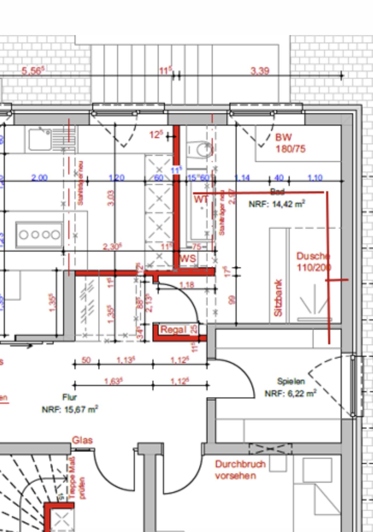
Ich habe das Volumen mal gerechnet, bei 15m im Keller unter der Decke sind es so schon mal 5L Inhalt. Dann gehts in den Steigschacht, dann kommt direkt das Bad EG, drüber das Bad OG.
Ganz schön viel Weg und Volumen, vor allem, wenn die Waschtischarmatur 5l/min nur macht. Da braucht es 1min bis erst mal das Wasser aus dem Keller gespült ist.
Hier mal die Wege in rot eingezeichnet.
Nebenbei, geschliffen wurde nichts.


2022/202210311557.jpg

2022/20221031289454.jpg

2022/20221031730628.jpg
Nun muss ich mal gucken, wie man das wieder richten könnte, damit es einigermaßen akzeptabel wird.
Der HB´ler würde am liebsten eine Zirkulation im Keller legen, damit dort schon mal immer warmes vorgehalten wird. Er möchte mir ein Angebot erstellen.

Ich bin aktuell der Auffassung, das eine ganze Menge an Dokumenten fehlt, die in den Normen beschrieben sind (DIN 1988  3 Liter Regel usw.).
Somit fehlt mir die komplette Rohrnetzberechnung, Prüfprotokolle usw.
Ich kenne es aus der Industrie eine Menge Normen, und daran ist sich zu halten, würde aber laut HB´ler nicht für EFH gelten, was ich mir bei Trinkwasser nicht vorstellen kann.

Selbst das Mepla 26mm Rohr ist in meinen Augen viel zu groß ausgelegt.
Zapfstelle Dusche hat 15l/min
Waschtischarmatur hat 5l/min.

Meine Idee wäre jetzt, den Speicher mit Friwa direkt unter die Bäder zu setzen, dann wären die Wege zum Bad sehr kurz. Ok, Vor und Rücklauf der Nibe würden bei der WW WW [Warmwasser] Bereitung einige Verluste bringen, denke aber die sind weniger als die Zirkulation.
Ein Umschaltventil um den kalten Schwall erst unten einzuleiten ist bereits eingebaut. Ab 44 Grad wird oben beladen.

Hat vielleicht einer noch ein paar andere Idee oder Anmerkungen was ich da machen könnte?

Gruß und vielen lieben Dank für das tolle Forum.




 

  •  cacer
  •   Gold-Award
31.10.2022  (#1)
den speicher im keller an die rückwand vom kellerbad stellen. (so weit wie möglich an die steigleitung)
damit ist ein großteil der dicken leitung eleminiert.

bei mir geht der schacht keinen meter entfernt vom speicher (im kalten keller) nach oben.
bad ist 2 etagen höher und ab kellerdecke mit 16x2 angebunden.
bei ausgekühlter leitung 15 sekunden bis in der dusche warmes wasser ankommt.

wenn vorher schon eine andere zapfstelle kurz an war, dauert es 3-7 sekunden unter der dusche.

4
  •  plen
31.10.2022  (#2)
15s, das wäre ne Traum. Ich weiß auch garnicht wie der Planer auf 26 mepla kam.
Es gehen 4x 26er mepla unter der kellerdecke her, damit werden eg sowie og getrennt.
ich könnte jetzt 2 Leitungen davon nutzen für vl und rl der nibe.
Versorgung eg Küche würde ich das 26 rausnehmen und 16 einsetzen. Da wird nur ne Spüle und Spülmaschine bedient.
Ein dle Erhitzer würde ich noch an der Spüle setzen, damit der die Frau auch zufrieden.

kann man vielleicht die Druckverluste berechnen, ob für die Küche dann ein 16ner ausreicht?
andere frage, um die Speicher zu laden, reicht da das 26 mepla aus? 
Gruss 


1
  •  cacer
  •   Gold-Award
31.10.2022  (#3)

zitat..
plen schrieb: um die Speicher zu laden, reicht da das 26 mepla aus? 

speicherladung geht eh am besten mit geringem durchfluss.

aber warum "die" speicher?


zitat..
plen schrieb: 4x 26er mepla unter der kellerdecke her, damit werden eg sowie og getrennt

das auch noch...


zitat..
plen schrieb: 16 einsetzen. Da wird nur ne Spüle und Spülmaschine bedient.

kein problem, wenn die nicht noch weit weg ist.


zitat..
plen schrieb: dle Erhitzer würde ich noch an der Spüle setzen, damit der die Frau auch zufrieden.

warum?




1


  •  plen
31.10.2022  (#4)
Ist nur ein Speicher mit Friwa. Bin ein wenig gestresst wegen den Mist. Alles ist super gelaufen bei der Sanierung nur das blöde Ww nicht und nun muss ich mich mit dem rumschlagen weil ich sagte, das ich keine zirku möchte. Habe ihn mehrmals drauf hingewiesen auf die 3L Regel.
Leider habe ich bei der Sanierung mich nicht mehr drum gekümmert weil ich denen die Verlegung der Fb erklären musste, nun hab ich 26iger mepla da liegen. Wenn mich nicht alles täuscht haben die 20iger im Estrich verlegt, auch kacke.

zur Küche, wenn der Speicher umgesetzt ist, dürften es 20m sein. Besser wäre es gewesen einen Durchbruch vom Bad zu machen. Da wurde 0,0 drüber nachgedacht geschweige denn geplant.

kann man es irgendwie rechnen, dass 16ner gereicht hätte? Nächste Woche hab ich noch mal einen Termin mit dem Chef, da wollte ich mal anklopfen wie einsichtig er ist, oder ob ich drauf hängen bleibe.

DLE wollte ich nutzen, falls es zu lange dauern würde, weil Frau sich jetzt schon beschwert.

1
  •  Aquila
31.10.2022  (#5)
@plen Hallo plen, eine Frage blöde, warum möchtest du keine Zirkulaiton und was ist damit gemeint? Meinst du damit eine Zirkulationspumpe? Für mich sind das neue Begriffe.

1
  •  Tomlinz
  •   Bronze-Award
31.10.2022  (#6)

zitat..
Aquila schrieb: warum möchtest du keine Zirkulaiton und was ist damit gemeint?

du findest hier im Forum wirklich unzählige Beiträger und Themen wo es nur darum geht:
"wie baue ich meine WarmWasser-Zirkulation wieder zurück", "wie deaktiviere ich Zirku", "warum ist mein Warmwasserverbrauch viel zu hoch, wohl doch nicht wegen meiner Zirku" ...
https://www.energiesparhaus.at/forum-zirkulationspumpe-dauerhaft-ausgeschaltet-lassen/69078

Gerade vor kurzem war wieder wo ein Thread, wo einer die bereits verbaute Zirkulationsleitungen gekappt hat und alles rückgebaut hat im Rohbau. Gerade noch rechtzeitig.


1
  •  JanRi
  •   Gold-Award
31.10.2022  (#7)

zitat..
plen schrieb: Ok, Vor und Rücklauf der Nibe würden bei der WW WW [Warmwasser] Bereitung einige Verluste bringen, denke aber die sind weniger als die Zirkulation.

Das kannst du in der Tat vernachlässigen, wenn die Rohre vernünftig gedämmt sind. Du hast dann halt das kalte Wasser aus den Leitungen EINMAL pro WW WW [Warmwasser]-Bereitung im Speicher und musst dich nicht einmal pro Zapfvorgang damit herumärgern.

Ist bei mir auch so - von der WP WP [Wärmepumpe] zum Speicher sind ca. 5-6 Rohrmeter, denn der Speicher steht ganz bewusst eine Etage höher ziemlich mittig im Haus in der thermischen Hülle. Damit sind die Wege zu den Zapfstellen akzeptabel und beim WW WW [Warmwasser]-Laden störte das in keiner Weise.

Ladeleitungen sind bei mir 28mm Kupfer, wobei dein 26er Rohr mit 20 mm innen vermutlich auch noch geht, falls du mit Zieltemperatur lädst, was ja sehr geringe Volumenströme hat.


1
  •  plen
31.10.2022  (#8)
Das denke ich mir auch, ich lade ja nur 1 mal am Tag im Mittag den Speicher auf, das reicht.
Den kalten Schwall schiebe ich eh erst unten rein, bevor ich anfange von oben einzuleiten, das klappt auch perfekt. Ich verstehe auch nicht, warum die Hb´ler das nicht immer machen, hat auch ne Stunde gedauert, denen zu erklären, warum ich das 3/2 Wegeventil drinhaben wollte.
Ich bin gerade noch mal die Fotos durchgegangen, im Estrich liegt anscheinend überall Mepla 20iger, also 15mm innen. 
Im Keller könnte ich noch alles ändern, der Aufwand wäre überschaubar, aber noch sehe ich es nicht ein, dass der Fehler bei mir liegt, nur weil ich keine Zirku haben wollte.
26iger Leitungen wären dann genug vorhanden für den Speicher VL VL [Vorlauf], RL und ich könnte Kw dann den Weg wieder zurück mit den restlichen 26iger für Garten/Garage/Küche und WW WW [Warmwasser] dann halt neu in 16???? Oder 20???
Küche wäre dann ca. 20m Rohr
Ich würde das am liebsten mal berechnen, Winkelstücke mit Zeta Werten hätte ich wohl.
Einer eine Idee für Excel oder Software?

Theroretisch könnte ich die Wand im EG noch losnehmen (Krieg mit Frau vorprogrammiert), da ist die Steigleiterung für OG drin, welche auch 26 ist. Mit 16ner würde ich 0,5L Volumen sparen.

Man, ich könnte echt kotzen, dass ich genau da nicht aufgepasst habe.


1
  •  cacer
  •   Gold-Award
1.11.2022  (#9)

zitat..
plen schrieb: DLE wollte ich nutzen, falls es zu lange dauern würde, weil Frau sich jetzt schon beschwert.

ach so, die küche ist aktuell direkt über dem speicher und nach umbau die längste leitung und die frau ist jetzt schon unglücklich ?

dann wäre ein  solartauglicher klein-DLE an der spüle keine schlechte idee, damit es schnell lauwarmes wasser gibt. das wärmere aus dem speicher kommt dann aber immer noch spät.
ein dicker DLE wäre die lösung, wenn der haussegen dadurch gerettet wird, sonst wäre mir das zu auswändig.

ist die küche direkt von unten angebunden, oder läuft den langen weg durch den estrich?


zitat..
plen schrieb: Ich würde das am liebsten mal berechnen, Winkelstücke mit Zeta Werten hätte ich wohl.
Einer eine Idee für Excel oder Software?

geht das mit der tabelle von @berhan ?
er hat aber sicher nen tip.
 


1
  •  Schorschi81
2.11.2022  (#10)
Also 90 Sekunden auf WW WW [Warmwasser] warten ist schon heftig, gerade weil die DIN max. 30 sek. für 55 °C vorgibt, genauso wie die von dir bereits angesprochenen 3 Liter.

Nun Normen, Richtlinien, ect. pp gibt es viel was du dem Handwerker bei solchen Fehlern um die Ohren hauen könntest. Allerdings hast du als Bauherr/Betreiber genauso (vorher) Pflichten wie z.B. die Erarbeitung eines Raumbuchs mit den für den Planer notwendigen Daten zur Erstellung einer Berechnung. Bei einem EFH würde ich einen Plan mit Details welche Verbraucher wo sitzen und vlt. noch eine Vorgabe bezüglich der Ausstoßzeiten (nach VDI 6003) erstmal reichen.

Sollten dann bei der Planung "Mängel" ersichtlich sein, die z.B. eine Zirkulation unumgänglich machen würden oder ein hygienisches Risiko ersichtlich wäre, müsste der Planer hier bereits Bedenken beim Bauherren/Verantwortlichen anmelden und das ganze nochmal durchsprechen.

Neben den Dinge die so ein Handwerker in der Ausbildung lernt, bekommt er auch beigebracht, dass so eine TW-Anlage mindestens nach 806 oder besser nach 1988 unter berücksichtigung von VDI 6023 und noch eine Menge anderer Vorgaben zu erstellen ist.

Allerdings ist bei dir der Drops scheinbar schon weitestgehend gelutscht, das die meisten Leitungen scheinbar schon Unterputz versteckt sind.

Hilft dir vlt. jetzt nicht mehr all zu viel aber hier steht ein bischen Beschrieben:
https://www.haustechnikdialog.de/News/15264/Trinkwasseranlage-Berechnung-und-Dokumentation-Die-Folgen-der-neuen-Regelwerke



1
  •  plen
2.11.2022  (#11)

zitat..
Schorschi81 schrieb: Nun Normen, Richtlinien, ect. pp gibt es viel was du dem Handwerker bei solchen Fehlern um die Ohren hauen könntest. Allerdings hast du als Bauherr/Betreiber genauso (vorher) Pflichten wie z.B. die Erarbeitung eines Raumbuchs mit den für den Planer notwendigen Daten zur Erstellung einer Berechnung. Bei einem EFH würde ich einen Plan mit Details welche Verbraucher wo sitzen und vlt. noch eine Vorgabe bezüglich der Ausstoßzeiten (nach VDI 6003) erstmal reichen.

Ganz unvorbereitet bin ich da nicht dran gegangen, Pläne vom Haus, Heizlastberechnung vom TGA sowie auch von mir mittels Ukabus wurden schon übergeben. Ebenso die Pläne für die FB, die hatte ich mit Loopcad gemacht und HFriks Tabelle. Nur bei der KWL KWL [Kontrollierte Wohnraumlüftung] und Trinkwasserinstallation hatte ich freie Hand gelassen mehr oder weniger. Ende ist nun, KWL ist versaut, da auf den gedämmten unbeheizten Dachboden, da bin ich aber noch selber dran das zu richten, wenigsten habe ich selber alle Ventile mit 2 x 75er Rohren angefahren. Externe G4 und G7 Filter liegen schon im Keller, muss die Kisten dafür noch bauen. 
Beim Trinkwasser, ich weiß garnicht wie oft ich nach einer Rohrnetzberechnung gefragt hatte per Email, nur kam da nie was. Irgendwann sind die dann angefangen. Zu Anfang konnte ich noch einiges verhindern. Es wurde nur eine Steigleitung gelegt für EG und OG, im Lastenheft stand aber, dass EG und OG später vermietet werden sollten.
Danach waren dann abgeknickte FB Rohre dran, die hatte ich rausgeschnitten, die wollten erst ne Muffe setzen im Bogen, Abflüssleitungen, die waren teilweise viel zu hoch, musste auch noch gerichtet werden. Eine WW WW [Warmwasser] Leitung wollten die ziehen, die wäre im Estrich alleine schon 18m gewesen.
Mir kam es so vor, als hätten die absolut keine Ahnung gehabt, was da auf meinen Bau gemacht werden soll.

Ich hoffe mal, dass er den Speicher versetzt auf seine Kosten, dann ist das Bad EG Dusche mit 4 Meter Mepla 20 angebunden, Waschtische mit 6 Meter.
OG dann halt 3 Meter on Top mit Mepla 26 in der Wand. Wären dann max 2L Volumen. Müsste dann unter 30s sein und OK für mich.
Genau Schüttleistung muss ich mal testen, hab ja noch jeweils Zähler für ww und kw pro Geschoss und die Daten auf dem Bus liegen.
EG Küche und Gäste WC ist dann die längste Strecke, aber da könnte man vielleicht WW WW [Warmwasser] auf Mepa 16 runter.
Mehr Abnehmern sind da nicht in der Strecke.


zitat..
Schorschi81 schrieb: Allerdings ist bei dir der Drops scheinbar schon weitestgehend gelutscht, das die meisten Leitungen scheinbar schon Unterputz versteckt sind.

Joar, das 20iger im Boden kann ich nicht mehr ändern. Einzig was im Keller ist kann noch geändert werden. Vielleicht noch die Steigleitung, wenn der Putz da runter kommt. Aber das wäre ne Menge Aufwand. Wenn die Küche mal neukommen würde in 20 Jahren oder so, dann könnte ich die Leitung aus dem Bad holen, dann wäre die wieder recht kurz.


zitat..
cacer schrieb: ach so, die küche ist aktuell direkt über dem speicher und nach umbau die längste leitung und die frau ist jetzt schon unglücklich ?

dann wäre ein  solartauglicher klein-DLE an der spüle keine schlechte idee, damit es schnell lauwarmes wasser gibt. das wärmere aus dem speicher kommt dann aber immer noch spät.
ein dicker DLE wäre die lösung, wenn der haussegen dadurch gerettet wird, sonst wäre mir das zu auswändig.

ist die küche direkt von unten angebunden, oder läuft den langen weg durch den estrich?


So ungefähr, geht vom Keller hoch, dann im Boden zur Außenwand, dann rechts. in Summe 8m im Estrich + 3 Meter im Kelleraum. Wenn ich den Speicher versetze, dann wären im Keller ca. 8m, würde da auch anders legen ohne hin und her. Einfach gerade aus durch.
Aber einen DLE würde ich trotzdem machen wollen in Zukunft.

Naja, fürs nächste Haus brauch ich 1 Jahr mehr Zeit für die Planung, anscheinend ruhen sich alle nur auf TGA Büros aus, mir kommt es so vor, als wären die HB´ler alle nur Subunternehmen und wollen und können garnicht selber rechnen, auslegen oder mal den Kunden auf Probleme hinweisen.
Ich hatte ca. 18 Anfragen laufen. Wenn man mal überlegt, dass mir da 18kw Brummer angedreht werden sollten und das wäre auch alles von Vaillant berechnet worden, anhand der Enev meines Energieberaters, ja ne is klar. 
Andere wollten sich garnicht drauf einlassen, dass ich einen Pufferspeicher wollte, kein Überstromventil, da blieb leider nur noch einer über und nun hab ich den Salat. Aber ich denke, den Speicher versetzen, ein paar neue Leitungen unter der Decke und vor allem, den Speicher selber dämmen mit Mineralwolle + Pur Platten, das ist der Aufwand noch wert.

Aber wie kann ich berechnen, ob eine 16 Mepla Leitung unter der Kellerdecke reichen würde für Küche + GästeWC . Die Bäder sind außen vor, da der Speicher dann direkt unter den Bädern steht.




1
  •  plen
7.11.2022  (#12)
So, da bin ich wieder.
Ich habe mal mit der Druckverlusttabelle von Geberrit den aktuellen Stand der Küche gerechnet. Da komme ich auf 86mbar Druckverlust. Zuleitung zur Friwa und Friwa selber mit 0,7bar habe ich mal ausgelassen.

2022/2022110756645.png
Nun war ja die überlegung den Speicher zu versetzen und WW WW [Warmwasser] für Küche neuzulegen.
Ich habe mal 16er Mepla angenommen, das würde den Druckverlust um 133mbar erhöhen.

2022/20221107698533.png

tja, wie kann man die Werte deuten? Wie verhält sich das mit den Fließgeschwindigkeiten? Wo sind da die Grenzen? Im Mepla 16 bin ich bei 1,25m/s.
Mit dem Mepla 16 und längere Wege hätte ich wenigsten nicht mehr V in den Leitungen als jetzt.

Gruß und vielen Dank für eure Unterstützung.

1
  •  berhan
  •   Gold-Award
7.11.2022  (#13)
Du kommst mit 0,13 l/s über die Runden, oder ist die Berechnung jetzt nur für ein Waschbecken?

1
  •  plen
7.11.2022  (#14)
Die 0,13 ist der aktuelle Durchfluss was der blancohahn in der Küche macht.
an der Leitung hängt dann noch das GästeWc und Spülmaschine.

ist schon ein wenig nervig, das ich jetzt das 20iger mepla und dann noch 8m im Estrich habe für die Küche.

Ich habe im Netz eine schöne Tabelle gefunden und ein Bericht, der das gut beschreibt.
Hätte ich das mal eher gelesen, dann hätte ich noch einiges ändern lassen können, oder zumindest ich hätte auf eine Rohrnetzberechnung bestanden und nicht das pi mal Daumen.

2022/2022110824791.png

https://www.ikz.de/uploads/media/IKZF_200811_1804_Sanitaer.pdf

Jetzt stellt sich nur noch die Frage nach den max Druckverlusten bei 4,5bar Eingangsdruck und die max Fließgeschwindigkeiten.
Hat einer vielleicht Erfahrungen, welchen Druck Armaturen so brauchen oder Duschbrausen?
Meine Keuco sind mit 15l/min angegeben max bei 3 bar. Keine Ahnung wieviel da noch bei 2bar rauskommen.

1
  •  berhan
  •   Gold-Award
8.11.2022  (#15)
Bei manchen Herstellern gibt es ein Diagramm dazu, wieviel Wasser beim jeweiligen Drtuck rauskommt. Du darfst aber nicht den Druckverlust durch die Höhendifferenz vergessen, ca. 0,1 bar p. m.

Gäste-WC und Spülmaschine werden ja KW sein, da besteht ja kein Änderungsbedarf.

1
  •  plen
8.11.2022  (#16)
Stimmt, hast du noch eine Empfehlung für fließgeschwindigkeiten? Vielleicht nicht höher als 2m/s?
0,1 bar hatte ich soweit auf dem Schirm.

also kurz gesagt, mit 16 mepla neu die Strecke im Keller wäre der Druckverlust
0,133 bar weniger als was jetzt da ist.
das ist doch zu vernachlässigen, wenn ich mir das mal pneumatisch vorstelle.
wenn die Fließgeschwindigkeiten jetzt nicht zu hoch sind, dann sollte eigentlich alles gut sein.

ich versteh nicht wie sich der Planer beim HBler Planer nennen kann, vorallem, wenn die ne passende Software dafür haben.

1
  •  dyarne
  •   Gold-Award
8.11.2022  (#17)
sehr guter plan...

zitat..
plen schrieb: Meine Idee wäre jetzt, den Speicher mit Friwa direkt unter die Bäder zu setzen, dann wären die Wege zum Bad sehr kurz. Ok, Vor und Rücklauf der Nibe würden bei der WW WW [Warmwasser] Bereitung einige Verluste bringen, denke aber die sind weniger als die Zirkulation....

um welten weniger...

die ladung des speichers erfolgt ja typisch nur 1-2-mal am tag. da ist völlig egal wie lang die leitungswege sind.

wasser zapfen tun wir hingegen 100-mal ... emoji

der speicher gehört immer zu den verbrauchern.
die wp kann ruhig woanders stehen...

ist halt leider schon ein thema der grundrißplanung.

das der hauptfallstrang an die wc's gekoppelt ist hat sich durchgesprochen, das mit den warmwasserwegen leider noch nicht überall...


1
  •  plen
8.11.2022  (#18)

zitat..
dyarne schrieb: um welten weniger...

die ladung des speichers erfolgt ja typisch nur 1-2-mal am tag. da ist völlig egal wie lang die leitungswege sind.

wasser zapfen tun wir hingegen 100-mal ...

der speicher gehört immer zu den verbrauchern.
die wp kann ruhig woanders stehen...

ist halt leider schon ein thema der grundrißplanung.

das der hauptfallstrang an die wc's gekoppelt ist hat sich durchgesprochen, das mit den warmwasserwegen leider noch nicht überall...

@dyarne 
Vielen Dank für deine Einschätzung. Ich habe schon einiges von dir gelesen, bin dir sehr dankbar für deine ganzen Informationen.
Ich habe mal mit Mepla 26 gerechnet, was dann der neue VL VL [Vorlauf] und RL RL [Rücklauf] wird, (20 innen) der Druckverlust steigt um 23mbar mit Fittinge usw. aber dann kann ich die alte Leitung weiter nutzen. Denke das geht in Ordnung.

Andere Frage noch zum Speicher, es ist leider nur eine leere Büchse geworden mit 500L, den TWL wollte er mir damals nicht besorgen.
Nun ist die Dämmung vom Cosmo ja mehr als bescheiden, ich würde dann die Speicherdämmung selber neu machen. Gedacht hatte ich an 120iger Mineralwolle drumherum und dann verkleiden mit Pur Alu Dämmung 6cm mit 022 Dämmwert.
Ich frage mich gerade, wo könnte der Speicher drauf stehen? 12cm Pur Platten unten und eine Edelstahlplatte wo die Füße drauf stehen? Oder gibts da eine bessere Lösung/Vorschläge?
Die Friwa auch direkt mit einpacken ins Gehäuse und von vorne den Kasten zum öffnen machen?

Gruß und Danke.




1
  •  cacer
  •   Gold-Award
8.11.2022  (#19)
Schau mal nach Beiträgen von @JanRi
Er hat, glaub ich, seinen leeren Topf in eine Nische gestellt und voll ausgedämmt.(also die Nische, nicht den Topf 😂

1
  •  bluefox
10.11.2022  (#20)
@plen Wo hast du denn das Geberit-Berechnungstool gefunden? Danke!

1
  •  plen
10.11.2022  (#21)
https://www.geberit.ch/service/downloadcenter/?page=1
Ne bisschen runterscrollen. Keine Ahnung warum die Schweiz alles freigibt, auf der deutschen Seite ich nichts zu finden. Auch per Anruf sind die nicht bereit die Druckverluste der Fittinge rauszugeben.
naja, nächste Woche Mittwoch gehts mit meinen HB'ler weiter. Bin mal gespannt ob er den Speicher versetzt ohne Murren.

Gruß 


1
 1  2 


Beitrag schreiben oder Werbung ausblenden?
Einloggen

 Kostenlos registrieren [Mehr Infos]