« Bauplan & Grundriss  |

Ausrichtung Einfamilienhaus

Teilen: facebook    whatsapp    email
  •  kamakese
31.5. - 1.6.2021
9 Antworten | 8 Autoren 9
9
Hallo liebe Forum-Mitglieder,
wir haben unseren Plan fertig und grundsätzlich sind wir sehr zufrieden damit. Jetzt kommt das große ABER.
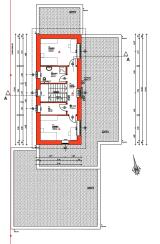
Unser Wunsch war, dass wir mit dem „Rücken“ des Hauses zum Nachbargrundstück (großes Grundstück links) schauen und Garten/Terrasse zum Grundstück rechts (gehört Familie). Der Grund dafür ist, da in Zukunft am linken Grundstück vielleicht eine Genossenschaft bauen könnte. Der Grundriss ist auch dadurch entstanden, weil die Einfahrt nur 6m breit ist und die Straße dann quasi endet. (damit ihr unseren Zugang zu dem Ganzen verstehen könnt)
Jetzt sind wir uns aber sehr unsicher wegen der Ausrichtung des Hauses, denn eigentlich liegt der Garten im Norden. Bis um die Mittagszeit haben wir ja schön die Sonne seitlich bei der Terrasse und im Garten. Aber nachmittags sieht das dann ja schon anders aus. Oder glaubt ihr, dass der Schatten nicht allzu stark ist, weil ja nur ein Teil des Hauses mit OG ist?
Leider gibt es auch keine vergleichbaren Grundstücke bei uns im Ort wo wir uns das Vorort anschauen könnten. Die Ausrichtungen der Häuser ist in den meisten Fällen perfekt geplant.
Könnt ihr uns hier Tipps geben?
Dankeschön für eure Tipps & Hilfe.


2021/20210531951728_th.png



2021/20210531746091_th.png



2021/20210531389049_th.png



2021/20210531743042_th.png



2021/20210531168834_th.png


2021/202105316127_th.png


2021/20210531599103_th.png


Liebe Grüße

  •  tomsl
  •   Bronze-Award
31.5.2021  (#1)
Also im Sommer wird das kein Problem sein, da wollt ihr die heiße Nachmittagssonne sowieso nicht direkt auf der Terasse bzw. ins Wohnzimmer scheinen haben.
Problematischer wirds im Winter, da verliert ihr 2-3 Sonnenstunden, wenn ich das Sonnenstandsdiagram richtig interpretiere.


1
  •  Apobine
  •   Silber-Award
31.5.2021  (#2)
Im alten Haus hatten wir Terasse und Garten im Osten. War für uns perfekt. Ab 13:30 dann Schatten auf der Terasse, was im Sommer sehr angenehm war. Der halbe Garten hatte dennoch den ganzen Tag Sonne (obwohl östlich und einstöckiges Haus). Hätte wir im neuen Haus auch gerne wieder so gehabt, die Ausrichtung war aber leider nicht möglich.
Freunde von uns haben Terasse und Garten komplett im Norden und es stört sie gar nicht. Auch dort ist der halbe Garten trotzdem sonnig und sie bekommen im Sommer ordentlich Abendsonne ab. Im Winter wird man sich eh weniger im Garten aufhalten. Achtet aber darauf, dass ihr im Haus genügend große Südfenster reinbekommt. 

1
  •  rocko567
31.5.2021  (#3)
meiner meinung nach ist die ausrichtung des hauses gut gelöst.

was mich aber interessiert: was soll der trend mit der andersfarbigen fassade um fenster zu gruppieren? ich sehe das immer öfter bei neubauten und jedes mal kommt mir das gruseln.

1


  •  furbo
31.5.2021  (#4)

zitat..
rocko567 schrieb: was mich aber interessiert: was soll der trend mit der andersfarbigen fassade um fenster zu gruppieren? ich sehe das immer öfter bei neubauten und jedes mal kommt mir das gruseln.

Nennt man Oberflächenarchitektur ;)


1
  •  Pedaaa
  •   Gold-Award
31.5.2021  (#5)

zitat..
Apobine schrieb: Im alten Haus hatten wir Terasse und Garten im Osten. War für uns perfekt.

habn wir auch so. Terrasse ist zwar noch nicht fertig, aber das wird super 😍
Brauchst keine Sonnenschrime oder Markisen. 
Fürn Sommer perfekt. Fürn Frühling aber vielleicht etwas zu kalt im Schatten am Abend. Aber man kann nicht alles haben...

Und im Westen haben wir einen Balkon, da lassen sich dann die schönen Sonnenuntergänge ansehen.

1
  •  heislplaner
  •   Gold-Award
1.6.2021  (#6)
ich würde definitiv die kizis im og mit westfenstern bestücken. es gibt da spezielle folien (werden auch bei autos eingesetzt) wo man von aussen nicht reinsehen aber von innen raussehen kann. oder man kann das auch gut mit raffstores oder vorhängen lösen. komplett auf westfenster verzichten würde ich dort nicht.

1
  •  Supapeda
  •   Silber-Award
1.6.2021  (#7)

zitat..
rocko567 schrieb:

was mich aber interessiert: was soll der trend mit der andersfarbigen fassade um fenster zu gruppieren? ich sehe das immer öfter bei neubauten und jedes mal kommt mir das gruseln.

Ich finde das prinzipiell ansprechend, leider wird es aber immer wieder verhaut:
Die Farbe muss bis Unterkante Fensterbank gehen, sonst stehen die Fensterbänke wieder aus dem Band hervor und es wird unruhig.


1
  •  kamakese
1.6.2021  (#8)
Vielen lieben Dank für eure Antworten :) Das stimmt - bei den Kinderzimmern sollten wir zumindest beim Zimmer mit nur einem Fenster ein zusätzliches Fenster im Westen einplanen.

@rocko567: Wir werden das nicht so umsetzen, hat unser Architekt nur so eingezeichnet :)

1
  •  rocko567
1.6.2021  (#9)

zitat..
kamakese schrieb:

Vielen lieben Dank für eure Antworten :) Das stimmt - bei den Kinderzimmern sollten wir zumindest beim Zimmer mit nur einem Fenster ein zusätzliches Fenster im Westen einplanen.

@rocko567: Wir werden das nicht so umsetzen, hat unser Architekt nur so eingezeichnet :)

gute entscheidung 

1

Thread geschlossen Dieser Thread wurde geschlossen, es sind keine weiteren Antworten möglich.

Nächstes Thema: Bad und Schrankraum tauschen?